特別賞

「暮らしの価値」を再考した高松の再販住宅

リノベーション済み物件

ゾーン断熱+耐震

2,220万円

2025年06月

リノベーション後 After

「暮らしの価値」を再考した高松の再販住宅

1階 LDK

「暮らしの価値」を再考した高松の再販住宅

1階 LDK ヌックから。何時でもこもれて、くつろぎに

「暮らしの価値」を再考した高松の再販住宅

1階 LDK キッチンは手元を隠す対面式で、家族の気配を感じ取れるよう配慮しました。

「暮らしの価値」を再考した高松の再販住宅

1階 洋間4.5畳 腰窓(APW330)に変更して、多目的に使えるように。(ファミリークローゼットや将来の予備室として)

「暮らしの価値」を再考した高松の再販住宅

1階 廊下 東からの採光も取り入れ、明るくシンプルに

「暮らしの価値」を再考した高松の再販住宅

外観(南東方向より) 玄関庇を取り除き、ミニバンが駐車できる幅を確保。外観と屋根は再塗装済

リノベーション前 Before

  • 「暮らしの価値」を再考した高松の再販住宅

    1階の和室続き間は、日当たりが良く広い空間として。

  • 「暮らしの価値」を再考した高松の再販住宅

    1階和室8畳間は、リビングとして。

  • 「暮らしの価値」を再考した高松の再販住宅

    1階和室6畳間は、ダイニングに。

  • 「暮らしの価値」を再考した高松の再販住宅

    1階洋室4.5畳間は、掃出のため、家具を自由にレイアウトしづらい。

  • 「暮らしの価値」を再考した高松の再販住宅

    工事前の外観(南東方向から) 大きな窓が多くアルミ製単板ガラスのため、断熱性に不安が残る昭和の建物

リノベーション施工中 Process

  • 「暮らしの価値」を再考した高松の再販住宅

    1階LDK 耐力壁工事(筋違)、柱頭柱脚金物設置・筋違い金物設置

  • 「暮らしの価値」を再考した高松の再販住宅

    1階LDK 床断熱工事

  • 「暮らしの価値」を再考した高松の再販住宅

    1階LDK 天井断熱工事

  • 「暮らしの価値」を再考した高松の再販住宅

    1階廊下 低コスト工法(構造用合板と金物を使った耐力壁)

  • 「暮らしの価値」を再考した高松の再販住宅

    1階LDK 耐震金物取付

  • 「暮らしの価値」を再考した高松の再販住宅

    1階LDK サッシ取付

技術的なポイント Point

●断熱性能
床:フェノバボードJ t=63mm(フクビ)
壁:フェノバボードRS t=29.5mm(フクビ)
天井:アクリアR45 t=170(旭ファイバーグラス)
窓:APW330(YKK AP)

●耐震性能
壁:低コスト構造、筋違い追加および柱頭柱脚部金物補強

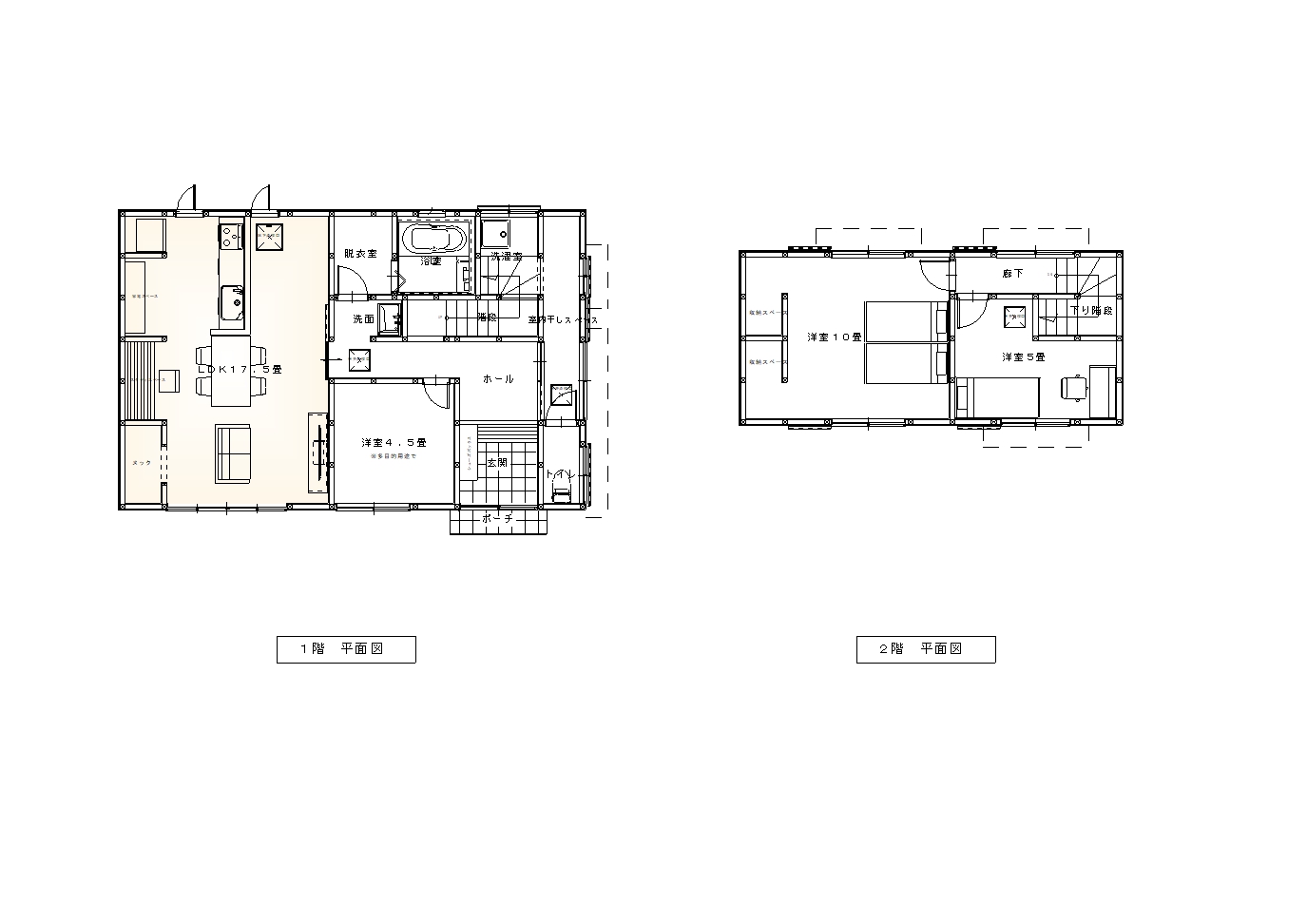
間取り Plan

リノベーション前

  • 「暮らしの価値」を再考した高松の再販住宅

    工事前 平面図

リノベーション後

  • 「暮らしの価値」を再考した高松の再販住宅

    工事後 平面図

物件概要

所在地
香川県高松市
敷地面積
165.34㎡(50.01坪)
延床面積
102.84㎡(31.10坪)
構造
木造瓦葺2階建
既存建築年
1983年(築43年)
改修竣工年月
2025年06月
省エネ基準地域区分
6地域
改修部分断熱性能
UA値 改修後0.39w/㎡・K
耐震性能
上部構造評点 改修前0.35 ⇒ 改修後1.22

企業紹介

企業名
株式会社 板阪不動産
Webサイト
https://www.itasakafudousan.co.jp/jisseki_catalog.html
コメント

弊社がご提案させて頂いてる住宅は、「棟梁が造る帰りたくなる空間・くつろげる家」を展開しております。
お客様の声に耳を傾け一緒に住まい造りをさせて頂いております。

グレードとは

性能向上リノベでは、断熱と耐震のそれぞれの現行基準を3段階に分類し、基準を策定。性能向上リノベーションがされた証として、必要なエビデンス情報を登録し、安心・快適な家であるお墨付きの証として「性能向上登録証」を発行しています。これからの時代に選ばれる、安心・快適な家を可視化します。

断熱

ランク UA値 断熱等級
0.46 6
0.60 5
0.87 4
耐熱の説明

耐震

ランク 上部構造評点 耐震等級
1.5以上 3
1.25~1.5
未満
2
1.0~1.25
未満
1
耐震の説明
  • 建物は、自立循環型モデル住宅(在来工法)を対象に、地域区分は、6・7地域(都心部を中心)に策定しています。
  • UA値(外皮平均熱貫流率)とは住宅の内部から床、外壁、屋根(天井)や開口部などを通過して外部へ逃げる熱量を外皮全体で平均した値。値が小さいほど熱が逃げにくく、省エネルギー性能が高いことを示します。
  • 上部構造とは壁や柱など家の構造物のこと。上部構造評点とは、震度6強の地震で建物が倒壊しないために必要な力を数値で表した必要耐力(Qr)に対する現状の耐力の割合を表します。
  • 既存木造住宅の上部構造評点1.0、1.25、1.5は、品確法においての耐震等級1、2、3レベルに相当します。