特別賞

海を臨む糸島の高性能な家(法適合までの道程)

中古物件購入+リノベーション

耐震+断熱

8,191万円

2025年03月

リノベーション後 After

海を臨む糸島の高性能な家(法適合までの道程)

南東外観

海を臨む糸島の高性能な家(法適合までの道程)

リビング北西面

海を臨む糸島の高性能な家(法適合までの道程)

2階寝室景観

海を臨む糸島の高性能な家(法適合までの道程)

リビング東面吹抜け

海を臨む糸島の高性能な家(法適合までの道程)

吹抜けの廊下  見せるブレース

海を臨む糸島の高性能な家(法適合までの道程)

補強改修後のログハウス

リノベーション前 Before

  • 海を臨む糸島の高性能な家(法適合までの道程)

    南東外観

  • 海を臨む糸島の高性能な家(法適合までの道程)

    ログハウス部分1階

  • 海を臨む糸島の高性能な家(法適合までの道程)

    ログハウス2階

  • 海を臨む糸島の高性能な家(法適合までの道程)

    南側増築部分

  • 海を臨む糸島の高性能な家(法適合までの道程)

    東側増築部分

  • 海を臨む糸島の高性能な家(法適合までの道程)

    西側外部上屋

リノベーション施工中 Process

  • 海を臨む糸島の高性能な家(法適合までの道程)

    基礎断熱部分 立上り、底版

  • 海を臨む糸島の高性能な家(法適合までの道程)

    耐力壁 筋交いつくば壁

  • 海を臨む糸島の高性能な家(法適合までの道程)

    制振装置MAMORY

  • 海を臨む糸島の高性能な家(法適合までの道程)

    断熱材 屋根,壁

  • 海を臨む糸島の高性能な家(法適合までの道程)

    断熱材 壁

  • 海を臨む糸島の高性能な家(法適合までの道程)

    施工中外観

技術的なポイント Point

・断熱性能
基礎断熱:外周立上り、べた基礎全面
押出ポリスチレンフォーム3種
     (カネライトフォームE3)t=50
壁:吹込み用繊維質断熱材60kg(セルロースファイバー)t=105
屋根:吹込み用繊維質断熱材60kg(セルロースファイバー)t=200
窓:APW430/431,APW511,エピソードⅡ、APW330 (YKKap)
ドア:M30顔認証自動ドア(YKKap)
・耐震性能
木造軸組み工法 許容応力度計算 耐震等級3
基礎:べた基礎、一部地中梁、スラブコンクリート補強
壁:面材耐力壁あんしん つくば耐力壁(株式会社タナカ)

間取り Plan

リノベーション前

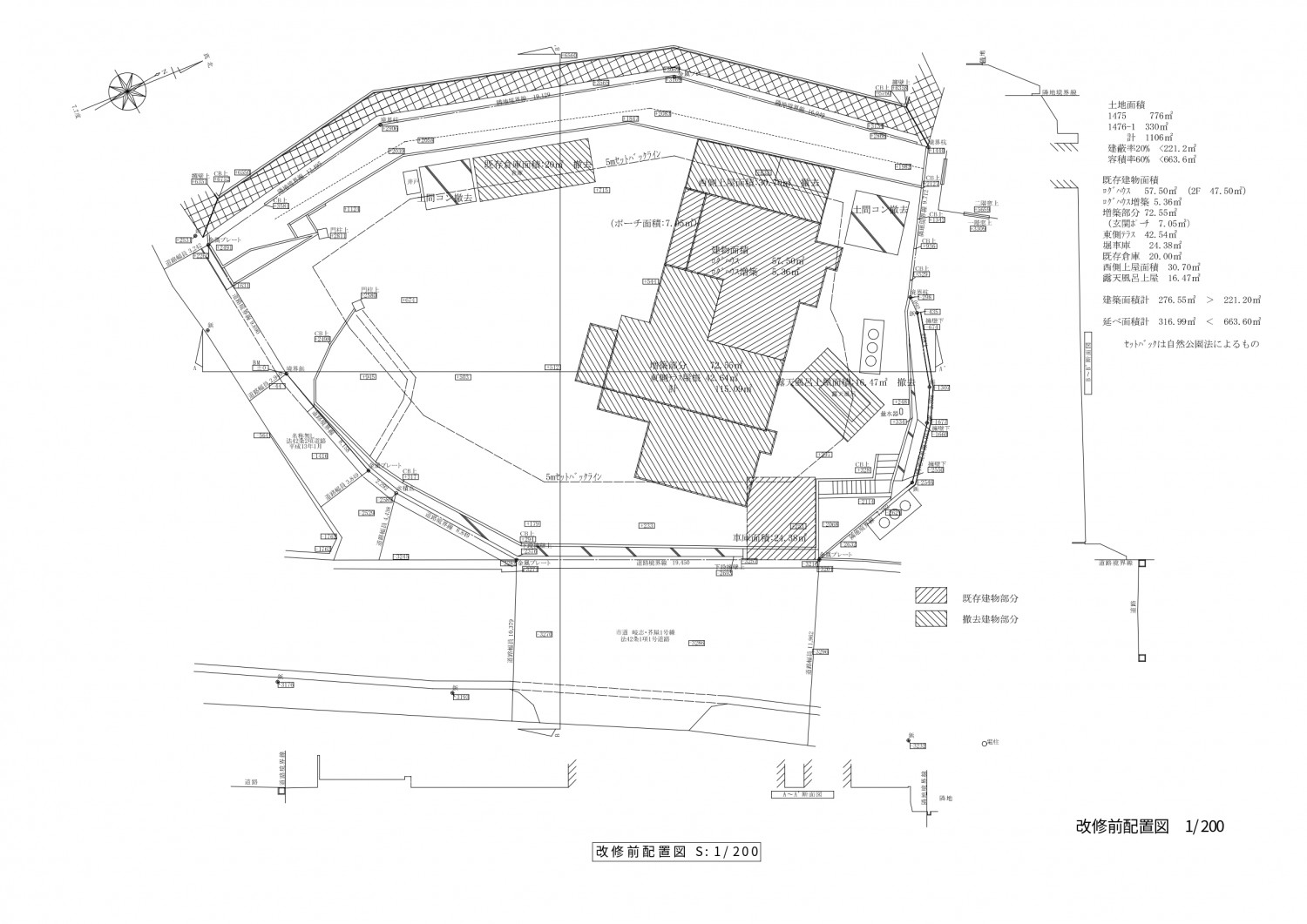
  • 海を臨む糸島の高性能な家(法適合までの道程)

    リノベーション前配置図

  • 海を臨む糸島の高性能な家(法適合までの道程)

    リノベーション前1階平面図

  • 海を臨む糸島の高性能な家(法適合までの道程)

    リノベーション前2階平面図

リノベーション後

  • 海を臨む糸島の高性能な家(法適合までの道程)

    リノベーション後配置図

  • 海を臨む糸島の高性能な家(法適合までの道程)

    リノベーション後1階平面図

  • 海を臨む糸島の高性能な家(法適合までの道程)

    リノベーション後2階平面図

  • 海を臨む糸島の高性能な家(法適合までの道程)

    リノベーション後立面図

物件概要

所在地
福岡県糸島市
敷地面積
1106.00㎡(334.56坪)
延床面積
344.73㎡(104.28坪)
構造
木造軸組工法2階建て(既存ログハウスは丸太組工法)
既存建築年
1990年(築36年)
改修竣工年月
2025年03月
省エネ基準地域区分
6地域
断熱性能
UA値 改修前1.54w/㎡・K⇒改修後0.47w/㎡・K(改修前の3.2倍に向上)
耐震性能
上部構造評点 改修前0.25 ⇒ 改修後1.5

企業紹介

企業名
ループスアーキテクト一級建築士事務所
Webサイト
https://loops-a.com/
コメント

経営理念

「人と暮らしの輪をつなぎ、幸せの和を紡ぎます。
私たちは、ご縁のある皆様の夢の実現に貢献する企業です。」

VISION

日本の設計技術で、世界中に笑顏を
世界は「縁」でできている

先 義 後 利

正しい人の道を先にして、利益の追求は後にするという意味で、LOOPS Architect.,incの企業の在り方となっております。

グレードとは

性能向上リノベでは、断熱と耐震のそれぞれの現行基準を3段階に分類し、基準を策定。性能向上リノベーションがされた証として、必要なエビデンス情報を登録し、安心・快適な家であるお墨付きの証として「性能向上登録証」を発行しています。これからの時代に選ばれる、安心・快適な家を可視化します。

断熱

ランク UA値 断熱等級
0.46 6
0.60 5
0.87 4
耐熱の説明

耐震

ランク 上部構造評点 耐震等級
1.5以上 3
1.25~1.5
未満
2
1.0~1.25
未満
1
耐震の説明
  • 建物は、自立循環型モデル住宅(在来工法)を対象に、地域区分は、6・7地域(都心部を中心)に策定しています。
  • UA値(外皮平均熱貫流率)とは住宅の内部から床、外壁、屋根(天井)や開口部などを通過して外部へ逃げる熱量を外皮全体で平均した値。値が小さいほど熱が逃げにくく、省エネルギー性能が高いことを示します。
  • 上部構造とは壁や柱など家の構造物のこと。上部構造評点とは、震度6強の地震で建物が倒壊しないために必要な力を数値で表した必要耐力(Qr)に対する現状の耐力の割合を表します。
  • 既存木造住宅の上部構造評点1.0、1.25、1.5は、品確法においての耐震等級1、2、3レベルに相当します。