性能向上をより生かす、回遊プランで暮らしの質を高めた木のマンションリノベーション

中古物件購入+リノベーション

断熱

3,000〜3,500万円

2024年09月

現在の投票数

0 1

この作品に投票する 投票済み

リノベーション後 After

性能向上をより生かす、回遊プランで暮らしの質を高めた木のマンションリノベーション

木製カウンターキッチンからみる様子。

窓の外は国内屈指の都市公園の森林が一面に広がっていて、抜群の立地です。

すっきりと見せつつ使いやすくもしたい、という要望を背面収納もL型とした計画で実現させました。玄関からのアプローチもよく、機能性と利便性が高いキッチンです。

性能向上をより生かす、回遊プランで暮らしの質を高めた木のマンションリノベーション

リビングからの様子。マンションでは大きな梁が圧迫感にもつながりますが、小下がりカーペットと梁に囲われて心地の良いこもり感があるリビングです。

視線の広がりがあるので、こもっているようでありつつ、狭くないというちょっとユニークなスペースです。

壁面の凹み部分はバイオエタノール暖炉。燃料代が高いのでたまに火を楽しむというスタンスですが、能力的には暖房にも十分使えます。

燃焼時には二酸化炭素と水分だけを排出するためか「湿度が高くてすごしやすい」とのことでした。

性能向上をより生かす、回遊プランで暮らしの質を高めた木のマンションリノベーション

元々ユニットバスがあった空間はワークスペースに。

温熱的には暑さ寒さが厳しくなりがちですが、断熱改修と適切な空調計画で快適に利用できます。

また裏動線に面して半オープンなスペースとして配置されているので、解放感がありつつ、プライバシー空間とも分離されています。

緑豊かな眺めもあり、贅沢な空間になってます。

性能向上をより生かす、回遊プランで暮らしの質を高めた木のマンションリノベーション

ダイニングから廊下とバッファスペースの様子。突き当りが第2リビングで、南北の風の抜けが気持ちいい空間。

廊下は広さを生かして余白のあるゆったりとした空間としました。

現在は壁面に絵が飾ってあり、バッファスペースには小さなシェルフと絵とイージーチェアが置かれています。

性能向上をより生かす、回遊プランで暮らしの質を高めた木のマンションリノベーション

写真では暗めですが、以前の暗い個室ではなく、やわらかで心地のいい明るさがある寝室と第2リビングスペース。

建具上のガラリからは冷房が吹き出ます。また点検パネルも兼ねていて、すべて取外しができます。

性能向上をより生かす、回遊プランで暮らしの質を高めた木のマンションリノベーション

寝室からリビングへとつながる裏動線の通路。奥の格子戸と勝手口、ワークスペースからの光で程よく明るい。写真には写ってませんが、少し後ろの天井には室内干しができるバーも設置しています。

リノベーション前 Before

  • 性能向上をより生かす、回遊プランで暮らしの質を高めた木のマンションリノベーション

    マンションではよくある大開口窓。眺望もよく解放感があるが、アルミサッシのシングルガラスという仕様のため、夏は日射熱で室内を暑くし、冬は冷気を強く感じてしまう環境になる。

  • 性能向上をより生かす、回遊プランで暮らしの質を高めた木のマンションリノベーション

    北側にある洋室は暗く寒々しい。

  • 性能向上をより生かす、回遊プランで暮らしの質を高めた木のマンションリノベーション

    面積が広いマンションでもキッチンは閉鎖的な対面キッチン。収納量も動線もあまりよくない。

  • 性能向上をより生かす、回遊プランで暮らしの質を高めた木のマンションリノベーション

    浴室のコーナー窓は緑豊かな景色を取り込んでいるが、カビだらけの状態。冬にはかなり冷え込んでいたと思われる。

リノベーション施工中 Process

  • 性能向上をより生かす、回遊プランで暮らしの質を高めた木のマンションリノベーション

    既存のウレタン吹き付けは厚み25mm。その上にウッドファイバーを吹き込むための木下地施工状況。この木下地に不織布を張りつけて吹き込む。

  • 性能向上をより生かす、回遊プランで暮らしの質を高めた木のマンションリノベーション

    ウッドファイバー吹き込み施工後。非定常計算により既存ウレタン上からの吹き込みで、防湿シートなしの仕様は結露しないことがわかっている。

  • 性能向上をより生かす、回遊プランで暮らしの質を高めた木のマンションリノベーション

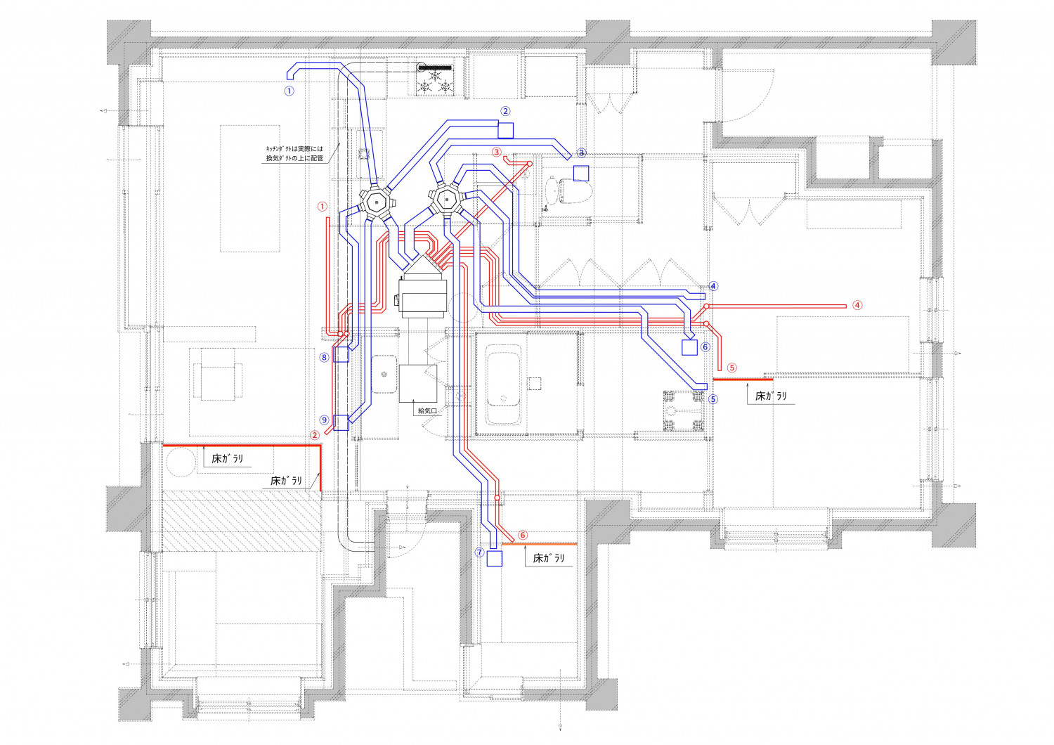
    全館空調のためのダクト配管接続部。写真は冬用のダクト配管。冬用のダクト径はΦ150をチャンバーボックスを経由してΦ100を数本分岐して吹き出している。

    実測によるダクト先端での吹き出し口風量は概ね約50m3/hとまずますの風量。

    夏の午後、外気温35℃の時で室内はおおむね室温26℃、相対湿度46%前後と快適な環境。

  • 性能向上をより生かす、回遊プランで暮らしの質を高めた木のマンションリノベーション

    アメニティエアコンを天井板張り部の上に設置。

    エアコンのメンテナンスと将来のダクト配管更新を考慮して、板張りをした900角の点検口を4か所連ねて計画。大きな開口を確保して意匠性を損ねずに点検、メンテナンスができるようにしている。

  • 性能向上をより生かす、回遊プランで暮らしの質を高めた木のマンションリノベーション

    ダクト配管更新がよりやりすくなるよう、写真のように収納上部に点検パネルを設けたり、ガラリ戸を設けて作業スペースを確保している

技術的なポイント Point

壁:ウッドファイバー t=100mm
窓:内窓LowEペアガラス(アルゴンガス入)
窓:ハニカムスクリーン

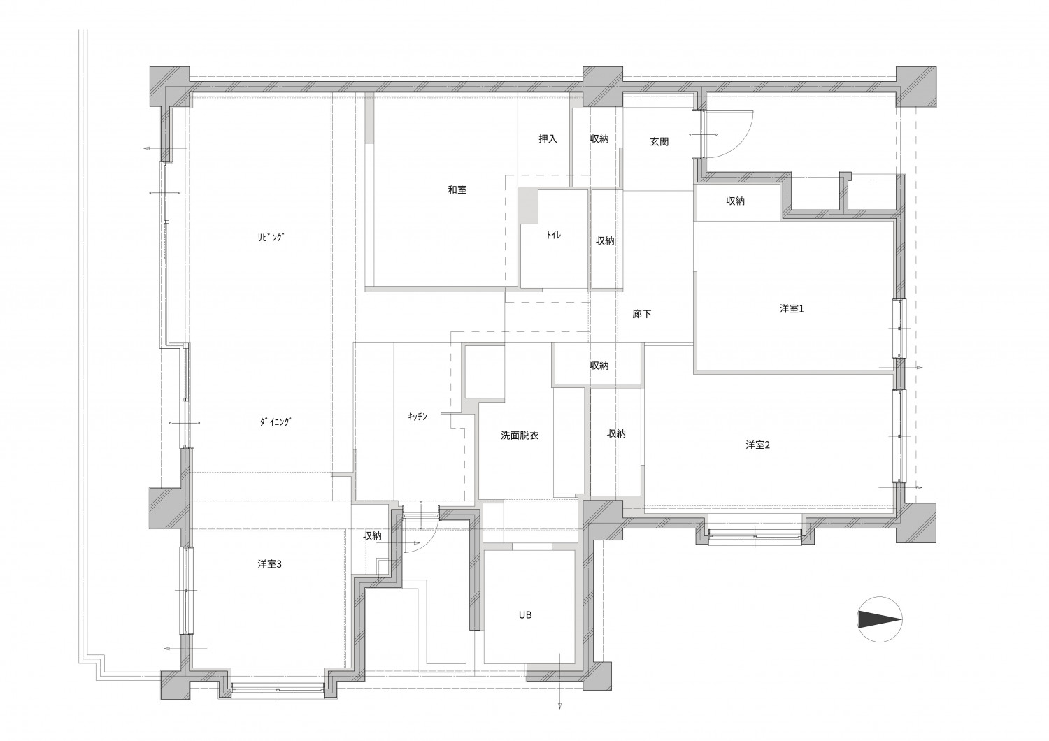
間取り Plan

リノベーション前

  • 性能向上をより生かす、回遊プランで暮らしの質を高めた木のマンションリノベーション

    105㎡と広いため4部屋分のスペースがある住まい。各個室はゆったりしているが、当然各部屋にエアコンがないと快適には過ごせない。

    ただエアコンが増えても快適に暮らせるような環境とはなりにくく、光熱費もかなりかかる状態です。

    広さはあるもののその良さを活かせてないため、このまま夫婦2人で快適に暮らせる住まいとはなっていない。

リノベーション後

  • 性能向上をより生かす、回遊プランで暮らしの質を高めた木のマンションリノベーション

    浴室を住戸の中央部へと配置することで、回遊性のあるプランとなっています。

    ただ回遊させるだけの廊下ではなく、通風性や空調効果を高める空気の循環性、部屋やスペースを利用しやすくし、暮らしやすさを高める効果をもたらしています。

    リビングにはTVを配置しません。広いLD空間には天井に照明は設けず、ウォールライトとスタンド照明だけでゆっくりと穏やかに過ごすことをテーマとしています。

    なおTVは寝室に隣接した第2リビングというスペースに配置。視聴時間が少ないのでどうしても視聴したいときだけ利用するスタイルです。

  • 性能向上をより生かす、回遊プランで暮らしの質を高めた木のマンションリノベーション

    全館空調のダクト配管経路と空調吹出位置を示した図面。

    隣戸に面した床と天井、壁の断熱をしていないのと、デコボコした平面形状ということもあってUA値自体はそれほど高くはない(なお隣戸への損失が0の場合、UA値は0.42程度になる)

    光熱費の詳細は記録していないが高いと感じるようなレベルではない、とは施主の意見。

    そのため実際の冷暖房負荷がどうなっているのか?数値性能から推定される高熱費以下であれば隣戸への熱損失は実際は小さい可能性があるかもしれない。今後の調査が必要。

物件概要

所在地
名古屋市千種区
延床面積
105.87㎡(32.02坪)
構造
RC造
既存建築年
2003年(築22年)
改修竣工年月
2024年09月
省エネ基準地域区分
6地域
断熱性能
UA値 改修前1.3w/㎡・K⇒改修後0.71w/㎡・K(改修前の1.83倍に向上)

企業紹介

企業名
株式会社N.style建築工房
Webサイト
https://www.n-stylekk.co.jp/
コメント

木のマンションリノベーション専門店です。木と自然素材を生かし、マンションを木の家のような住まいへとリノベーションします。見た目だけではなく、配管、断熱など見えない部分も更新し、快適で心地よく、メンテナンスもしやすい住まいをご提案します。

グレードとは

性能向上リノベでは、断熱と耐震のそれぞれの現行基準を3段階に分類し、基準を策定。性能向上リノベーションがされた証として、必要なエビデンス情報を登録し、安心・快適な家であるお墨付きの証として「性能向上登録証」を発行しています。これからの時代に選ばれる、安心・快適な家を可視化します。

断熱

ランク UA値 断熱等級
0.46 6
0.60 5
0.87 4
耐熱の説明

耐震

ランク 上部構造評点 耐震等級
1.5以上 3
1.25~1.5
未満
2
1.0~1.25
未満
1
耐震の説明
  • 建物は、自立循環型モデル住宅(在来工法)を対象に、地域区分は、6・7地域(都心部を中心)に策定しています。
  • UA値(外皮平均熱貫流率)とは住宅の内部から床、外壁、屋根(天井)や開口部などを通過して外部へ逃げる熱量を外皮全体で平均した値。値が小さいほど熱が逃げにくく、省エネルギー性能が高いことを示します。
  • 上部構造とは壁や柱など家の構造物のこと。上部構造評点とは、震度6強の地震で建物が倒壊しないために必要な力を数値で表した必要耐力(Qr)に対する現状の耐力の割合を表します。
  • 既存木造住宅の上部構造評点1.0、1.25、1.5は、品確法においての耐震等級1、2、3レベルに相当します。