特別賞

断熱等級7 性能向上リノベーション

持ち家リノベーション・リフォーム

耐震+断熱

3,500万円

2025年07月

リノベーション後 After

断熱等級7  性能向上リノベーション

軒は1m。妻側は70㎝出して外壁が劣化しにくいように配慮しております。屋根内部の換気など、耐久性にこだわって作っております。

断熱等級7  性能向上リノベーション

少々の雨では濡れない広い玄関ポーチ。ジョリパットの外壁が濃いグレーだったので、軒天の板はキシラ塗装で濃いめに塗装しました。

断熱等級7  性能向上リノベーション

リビングとのつながりがある空間
キャンプ好きなご家族で、
北側のデッキスペースを増築し
椅子やテーブルを置いて食事を楽しむ計画です。

断熱等級7  性能向上リノベーション

小上がり畳コーナーは来客時に寝る部屋にしたいので、建具が欲しいとのことでした。しかし解放感が損なわれ、また、来客頻度を考慮し、ロールカーテンで対応。ロールカーテンが見えないように天井に埋め込んでいます。

断熱等級7  性能向上リノベーション

構造上重要な耐力壁でしたが、真壁にすることで解放感と明るさを確保しました。キッチンは再利用で、美装で新品同様に綺麗になり、同時給排機能が無かったので、連動する電動シャッター給気を設置しました。

断熱等級7  性能向上リノベーション

可能な限り、日射を取得したいので南東の窓は極力大きくするように配慮しました。夏の遮蔽は軒と庇で対応しておりますが、9月10月はよしずを2枚重ねでカバーします。

リノベーション前 Before

  • 断熱等級7  性能向上リノベーション

    屋根は瓦棒板金の大屋根。屋根の流れが北西方向だったため、太陽光発電の効率を高める計画にしました。

  • 断熱等級7  性能向上リノベーション

    隣地には改修物件に寄せた建物が建つ予定。

  • 断熱等級7  性能向上リノベーション

    北側の庭空間。植栽や芝が素敵なご家族のくつろぎスペースで、この空間は再利用し、お掃除がしやすいようにタイルデッキに変更しました。

  • 断熱等級7  性能向上リノベーション

    アイランドキッチンは再利用した計画へ

  • 断熱等級7  性能向上リノベーション

    床下の調査。複数個所で断熱材の垂れ下がりや配管の貫通部が断熱欠損。寒さの原因の一つと判断しました。

  • 断熱等級7  性能向上リノベーション

    工事前に床のレベル調査を行いました。全体で±5㎜程度。

リノベーション施工中 Process

  • 断熱等級7  性能向上リノベーション

    築浅物件の解体中。色々と理由があり、グラスウールや屋根断熱は再利用できませんでした。

  • 断熱等級7  性能向上リノベーション

    玄関の内土間を解体し、断熱施工。
    断熱材の下の土間コンクリートなどにも防蟻処理を行いました。

  • 断熱等級7  性能向上リノベーション

    屋根外壁の断熱工事。現場発泡ウレタンA種ⅠH 壁は75㎜以上 屋根は150㎜以上の厚みが取れているか現場で常時立ち合いながら管理しました。

  • 断熱等級7  性能向上リノベーション

    浴室やレンジフードの配管を断熱することで熱橋を無くしました。

  • 断熱等級7  性能向上リノベーション

    耐力壁と透湿防水紙の施工中。

  • 断熱等級7  性能向上リノベーション

    付加断熱は可能な限り隙間などの断熱欠損が無いように施工。

技術的なポイント Point

基礎内断熱:ミラフォームラムダ t=45mm

壁:硬質ウレタンフォームA種ⅠH t=75mm以上

壁:付加断熱 ミラフォームラムダ t=45mm

屋根:硬質ウレタンフォームA種ⅠH t=150mm以上

窓:APW430(YKK AP) 一部APW330(YKK AP)

ドア:イノベストD50 ドア(採光無)

●耐震性能

耐力面材 タイガーEXハイパープログレ 標準仕様 倍率2.7

壁:筋交い追加および柱頭・柱脚部金物補強

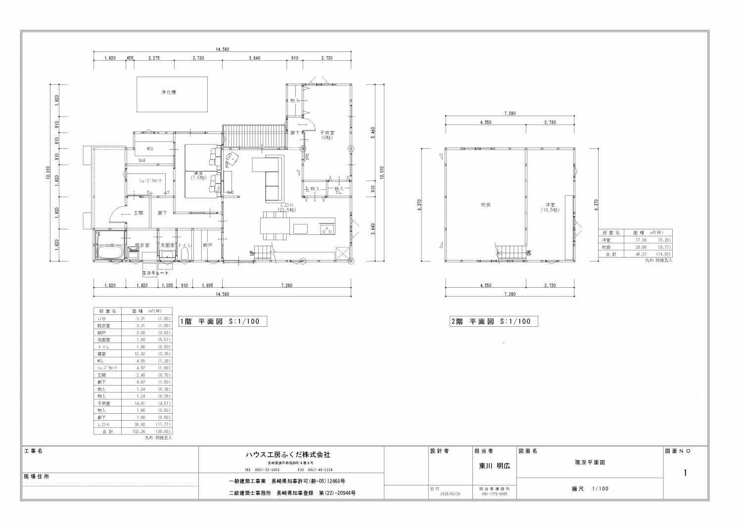
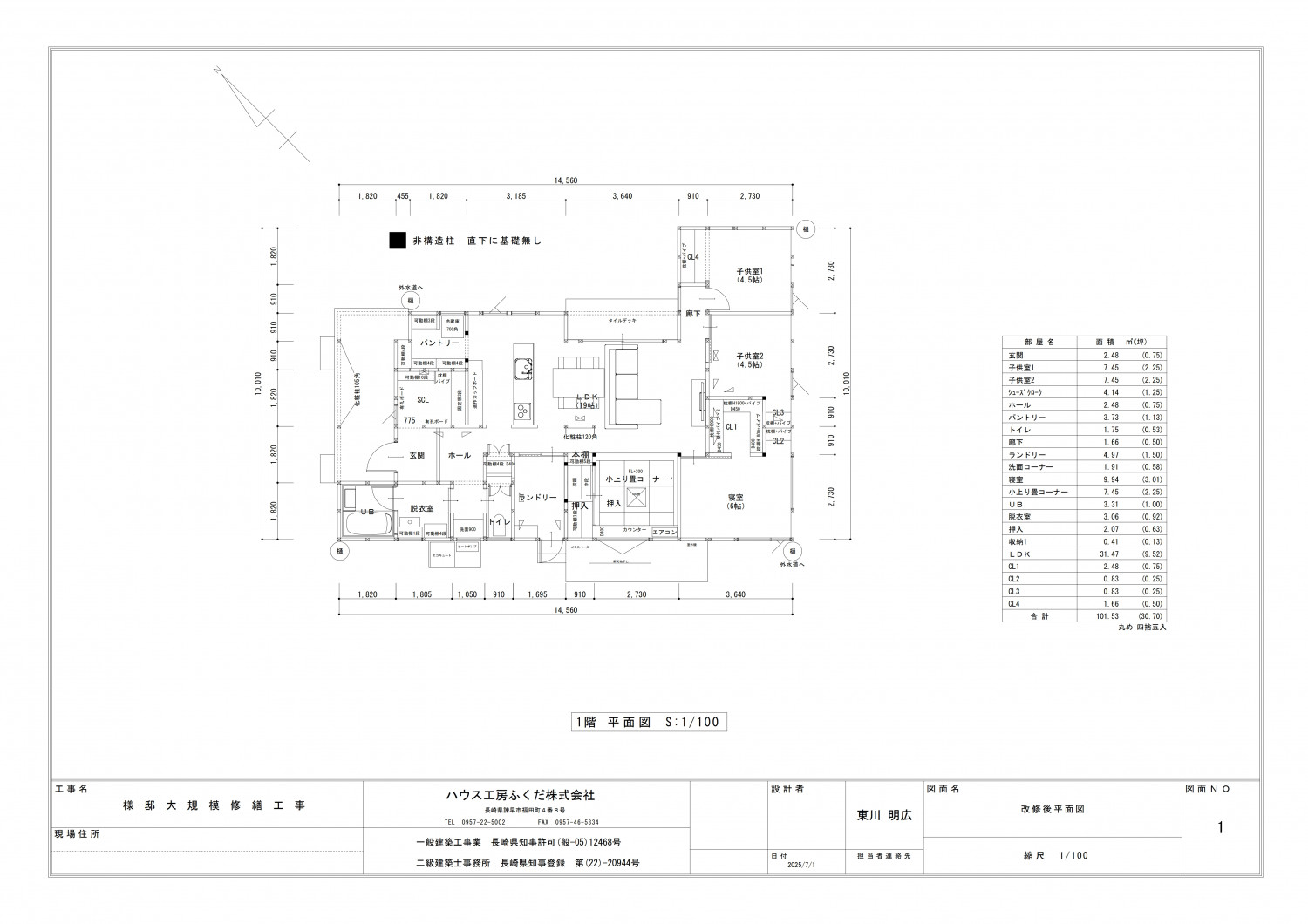
間取り Plan

リノベーション前

  • 断熱等級7  性能向上リノベーション

    ロフトはほとんど使っていませんでした。冬はロフトからの気流で寒さがあると判断し、平屋で計画をしました。

  • 断熱等級7  性能向上リノベーション

    軒ゼロ部分の通気が機能しておらず、劣化も進んでいました。

リノベーション後

  • 断熱等級7  性能向上リノベーション

    構造的に無理のない計画と既存の耐力壁はなるべく再利用しました。

  • 断熱等級7  性能向上リノベーション

    北側掃出し窓は温熱的には不利ですが庭との繋がりを優先しました。

  • 断熱等級7  性能向上リノベーション

    日影図で東面日射取得と遮蔽を検討しました。

物件概要

所在地
長崎県諫早市
敷地面積
396㎡(119.8坪)
延床面積
106㎡(32坪)
構造
木造在来1階建
既存建築年
2017年(築9年)
改修竣工年月
2025年07月
省エネ基準地域区分
7地域
断熱性能
UA値 改修前0.6w/㎡・K⇒改修後0.26w/㎡・K(改修前の2.3倍に向上)
耐震性能
上部構造評点 改修前1.48 ⇒ 改修後2.79
設計

ハウス工房ふくだ株式会社

施工

ハウス工房ふくだ株式会社

企業紹介

企業名
ハウス工房ふくだ
Webサイト
https://www.hausukoubou.com/
コメント

弊社は既存住宅の断熱.気密性.耐震性能の向上により
安心して快適に過ごせる家づくりをしております。


グレードとは

性能向上リノベでは、断熱と耐震のそれぞれの現行基準を3段階に分類し、基準を策定。性能向上リノベーションがされた証として、必要なエビデンス情報を登録し、安心・快適な家であるお墨付きの証として「性能向上登録証」を発行しています。これからの時代に選ばれる、安心・快適な家を可視化します。

断熱

ランク UA値 断熱等級
0.46 6
0.60 5
0.87 4
耐熱の説明

耐震

ランク 上部構造評点 耐震等級
1.5以上 3
1.25~1.5
未満
2
1.0~1.25
未満
1
耐震の説明
  • 建物は、自立循環型モデル住宅(在来工法)を対象に、地域区分は、6・7地域(都心部を中心)に策定しています。
  • UA値(外皮平均熱貫流率)とは住宅の内部から床、外壁、屋根(天井)や開口部などを通過して外部へ逃げる熱量を外皮全体で平均した値。値が小さいほど熱が逃げにくく、省エネルギー性能が高いことを示します。
  • 上部構造とは壁や柱など家の構造物のこと。上部構造評点とは、震度6強の地震で建物が倒壊しないために必要な力を数値で表した必要耐力(Qr)に対する現状の耐力の割合を表します。
  • 既存木造住宅の上部構造評点1.0、1.25、1.5は、品確法においての耐震等級1、2、3レベルに相当します。