実家を終の棲家に

持ち家リノベーション・リフォーム

耐震+断熱

1,850万円

2025年03月

現在の投票数

4 5

この作品に投票する 投票済み

リノベーション後 After

実家を終の棲家に

リビング

実家を終の棲家に

寝室

実家を終の棲家に

洗面脱衣室

実家を終の棲家に

キッチン

実家を終の棲家に

防音室

実家を終の棲家に

外観

リノベーション前 Before

  • 実家を終の棲家に

    居間

  • 実家を終の棲家に

    和室

リノベーション施工中 Process

  • 実家を終の棲家に

    外張り断熱75mm

  • 実家を終の棲家に

    充填断熱GW105mm

  • 実家を終の棲家に

    天井断熱ブローイング300mm

技術的なポイント Point

[断熱性能]
基礎断熱:ミラフォームラムダ t=75mm
壁:高性能グラスウール(充填断熱)t=105mm
壁:QGボード(付加断熱)t=75mm
天井:GWブローイング t=300mm

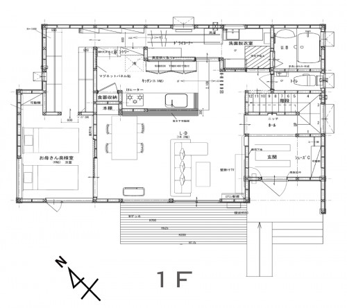
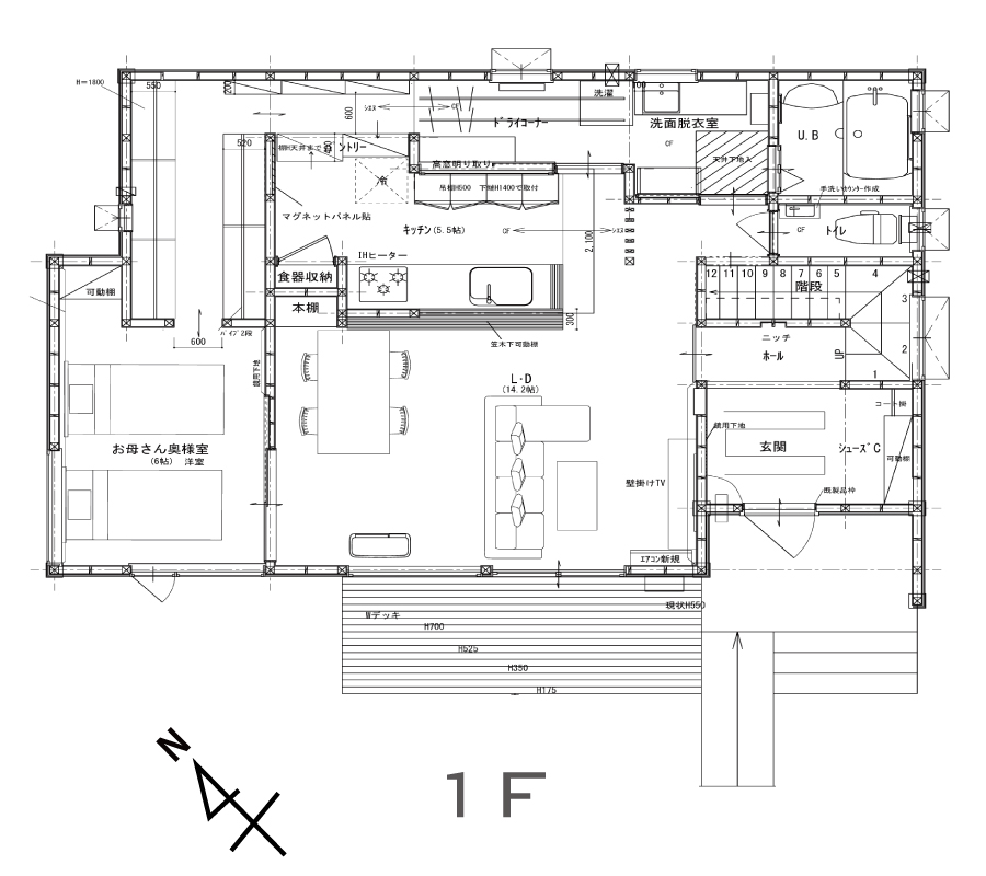
間取り Plan

リノベーション前

  • 実家を終の棲家に

    既存図1F

  • 実家を終の棲家に

    既存図2F

リノベーション後

  • 実家を終の棲家に

    改修後1F

  • 実家を終の棲家に

    改修後2F

物件概要

所在地
石狩市
敷地面積
256㎡(77.45坪)
延床面積
124.74㎡(38.5坪)
構造
木造2階建て
既存建築年
1976年(築49年)
改修竣工年月
2025年03月
省エネ基準地域区分
2地域
断熱性能
UA値 改修後0.25w/㎡・K
耐震性能
上部構造評点 改修前0.41 ⇒ 改修後1.73
設計

新谷 孝秀

企業紹介

企業名
株式会社アルティザン建築工房
Webサイト
https://a-san.jp/
コメント

札幌でリノベーション専門店として創業以来、はじめて家を持つ、子育て世代のお客様を中心に無理のないお支払いで資産価値のある高性能な住まいづくりをしています。平成26年度からスタートした国の補助事業「長期優良住宅化リフォーム推進事業」にも積極的にエントリーをして認定された実績は、現在では130棟を超えています。

グレードとは

性能向上リノベでは、断熱と耐震のそれぞれの現行基準を3段階に分類し、基準を策定。性能向上リノベーションがされた証として、必要なエビデンス情報を登録し、安心・快適な家であるお墨付きの証として「性能向上登録証」を発行しています。これからの時代に選ばれる、安心・快適な家を可視化します。

断熱

ランク UA値 断熱等級
0.46 6
0.60 5
0.87 4
耐熱の説明

耐震

ランク 上部構造評点 耐震等級
1.5以上 3
1.25~1.5
未満
2
1.0~1.25
未満
1
耐震の説明
  • 建物は、自立循環型モデル住宅(在来工法)を対象に、地域区分は、6・7地域(都心部を中心)に策定しています。
  • UA値(外皮平均熱貫流率)とは住宅の内部から床、外壁、屋根(天井)や開口部などを通過して外部へ逃げる熱量を外皮全体で平均した値。値が小さいほど熱が逃げにくく、省エネルギー性能が高いことを示します。
  • 上部構造とは壁や柱など家の構造物のこと。上部構造評点とは、震度6強の地震で建物が倒壊しないために必要な力を数値で表した必要耐力(Qr)に対する現状の耐力の割合を表します。
  • 既存木造住宅の上部構造評点1.0、1.25、1.5は、品確法においての耐震等級1、2、3レベルに相当します。