選考委員賞

新築以上を目指した築60年の民家の改修 〜 暮らしと出逢う『はらっぱ』 〜

モデルハウス・体感施設

耐震+断熱

3,500〜4,000万円

2025年09月

リノベーション後 After

新築以上を目指した築60年の民家の改修 〜 暮らしと出逢う『はらっぱ』 〜

既存の赤い三州瓦をモチーフにして、板金部分や断熱ドアのカラーをセレクト。リンボクを外構のシンボルとして取り入れた。また、床レベルが低い建物であることを踏まえ、中間領域はウッドデッキではなくストーンデッキを採用。地面からの湿気にも備えた

新築以上を目指した築60年の民家の改修 〜 暮らしと出逢う『はらっぱ』 〜

天井の低いかつての仏間を吹抜け空間にすることで、上の窓からも明かりが降り注ぐ、明るい建物に。自然を再現するようにつくった庭と合わせ、健やかな時間を過ごせる建物へとアップデートした

新築以上を目指した築60年の民家の改修 〜 暮らしと出逢う『はらっぱ』 〜

地域に開かれたコミュニティスペース。高性能な建物であるが、薪ストーブも設置。当社の庭屋さんからいただく剪定材で薪をつくり、燃料として使用している。化石燃料を使わない暖房も、住まい手に検討してほしい選択肢のひとつ。建物名称として名付けた『はらっぱ』は「①みんなが集まれて ②自然があって ③何もないところから何かをつくれる場所」を表現している

新築以上を目指した築60年の民家の改修 〜 暮らしと出逢う『はらっぱ』 〜

床下にエアコンの暖気を送る空調。現在普及している床下空間への設置ではなく、機器を「床上」に設置してフードを被せることで、床下へ暖気を送風する手法を採用。後年のメンテナンスが容易となるのはもちろん、床の切り込みを塞ぐことで夏の冷房の補助としても利用が可能となる

新築以上を目指した築60年の民家の改修 〜 暮らしと出逢う『はらっぱ』 〜

冷房用の空調室。各所に設けたスリットから各部屋へと冷気を分配できるよう、計算・測定がなされている

新築以上を目指した築60年の民家の改修 〜 暮らしと出逢う『はらっぱ』 〜

現在の基準では構造として評価はできない丸太梁。新設した梁で耐力を確保しているが、当時の職人の技を残すために現しで仕上げた

リノベーション前 Before

  • 新築以上を目指した築60年の民家の改修 〜 暮らしと出逢う『はらっぱ』 〜

    今は製造されていない、赤い三州瓦を葺いた築60年の建物

  • 新築以上を目指した築60年の民家の改修 〜 暮らしと出逢う『はらっぱ』 〜

    梁には当時の良質な材料が使われている

  • 新築以上を目指した築60年の民家の改修 〜 暮らしと出逢う『はらっぱ』 〜

    構造の荷重バランスが悪く、一箇所の柱がめり込んでいた

  • 新築以上を目指した築60年の民家の改修 〜 暮らしと出逢う『はらっぱ』 〜

    床下空間は断熱もなく、地面の冷気や湿気の影響をダイレクトに受けていた

  • 新築以上を目指した築60年の民家の改修 〜 暮らしと出逢う『はらっぱ』 〜

    浴室には昔懐かしいタイル絵。リノベーションの際にも、タイル絵だけはあえて残すプランとした

  • 新築以上を目指した築60年の民家の改修 〜 暮らしと出逢う『はらっぱ』 〜

    物件詳細調査の際に、すべての既存構造材の材種と最小寸法を拾い出すことで詳細な構造計算を可能とした

リノベーション施工中 Process

  • 新築以上を目指した築60年の民家の改修 〜 暮らしと出逢う『はらっぱ』 〜

    スケルトンにしたタイミングで構造材をすべて水洗い。獣臭や塵埃にまみれた木材だったが、木の香りが漂う建材へと変化した。季節を選ぶが、構造材の丸洗いは今後も積極的に採用したいプロセスである

  • 新築以上を目指した築60年の民家の改修 〜 暮らしと出逢う『はらっぱ』 〜

    通常、耐震診断法では、既存基礎に引き抜き力がかかることを考慮しないが、許容応力度計算に則り、基礎新設+アンカーボルトで設計

  • 新築以上を目指した築60年の民家の改修 〜 暮らしと出逢う『はらっぱ』 〜

    田の字に設けた耐力壁に合わせて基礎も新設

  • 新築以上を目指した築60年の民家の改修 〜 暮らしと出逢う『はらっぱ』 〜

    既存の梁を活かしながら、新設した梁で構造強度を高めた

  • 新築以上を目指した築60年の民家の改修 〜 暮らしと出逢う『はらっぱ』 〜

    田の字に耐力壁を配置し、門型を形成することで計算値以上に強度を高めている

  • 新築以上を目指した築60年の民家の改修 〜 暮らしと出逢う『はらっぱ』 〜

    マグイゾベールやウルトのダクトテープで丁寧に施工された壁内。断熱層と配線層が分離されているのも、後年のメンテナンスへの配慮

技術的なポイント Point

▼ 仕様

基礎:既存基礎を型枠代わりに内側に田の字の基礎梁を新設、ガードホールダウンジベル・ガードアンカージベル
木構造:既存構造材の最小寸法を実測して許容応力度計算を実施→耐震等級3
基礎:ネオマフォーム 45mm
壁:高性能グラスウール20k 120mm + 内付加断熱ネオマフォーム 45mm + 配線層
屋根:セルロースファイバー(吹き込み) 200mm
窓:APW430(YKK AP)
ドア:ユダ木工 超断熱タイプ

▼ 耐震/構造

・基礎の強度向上にも着手し、許容応力度計算によって耐震等級3を獲得
・すべての既存構造材の材種と最小寸法を拾い出した
・基礎新設+アンカーボルトで壁の引き抜き力に対応
・耐力壁の増加により発生した引き抜き力に対し、新設した基礎コンクリートの重量が対応
・壁だけでなく基礎と小屋裏の床も含めた「躯体の六面」の強度を補強
・力の流れが素直ではなかった既存の梁組に対し、柱や梁を追加して荷重の偏りを解消
・田の字に耐力壁を配置し、門型を形成することで計算値以上に強度を向上
・改修前後で常時微動探査を行い、建物構造強度を比較

▼ 断熱/空調について

・内付加断熱で断熱等級7
・既存の瓦屋根を再利用する際、母屋下に断熱層を設けることで母屋間を通気層として転用
・空調負荷計算を行い、必要なエアコンスペックを割り出し
・風量測定を実施し、送風口から目論見通りの暖気/冷気が出てくるか確認
・暖房は床下に暖気を送風して全館空調を行う「床下エアコン」を採用。一般的な手法と異なり機器が「床上」にあるのも工夫の一つ。エアコン下部の床を切り込み、エアコンに合わせた造作フードをエアコンに被せることで床下に暖気を送る。メンテナンスの容易性向上とコスト削減に加えて、夏には冷房用として代用することも可能となる
・冷房は建物上部に設置したエアコンから冷気を対流させる「ホールエアコン」と、正圧の空調室を使った分配型の冷房スタイルを併用。空調室は外周部とは接しない場所に区画し、断熱材をダクト素材として転用することで夏型結露にも十分に配慮
・結露に備え、夏冬両方において厳しい条件下で結露計算を実施。実態上の室内温湿度に照準を当て、一般社団法人未来へつなぐ工務店の会(略称:みらつぐの会)が定める右記の条件で計算。【夏】 屋外気温32°C、相対湿度73%、絶対湿度22g/kgに対して屋内室温23°C、相対湿度50%、絶対湿度8.7g/kg 【冬】 屋外気温-3°C、相対湿度60%、絶対湿度1.8g/kgに対して屋内室温23°C、相対湿度50%、絶対湿度8.7g/kg
・オールAPW430

▼ 耐久性等について

・施工時に断熱層と配線層を分離。断熱材と配線はそれぞれ耐用年数が異なるため、後年のメンテナンス・交換のしやすさが変わり、断熱欠損リスクを低減可能
・改修前の建物では、玄関下屋と主屋の屋根の取り合い、つまり谷部からの雨漏り・腐朽が見られたため、該当部分は減築。弱点となる箇所をそのまま改修するのではなく、克服して性能向上することを最重要視
・外壁仕上げは手の届く範囲は木板でオーナー自らメンテナンスできるように配慮
・内装仕上げは後塗りによるセルフメンテナンスができるようにオガファーザーを採用。透湿性能が高い素材であることも選定理由のひとつ
・地面との距離が近い既存建物の湿気対策として、基礎下の防湿シート施工に加え、LDKから延伸する中間領域にも石(ストーンデッキ)を選択
・ホウ酸による防蟻処理

▼ 環境性能/情緒的側面について

・屋根から下ろした瓦、および基礎の束石を外構に活用し、廃棄・新設による環境負荷を低減
・長い時間をかけて付着した獣臭や埃を除去するため、スケルトンにしたタイミングで木構造を丸ごと水洗いした。60年を経た木材も、再び「木の香り」が醸される生きた材料として復活
・新たに薪ストーブを導入。当社の庭屋さんが伐採した木から薪を作って暖房用燃料として活用
・既存の浴室のタイル絵を残して記憶を引き継ぐ
・天井の低いかつての仏間を吹抜け空間として改修。上の窓から光が降り注ぐ、明るい建物へと変化
・自然を再現するようにつくった庭

▼ コミュニティスペースとして

・この建物は、当社の事務所兼モデルハウスのみならず、地域に開かれたコミュニティスペースとしても運用中。家づくりを検討中の方だけでなく、地域に暮らす生活者の方々にも性能向上リノベーションを体感いただくための場所として、今後も広く開放していく予定。
地域の住宅ストックを良質なものに変えていくためには、地域住民の理解と行動が必須だからこそ、地域工務店として、そのきっかけを率先して提示していきたい考えている

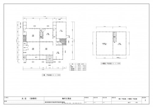
間取り Plan

リノベーション前

  • 新築以上を目指した築60年の民家の改修 〜 暮らしと出逢う『はらっぱ』 〜

    昔ながらの田の字型の区画+北面台所の住まい

  • 新築以上を目指した築60年の民家の改修 〜 暮らしと出逢う『はらっぱ』 〜

    玄関部下屋と屋根の取り合い(谷部)が弱点となり雨漏りが発生

リノベーション後

  • 新築以上を目指した築60年の民家の改修 〜 暮らしと出逢う『はらっぱ』 〜

    かつての浴室を社員通用口として利用。既存の玄関はコミュニティスペースのエントランスとした

  • 新築以上を目指した築60年の民家の改修 〜 暮らしと出逢う『はらっぱ』 〜

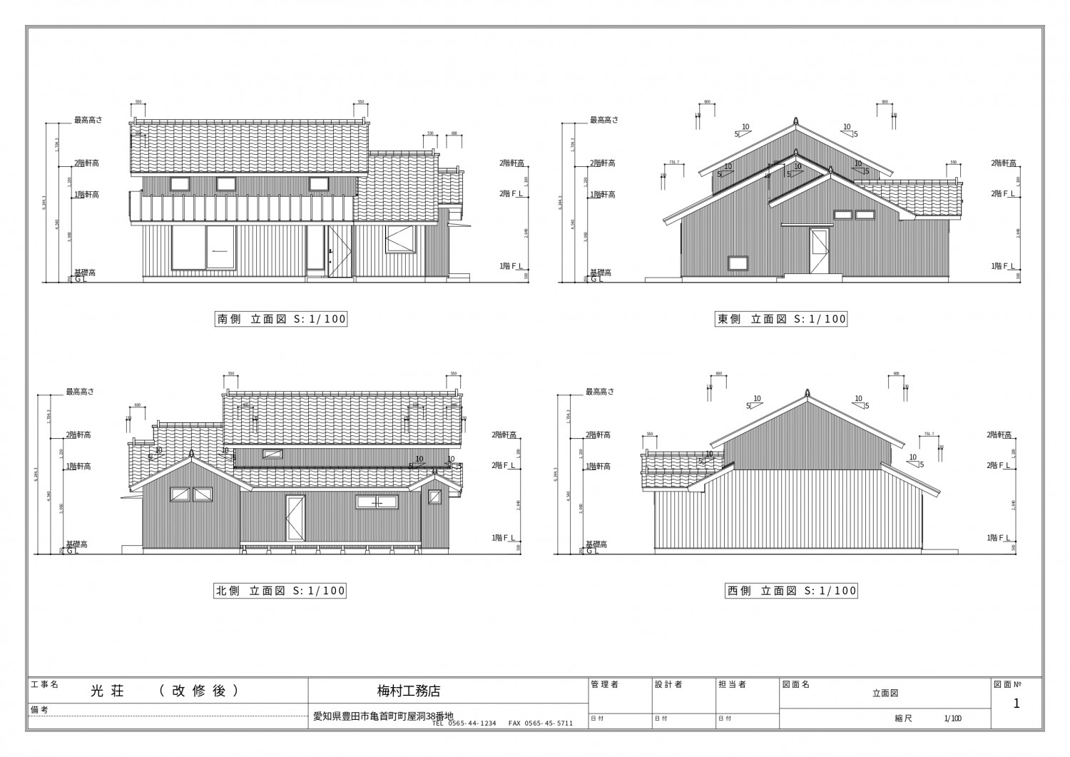
    下屋を減築して素直な屋根形状に変更。一部を除き、既存の瓦屋根を再利用している

  • 新築以上を目指した築60年の民家の改修 〜 暮らしと出逢う『はらっぱ』 〜

    冬の空調負荷計算

  • 新築以上を目指した築60年の民家の改修 〜 暮らしと出逢う『はらっぱ』 〜

    夏の空調負荷計算

  • 新築以上を目指した築60年の民家の改修 〜 暮らしと出逢う『はらっぱ』 〜

    空調換気の配置提案1

  • 新築以上を目指した築60年の民家の改修 〜 暮らしと出逢う『はらっぱ』 〜

    空調換気の配置提案2

物件概要

所在地
愛知県豊田市
敷地面積
495㎡(150坪)
延床面積
106.82㎡(32.32坪)
構造
木造平屋建て
既存建築年
1965年(築61年)
改修竣工年月
2025年09月
省エネ基準地域区分
6地域
断熱性能
UA値 改修前2.88w/㎡・K⇒改修後0.23w/㎡・K(改修前の12倍に向上)
耐震性能
上部構造評点 改修前0.16 ⇒ 改修後1.64

企業紹介

企業名
有限会社 梅村工務店
Webサイト
https://umekou.work/
コメント

1歩お家に入ったら心地よい空間が広がり
20年後・30年後も過ごしやすいお家であるよう、
人にも環境にも優しい暮らしを提案しています

グレードとは

性能向上リノベでは、断熱と耐震のそれぞれの現行基準を3段階に分類し、基準を策定。性能向上リノベーションがされた証として、必要なエビデンス情報を登録し、安心・快適な家であるお墨付きの証として「性能向上登録証」を発行しています。これからの時代に選ばれる、安心・快適な家を可視化します。

断熱

ランク UA値 断熱等級
0.46 6
0.60 5
0.87 4
耐熱の説明

耐震

ランク 上部構造評点 耐震等級
1.5以上 3
1.25~1.5
未満
2
1.0~1.25
未満
1
耐震の説明
  • 建物は、自立循環型モデル住宅(在来工法)を対象に、地域区分は、6・7地域(都心部を中心)に策定しています。
  • UA値(外皮平均熱貫流率)とは住宅の内部から床、外壁、屋根(天井)や開口部などを通過して外部へ逃げる熱量を外皮全体で平均した値。値が小さいほど熱が逃げにくく、省エネルギー性能が高いことを示します。
  • 上部構造とは壁や柱など家の構造物のこと。上部構造評点とは、震度6強の地震で建物が倒壊しないために必要な力を数値で表した必要耐力(Qr)に対する現状の耐力の割合を表します。
  • 既存木造住宅の上部構造評点1.0、1.25、1.5は、品確法においての耐震等級1、2、3レベルに相当します。