二間続きの和室がある家 ~性能向上が実現した和の住まい~

持ち家リノベーション・リフォーム

耐震+断熱

2,000〜2,500万円

2025年08月

現在の投票数

291 292

この作品に投票する 投票済み

リノベーション後 After

二間続きの和室がある家 ~性能向上が実現した和の住まい~

屋根はスーパーガルテクトを採用した結果、㎡当たり1/10の重さに。

二間続きの和室がある家 ~性能向上が実現した和の住まい~

欄間や床の間、仏間などはそのままの形で和の空間を残しながら、家族が集まりやすい二間続きに変更。

二間続きの和室がある家 ~性能向上が実現した和の住まい~

キッチンはダイニングや仏間に隣接。日当たりの良い南側には寝室を配置。トイレや浴室等の動線にも配慮。

二間続きの和室がある家 ~性能向上が実現した和の住まい~

かつての子供部屋は、杉の香りに癒されるフリースペースに。宅内の床板は全て28㎜の紀州材の杉板。

二間続きの和室がある家 ~性能向上が実現した和の住まい~

大工のお父さんが書いた番付けが残る柱や梁が、家族の目に留まる。

リノベーション前 Before

  • 二間続きの和室がある家 ~性能向上が実現した和の住まい~

    築42年、当時多く建てられていた入母屋屋根の和風住宅。

  • 二間続きの和室がある家 ~性能向上が実現した和の住まい~

    普段使いが出来なかった二間続きの和室。

  • 二間続きの和室がある家 ~性能向上が実現した和の住まい~

    家族が集まる限られたスペースのダイニングキッチン。

  • 二間続きの和室がある家 ~性能向上が実現した和の住まい~

    段差のあるタイル仕上げの寒い浴室。

  • 二間続きの和室がある家 ~性能向上が実現した和の住まい~

    荷物置き場として残された2階の子供部屋。

  • 二間続きの和室がある家 ~性能向上が実現した和の住まい~

    断熱材が無く、天井は風が通る構造。

リノベーション施工中 Process

  • 二間続きの和室がある家 ~性能向上が実現した和の住まい~

    昭和58年上棟時に撮影された写真。

  • 二間続きの和室がある家 ~性能向上が実現した和の住まい~

    瓦解体後の屋根土は吸上車で吸い取る。

  • 二間続きの和室がある家 ~性能向上が実現した和の住まい~

    水廻りにべた基礎を施工。

  • 二間続きの和室がある家 ~性能向上が実現した和の住まい~

    面材耐力壁は愛知県築地震災害軽減システム研究協議会の工法を採用。

  • 二間続きの和室がある家 ~性能向上が実現した和の住まい~

    床の断熱はスタイロフォーム90㎜とフェノバボード45㎜の二重断熱。

  • 二間続きの和室がある家 ~性能向上が実現した和の住まい~

    天井は高性能グラスウール20K155㎜の2重張り、壁はフェノバボード45㎜を施工。

技術的なポイント Point

・断熱性能
床:ネオマフォーム t=90mm
壁:高性能フェノールフォーム断熱材 45mm
天井:押出法ポリスチレンフォーム断熱材3種bA 90mm 高性能フェノールフォーム断熱材 45㎜
窓:APW330(YKK AP)、マドリモ内窓プラマードU

・耐震性能
基礎:既存布基礎の一部にスラブコンクリート補強
壁:面材耐力壁・筋交い追加および柱頭・柱脚部金物補強
屋根:土葺瓦屋根から遮熱性ポリエステル樹脂塗装超高耐久ガルバに変更

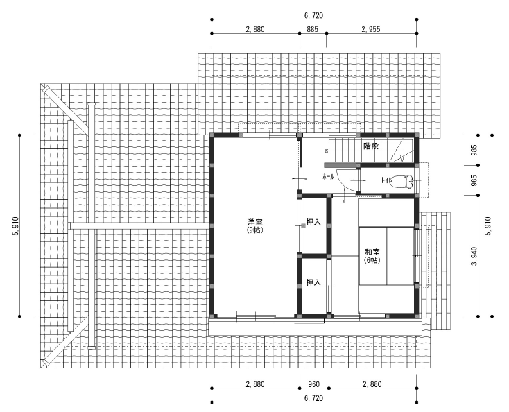
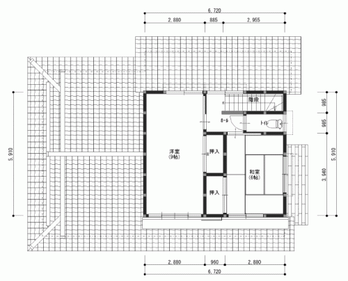
間取り Plan

リノベーション前

  • 二間続きの和室がある家 ~性能向上が実現した和の住まい~

    ハレの場として日頃使われていなかった二間続きと家族が集まる狭いDK、日当たりの悪い和室6帖が寝室として使われていた。

  • 二間続きの和室がある家 ~性能向上が実現した和の住まい~

    子どもたちが巣立ち使われなくなった2階は、ほぼ物置状態だった。

リノベーション後

  • 二間続きの和室がある家 ~性能向上が実現した和の住まい~

    動線に配慮された水廻りと日当たりの良い寝室、二間続きを家族が集まる広いリビングダイニングに変更。

  • 二間続きの和室がある家 ~性能向上が実現した和の住まい~

    2階は子どもや孫たちのフリースペースに。オンライン会議やホームシアターとして活用中。

物件概要

所在地
和歌山県田辺市
敷地面積
198.34㎡(60.00坪)
延床面積
139.8㎡(42.28坪)
構造
木造在来2階建て
既存建築年
1983年(築42年)
改修竣工年月
2025年08月
省エネ基準地域区分
7地域
断熱性能
UA値 改修前2.63w/㎡・K⇒改修後0.58w/㎡・K(改修前の4.5倍に向上)
耐震性能
上部構造評点 改修前0.13 ⇒ 改修後1.23
設計

田上 順子

施工

株式会社コウケン

企業紹介

企業名
JUNE建築設計室
コメント

女性建築士が専門家の目線で多様な住まい方をご提案します。身近な住まいの相談から大規模改修まで、経験豊富な職人と共にサポートします。

グレードとは

性能向上リノベでは、断熱と耐震のそれぞれの現行基準を3段階に分類し、基準を策定。性能向上リノベーションがされた証として、必要なエビデンス情報を登録し、安心・快適な家であるお墨付きの証として「性能向上登録証」を発行しています。これからの時代に選ばれる、安心・快適な家を可視化します。

断熱

ランク UA値 断熱等級
0.46 6
0.60 5
0.87 4
耐熱の説明

耐震

ランク 上部構造評点 耐震等級
1.5以上 3
1.25~1.5
未満
2
1.0~1.25
未満
1
耐震の説明
  • 建物は、自立循環型モデル住宅(在来工法)を対象に、地域区分は、6・7地域(都心部を中心)に策定しています。
  • UA値(外皮平均熱貫流率)とは住宅の内部から床、外壁、屋根(天井)や開口部などを通過して外部へ逃げる熱量を外皮全体で平均した値。値が小さいほど熱が逃げにくく、省エネルギー性能が高いことを示します。
  • 上部構造とは壁や柱など家の構造物のこと。上部構造評点とは、震度6強の地震で建物が倒壊しないために必要な力を数値で表した必要耐力(Qr)に対する現状の耐力の割合を表します。
  • 既存木造住宅の上部構造評点1.0、1.25、1.5は、品確法においての耐震等級1、2、3レベルに相当します。