安心と自然素材に包まれる家 ~倒壊不安と寒さから解放された性能向上リノベ~

持ち家リノベーション・リフォーム

耐震+断熱

3,000〜3,500万円

2025年05月

現在の投票数

196 197

この作品に投票する 投票済み

リノベーション後 After

安心と自然素材に包まれる家 ~倒壊不安と寒さから解放された性能向上リノベ~

LDK 
好きなものを飾る棚や過不足ない収納。
床・壁・天井を自然素材で仕上げ。
天井、枠などの塗装は柿渋、床は蜜蝋で仕上げ心地よさに包まれ、経年美化が美しい。

安心と自然素材に包まれる家 ~倒壊不安と寒さから解放された性能向上リノベ~

キッチン
家の中心にキッチン配置
家事、勉強カウンター、本棚
押入の中は可動棚や充電掃除器用コンセントなど。
お客様の暮らしやすさに合わせてリニューアルしております。

安心と自然素材に包まれる家 ~倒壊不安と寒さから解放された性能向上リノベ~

玄関ポーチ 
リビング・キッチン・他の部屋など自由な回遊動線。

安心と自然素材に包まれる家 ~倒壊不安と寒さから解放された性能向上リノベ~

1F寝室
窓からは山の緑を感じる
間接照明が明るすぎず眠りを誘い、良いアクセントとなります。

安心と自然素材に包まれる家 ~倒壊不安と寒さから解放された性能向上リノベ~

オリジナル造作洗面化粧台
お客様の身長や家事動線を意識して作成。
オリジナル造作とすることで無駄な余白空間なく家事しやすい洗面脱衣室となりました。

安心と自然素材に包まれる家 ~倒壊不安と寒さから解放された性能向上リノベ~

外壁
地元木材をウッドロングエコ仕上げした、自然と調和する外壁。
「自然の移ろいと共に日々変化する表情が飽きることなくとても楽しんでおります。」
とコメントいただきました。

リノベーション前 Before

  • 安心と自然素材に包まれる家 ~倒壊不安と寒さから解放された性能向上リノベ~

    外観

  • 安心と自然素材に包まれる家 ~倒壊不安と寒さから解放された性能向上リノベ~

    居間

  • 安心と自然素材に包まれる家 ~倒壊不安と寒さから解放された性能向上リノベ~

    台所

  • 安心と自然素材に包まれる家 ~倒壊不安と寒さから解放された性能向上リノベ~

    仏間

  • 安心と自然素材に包まれる家 ~倒壊不安と寒さから解放された性能向上リノベ~

    脱衣室

  • 安心と自然素材に包まれる家 ~倒壊不安と寒さから解放された性能向上リノベ~

    風呂

リノベーション施工中 Process

  • 安心と自然素材に包まれる家 ~倒壊不安と寒さから解放された性能向上リノベ~

    抱き基礎と内部基礎鉄筋・防湿シート工事
    元々の基礎は鉄筋も無く、室内側は束基礎主体で布基礎が少なくアンカーボルトでつながっていなかった。地盤転圧処理を行い、既存外周布基礎と既存束基礎の抱き基礎、ベース、新規基礎が一体となるように差し筋を行いを鉄筋を連結しフープ筋ができない箇所は溶接で連結工事を行った。

  • 安心と自然素材に包まれる家 ~倒壊不安と寒さから解放された性能向上リノベ~

    内部基礎工事
    ベース鉄筋基礎150㎜以上、元々の束基礎に鉄筋コンクリート補強、通気性もいいコラム基礎とし、また必要箇所に新規の布基礎を工事もおこないました。 
    既存の基礎を活かし一体化したことで外周は厚み280㎜
    新規のアンカーボルトやホールダウンで土台や躯体の連結を行った。土台をジャッキアップさせ基礎や土台の水平をそろえた。

  • 安心と自然素材に包まれる家 ~倒壊不安と寒さから解放された性能向上リノベ~

    土台、大引き、柱、梁、補強工事
    ・土台はジャッキアップし通気パッキンを使用し床下の通気を以前より改善させた。かつホウ酸防蟻処理を行った。柱、梁、補強・金物補強を行い。
    アーキトレンドソフトを活用しながら構造を確認し適所に柱や梁補強も行い、柱、壁の直下率も整えました。

  • 安心と自然素材に包まれる家 ~倒壊不安と寒さから解放された性能向上リノベ~

    壁付加断熱工事
    外周面に全面耐力壁工事を行い、壁付加断熱で高性能グラスウール105㎜追加しました。

  • 安心と自然素材に包まれる家 ~倒壊不安と寒さから解放された性能向上リノベ~

    外壁下地工事
    50年相当の耐久性、高耐久透湿防水シート3mを使用し継ぎ目を極力作らず継ぎ目は防水テープ抑え。
    さらにクロス通気胴縁工事で縦方向も横方向も自由な空気が動く最適な通気工事を行い腐朽しない住宅の長寿命化を目指した構造としています。

  • 安心と自然素材に包まれる家 ~倒壊不安と寒さから解放された性能向上リノベ~

    天井断熱
    セルロースファイバー42㎝
    断熱性、防音性、防火性、調湿性、防虫性などの多くのメリットがあり、非常に有効な断熱材

技術的なポイント Point

●断熱性能
床:ミラフォームラムダ t=100mm
壁:高性能グラスウール16k t=120mm・105mm 
天井:セルロースファイバー t=420mm
気密:調湿気密シート 「 ウートップ SDヴァリオ ツヴァイ」・その他気密部材
高耐久透湿防水シート:ウートップ® ハイムシールド3m
窓:APW430、APW431(YKK AP)
ドア:ユーロトレンドG(高性能木製断熱玄関ドア)
熱交換換気:ダクトレス1種換気エアーセーブ

●耐震性能、その他
外周壁:ダイライトMS全面・外周室内側ハイパーハードT・石膏ボード梁まで・気流止め45㎜
基礎:既存基礎に差し筋抱き基礎・ベタ基礎・内部新規基礎とコラム基礎・アンカーボルト・ホールダウン金物
土台:ヒノキ土台・大引き・ホウ酸防蟻処理・基礎パッキン・鋼製束
室内壁:筋交い・ハイパーハードT・追加柱補強・新、既存柱頭、柱脚部金物補強・気流止め45㎜
1、2階床、梁:24㎜ネダレス合板・鋼製火打ち・レンコン羽子板補強・短冊金物
屋根:屋根を片流れ勾配に変更・垂木45㎜×105㎜変更しタルキック止め・雲筋かい・両面かすがい・屋根12㎜合板・軒先、棟イーヴスベンツ585(軒天換気部材)

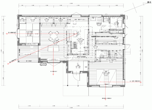
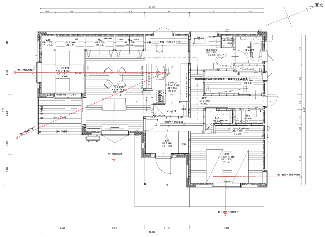
間取り Plan

リノベーション前

  • 安心と自然素材に包まれる家 ~倒壊不安と寒さから解放された性能向上リノベ~

    工事前1F平面図

  • 安心と自然素材に包まれる家 ~倒壊不安と寒さから解放された性能向上リノベ~

    工事前2F平面図

リノベーション後

  • 安心と自然素材に包まれる家 ~倒壊不安と寒さから解放された性能向上リノベ~

    改修後1階平面図

  • 安心と自然素材に包まれる家 ~倒壊不安と寒さから解放された性能向上リノベ~

    改修後2階平面図

物件概要

所在地
山形県寒河江市
敷地面積
4084㎡(1233坪)
延床面積
133.1㎡(40.5坪)
構造
木造在来2階建て
既存建築年
1969年(築56年)
改修竣工年月
2025年05月
省エネ基準地域区分
4地域
断熱性能
UA値 改修前3.82w/㎡・K⇒改修後0.23w/㎡・K(改修前の16.7倍に向上)
耐震性能
上部構造評点 改修前0.31 ⇒ 改修後1.52

企業紹介

企業名
健築工房hiro
Webサイト
https://www.hiro-studio.net/
コメント

私たちが目指す家づくりは、【人と環境にやさしい家づくり】です。循環可能な材や国産材を活用し、いつまでも風合いを楽しめる作りをしております。また、寒暖差の大きい山形県に適したエコハウスでランニングコストを抑え、家事楽で快適な家づくりをご提案いたします。

グレードとは

性能向上リノベでは、断熱と耐震のそれぞれの現行基準を3段階に分類し、基準を策定。性能向上リノベーションがされた証として、必要なエビデンス情報を登録し、安心・快適な家であるお墨付きの証として「性能向上登録証」を発行しています。これからの時代に選ばれる、安心・快適な家を可視化します。

断熱

ランク UA値 断熱等級
0.46 6
0.60 5
0.87 4
耐熱の説明

耐震

ランク 上部構造評点 耐震等級
1.5以上 3
1.25~1.5
未満
2
1.0~1.25
未満
1
耐震の説明
  • 建物は、自立循環型モデル住宅(在来工法)を対象に、地域区分は、6・7地域(都心部を中心)に策定しています。
  • UA値(外皮平均熱貫流率)とは住宅の内部から床、外壁、屋根(天井)や開口部などを通過して外部へ逃げる熱量を外皮全体で平均した値。値が小さいほど熱が逃げにくく、省エネルギー性能が高いことを示します。
  • 上部構造とは壁や柱など家の構造物のこと。上部構造評点とは、震度6強の地震で建物が倒壊しないために必要な力を数値で表した必要耐力(Qr)に対する現状の耐力の割合を表します。
  • 既存木造住宅の上部構造評点1.0、1.25、1.5は、品確法においての耐震等級1、2、3レベルに相当します。