西七日町のリノベーション

リノベーション済み物件

耐震+断熱

2,300万円

2025年02月

現在の投票数

6 7

この作品に投票する 投票済み

リノベーション後 After

西七日町のリノベーション

改修後外観

西七日町のリノベーション

改修後外観

西七日町のリノベーション

2階リビング
構造を整理して、一部増築したリビングスペース。

西七日町のリノベーション

2階リビング
平天井部分と勾配天井部分をつくり空間にメリハリをつけました。

西七日町のリノベーション

2階キッチン
動線に配慮したキッチンスペース。

西七日町のリノベーション

2階キッチン
視線のぬける位置に窓は配置。

リノベーション前 Before

  • 西七日町のリノベーション

    既存外観

  • 西七日町のリノベーション

    1階のキッチンスペース

  • 西七日町のリノベーション

    1階リビング

  • 西七日町のリノベーション

    2階洋室

  • 西七日町のリノベーション

    1階和室

  • 西七日町のリノベーション

    既存外観

リノベーション施工中 Process

  • 西七日町のリノベーション

    細切れになっていた基礎をつなぎ、補強工事を実施しました。

  • 西七日町のリノベーション

    柱脚金物を設置しました。

  • 西七日町のリノベーション

    屋根断熱状況

  • 西七日町のリノベーション

    壁付加断熱状況

  • 西七日町のリノベーション

    壁充填断熱状況

  • 西七日町のリノベーション

    床断熱状況

技術的なポイント Point

●断熱性能
床:ネオマフォームt=90㎜+t=45㎜
壁:ネオマフォームt=45㎜+高性能グラスウール16K t=105㎜
屋根:ネオマフォームt=90㎜+t=60㎜
窓:APW430(YKKAP)

●耐震性能
壁:耐力面材及び柱頭、柱脚金物補強
基礎:既存布基礎補強

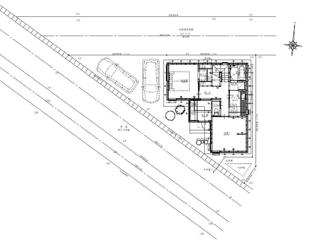
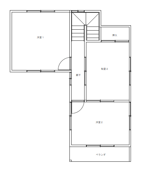
間取り Plan

リノベーション前

  • 西七日町のリノベーション

    既存1階平面図

  • 西七日町のリノベーション

    既存2階平面図

リノベーション後

  • 西七日町のリノベーション

    改修後配置図兼1階平面図
    ホールから各所へアクセスできるように動線を整理して、通りの視線が気にならない位置と高さに窓を配置しました。

  • 西七日町のリノベーション

    凹凸をなくし、1階と2階の構造的なつながりを整理しました。2階に上げたLDK空間から、より広がりを感じれるように窓位置を検討しました。

物件概要

所在地
福島県会津若松市
敷地面積
129.95㎡(39.23坪)
延床面積
104.54㎡(31.56坪)
構造
木造在来2階建て
既存建築年
1985年(築40年)
改修竣工年月
2025年02月
省エネ基準地域区分
4地域
断熱性能
UA値 改修前1.79w/㎡・K⇒改修後0.26w/㎡・K(改修前の6.8倍に向上)
耐震性能
上部構造評点 改修前0.31 ⇒ 改修後1.27
設計

遠藤 遼平

施工

株式会社スリートラスト工務店

企業紹介

企業名
株式会社スリートラスト工務店

グレードとは

性能向上リノベでは、断熱と耐震のそれぞれの現行基準を3段階に分類し、基準を策定。性能向上リノベーションがされた証として、必要なエビデンス情報を登録し、安心・快適な家であるお墨付きの証として「性能向上登録証」を発行しています。これからの時代に選ばれる、安心・快適な家を可視化します。

断熱

ランク UA値 断熱等級
0.46 6
0.60 5
0.87 4
耐熱の説明

耐震

ランク 上部構造評点 耐震等級
1.5以上 3
1.25~1.5
未満
2
1.0~1.25
未満
1
耐震の説明
  • 建物は、自立循環型モデル住宅(在来工法)を対象に、地域区分は、6・7地域(都心部を中心)に策定しています。
  • UA値(外皮平均熱貫流率)とは住宅の内部から床、外壁、屋根(天井)や開口部などを通過して外部へ逃げる熱量を外皮全体で平均した値。値が小さいほど熱が逃げにくく、省エネルギー性能が高いことを示します。
  • 上部構造とは壁や柱など家の構造物のこと。上部構造評点とは、震度6強の地震で建物が倒壊しないために必要な力を数値で表した必要耐力(Qr)に対する現状の耐力の割合を表します。
  • 既存木造住宅の上部構造評点1.0、1.25、1.5は、品確法においての耐震等級1、2、3レベルに相当します。