140年前の原型に立ち戻る、二世帯の暮らしを包む民家改修

持ち家リノベーション・リフォーム

耐震+断熱

3,800万円

2025年01月

現在の投票数

17 18

この作品に投票する 投票済み

リノベーション後 After

140年前の原型に立ち戻る、二世帯の暮らしを包む民家改修

以前は物置きとなっていた縁側はインナーテラス(濡縁)へ。庭を眺めたりバーベキュー時の腰掛けや物干しスペースとして活用しています。

140年前の原型に立ち戻る、二世帯の暮らしを包む民家改修

通り土間。
光と風が通り抜け、子供たちが駆け回っても安心で丈夫な床仕上げとしました。

140年前の原型に立ち戻る、二世帯の暮らしを包む民家改修

通り土間に隣接し、居間とつながる和室。奥にあった仏間を和室に設け、玄関からの客動線を近づけるとともに、子供たちの学習に使えるニッチスペースを南側の庭に面して設けました。

140年前の原型に立ち戻る、二世帯の暮らしを包む民家改修

濡縁はリビングの奥の両親の寝室側まで続きます
元は中廊下によって分断されていた間取りでしたが、間仕切りを取り払って南北に視線が通るおおらかな空間に改修しました。

140年前の原型に立ち戻る、二世帯の暮らしを包む民家改修

食品庫からキッチンをみる。奥には脱衣室・風呂があります。
北側に家事動線を集約し、通り土間から直線移動で家事ができるようにしました。
キッチンに立つと南側の庭の景色や居間と和室を一望でき、子供たちを見守りやすくなりました

140年前の原型に立ち戻る、二世帯の暮らしを包む民家改修

祖父母の寝室、リビングとつながる縁側と寝室の間には既存の箪笥がすっぽりと収まる独立壁で緩やかに空間を隔てています。天井は解体時に露わになった創建時のものを活用しました。

リノベーション前 Before

  • 140年前の原型に立ち戻る、二世帯の暮らしを包む民家改修

    既存の外観。築140年近くになる平屋の部分と、築40年の二階建ての増築部分からなる

  • 140年前の原型に立ち戻る、二世帯の暮らしを包む民家改修

    既存の屋根裏、断熱材が一部めくれいていたりするが、雨漏れはなく小屋組みは健全であることを確認した。

  • 140年前の原型に立ち戻る、二世帯の暮らしを包む民家改修

    中廊下が居間とダイニングを分け、動線を複雑にしていた

  • 140年前の原型に立ち戻る、二世帯の暮らしを包む民家改修

    中廊下によって分断され、7人家族にはやや窮屈だったダイニングキッチン

  • 140年前の原型に立ち戻る、二世帯の暮らしを包む民家改修

    既存の二階セカンドリビング、このように空部屋はほとんど荷物で埋まっていた

  • 140年前の原型に立ち戻る、二世帯の暮らしを包む民家改修

    石の上に直接土台が乗る築140年の古民家の部分

リノベーション施工中 Process

  • 140年前の原型に立ち戻る、二世帯の暮らしを包む民家改修

    スケルトン解体時の写真

  • 140年前の原型に立ち戻る、二世帯の暮らしを包む民家改修

    屋根断熱敷設時、屋根は防水シートに二重貼りとし、垂木間にフェノバボード60mmを施工

  • 140年前の原型に立ち戻る、二世帯の暮らしを包む民家改修

    リビング解体時。築140年の古い壁が出現し、この意匠を活かす方針に。

  • 140年前の原型に立ち戻る、二世帯の暮らしを包む民家改修

    ポストで建物を支えながら、土台を順次取り替えている様子。

  • 140年前の原型に立ち戻る、二世帯の暮らしを包む民家改修

    耐力壁の設置部分の基礎の様子。既存の外周部の有筋基礎、土台、シージングボードは活かした。
    新旧の基礎は差し筋アンカーによって緊結した。

  • 140年前の原型に立ち戻る、二世帯の暮らしを包む民家改修

    外壁内側に袋入りの断熱材を隙間なく施工している様子

技術的なポイント Point

●断熱性能
床:アクリアUボードピンレス床用 高性能24K 120mm
壁:アクリアウール 高性能24K 120mm
屋根:フェノバボードt60
天井:アクリアウール  高性能24K 240mm
窓:サーモスⅡ(LIXIL)、内窓インプラス(LIXIL)
ドア:エムルーブ2(採光ナシ)

●耐震性能
基礎:布基礎を全体的に新設、既存壁や土台がある部分はポストで浮かしつつ、土台を付け替え、基礎は新設した
壁:耐力壁を全体に追加・柱頭・柱脚部金物にて補強した
床:1,2階ともに24mm構造用合板にて張替え、適所に鋼製火打ちを入れて水平構面を補強
屋根:屋根を葺替た平屋部分については12mmの合板を既存の垂木にタルキックで打付けて補強

●耐久性
平屋部分の屋根:モルタル瓦⇒ガルバリウム鋼板葺
増築部分の屋根:既存ガルバリウム鋼板の上、防水塗装
外壁:クラック補修の上、弾性リシンを再塗装した
基礎:玉石基礎はすべて布基礎に置換し、土台を緊結、防湿対策として防湿シートを全体的に敷設した

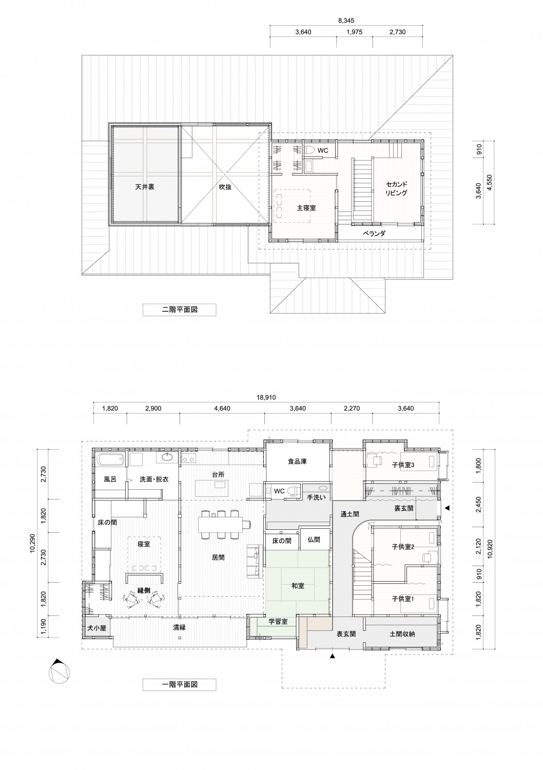
間取り Plan

リノベーション前

  • 140年前の原型に立ち戻る、二世帯の暮らしを包む民家改修

    【既存】平面図

リノベーション後

  • 140年前の原型に立ち戻る、二世帯の暮らしを包む民家改修

    【改修後】平面図

物件概要

所在地
山形県山形市
敷地面積
1000㎡(300坪)
延床面積
236㎡(71坪)
構造
木造伝統工法平屋建+木造在来工法2階建
既存建築年
1880年(築145年)
改修竣工年月
2025年01月
省エネ基準地域区分
4地域
断熱性能
UA値 改修前1.8w/㎡・K⇒改修後0.54w/㎡・K(改修前の3.3倍に向上)
耐震性能
上部構造評点 改修前0.17 ⇒ 改修後1.11
施工

大友建設株式会社

企業紹介

企業名
中土居宏紀建築研究所
Webサイト
https://www.naaastudio.com/
コメント

単に綺麗に刷新するのではなく、古いものからいかに魅力を引き出すかを大切にしています。
リノベーションでしか出来ない、既存の建物との対話を通じて長く愛される場をつくりたいと考えています。

グレードとは

性能向上リノベでは、断熱と耐震のそれぞれの現行基準を3段階に分類し、基準を策定。性能向上リノベーションがされた証として、必要なエビデンス情報を登録し、安心・快適な家であるお墨付きの証として「性能向上登録証」を発行しています。これからの時代に選ばれる、安心・快適な家を可視化します。

断熱

ランク UA値 断熱等級
0.46 6
0.60 5
0.87 4
耐熱の説明

耐震

ランク 上部構造評点 耐震等級
1.5以上 3
1.25~1.5
未満
2
1.0~1.25
未満
1
耐震の説明
  • 建物は、自立循環型モデル住宅(在来工法)を対象に、地域区分は、6・7地域(都心部を中心)に策定しています。
  • UA値(外皮平均熱貫流率)とは住宅の内部から床、外壁、屋根(天井)や開口部などを通過して外部へ逃げる熱量を外皮全体で平均した値。値が小さいほど熱が逃げにくく、省エネルギー性能が高いことを示します。
  • 上部構造とは壁や柱など家の構造物のこと。上部構造評点とは、震度6強の地震で建物が倒壊しないために必要な力を数値で表した必要耐力(Qr)に対する現状の耐力の割合を表します。
  • 既存木造住宅の上部構造評点1.0、1.25、1.5は、品確法においての耐震等級1、2、3レベルに相当します。