“安心して暮らし続けられる終の棲家”へ

持ち家リノベーション・リフォーム

耐震+断熱

2,000〜2,500万円

2025年10月

現在の投票数

50 51

この作品に投票する 投票済み

リノベーション後 After

“安心して暮らし続けられる終の棲家”へ

勾配天井にすることで光を遠くまで取り込むことができ、開放的なLDKとなった

“安心して暮らし続けられる終の棲家”へ

和紙クロスや無垢の床・天井など自然素材で空気まで気持ちよく

“安心して暮らし続けられる終の棲家”へ

実用的な作業スペースも心地よいリビングに取り込んだ

“安心して暮らし続けられる終の棲家”へ

収納は見せる収納・隠せる収納に分け、おしゃれに。手摺もデザインの一つに取り入れ、心地の良いトイレへ

“安心して暮らし続けられる終の棲家”へ

デッドスペースだった三角コーナーは収納スペースとして機能的に活用

“安心して暮らし続けられる終の棲家”へ

洗う→乾かす→しまうの動作が1箇所で整う脱衣所

リノベーション前 Before

  • “安心して暮らし続けられる終の棲家”へ

    変形した建物形状のため未利用空間が点在していた

  • “安心して暮らし続けられる終の棲家”へ

    周囲を建物に囲まれているため閉鎖的で圧迫感のある室内

  • “安心して暮らし続けられる終の棲家”へ

    介護用につくられたトイレ。広いが収納は足りていなかった。

  • “安心して暮らし続けられる終の棲家”へ

    寒さ対策で設けられた間仕切り折れ戸が通路を圧迫。動線を分断していた。

  • “安心して暮らし続けられる終の棲家”へ

    仕事場に抜ける狭い通路部分。大きな段差も使いづらさの原因となっていた。

  • “安心して暮らし続けられる終の棲家”へ

    ジャグジー付きのバスルームも、脱衣室が寒いために利用されていなかった。

リノベーション施工中 Process

  • “安心して暮らし続けられる終の棲家”へ

    間取り改善のために行った柱抜き箇所へは、鉛直荷重を考慮し梁補強を実施。

  • “安心して暮らし続けられる終の棲家”へ

    温熱環境改善のため、断熱材充填に加え気密シートを施工。

  • “安心して暮らし続けられる終の棲家”へ

    4.5倍壁の耐力壁
    耐震診断と補強計画に基づき耐力壁を5箇所設置した。

  • “安心して暮らし続けられる終の棲家”へ

    気密試験実施状況。
    既存基礎との接合部の処理に苦労したが、木造躯体部分に関しては緻密な施工が実施できた。職人立ち合いで試験を行ったことで今後の改善点も明確になった。
    C値は1.9㎠/㎡

  • “安心して暮らし続けられる終の棲家”へ

    施工前に床下状況を調査。シロアリの生息や木部の腐れがないかを入念にチェックした

技術的なポイント Point

●断熱性能の入力例

床:ネオマフォーム t=60mm

壁:ネオマフォーム外 t=30mm
グラスウール24K 中 t=100mm

天井:グラスウール24k t=200mm

窓:APW430(YKK AP)

ドア:ヴェナートD30 (採光無)

●耐震性能
2.5倍耐力壁(接合金物 構造用合板)1箇所設置
4.5倍耐力壁(二つ割り筋交い及び接合金物 構造用合板)5箇所設置

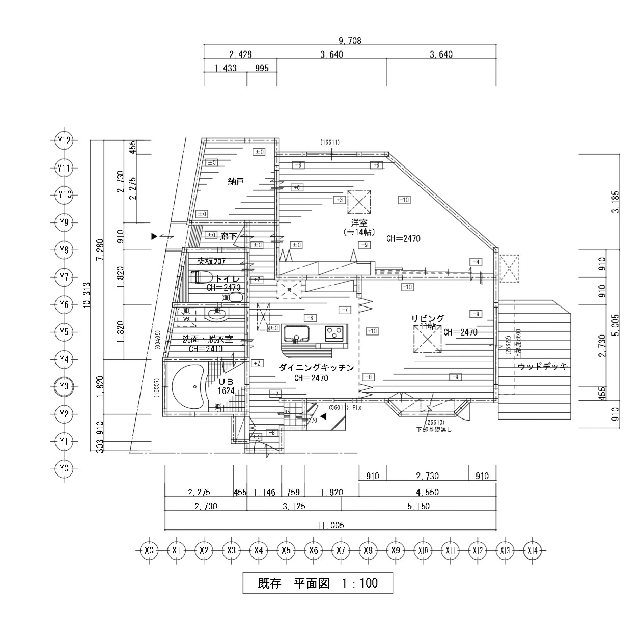
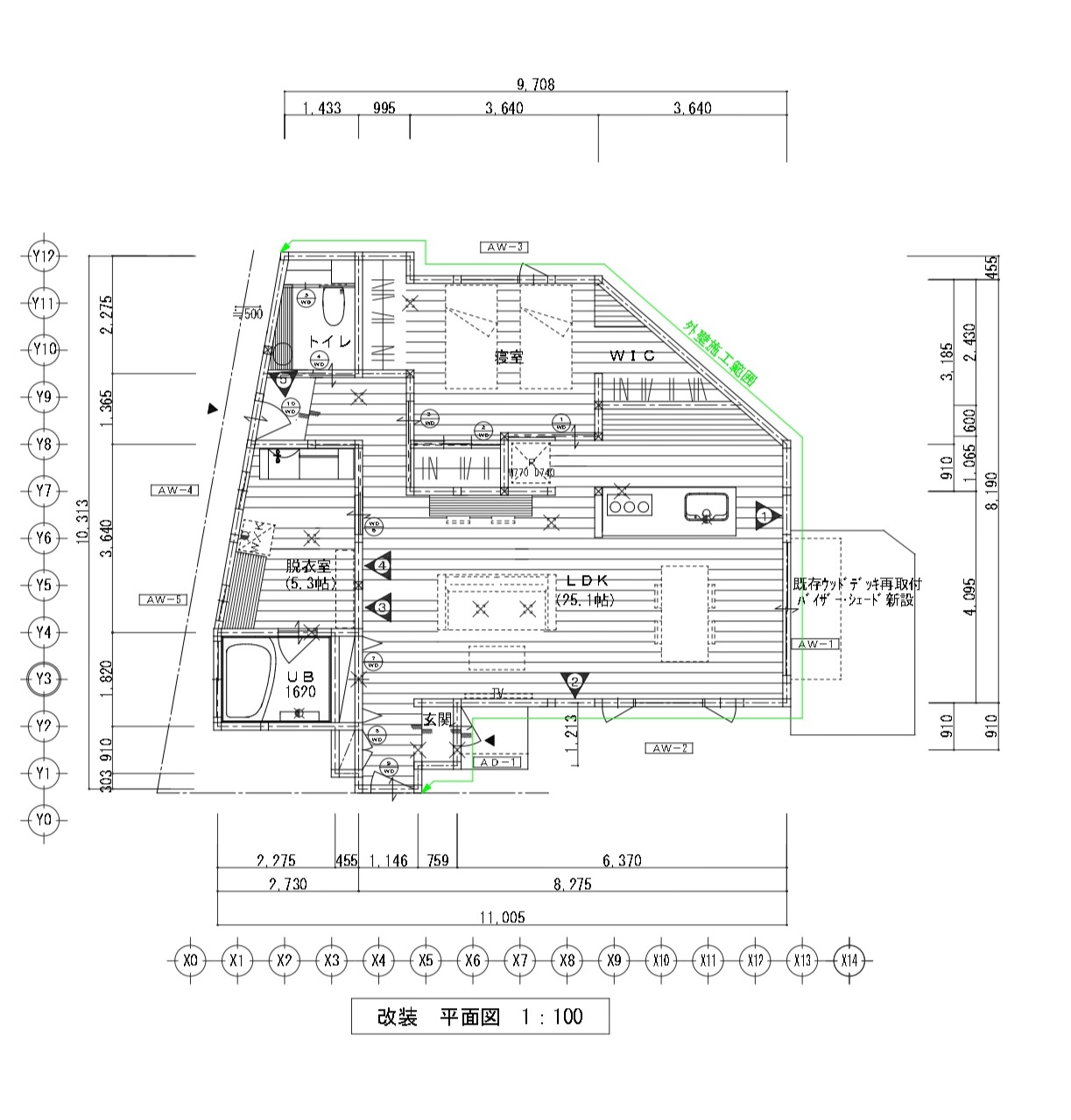
間取り Plan

リノベーション前

  • “安心して暮らし続けられる終の棲家”へ

    リノベーション前

リノベーション後

  • “安心して暮らし続けられる終の棲家”へ

    リノベーション後

物件概要

所在地
山梨県富士河口湖町
敷地面積
186.41㎡(56.4坪)
延床面積
85.78㎡(25.94坪)
構造
木造平屋建て
既存建築年
2004年(築21年)
改修竣工年月
2025年10月
省エネ基準地域区分
4地域
断熱性能
UA値 改修後0.43w/㎡・K
耐震性能
上部構造評点 改修前0.362 ⇒ 改修後1.17

企業紹介

企業名
株式会社KEN建築工房
Webサイト
https://mokureism.com/
コメント

家をなおそうとする理由は様々ですが、
「ずっと快適でずっと安心な暮らし」を支える土台となるのが
耐震性・断熱性を高める「性能向上リノベーション」です。

平均寿命が30年といわれている日本の住宅を長寿命化させることは、
住まい手の住宅にかける生涯コストの削減と共に、
CO2削減(地球温暖化抑止)にもつながります。
私たちは、住まい手の家への想いや生活の中で感じている問題点に向き合い、
適切な改善(リノベーション)案を、豊富な経験とノウハウを持ってご提案いたします。

グレードとは

性能向上リノベでは、断熱と耐震のそれぞれの現行基準を3段階に分類し、基準を策定。性能向上リノベーションがされた証として、必要なエビデンス情報を登録し、安心・快適な家であるお墨付きの証として「性能向上登録証」を発行しています。これからの時代に選ばれる、安心・快適な家を可視化します。

断熱

ランク UA値 断熱等級
0.46 6
0.60 5
0.87 4
耐熱の説明

耐震

ランク 上部構造評点 耐震等級
1.5以上 3
1.25~1.5
未満
2
1.0~1.25
未満
1
耐震の説明
  • 建物は、自立循環型モデル住宅(在来工法)を対象に、地域区分は、6・7地域(都心部を中心)に策定しています。
  • UA値(外皮平均熱貫流率)とは住宅の内部から床、外壁、屋根(天井)や開口部などを通過して外部へ逃げる熱量を外皮全体で平均した値。値が小さいほど熱が逃げにくく、省エネルギー性能が高いことを示します。
  • 上部構造とは壁や柱など家の構造物のこと。上部構造評点とは、震度6強の地震で建物が倒壊しないために必要な力を数値で表した必要耐力(Qr)に対する現状の耐力の割合を表します。
  • 既存木造住宅の上部構造評点1.0、1.25、1.5は、品確法においての耐震等級1、2、3レベルに相当します。