マンション地下1階の過酷な住環境を整えた性能向上リノベ

持ち家リノベーション・リフォーム

断熱

2,500〜3,000万円

2025年02月

現在の投票数

7 8

この作品に投票する 投票済み

リノベーション後 After

マンション地下1階の過酷な住環境を整えた性能向上リノベ

温かく柔らかい杉床に座り込み、百人一首を楽しむ。

マンション地下1階の過酷な住環境を整えた性能向上リノベ

調理担当の父の手伝いもしやすい回遊できるキッチン。生活感が出やすい冷蔵庫は裏動線に配置し、使い勝手も向上。

マンション地下1階の過酷な住環境を整えた性能向上リノベ

ベンチ、仏間、寝室、収納を兼ねた小上がり和室。ひとつの場所がいくつもの機能を持ち、空間を効率的に活用。化粧の柱には家族の身長が刻まれている。

マンション地下1階の過酷な住環境を整えた性能向上リノベ

収納とデスクは可動家具。マットレスを置いて、子ども3人それぞれの居場所を確保した。大きく開く引き戸と合わせて、間取りの変更も自在に。

マンション地下1階の過酷な住環境を整えた性能向上リノベ

玄関土間収納に荷物をまとめて暖簾でゆるく仕切る。インナードアを閉めると風除室として機能する。

マンション地下1階の過酷な住環境を整えた性能向上リノベ

父の書斎兼寝室。欄間で空気が抜ける。中庭の湿気が入らなくなり、安心して過ごせる。

リノベーション前 Before

  • マンション地下1階の過酷な住環境を整えた性能向上リノベ

    リビングは壁で仕切られ光が届かず、昼も常に照明が必要だった。床も冷たくジョイントマットがないと過ごせない。

  • マンション地下1階の過酷な住環境を整えた性能向上リノベ

    躯体で囲まれた和室は女性4人の寝室。冬は躯体からのふく射熱で冷え込み、夏はテラスの湿気が入り込み不快。結露やカビの発生もあり、寝るのが不安だった。

  • マンション地下1階の過酷な住環境を整えた性能向上リノベ

    テラスに面した洋室は3人分の学習机を並べて勉強部屋に。しかし寒さのため、暖房を付けたリビングで勉強していた。

  • マンション地下1階の過酷な住環境を整えた性能向上リノベ

    中庭に面した父の部屋。梅雨時は中庭の植栽や苔から強烈な湿気が入り込み、除湿機を稼働しても不快であった。室内とクローゼットにカビが発生。

  • マンション地下1階の過酷な住環境を整えた性能向上リノベ

    行き止まりのキッチン。利用頻度が高いにも関わらず窮屈で使いにくい。父が調理中は冷蔵庫のものを取るのもひと苦労。

  • マンション地下1階の過酷な住環境を整えた性能向上リノベ

    南西側テラスは、道路面までの擁壁と2m高さの生け垣が立ち上がり、午後数時間の貴重な西日すら遮ってしまう。常に薄暗い。

リノベーション施工中 Process

  • マンション地下1階の過酷な住環境を整えた性能向上リノベ

    天井・壁には吹付硬質ウレタンで断熱補強。

  • マンション地下1階の過酷な住環境を整えた性能向上リノベ

    ピンを刺して厚さを確認。壁は55mm。天井は30mm。

  • マンション地下1階の過酷な住環境を整えた性能向上リノベ

    床には30mmフェノールフォームを敷き詰める。

  • マンション地下1階の過酷な住環境を整えた性能向上リノベ

    既存窓には内窓Low-Eペア(アルゴンガス入)ガラスを設置。冬季の計測(サーモグラフィ)で、
    外気5度→既存窓の表面温度12度→内窓の表面温度20度→断熱ブラインドの表面温度23度→室温24度であった。

  • マンション地下1階の過酷な住環境を整えた性能向上リノベ

    換気計画として、2箇所の給気口からダクトで外気を誘引し、寒冷・高湿度対策をした。

  • マンション地下1階の過酷な住環境を整えた性能向上リノベ

    天井カセットエアコン1台で、夏は天井から冷房が、冬は床下から暖房が吹き出すダクト式全室空調システムを導入。

技術的なポイント Point

壁:吹付硬質ウレタンフォーム55mm
天井:吹付硬質ウレタンフォーム30mm
床:ネオマフォーム30mm
内窓:Low-Eペアガラス(アルゴンガス入) プラマードU(YKK AP)

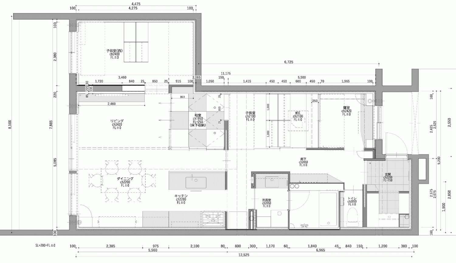
間取り Plan

リノベーション前

  • マンション地下1階の過酷な住環境を整えた性能向上リノベ

    冬はテラス側に西日が僅かに入るが、壁で仕切られ暖かさを感じられない。周囲を集会室・共有廊下で囲まれ、界壁躯体からの冷気、床下スラブからの底冷えが伝わり、数値以上に寒さが過酷であった。暖房を入れても重ね着して過ごしていた。

  • マンション地下1階の過酷な住環境を整えた性能向上リノベ

    実質地下一階に位置する住戸。空気が滞り湿気が抜けない。中庭の植栽や苔などが更に湿気を生み、給気口から入り込んでいた。

  • マンション地下1階の過酷な住環境を整えた性能向上リノベ

    擁壁と、道路面から2m高さの生け垣が日差しを遮る。冬季は生け垣越しの直射光(西日のみ)が少ししか入らない。

リノベーション後

  • マンション地下1階の過酷な住環境を整えた性能向上リノベ

    断熱施工と、全室空調による全面床暖房状態で暖かくなったLDKは、家族全員がくつろげる空間に。二列型キッチンで人も空気も回遊できる家事動線を確保。玄関土間には大容量収納を設け風除室的に断熱。可動家具で子どもたちそれぞれの居場所も作り出すことができた。

  • マンション地下1階の過酷な住環境を整えた性能向上リノベ

    冷暖房は全室空調システムを導入。天井カセットエアコンからダクトを回し、冷房は天井から、暖房は床下から吹き出す。経路切替はスイッチひとつで完結。

物件概要

所在地
東京都練馬区
延床面積
78.23㎡(23.7坪)
構造
RC造
既存建築年
2006年(築19年)
改修竣工年月
2025年02月
省エネ基準地域区分
6地域
断熱性能
UA値 改修前1.04w/㎡・K⇒改修後0.32w/㎡・K(改修前の3.25倍に向上)

企業紹介

企業名
株式会社Toivo
Webサイト
https://www.toivo.co.jp/
コメント

私たちToivoはマンション住居を心地よい木の空間にリノベーションすることを専門に、設計と施工を自社で行う工務店です。

グレードとは

性能向上リノベでは、断熱と耐震のそれぞれの現行基準を3段階に分類し、基準を策定。性能向上リノベーションがされた証として、必要なエビデンス情報を登録し、安心・快適な家であるお墨付きの証として「性能向上登録証」を発行しています。これからの時代に選ばれる、安心・快適な家を可視化します。

断熱

ランク UA値 断熱等級
0.46 6
0.60 5
0.87 4
耐熱の説明

耐震

ランク 上部構造評点 耐震等級
1.5以上 3
1.25~1.5
未満
2
1.0~1.25
未満
1
耐震の説明
  • 建物は、自立循環型モデル住宅(在来工法)を対象に、地域区分は、6・7地域(都心部を中心)に策定しています。
  • UA値(外皮平均熱貫流率)とは住宅の内部から床、外壁、屋根(天井)や開口部などを通過して外部へ逃げる熱量を外皮全体で平均した値。値が小さいほど熱が逃げにくく、省エネルギー性能が高いことを示します。
  • 上部構造とは壁や柱など家の構造物のこと。上部構造評点とは、震度6強の地震で建物が倒壊しないために必要な力を数値で表した必要耐力(Qr)に対する現状の耐力の割合を表します。
  • 既存木造住宅の上部構造評点1.0、1.25、1.5は、品確法においての耐震等級1、2、3レベルに相当します。