選考委員賞

神奈川県横浜市 【祖父母から孫へ世代を繋ぐ】-性能向上リノベーション-

持ち家リノベーション・リフォーム

耐震+断熱

3,000万円

2025年06月

リノベーション後 After

神奈川県横浜市 【祖父母から孫へ世代を繋ぐ】-性能向上リノベーション-

植栽や瓦は既存の物を使用

神奈川県横浜市 【祖父母から孫へ世代を繋ぐ】-性能向上リノベーション-

階段は既存の物を利用

神奈川県横浜市 【祖父母から孫へ世代を繋ぐ】-性能向上リノベーション-

洋間との仕切りをなくし、広々としたLDKになりました

神奈川県横浜市 【祖父母から孫へ世代を繋ぐ】-性能向上リノベーション-

仕切りをなくしたことで、部屋全体が明るくなりました

神奈川県横浜市 【祖父母から孫へ世代を繋ぐ】-性能向上リノベーション-

水回りはシンプルで使いやすさを重視

神奈川県横浜市 【祖父母から孫へ世代を繋ぐ】-性能向上リノベーション-

二階各部屋の扉も既存の物を利用

リノベーション前 Before

  • 神奈川県横浜市 【祖父母から孫へ世代を繋ぐ】-性能向上リノベーション-

    和風テイストの外観

  • 神奈川県横浜市 【祖父母から孫へ世代を繋ぐ】-性能向上リノベーション-

    引き戸の玄関

  • 神奈川県横浜市 【祖父母から孫へ世代を繋ぐ】-性能向上リノベーション-

    階段は再利用しました

  • 神奈川県横浜市 【祖父母から孫へ世代を繋ぐ】-性能向上リノベーション-

    リビングと仕切られた洋間

  • 神奈川県横浜市 【祖父母から孫へ世代を繋ぐ】-性能向上リノベーション-

    洗面と浴室が繋がっていて、プライバシーが配慮されていない

  • 神奈川県横浜市 【祖父母から孫へ世代を繋ぐ】-性能向上リノベーション-

    二階の各部屋のドアは再利用しました

リノベーション施工中 Process

  • 神奈川県横浜市 【祖父母から孫へ世代を繋ぐ】-性能向上リノベーション-

    解体工事中

  • 神奈川県横浜市 【祖父母から孫へ世代を繋ぐ】-性能向上リノベーション-

    金物補強工事

  • 神奈川県横浜市 【祖父母から孫へ世代を繋ぐ】-性能向上リノベーション-

    床断熱施工中

  • 神奈川県横浜市 【祖父母から孫へ世代を繋ぐ】-性能向上リノベーション-

    壁断熱施工後

  • 神奈川県横浜市 【祖父母から孫へ世代を繋ぐ】-性能向上リノベーション-

    気密シート施工後

  • 神奈川県横浜市 【祖父母から孫へ世代を繋ぐ】-性能向上リノベーション-

    化粧筋交い設置後

技術的なポイント Point

断熱性能
屋根/ 高性能グラスウール16K t=300mm
壁/ 高性能グラスウール16K t=105mm ミラフォームラムダ t=40mm(室内)
床/ ミラフォームラムダ t=180mm
気密シート/ ウルト社製品仕様
窓/ 北・東・西面 プラマード全個所設置
南面 APW330
玄関 ヴェナートD30

外部仕様
屋根/ 瓦のため既存のまま
外壁/ 既存モルタル壁の塗り替え

室内仕様
壁・天井/ アレス漆喰(ローラ塗り) 自社オリジナル杉板張り
床材/北海道産ナラ

耐震性能
既存に対して金物補強のみで対処

間取り Plan

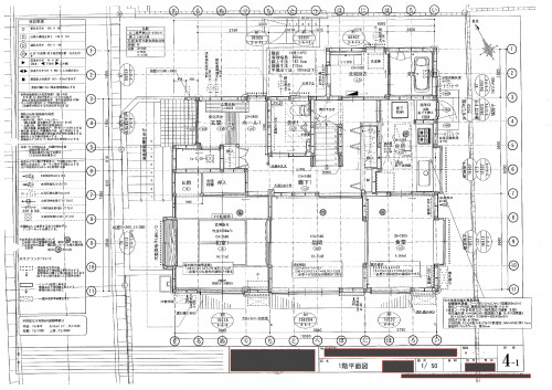
リノベーション前

  • 神奈川県横浜市 【祖父母から孫へ世代を繋ぐ】-性能向上リノベーション-

    リノベーション前の1階図面

  • 神奈川県横浜市 【祖父母から孫へ世代を繋ぐ】-性能向上リノベーション-

    リノベ―ジョン前の2階図面

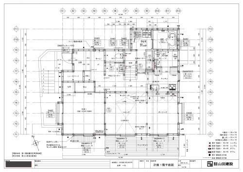
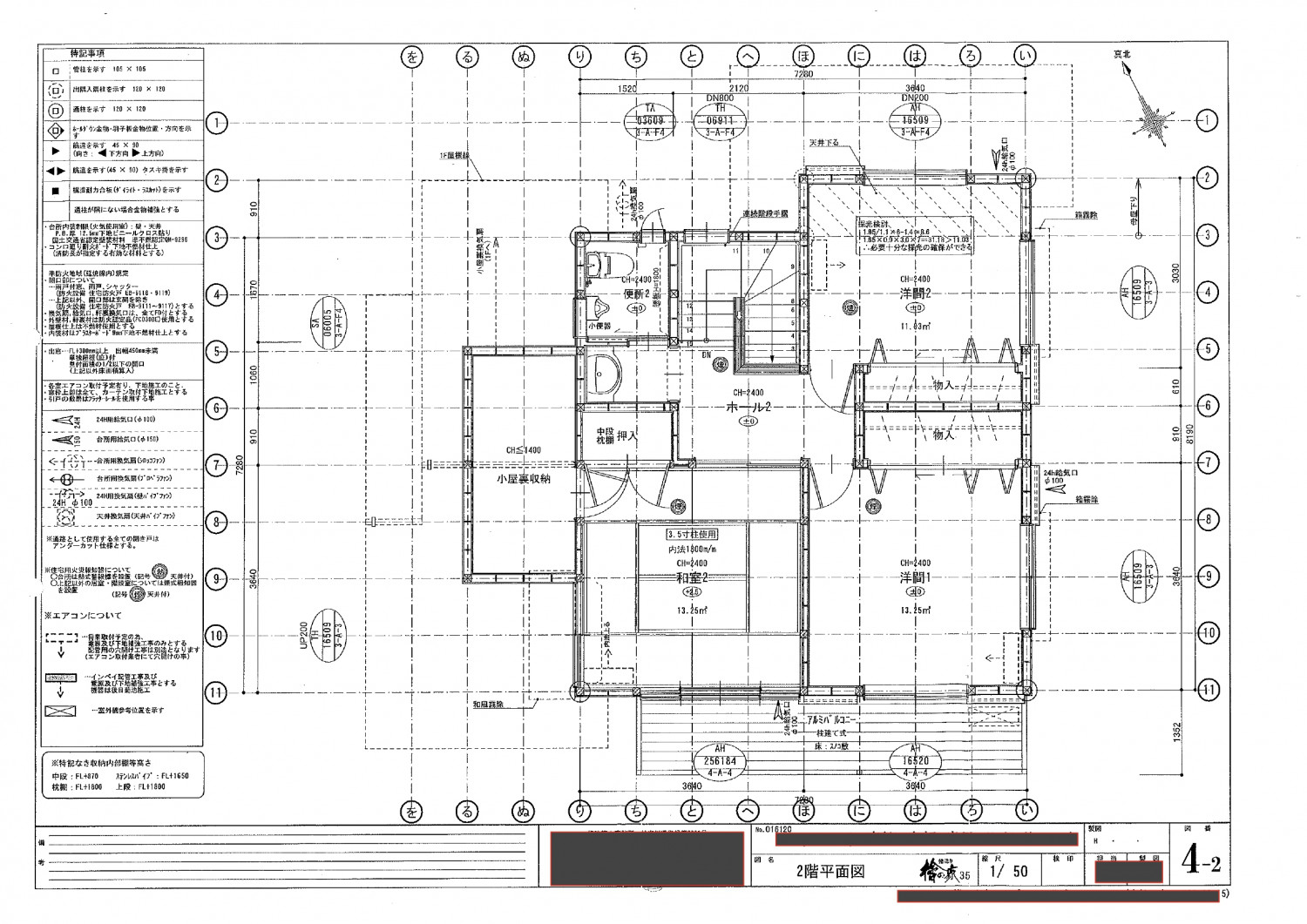
リノベーション後

  • 神奈川県横浜市 【祖父母から孫へ世代を繋ぐ】-性能向上リノベーション-

    リノベーション後1階図面

  • 神奈川県横浜市 【祖父母から孫へ世代を繋ぐ】-性能向上リノベーション-

    リノベーション後2階図面

物件概要

所在地
神奈川県横浜市
敷地面積
199.11㎡(60.19坪)
延床面積
134.97㎡(40.82坪)
構造
木造在来工法
既存建築年
2010年(築16年)
改修竣工年月
2025年06月
省エネ基準地域区分
6地域
断熱性能
UA値 改修前0.6w/㎡・K⇒改修後0.31w/㎡・K
耐震性能
上部構造評点 改修前1.37 ⇒ 改修後1.54
設計

株式会社山田建設

施工

株式会社山田建設

企業紹介

企業名
株式会社山田建設
Webサイト
https://yamada-kensetsu.com/

グレードとは

性能向上リノベでは、断熱と耐震のそれぞれの現行基準を3段階に分類し、基準を策定。性能向上リノベーションがされた証として、必要なエビデンス情報を登録し、安心・快適な家であるお墨付きの証として「性能向上登録証」を発行しています。これからの時代に選ばれる、安心・快適な家を可視化します。

断熱

ランク UA値 断熱等級
0.46 6
0.60 5
0.87 4
耐熱の説明

耐震

ランク 上部構造評点 耐震等級
1.5以上 3
1.25~1.5
未満
2
1.0~1.25
未満
1
耐震の説明
  • 建物は、自立循環型モデル住宅(在来工法)を対象に、地域区分は、6・7地域(都心部を中心)に策定しています。
  • UA値(外皮平均熱貫流率)とは住宅の内部から床、外壁、屋根(天井)や開口部などを通過して外部へ逃げる熱量を外皮全体で平均した値。値が小さいほど熱が逃げにくく、省エネルギー性能が高いことを示します。
  • 上部構造とは壁や柱など家の構造物のこと。上部構造評点とは、震度6強の地震で建物が倒壊しないために必要な力を数値で表した必要耐力(Qr)に対する現状の耐力の割合を表します。
  • 既存木造住宅の上部構造評点1.0、1.25、1.5は、品確法においての耐震等級1、2、3レベルに相当します。