東淀川区の家~築50年、思い出を受け継ぎ新たな世代へ、性能向上リノベーション~

持ち家リノベーション・リフォーム

耐震

4,000万円

2024年12月

現在の投票数

57 58

この作品に投票する 投票済み

リノベーション後 After

東淀川区の家~築50年、思い出を受け継ぎ新たな世代へ、性能向上リノベーション~

キッチンからリビングを見る

東淀川区の家~築50年、思い出を受け継ぎ新たな世代へ、性能向上リノベーション~

玄関ホールと組子障子

東淀川区の家~築50年、思い出を受け継ぎ新たな世代へ、性能向上リノベーション~

ホール 既存の階段と調和したデザイン

東淀川区の家~築50年、思い出を受け継ぎ新たな世代へ、性能向上リノベーション~

和室

東淀川区の家~築50年、思い出を受け継ぎ新たな世代へ、性能向上リノベーション~

LDK

東淀川区の家~築50年、思い出を受け継ぎ新たな世代へ、性能向上リノベーション~

洗面室

リノベーション前 Before

  • 東淀川区の家~築50年、思い出を受け継ぎ新たな世代へ、性能向上リノベーション~

    田の字型の和室より縁側と庭をみる

  • 東淀川区の家~築50年、思い出を受け継ぎ新たな世代へ、性能向上リノベーション~

    正面玄関

  • 東淀川区の家~築50年、思い出を受け継ぎ新たな世代へ、性能向上リノベーション~

    玄関ホール

  • 東淀川区の家~築50年、思い出を受け継ぎ新たな世代へ、性能向上リノベーション~

    階段

  • 東淀川区の家~築50年、思い出を受け継ぎ新たな世代へ、性能向上リノベーション~

    キッチン(北側)

リノベーション施工中 Process

  • 東淀川区の家~築50年、思い出を受け継ぎ新たな世代へ、性能向上リノベーション~

    解体の様子

  • 東淀川区の家~築50年、思い出を受け継ぎ新たな世代へ、性能向上リノベーション~

    解体の様子

  • 東淀川区の家~築50年、思い出を受け継ぎ新たな世代へ、性能向上リノベーション~

    耐力壁、筋交、構造用合板を施工
    柱頭柱脚金物

  • 東淀川区の家~築50年、思い出を受け継ぎ新たな世代へ、性能向上リノベーション~

    天井内断熱施工

  • 東淀川区の家~築50年、思い出を受け継ぎ新たな世代へ、性能向上リノベーション~

    制震ダンパー施工

  • 東淀川区の家~築50年、思い出を受け継ぎ新たな世代へ、性能向上リノベーション~

    高性能サッシ

技術的なポイント Point

断熱性能
床:ネオマフォーム45mm
天井:高性能グラスウール14K/155mm
窓:LIXIL/TW防火戸・サーモスⅡH・防火戸FG-H
ドア:LIXIL/リシェント玄関引戸 PG仕様

耐震性能
壁:筋交・構造用合板追加、柱頭柱脚金物
基礎:あと施工アンカー/M12ケミカルアンカー
制震ダンパー/住友ゴム/MAMORY/6カ所

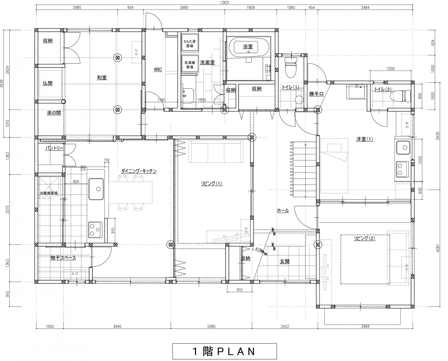
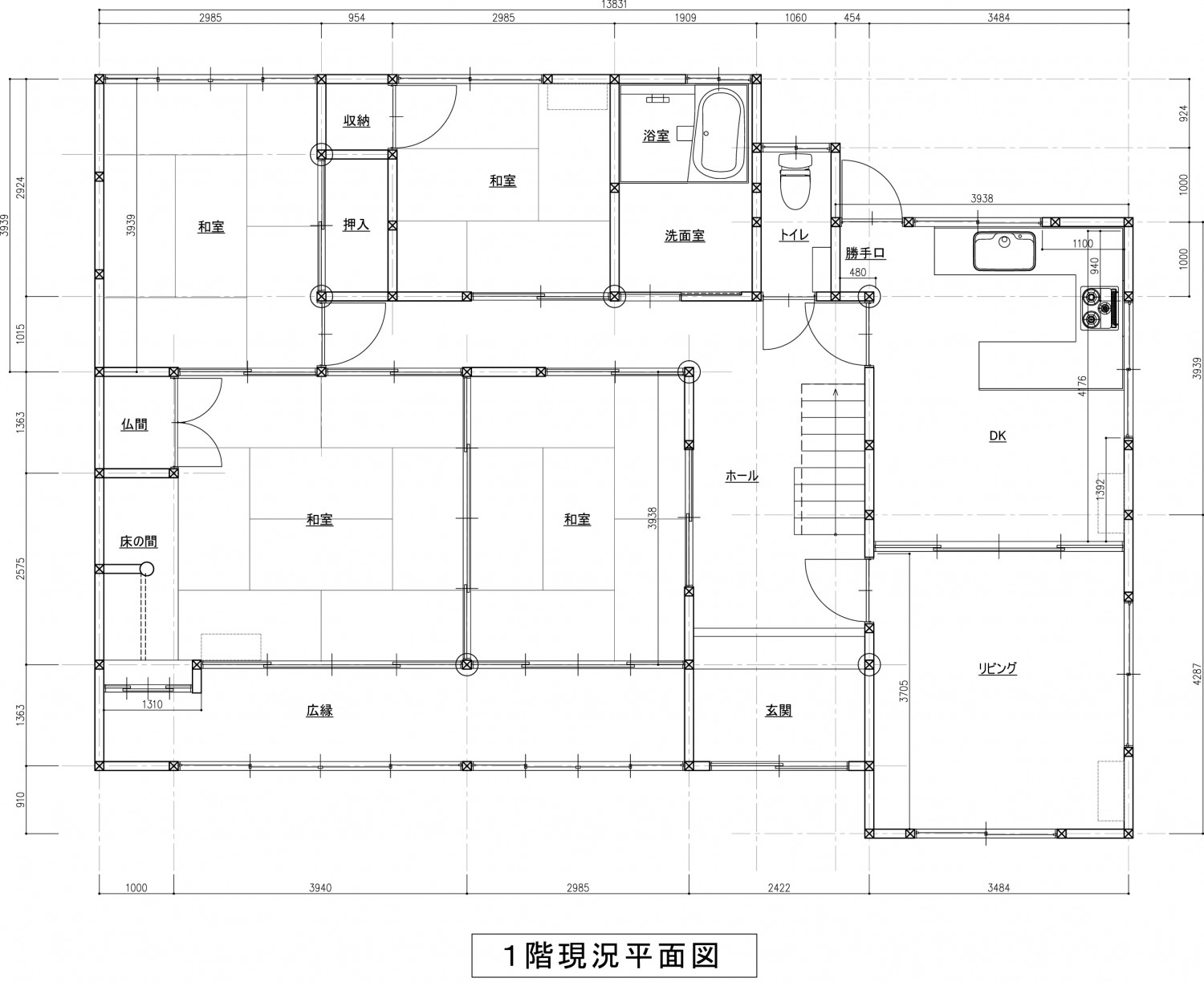
間取り Plan

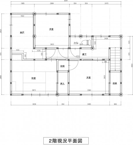
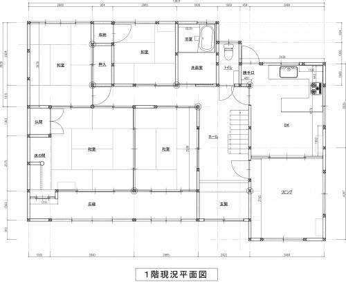
リノベーション前

  • 東淀川区の家~築50年、思い出を受け継ぎ新たな世代へ、性能向上リノベーション~

    1階現況平面図

  • 東淀川区の家~築50年、思い出を受け継ぎ新たな世代へ、性能向上リノベーション~

    2階現況平面図

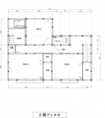
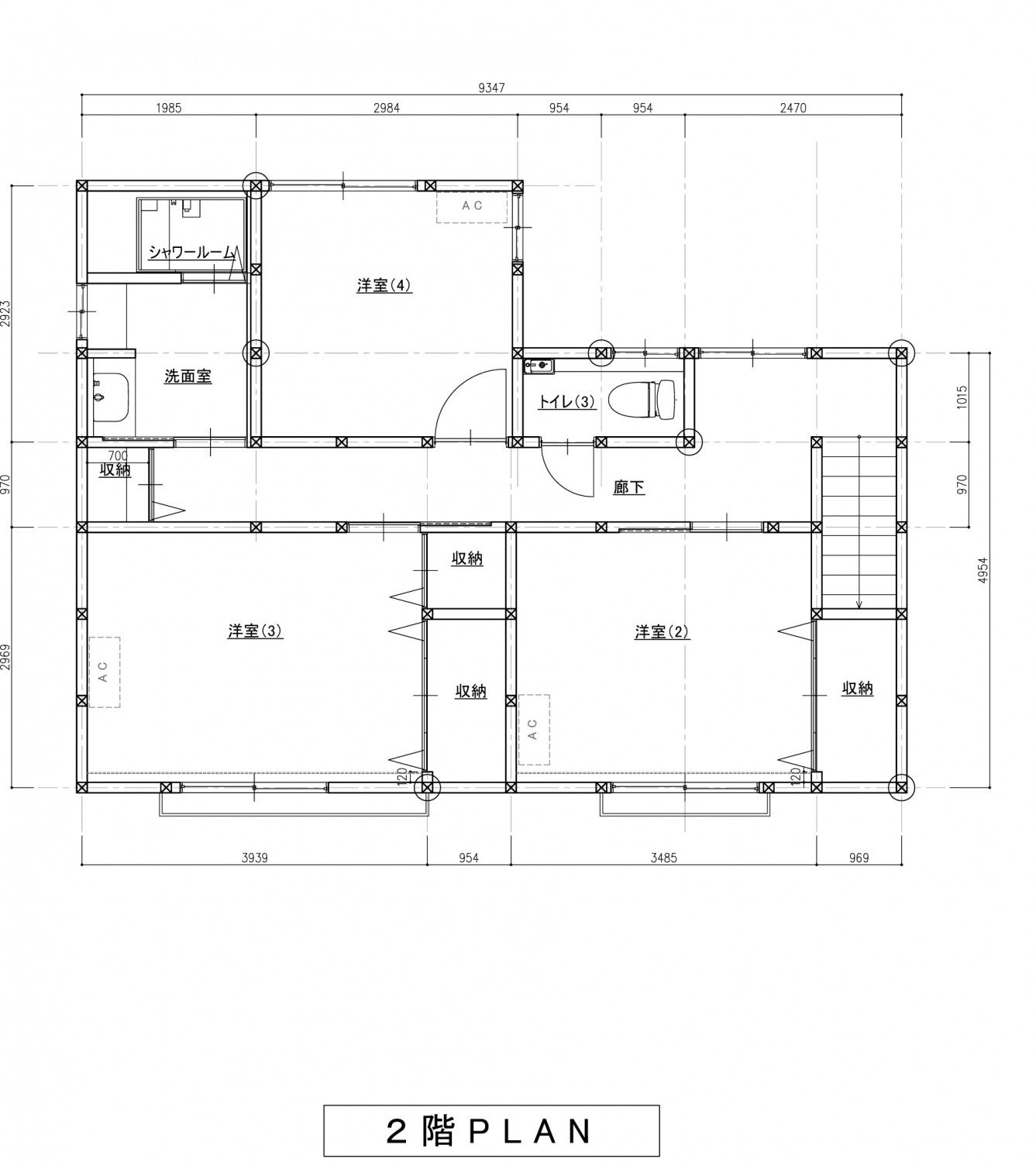
リノベーション後

  • 東淀川区の家~築50年、思い出を受け継ぎ新たな世代へ、性能向上リノベーション~

    1階プラン図

  • 東淀川区の家~築50年、思い出を受け継ぎ新たな世代へ、性能向上リノベーション~

    2階プラン図

物件概要

所在地
大阪府東淀川区
敷地面積
460㎡(139坪)
延床面積
178㎡(53坪)
構造
在来軸組構法
既存建築年
1974年(築51年)
改修竣工年月
2024年12月
省エネ基準地域区分
6地域
耐震性能
上部構造評点 改修前0.19 ⇒ 改修後1.0

企業紹介

企業名
株式会社アートリフォーム
Webサイト
https://www.artreform.com/

グレードとは

性能向上リノベでは、断熱と耐震のそれぞれの現行基準を3段階に分類し、基準を策定。性能向上リノベーションがされた証として、必要なエビデンス情報を登録し、安心・快適な家であるお墨付きの証として「性能向上登録証」を発行しています。これからの時代に選ばれる、安心・快適な家を可視化します。

断熱

ランク UA値 断熱等級
0.46 6
0.60 5
0.87 4
耐熱の説明

耐震

ランク 上部構造評点 耐震等級
1.5以上 3
1.25~1.5
未満
2
1.0~1.25
未満
1
耐震の説明
  • 建物は、自立循環型モデル住宅(在来工法)を対象に、地域区分は、6・7地域(都心部を中心)に策定しています。
  • UA値(外皮平均熱貫流率)とは住宅の内部から床、外壁、屋根(天井)や開口部などを通過して外部へ逃げる熱量を外皮全体で平均した値。値が小さいほど熱が逃げにくく、省エネルギー性能が高いことを示します。
  • 上部構造とは壁や柱など家の構造物のこと。上部構造評点とは、震度6強の地震で建物が倒壊しないために必要な力を数値で表した必要耐力(Qr)に対する現状の耐力の割合を表します。
  • 既存木造住宅の上部構造評点1.0、1.25、1.5は、品確法においての耐震等級1、2、3レベルに相当します。