グリーンスマートハウス

中古物件購入+リノベーション

耐震+断熱

2,800〜3,300万円

2024年09月

現在の投票数

29 30

この作品に投票する 投票済み

リノベーション後 After

グリーンスマートハウス

LDKの壁には吸放湿性が結露を防ぎカビ・ダニの発生を抑えることができるホタテの漆喰を使用。天井はロックウール化粧吸音板を採用したことで音の反響を吸収し響きにくい。

グリーンスマートハウス

洋室は子供部屋や来客用の寝室としても使えて落ち着いた雰囲気とした。

グリーンスマートハウス

落ち着いた照明と庭は昼間とは異な心地よい静寂と癒やしの空間に。

グリーンスマートハウス

集中してデスクワークが可能な書斎スペース。

グリーンスマートハウス

無印良品の収納を取り入れた洗面脱衣所。物干し竿、タオル掛けがある為洗濯から取り込み収納まで完結に。

グリーンスマートハウス

太陽光と蓄電池を設置し省エネ住宅に。

リノベーション前 Before

  • グリーンスマートハウス

    角地で庭があり、家の中に自然光がたくさん入り込む住宅。

  • グリーンスマートハウス

    リビングの隣には和室のダイニング。

  • グリーンスマートハウス

    広縁から入る和室。

  • グリーンスマートハウス

    居間からは離れたキッチンは、家族が協力して家事が行えるスペースだった。

  • グリーンスマートハウス

    タイルの浴室は、特に冬場が冷え外の冷気が入りやすい為ヒートショックを起こす可能性があった。

リノベーション施工中 Process

  • グリーンスマートハウス

    シロアリ被害のある柱を取替、新たな間取りに合わせて柱を増設。

  • グリーンスマートハウス

    既存の基礎にあと施工アンカー鉄筋を緊結。

  • グリーンスマートハウス

    屋根の断熱はスタイロエース65mmを施工。

  • グリーンスマートハウス

    壁の断熱はスタイロエース50㎜、基礎の断熱はスタイロフォームAT50㎜を施工。

  • グリーンスマートハウス

    内部の壁・天井にはグラスウール100㎜を施工。

技術的なポイント Point

●断熱性能
基礎:スタイロフォームAT t=50㎜
外壁:スタイロエース t=50㎜
屋根:スタイロエース t=65㎜
天井・壁(内部):グラスウール t=100㎜
窓:APW430(YKK AP)
ドア:イノベストD50

●耐震性能
基礎:既存基礎にあと施工アンカー鉄筋で緊結
壁:筋交い追加および柱頭・柱脚部金物補強

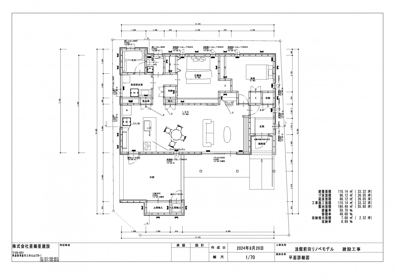
間取り Plan

リノベーション前

  • グリーンスマートハウス

    駐車場がなく、水まわりは家事効率の低い動線だった。
    2階は使われていない共同住宅だった。

リノベーション後

  • グリーンスマートハウス

    雨に濡れることなく買い物したものを取り込め、LDKを広くしたことで開放感のある空間に。
    各部屋ごとにたくさんの収納があり、見せる収納にすることで整理整頓の意識向上にも繋がる。

物件概要

所在地
青森県青森市
敷地面積
184.48㎡(55.80坪)
延床面積
86.12㎡(26.05坪)
構造
木造在来工法
既存建築年
1973年(築52年)
改修竣工年月
2024年09月
省エネ基準地域区分
3地域
断熱性能
UA値 改修後0.27w/㎡・K
耐震性能
上部構造評点 改修後1.58

企業紹介

企業名
アジアホームズ
Webサイト
https://www.asia1995.co.jp/
コメント

アジアホームズは青森を拠点に、革新的な住宅建築とリノベーションを手掛ける建設会社です。地域密着型のアプローチで、高品質な住宅を提供し、環境に配慮したスマートな建築手法を採用しています。青森県内外で数々の実績を持ち、地域社会に貢献する建築プロジェクトを展開しています。

グレードとは

性能向上リノベでは、断熱と耐震のそれぞれの現行基準を3段階に分類し、基準を策定。性能向上リノベーションがされた証として、必要なエビデンス情報を登録し、安心・快適な家であるお墨付きの証として「性能向上登録証」を発行しています。これからの時代に選ばれる、安心・快適な家を可視化します。

断熱

ランク UA値 断熱等級
0.46 6
0.60 5
0.87 4
耐熱の説明

耐震

ランク 上部構造評点 耐震等級
1.5以上 3
1.25~1.5
未満
2
1.0~1.25
未満
1
耐震の説明
  • 建物は、自立循環型モデル住宅(在来工法)を対象に、地域区分は、6・7地域(都心部を中心)に策定しています。
  • UA値(外皮平均熱貫流率)とは住宅の内部から床、外壁、屋根(天井)や開口部などを通過して外部へ逃げる熱量を外皮全体で平均した値。値が小さいほど熱が逃げにくく、省エネルギー性能が高いことを示します。
  • 上部構造とは壁や柱など家の構造物のこと。上部構造評点とは、震度6強の地震で建物が倒壊しないために必要な力を数値で表した必要耐力(Qr)に対する現状の耐力の割合を表します。
  • 既存木造住宅の上部構造評点1.0、1.25、1.5は、品確法においての耐震等級1、2、3レベルに相当します。