継受の家(けいじゅのいえ)

持ち家リノベーション・リフォーム

耐震+断熱

5,500〜6,000万円

2025年06月

現在の投票数

156 157

この作品に投票する 投票済み

リノベーション後 After

継受の家(けいじゅのいえ)

南面のすべての窓に外付けブラインド「ヴァレーマ」を取付け日射をコントロールしている。この夏も2.8kwのエアコンで快適に過ごした。

継受の家(けいじゅのいえ)

16帖の決して大きくないLDKだが、吹き抜けや庭とのつながりをつくることで感覚的な広さを感じることができる。バーベキューなどの庭遊びが好きな家族もLDKと庭を一体的に使うことができ外で過ごすことが増えたという。

継受の家(けいじゅのいえ)

LDKを広く使う工夫として壁付けL字型のキッチンも有効である。本来キッチンが来る場所にダイニングを置くことができ、その分リビング空間が広がる。白いタイルとマホガニ合板がすっきりとかっこいい印象をつくっている。

継受の家(けいじゅのいえ)

夏は南面の窓全体が道路向かいの竹林の緑でおおわれる。吹き抜けに置いた観葉植物も太陽の光を求めて窓のほうへ葉を向け始めた。吹き抜けの隣は子どもたちが遊ぶフリースペースとなっている。

継受の家(けいじゅのいえ)

玄関内部をほかの部屋と同じように床断熱にしたため、道路からの高さが高くなり、コンクリート土間などで仕上げると外壁とコンクリートが当たってくる箇所が出てくるので木製で仕上げた。歩くと軽い音が鳴って楽しいアプローチになった。

継受の家(けいじゅのいえ)

リビングに隣接するウッドデッキは、中心に焚火ができるスペースを設けたり、軒下にキッチンを作ったりと、外遊び好きの家族にはうれしい遊び場となった。また、1段上がった畑スペースでは季節の野菜やハーブなどを育てられるようになっている。

リノベーション前 Before

  • 継受の家(けいじゅのいえ)

    各面に窓があり明るさや風通しは申し分なかったが、熱的弱点になり暑さや結露に悩まされていた。
    近年の暑さで窓開けをする機会も減っていた。

  • 継受の家(けいじゅのいえ)

    南面は玄関へのアプローチと駐車場として使っていた。南側をリビングと庭にする計画になったため駐車スペースの行き場に困まった。

  • 継受の家(けいじゅのいえ)

    北面の大きな掃き出し窓。かつては淀川花火や神戸まで見渡せる眺望があったが、裏手が分譲住宅地となり眺望はなくなってしまった。

  • 継受の家(けいじゅのいえ)

    数年前にクロスと床を増し貼りする表面的なリフォームを施したので新しく見えるが、腰板や建具は新築当時のもの。

  • 継受の家(けいじゅのいえ)

    リビングに隣接した和室は子どものおもちゃ置き場。雨の日には洗濯部屋になっていた。

  • 継受の家(けいじゅのいえ)

    洗濯動線の悪さからリビングから2階へ上がる階段には、いつも洗濯物が置かれていた。

リノベーション施工中 Process

  • 継受の家(けいじゅのいえ)

    基礎解体前の写真。すべての壁の下に基礎が入っていたため無駄な箇所が多い。

  • 継受の家(けいじゅのいえ)

    基礎解体後の写真。将来の床下メンテナンスのことも考え、構造区画以外の基礎は全て撤去することにした。すっきりと動きやすくなった。

  • 継受の家(けいじゅのいえ)

    金物工法を用いて梁補強することで、極力既存の躯体を痛めることなく強度を増すことができる。

  • 継受の家(けいじゅのいえ)

    大引間に厚み90mmのネオマフォームを入れ、重ねて45mmのネオマフォームを追加し、総厚135mmの床断熱とした。

  • 継受の家(けいじゅのいえ)

    解体前の透湿防水紙の劣化がわかる写真。通気層の中にもかかわらず紫外線劣化が激しい。うろこ状にシートが透けていて意味をなしていない。

  • 継受の家(けいじゅのいえ)

    外部には吹込み木繊維断熱t=140を自社施工にて付加し、性能を高めた。粉塵で近隣に迷惑が掛からないように気をつかいながら施工した。

技術的なポイント Point

【断熱補強】
床:ネオマフォーム t=90・45
壁:シュタイコゼル(木繊維断熱材) t=105・140
屋根断熱:既存ウレタン吹付断熱・シュタイコゼル(木繊維断熱材)t=450
窓:APW430(YKK AP)・スマートウィン(佐藤の窓)
ドア:スペリオル(コシヤマ)

【耐震補強】
・耐震等級3 長期優良住宅認定 取得
・構造計画を考え、安定した構造として無駄を削減
・精密診断で実荷重を想定して評点1.5以上になるよう補強計画
・構造計算により柱梁の検討を行い、添え梁添え柱で補強
・制振装置evoltzで繰り返す大地震による躯体へのダメージを抑制

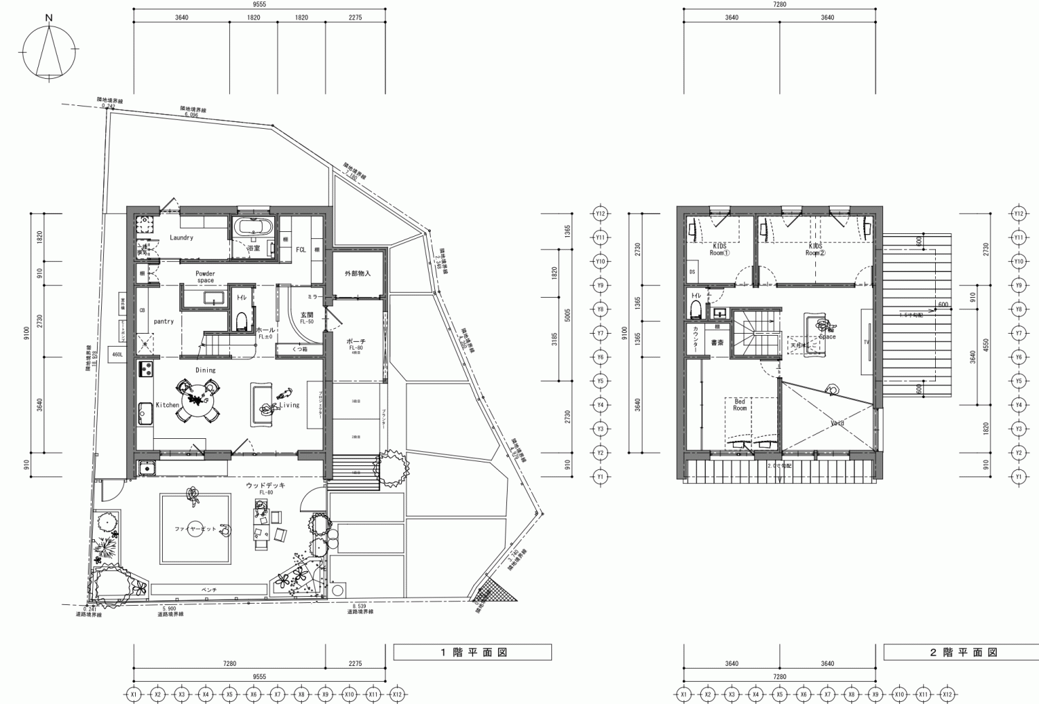
間取り Plan

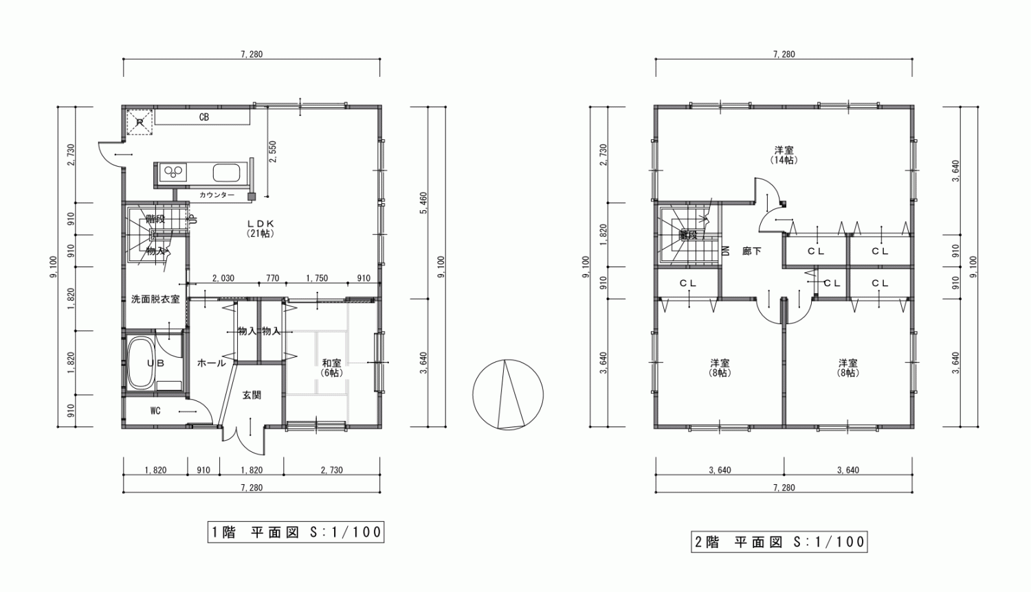
リノベーション前

  • 継受の家(けいじゅのいえ)

    整形のプランであったが、微妙な間崩れが多かった。
    四方向すべてに窓があり、明るさや通風はあったが、家具の配置などがやりづらく困っていた。
    また性能の低さから窓の結露やカビに悩まされていた。

リノベーション後

  • 継受の家(けいじゅのいえ)

    崩れていた構造区画を配置しなおし、田の字型のシンプルなプランへと改変した。
    東にあったリビングを南へ移動させて太陽光の熱を効率よく取得できるようにした。
    窓も全面的に入れ替え性能を向上させた。

物件概要

所在地
大阪府泉南郡熊取町
敷地面積
312.30㎡(94.47坪)
延床面積
129.62㎡(39.21坪)
構造
木造在来2階建て
既存建築年
2005年(築20年)
改修竣工年月
2025年06月
省エネ基準地域区分
6地域
断熱性能
UA値 改修前1.31w/㎡・K⇒改修後0.25w/㎡・K(改修前の5.24倍に向上)
耐震性能
上部構造評点 改修前0.53 ⇒ 改修後1.54

企業紹介

企業名
株式会社野澤工務店
Webサイト
https://agingwell-n.com/
コメント

「人も地域も社会も素敵に歳を重ねる未来を建てる。」
暮らしの1つ1つ全てが日本を支えている。
私たちは、家づくりを通してたくさんの暮らしをつくってきたからこそ、そうだと信じています。その暮らしの1つ1つが良くなって、人々が前を向いて繋がり、未来を良くする方向に全てがシフトしていく。

家や家族や日本社会、そして地球も安心安全かつ持続可能で健康的な状態で素敵に歳を重ねることができる未来を建てる。

それが野澤工務店の「建てる」仕事。

グレードとは

性能向上リノベでは、断熱と耐震のそれぞれの現行基準を3段階に分類し、基準を策定。性能向上リノベーションがされた証として、必要なエビデンス情報を登録し、安心・快適な家であるお墨付きの証として「性能向上登録証」を発行しています。これからの時代に選ばれる、安心・快適な家を可視化します。

断熱

ランク UA値 断熱等級
0.46 6
0.60 5
0.87 4
耐熱の説明

耐震

ランク 上部構造評点 耐震等級
1.5以上 3
1.25~1.5
未満
2
1.0~1.25
未満
1
耐震の説明
  • 建物は、自立循環型モデル住宅(在来工法)を対象に、地域区分は、6・7地域(都心部を中心)に策定しています。
  • UA値(外皮平均熱貫流率)とは住宅の内部から床、外壁、屋根(天井)や開口部などを通過して外部へ逃げる熱量を外皮全体で平均した値。値が小さいほど熱が逃げにくく、省エネルギー性能が高いことを示します。
  • 上部構造とは壁や柱など家の構造物のこと。上部構造評点とは、震度6強の地震で建物が倒壊しないために必要な力を数値で表した必要耐力(Qr)に対する現状の耐力の割合を表します。
  • 既存木造住宅の上部構造評点1.0、1.25、1.5は、品確法においての耐震等級1、2、3レベルに相当します。