地域と共に再生する住宅

中古物件購入+リノベーション

ゾーン断熱+耐震

3,500〜4,000万円

2025年04月

現在の投票数

49 50

この作品に投票する 投票済み

リノベーション後 After

地域と共に再生する住宅

くつろぎの間~食の間

地域と共に再生する住宅

畳コーナー

地域と共に再生する住宅

減築した既存土間庇

地域と共に再生する住宅

庭越し南外観

地域と共に再生する住宅

玄関収納

地域と共に再生する住宅

東玄関

リノベーション前 Before

  • 地域と共に再生する住宅

    南東和室

  • 地域と共に再生する住宅

    南東和室から縁側越しの庭

  • 地域と共に再生する住宅

    南西洋間

  • 地域と共に再生する住宅

    キッチン

  • 地域と共に再生する住宅

    2階東和室

  • 地域と共に再生する住宅

    東面外観

リノベーション施工中 Process

  • 地域と共に再生する住宅

    ヘッダー方式の配管

  • 地域と共に再生する住宅

    断熱工事
    基礎断熱で床下の温度差を軽減。

  • 地域と共に再生する住宅

    基礎工事
    アンカーにて既存基礎と一体化
    防湿シートの上にべた基礎とする事で、床下の環境を健全化

技術的なポイント Point

基礎断熱:ミラフォームΛ t=25,50
壁:デコスファイバー t=105
天井:デコスファイバー t=200
窓:APW330、エピソードⅡNEO
ドア:コンコードS30

基礎:べた基礎補強
壁:ハイベストウッドt9、構造用合板t12.5で補強、柱頭柱脚金物補強

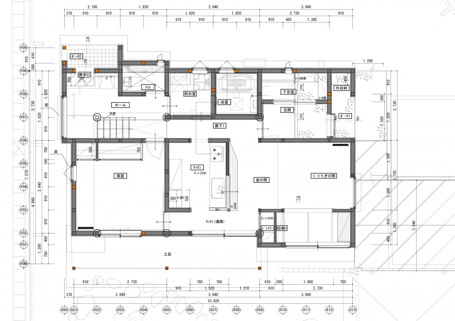
間取り Plan

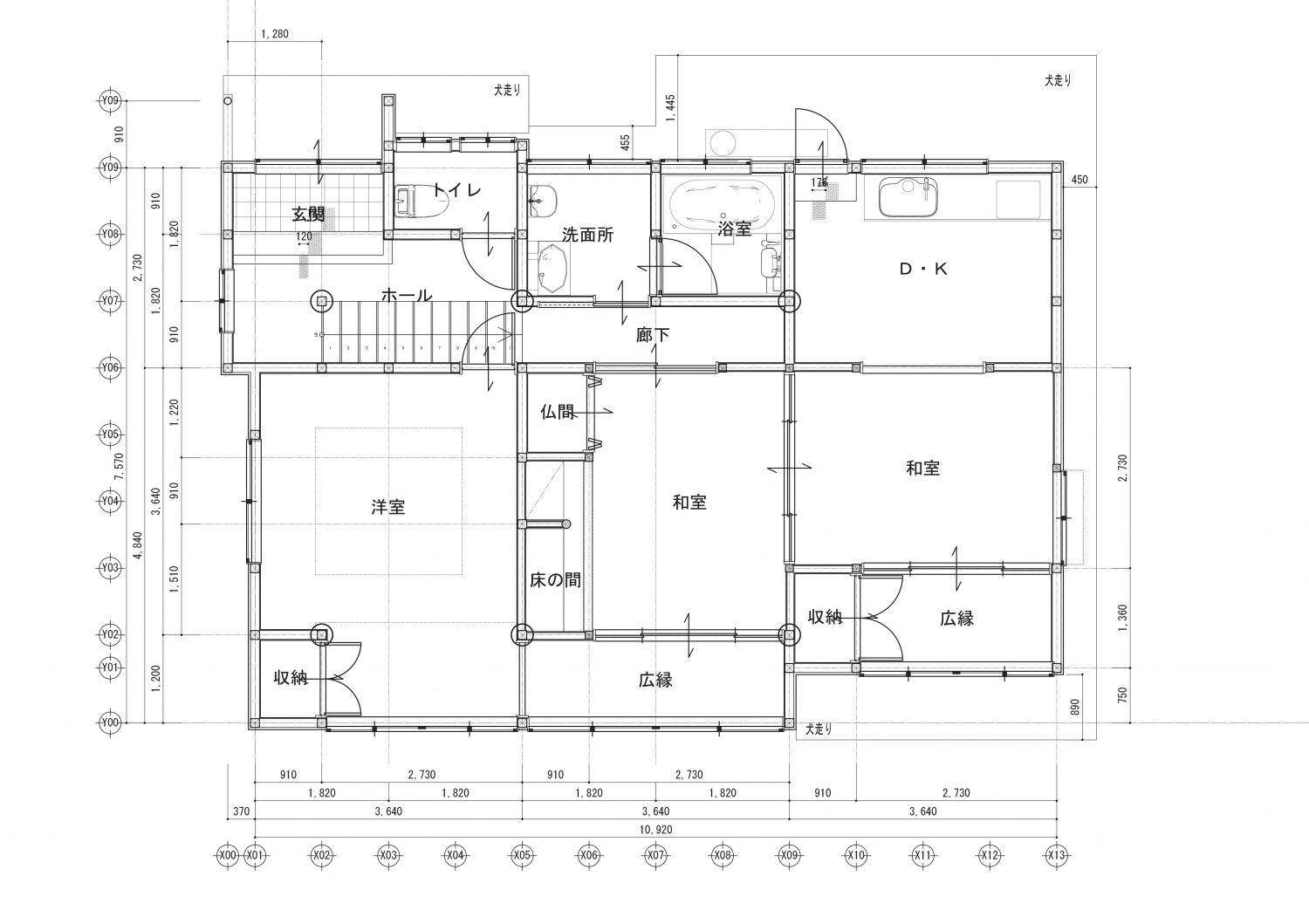
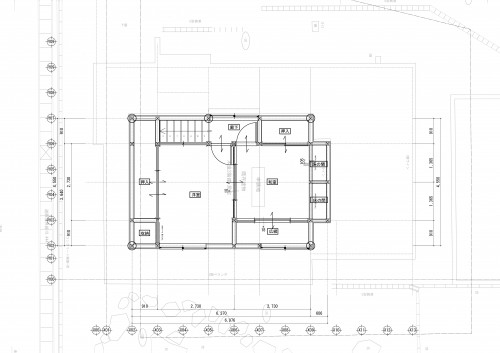
リノベーション前

  • 地域と共に再生する住宅

    1階平面図
    駐車場から離れた北西に玄関が配置されていた。南に部屋が3部屋、キッチンを含む水廻りが北に配置されていた。
    南には和風の庭が広がっており、庭を見てくつろぎたいと物件の決め手となった。

  • 地域と共に再生する住宅

    2階平面図
    後付けのベランダが南に設置されており、庇が伸びていたため部屋に入る日差しも弱く、明るさが取りにくかった。

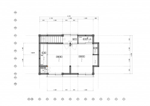
リノベーション後

  • 地域と共に再生する住宅

    1階平面図
    LDKの家族空間と主寝室を南に配置し、南にある和風の庭を眺めて過ごせる間取りとした。
    南に増築されていた縁側部分は減築し、以前の土間空間を再生。
    東の駐車スペースからアプローチしやすい北東に玄関を設け、余裕のある収納を設けた。
    家族空間に設けた畳の小上がり部分は家族の庭を見て過ごす空間でもあり、近くに暮らす家族との交流の場ともなるよう、外から腰が掛けやすい高さの窓になっている。
    来客時にキッチンが見えにくいよう障子で目隠しができるようにしている。

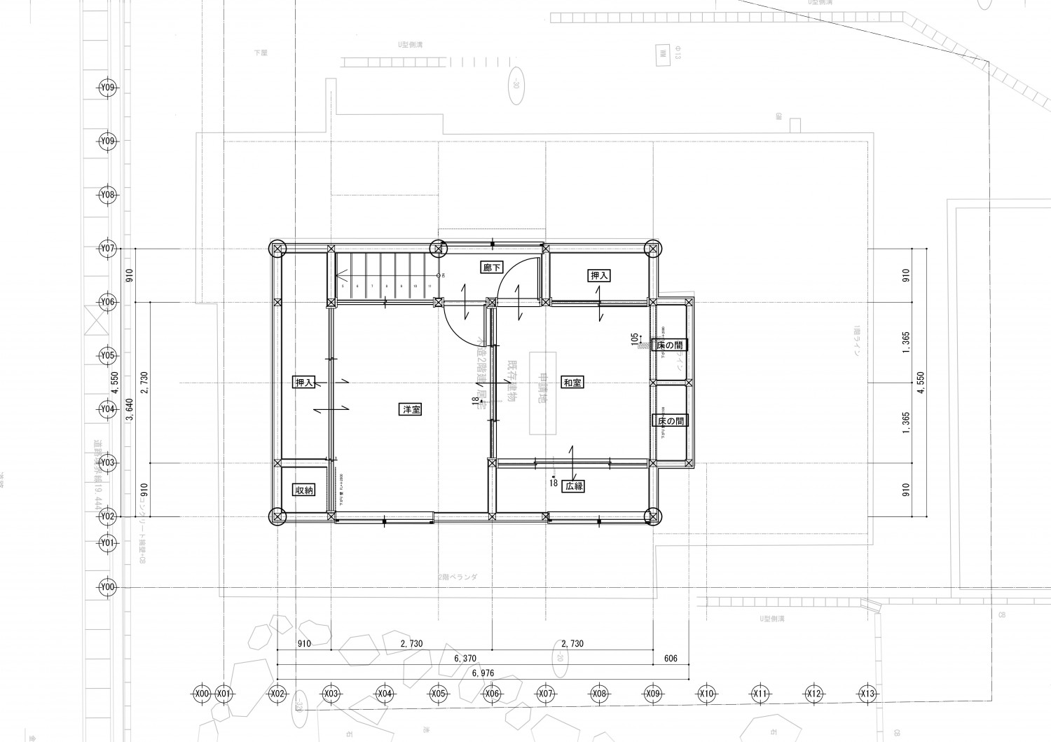
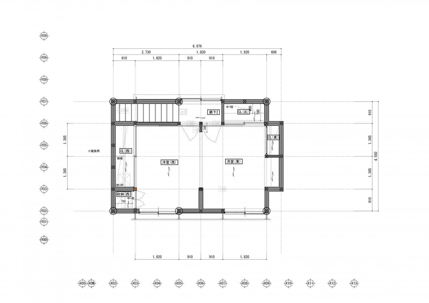
  • 地域と共に再生する住宅

    2階平面図
    床の間だったスペースを収納として活用し、建具で区切られていた2室は1部屋として使えるように開口を広げた。

物件概要

所在地
岐阜県本巣郡北方町
敷地面積
350.82㎡(106.12坪)
延床面積
104.48㎡(31.61坪)
構造
木造2階建て
既存建築年
1965年(築60年)
改修竣工年月
2025年04月
省エネ基準地域区分
6地域
改修部分断熱性能
UA値 改修前3.10w/㎡・K⇒改修後0.55w/㎡・K(改修前の5.6倍に向上)
耐震性能
上部構造評点 改修前0.4 ⇒ 改修後1.54
設計

山崎明、平尾恵

施工

株式会社WOODYYLIFE

企業紹介

企業名
株式会社WOODYYLIFE
Webサイト
https://woodylife.jp/
コメント

ウッディライフは、ひだまりほーむグループです。
お客様から、ひだまりほーむの品質の良い素材と施工技術で
「リフォームをお願いしたい」「フルリノベーションはできないか」というご相談を数多くいただき、リノベーション事業を手掛けるチームとして誕生しました。
ひだまりほーむの新築注文住宅の家づくりで培った経験を生かし、リノベーション事業においても「人づくり」「幸せづくり」を大切にした「心豊かな人生をつくる」サポートを致します。

グレードとは

性能向上リノベでは、断熱と耐震のそれぞれの現行基準を3段階に分類し、基準を策定。性能向上リノベーションがされた証として、必要なエビデンス情報を登録し、安心・快適な家であるお墨付きの証として「性能向上登録証」を発行しています。これからの時代に選ばれる、安心・快適な家を可視化します。

断熱

ランク UA値 断熱等級
0.46 6
0.60 5
0.87 4
耐熱の説明

耐震

ランク 上部構造評点 耐震等級
1.5以上 3
1.25~1.5
未満
2
1.0~1.25
未満
1
耐震の説明
  • 建物は、自立循環型モデル住宅(在来工法)を対象に、地域区分は、6・7地域(都心部を中心)に策定しています。
  • UA値(外皮平均熱貫流率)とは住宅の内部から床、外壁、屋根(天井)や開口部などを通過して外部へ逃げる熱量を外皮全体で平均した値。値が小さいほど熱が逃げにくく、省エネルギー性能が高いことを示します。
  • 上部構造とは壁や柱など家の構造物のこと。上部構造評点とは、震度6強の地震で建物が倒壊しないために必要な力を数値で表した必要耐力(Qr)に対する現状の耐力の割合を表します。
  • 既存木造住宅の上部構造評点1.0、1.25、1.5は、品確法においての耐震等級1、2、3レベルに相当します。