築59年の実家を住みやすい間取りに改善、快適な住まいへ

持ち家リノベーション・リフォーム

ゾーン断熱

1,500〜2,000万円

2025年07月

現在の投票数

3 4

この作品に投票する 投票済み

リノベーション後 After

築59年の実家を住みやすい間取りに改善、快適な住まいへ

隣の洋室へと続く空間にも合うような和室

築59年の実家を住みやすい間取りに改善、快適な住まいへ

掘り炬燵はそのまま再利用

築59年の実家を住みやすい間取りに改善、快適な住まいへ

キッチンの出窓部分だったサッシも入替え、より断熱性能をUPしました

築59年の実家を住みやすい間取りに改善、快適な住まいへ

居間と洋室をつなげ、広いLDK空間に

築59年の実家を住みやすい間取りに改善、快適な住まいへ

使っていなかった勝手口ドアを撤去し、スッキリとした明るく開放的なリビング空間

築59年の実家を住みやすい間取りに改善、快適な住まいへ

洗面化粧台を撤去し、明るい脱衣室へ

リノベーション前 Before

  • 築59年の実家を住みやすい間取りに改善、快適な住まいへ

    和室、床の間

  • 築59年の実家を住みやすい間取りに改善、快適な住まいへ

    コタツの間

  • 築59年の実家を住みやすい間取りに改善、快適な住まいへ

    キッチン

  • 築59年の実家を住みやすい間取りに改善、快適な住まいへ

    洋室

  • 築59年の実家を住みやすい間取りに改善、快適な住まいへ

    使わなくなった勝手口

  • 築59年の実家を住みやすい間取りに改善、快適な住まいへ

    窓を塞いでいた洗面化粧台

リノベーション施工中 Process

  • 築59年の実家を住みやすい間取りに改善、快適な住まいへ

    床断熱施工
    スタイロフォーム50㎜

  • 築59年の実家を住みやすい間取りに改善、快適な住まいへ

    壁・天井断熱施工
    ロックウール105㎜

  • 築59年の実家を住みやすい間取りに改善、快適な住まいへ

    壁・天井断熱施工
    ロックウール105㎜

  • 築59年の実家を住みやすい間取りに改善、快適な住まいへ

    壁・天井断熱施工
    ロックウール105㎜

技術的なポイント Point

床:スタイロフォーム t=50mm

壁:ロックウール t=105mm

天井:ロックウール t=105mm

窓:APW330(YKK AP)、マドリモ断熱窓 戸建用/樹脂フレーム(YKK AP)

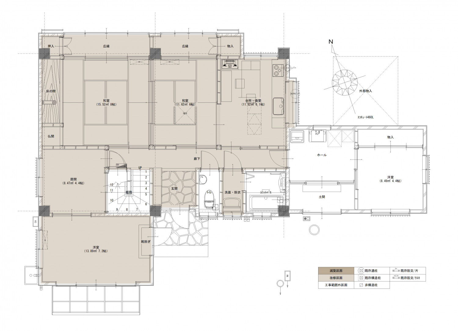
間取り Plan

リノベーション前

  • 築59年の実家を住みやすい間取りに改善、快適な住まいへ

    1階の一部を残した改修工事

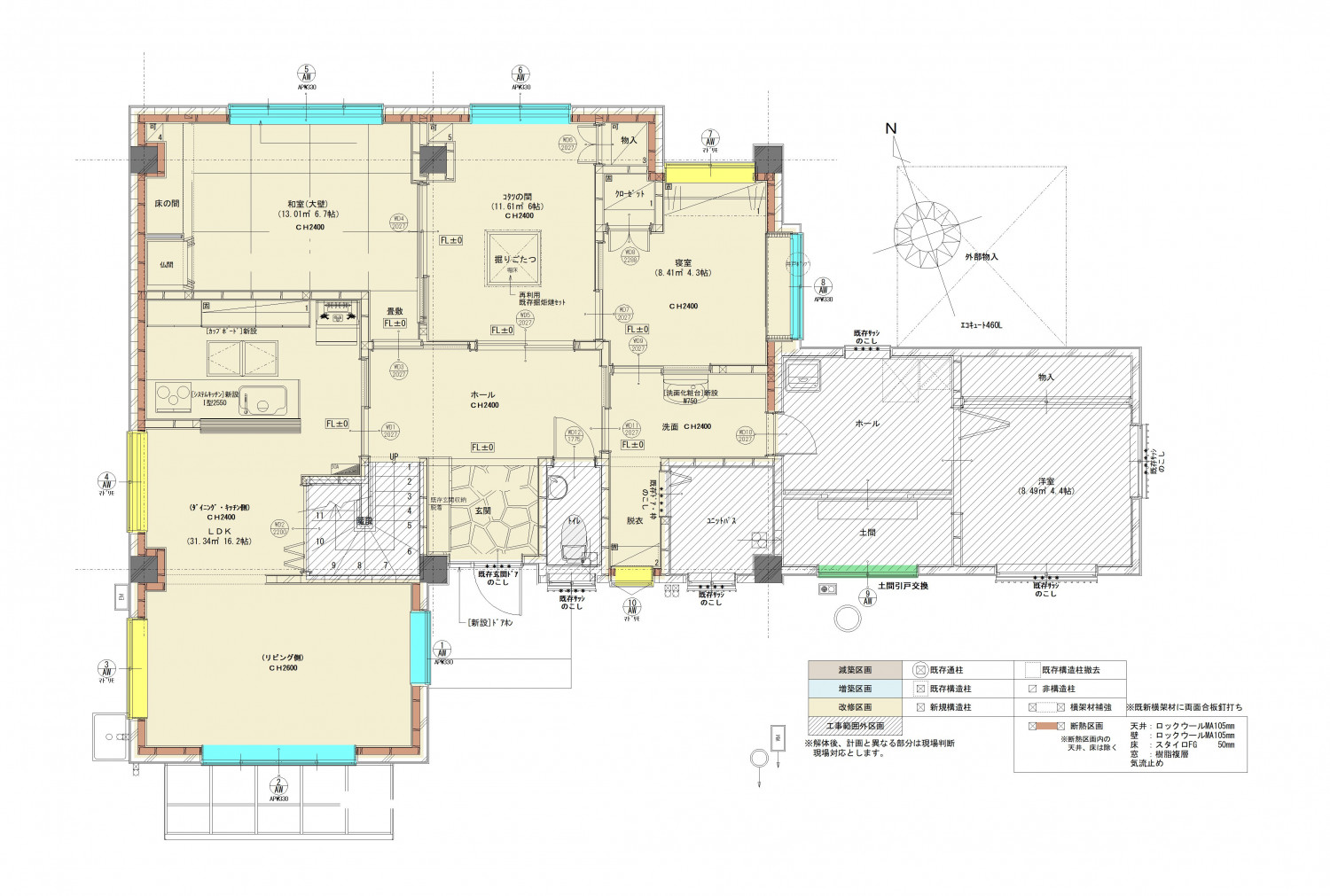
リノベーション後

  • 築59年の実家を住みやすい間取りに改善、快適な住まいへ

    居間と洋室をつなげ、LDKに。
    また寝室から洗面、浴室へと移動できるよう動線も考えた配置にしました。
    玄関ホールも広くし、各部屋にゆとりをもたせた空間をつくりました。

物件概要

所在地
福井県
延床面積
87.34㎡(26.42坪)
構造
鉄筋コンクリート造2階建
既存建築年
1966年(築59年)
改修竣工年月
2025年07月
省エネ基準地域区分
6地域
改修部分断熱性能
UA値 改修前3.61w/㎡・K⇒改修後1.0w/㎡・K

企業紹介

企業名
石友リフォームサービス株式会社
Webサイト
https://www.ishitomo-reform.co.jp/

グレードとは

性能向上リノベでは、断熱と耐震のそれぞれの現行基準を3段階に分類し、基準を策定。性能向上リノベーションがされた証として、必要なエビデンス情報を登録し、安心・快適な家であるお墨付きの証として「性能向上登録証」を発行しています。これからの時代に選ばれる、安心・快適な家を可視化します。

断熱

ランク UA値 断熱等級
0.46 6
0.60 5
0.87 4
耐熱の説明

耐震

ランク 上部構造評点 耐震等級
1.5以上 3
1.25~1.5
未満
2
1.0~1.25
未満
1
耐震の説明
  • 建物は、自立循環型モデル住宅(在来工法)を対象に、地域区分は、6・7地域(都心部を中心)に策定しています。
  • UA値(外皮平均熱貫流率)とは住宅の内部から床、外壁、屋根(天井)や開口部などを通過して外部へ逃げる熱量を外皮全体で平均した値。値が小さいほど熱が逃げにくく、省エネルギー性能が高いことを示します。
  • 上部構造とは壁や柱など家の構造物のこと。上部構造評点とは、震度6強の地震で建物が倒壊しないために必要な力を数値で表した必要耐力(Qr)に対する現状の耐力の割合を表します。
  • 既存木造住宅の上部構造評点1.0、1.25、1.5は、品確法においての耐震等級1、2、3レベルに相当します。