ガレージから生まれた、家族の快適空間

持ち家リノベーション・リフォーム

ゾーン断熱

1,950〜2,050万円

2024年12月

現在の投票数

5 6

この作品に投票する 投票済み

リノベーション後 After

ガレージから生まれた、家族の快適空間

改修後のLDKの様子。明るいインテリアと、快適に過ごせる環境で、1日のほとんどをここにいるそうです。

ガレージから生まれた、家族の快適空間

キッチンは家族との会話が弾む対面式に。ゴミ箱スペースも設け、すっきり暮らせるようになりました。

ガレージから生まれた、家族の快適空間

キッチン横は食器棚を置いた収納スペース。
日用品から掃除機まで散らかりがちなものをしっかり収納できる空間ができました。

ガレージから生まれた、家族の快適空間

冬でも快適な水回りスペース。
脱衣室には、しっかり収納スペースを確保し、ストックやタオル、家族分の着替えなどを十分に収納できます。

ガレージから生まれた、家族の快適空間

脱衣室前にある洗面室、兼、サニタリールーム。お施主様のお気に入りのクロスが清潔感を演出します。

ガレージから生まれた、家族の快適空間

他の部屋と同じように、トイレもブルーを基調にコーディネート。
シンプルナチュラルに仕上がりました。

リノベーション前 Before

  • ガレージから生まれた、家族の快適空間

    改修前のDKスペース。窓に向いたキッチンで、収納が少ないのが悩みでした。

  • ガレージから生まれた、家族の快適空間

    DKの天井には雨漏りの跡がついていました。

  • ガレージから生まれた、家族の快適空間

    和室の奥にあった廊下スペースの雨漏り。何も置けないスペースとなっていました。

  • ガレージから生まれた、家族の快適空間

    トイレは以前から和式タイプ。今後の生活に備え、新しくしたいと考えていました。

  • ガレージから生まれた、家族の快適空間

    改修前の洗面・お風呂の様子。キレイに使っておられるのが分かります。

  • ガレージから生まれた、家族の快適空間

    改修前にあったインナーガレージ。とても便利でしたが、より良い生活のために、大きく間取りを変更しました。

リノベーション施工中 Process

  • ガレージから生まれた、家族の快適空間

    床断熱の様子。

  • ガレージから生まれた、家族の快適空間

    床断熱の様子。

  • ガレージから生まれた、家族の快適空間

    UB周りの断熱の様子。

  • ガレージから生まれた、家族の快適空間

    壁・天井の断熱と、サッシ取付。

  • ガレージから生まれた、家族の快適空間

    壁・天井の断熱。

  • ガレージから生まれた、家族の快適空間

    壁・天井の断熱。

技術的なポイント Point

床:スタイロフォームFG t=50mm
壁:ロックウールMA t=105mm
天井:ロックウールMA t=105mm
窓:APW330(331) 遮熱Low-E アルゴンガス
ゾーン断熱とするために、1階天井(2階直下)にも断熱材を敷設

間取り Plan

リノベーション前

  • ガレージから生まれた、家族の快適空間

    改修前の1階平面図。和室奥の廊下の雨漏りがひどく、湿気にも悩んでいました。

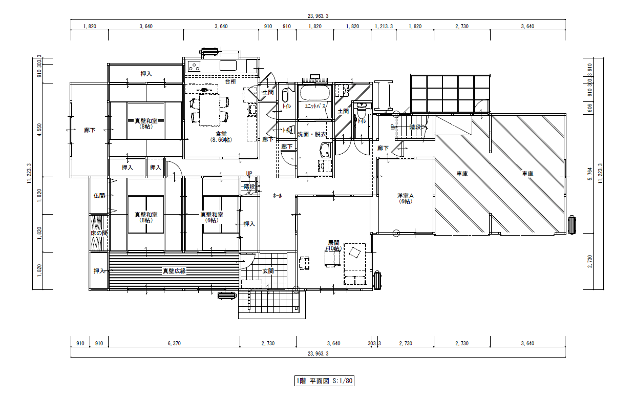
リノベーション後

  • ガレージから生まれた、家族の快適空間

    改修後の平面詳細図。
    大きく位置を変更したLDKエリアと、UB・洗面等を含んだ水回りエリアをゾーン断熱工事を行いました。

物件概要

所在地
富山県富山市
敷地面積
667.28㎡(201.85坪)
延床面積
57.41㎡(17.36坪)
構造
木造在来2階建て
既存建築年
1971年(築54年)
改修竣工年月
2024年12月
省エネ基準地域区分
5地域
改修部分断熱性能
UA値 改修前2.01w/㎡・K⇒改修後0.60w/㎡・K

企業紹介

企業名
石友リフォームサービス株式会社
Webサイト
https://www.ishitomo-reform.co.jp/

グレードとは

性能向上リノベでは、断熱と耐震のそれぞれの現行基準を3段階に分類し、基準を策定。性能向上リノベーションがされた証として、必要なエビデンス情報を登録し、安心・快適な家であるお墨付きの証として「性能向上登録証」を発行しています。これからの時代に選ばれる、安心・快適な家を可視化します。

断熱

ランク UA値 断熱等級
0.46 6
0.60 5
0.87 4
耐熱の説明

耐震

ランク 上部構造評点 耐震等級
1.5以上 3
1.25~1.5
未満
2
1.0~1.25
未満
1
耐震の説明
  • 建物は、自立循環型モデル住宅(在来工法)を対象に、地域区分は、6・7地域(都心部を中心)に策定しています。
  • UA値(外皮平均熱貫流率)とは住宅の内部から床、外壁、屋根(天井)や開口部などを通過して外部へ逃げる熱量を外皮全体で平均した値。値が小さいほど熱が逃げにくく、省エネルギー性能が高いことを示します。
  • 上部構造とは壁や柱など家の構造物のこと。上部構造評点とは、震度6強の地震で建物が倒壊しないために必要な力を数値で表した必要耐力(Qr)に対する現状の耐力の割合を表します。
  • 既存木造住宅の上部構造評点1.0、1.25、1.5は、品確法においての耐震等級1、2、3レベルに相当します。