ご夫婦と愛犬との時間を大切に考えた家

持ち家リノベーション・リフォーム

ゾーン断熱

2,500〜2,800万円

2024年12月

現在の投票数

4 5

この作品に投票する 投票済み

リノベーション後 After

ご夫婦と愛犬との時間を大切に考えた家

断熱玄関ドアと断熱サッシで玄関から快適な温熱環境に。

ご夫婦と愛犬との時間を大切に考えた家

エントランスクロークを設けたので玄関はスッキリ。
お客様を気持ちよく、お迎えできます。

ご夫婦と愛犬との時間を大切に考えた家

断熱性能を高めて床暖房を設置したLDKは寒がりなワンちゃんも快適に過ごせます。

ご夫婦と愛犬との時間を大切に考えた家

大開口の窓も断熱サッシなので、冬でも寒くありません。

ご夫婦と愛犬との時間を大切に考えた家

ご夫婦の好きな色のグリーンのカーテンに合うように床の色は落ち着きのあるトープグレー。

ご夫婦と愛犬との時間を大切に考えた家

壁紙はビニールクロス、床はクッションフロアで清掃性が良くなりました。

リノベーション前 Before

  • ご夫婦と愛犬との時間を大切に考えた家

    玄関や大きな吹抜から入る外気が廊下や階段へ流れて、家中が暑かったり寒かったりしました。

  • ご夫婦と愛犬との時間を大切に考えた家

    小さなダイニングキッチンだと家族で寛げる場がなかった。

  • ご夫婦と愛犬との時間を大切に考えた家

    トイレのタイル壁は掃除が大変でした。

リノベーション施工中 Process

  • ご夫婦と愛犬との時間を大切に考えた家

    LDK:床
    スタイロフォーム50mm

  • ご夫婦と愛犬との時間を大切に考えた家

    吹抜:壁・天井
    ロックウール105mm
    ※天井の断熱材は屋根直下部分全て

  • ご夫婦と愛犬との時間を大切に考えた家

    LDKの断熱サッシ
    APW331・APW330

  • ご夫婦と愛犬との時間を大切に考えた家

    制震ダンパー
    マモリー

  • ご夫婦と愛犬との時間を大切に考えた家

    太陽光発電

技術的なポイント Point

床:スタイロフォームFG t=50
壁:ロックウールMA t=105
天井:ロックウールMA t=105
窓:APW330、マドリモ、ウチリモ
ドア:ヴェナートD30 D2仕様
ゾーン断熱とするために1階天井および熱的境界の間仕切壁に断熱施工
熱的境界内の間仕切壁には気流止め設置
吹抜と階段で2階とつながるため、2階にも断熱ゾーンを設定

間取り変更に伴い、布基礎新設・耐力壁移動と制震装置MAMORYを設置
耐力壁移動および強度変更に伴いN値再計算、柱頭柱脚部金物補強
太陽光発電システム設置

間取り Plan

リノベーション前

  • ご夫婦と愛犬との時間を大切に考えた家

    1階平面図(改修前)
    どの部屋へ行くにも一旦、廊下に出なければいけない間取り。
    家事動線が悪く、収納も少ない。
    居室と他の部屋との温度差も気になっていた。

  • ご夫婦と愛犬との時間を大切に考えた家

    2階平面図(改修前)
    大きな吹抜は冬は1階をより寒く、夏は2階をより暑くしていました。

リノベーション後

  • ご夫婦と愛犬との時間を大切に考えた家

    1階平面図(改修後)
    キッチンから廊下を通らずに脱衣室に行けるように間取りを変更。
    リビングポケットはワンちゃんのおもちゃやアルバム等、家族みんなが使うものを収納できるので、リビングはいつも片付いた状態を維持できます。

  • ご夫婦と愛犬との時間を大切に考えた家

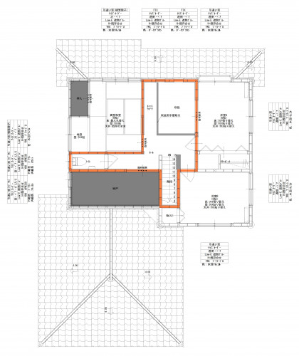
    1階平面詳細図
    断熱材と断熱サッシで住環境がよくなりました。

  • ご夫婦と愛犬との時間を大切に考えた家

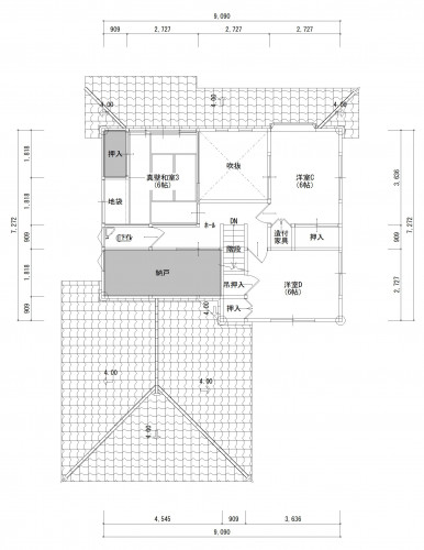
    2階平面図(改修後)
    吹抜を小さくしてキャットウォークを設置し、同時に照明器具の配置を見直しメンテナンスをしやすくしました。

  • ご夫婦と愛犬との時間を大切に考えた家

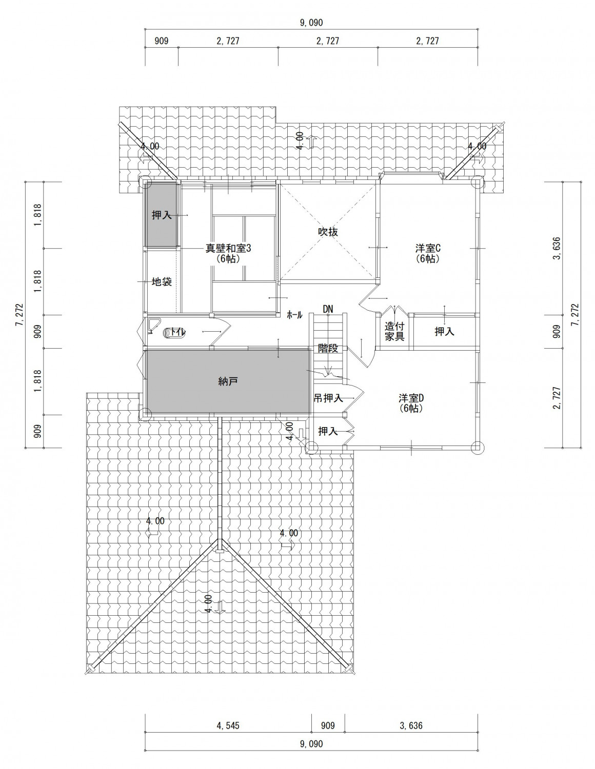
    2階平面詳細図
    1階からの空気の出入りがある吹抜と階段もしっかり断熱。

物件概要

所在地
富山県富山市
敷地面積
272.59㎡(82.45坪)
延床面積
162.36㎡(49.11坪)
構造
木造在来2階建て
既存建築年
1984年(築41年)
改修竣工年月
2024年12月
省エネ基準地域区分
5地域
改修部分断熱性能
UA値 改修前1.96w/㎡・K⇒改修後0.67w/㎡・K

企業紹介

企業名
石友リフォームサービス株式会社
Webサイト
https://www.ishitomo-reform.co.jp/

グレードとは

性能向上リノベでは、断熱と耐震のそれぞれの現行基準を3段階に分類し、基準を策定。性能向上リノベーションがされた証として、必要なエビデンス情報を登録し、安心・快適な家であるお墨付きの証として「性能向上登録証」を発行しています。これからの時代に選ばれる、安心・快適な家を可視化します。

断熱

ランク UA値 断熱等級
0.46 6
0.60 5
0.87 4
耐熱の説明

耐震

ランク 上部構造評点 耐震等級
1.5以上 3
1.25~1.5
未満
2
1.0~1.25
未満
1
耐震の説明
  • 建物は、自立循環型モデル住宅(在来工法)を対象に、地域区分は、6・7地域(都心部を中心)に策定しています。
  • UA値(外皮平均熱貫流率)とは住宅の内部から床、外壁、屋根(天井)や開口部などを通過して外部へ逃げる熱量を外皮全体で平均した値。値が小さいほど熱が逃げにくく、省エネルギー性能が高いことを示します。
  • 上部構造とは壁や柱など家の構造物のこと。上部構造評点とは、震度6強の地震で建物が倒壊しないために必要な力を数値で表した必要耐力(Qr)に対する現状の耐力の割合を表します。
  • 既存木造住宅の上部構造評点1.0、1.25、1.5は、品確法においての耐震等級1、2、3レベルに相当します。