断熱リフォーム~ストレスフリーに暮らす二世帯住宅

持ち家リノベーション・リフォーム

ゾーン断熱

4,000〜5,000万円

2025年05月

現在の投票数

3 4

この作品に投票する 投票済み

リノベーション後 After

断熱リフォーム~ストレスフリーに暮らす二世帯住宅

<リノベーション後玄関ホール>
玄関ホールはリノベーション前より狭くしながらも、エントランスクローゼットを設けて収納を充実させたことで、ご家族が増えてもすっきりと綺麗に片づいて見えるホールとなりました。空気を流すことを目的にガラスの入っていない格子戸を採用しています。

断熱リフォーム~ストレスフリーに暮らす二世帯住宅

<リノベーション後1階親世帯LDK>
親世帯のご夫婦でお孫さんと過ごす事もある1階LDK。キッチンに居ながら居間で遊ぶお孫さんに目が届く対面キッチンへと間取り変更。断熱性能を上げたことで、居間に大きな窓を採用することが出来明るく気持ちのよいLDKとなりました。
採用サッシ:APW330

断熱リフォーム~ストレスフリーに暮らす二世帯住宅

<リノベーション後1階親世帯寝室>
南側の窓はリノベーション前と同じく大きくとりながら、隣家からの目線が気になる東側の窓はハイサイドとすることで明るさを保ちながらストレスなく過ごせる寝室に。
採用サッシ:APW330

断熱リフォーム~ストレスフリーに暮らす二世帯住宅

<リノベーション後2階子世帯LDK>
子育て真っ盛りの世代である子世帯LDKはお子様が駆け回れる様な広々とした空間へ改築。物が増えていく事を考えて、オープン棚の収納を至るところに設け、片付けやすく取り出しやすい収納を意識して提案しています。キッチンやリビングに居ながらお子様の勉強時間も共有できるワークスペースを設けた、コミュニケーションが図れる間取りです。
採用サッシ:APW330

断熱リフォーム~ストレスフリーに暮らす二世帯住宅

<リノベーション後2階子世帯物干し室~LDK>
洗濯物干し室とLDKは回遊動線となっていることで、家事をしながらも、リビングに居るお子様の気配を感じることが出来、安心して暮らせる間取りです。
洗濯→干す→片付けるが一つの空間で出来るサンルーム兼クローゼットなので、家事時間の時短にもつながります。断熱性と気密性がアップしたことで、換気扇を設けてしっかり乾く空間となりました。
採用サッシ:APW330

断熱リフォーム~ストレスフリーに暮らす二世帯住宅

<リノベーション後2階子世帯寝室>
2階の若世帯の寝室も東側の窓は隣家からの目線を考えてハイサイドで揃えています。
採用サッシ:APW330

リノベーション前 Before

  • 断熱リフォーム~ストレスフリーに暮らす二世帯住宅

    <リノベーション前 玄関ホール>
    広い空間ではあるが、若世帯がご同居となると収納が少なく煩雑とした空間となってしまう。

  • 断熱リフォーム~ストレスフリーに暮らす二世帯住宅

    <リノベーション前 1階キッチン>
    壁付けのキッチンの為、お孫さんを見てあげる時も目が届きにくく使いづらいキッチン。

  • 断熱リフォーム~ストレスフリーに暮らす二世帯住宅

    <リノベーション前 1階寝室>
    大きな窓があり明るさは感じられるが、寒さを気にしながらの生活に。

  • 断熱リフォーム~ストレスフリーに暮らす二世帯住宅

    <リノベーション前 2階和室>
    ほとんど使われることがなくなっていた2階和室。若世帯のご同居によりLDKへと間取り変更することが必要。

  • 断熱リフォーム~ストレスフリーに暮らす二世帯住宅

    <リノベーション前 2階洋室>
    収納が使いづらく部屋の中にタンスを置く様になる為、若世帯の寝室として使うには狭さを感じてしまう洋室。

リノベーション施工中 Process

  • 断熱リフォーム~ストレスフリーに暮らす二世帯住宅

    壁断熱材施工
    ロックウール105㎜

  • 断熱リフォーム~ストレスフリーに暮らす二世帯住宅

    天井断熱材施工
    ロックウール105㎜
    2階天井全面

  • 断熱リフォーム~ストレスフリーに暮らす二世帯住宅

    床断熱材施工
    スタイロフォーム50㎜

  • 断熱リフォーム~ストレスフリーに暮らす二世帯住宅

    サッシ施工1
    APW330

  • 断熱リフォーム~ストレスフリーに暮らす二世帯住宅

    サッシ施工2
    APW330

  • 断熱リフォーム~ストレスフリーに暮らす二世帯住宅

    サッシ施工内装仕上工事後

技術的なポイント Point

床:スタイロフォームFG t=50㎜
壁:ロックウール t=105㎜
天井:ロックウール t=105㎜
窓:APW330(YKK AP)
玄関ドア:コンコードS30 外引込戸(採光あり)

間取り Plan

リノベーション前

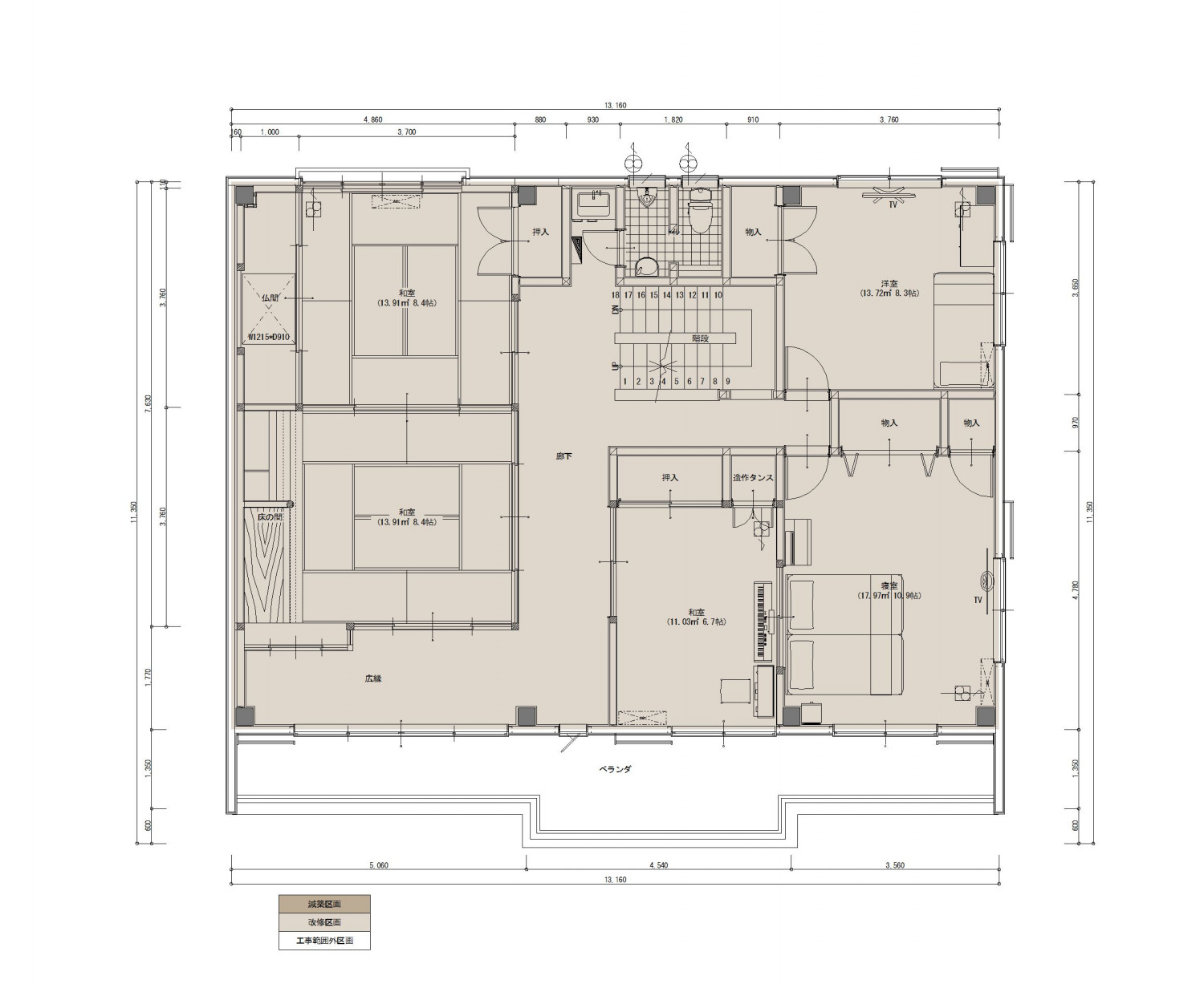
  • 断熱リフォーム~ストレスフリーに暮らす二世帯住宅

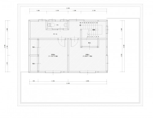
    <リノベーション前 1階間取り>
    玄関ホールが広く、各々のお部屋や収納が狭い。洗面やお風呂への移動は廊下に出てからの為、高齢になっていく親世帯ご夫婦にとってはヒートショックが不安。

  • 断熱リフォーム~ストレスフリーに暮らす二世帯住宅

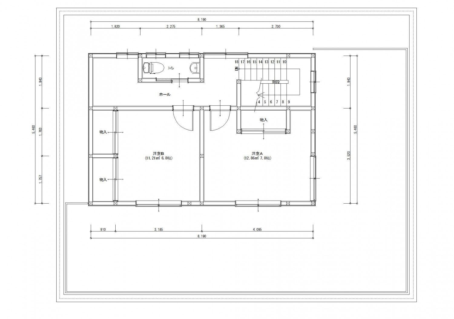
    <リノベーション前 2階間取り>
    ひとつひとつの部屋が区切られた間取り。子世帯ご夫婦がお子様と安心して暮らせる間取りではない。これから物が増えていく子育て世代にとって収納が足りない間取り。

  • 断熱リフォーム~ストレスフリーに暮らす二世帯住宅

    <3階 既存部分間取り>
    リノベーション範囲外

リノベーション後

  • 断熱リフォーム~ストレスフリーに暮らす二世帯住宅

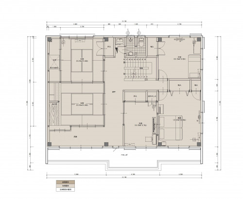
    <リノベーション後1階平面詳細図>
    LDKを広くし、洗面脱衣室・浴室へはLDKから直接いける動線に改善。断熱性能を上げることで部屋を移動する際のヒートショックも併せて軽減。

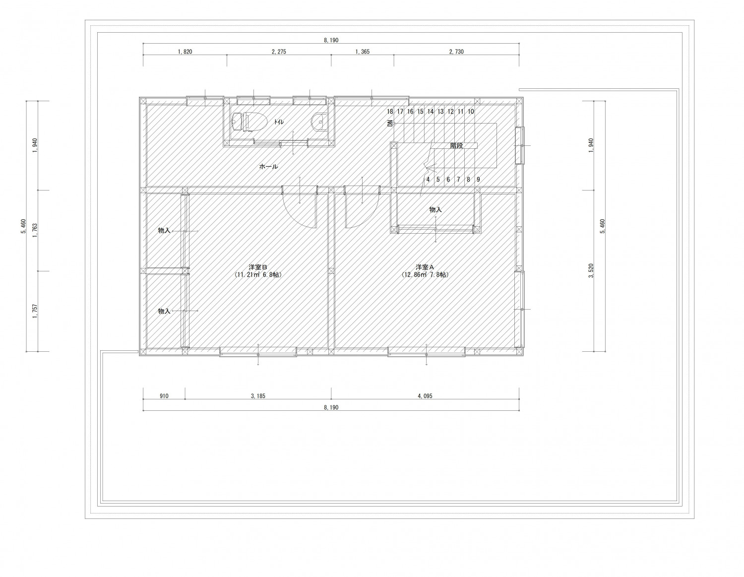
  • 断熱リフォーム~ストレスフリーに暮らす二世帯住宅

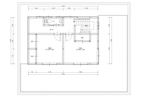
    <リノベーション後2階平面詳細図>
    廊下を無くした間取りに改善。キッチンはLDKを中心に家事動線も回遊できる動線に改善。家事をしながらお子様が何をしているかも分かり、安心して子育てできる間取りに。

  • 断熱リフォーム~ストレスフリーに暮らす二世帯住宅

    <3階部分平面詳細図>
    リノベーション範囲外

物件概要

所在地
福井県福井市
敷地面積
397.68㎡(120.29坪)
延床面積
237.84㎡(71.94坪)
構造
鉄骨造3階建て
既存建築年
1979年(築46年)
改修竣工年月
2025年05月
省エネ基準地域区分
6地域
改修部分断熱性能
UA値 改修後0.49w/㎡・K
設計

石友リフォームサービス㈱ 近藤 正和

企業紹介

企業名
石友リフォームサービス株式会社
Webサイト
https://www.ishitomo-reform.co.jp/

グレードとは

性能向上リノベでは、断熱と耐震のそれぞれの現行基準を3段階に分類し、基準を策定。性能向上リノベーションがされた証として、必要なエビデンス情報を登録し、安心・快適な家であるお墨付きの証として「性能向上登録証」を発行しています。これからの時代に選ばれる、安心・快適な家を可視化します。

断熱

ランク UA値 断熱等級
0.46 6
0.60 5
0.87 4
耐熱の説明

耐震

ランク 上部構造評点 耐震等級
1.5以上 3
1.25~1.5
未満
2
1.0~1.25
未満
1
耐震の説明
  • 建物は、自立循環型モデル住宅(在来工法)を対象に、地域区分は、6・7地域(都心部を中心)に策定しています。
  • UA値(外皮平均熱貫流率)とは住宅の内部から床、外壁、屋根(天井)や開口部などを通過して外部へ逃げる熱量を外皮全体で平均した値。値が小さいほど熱が逃げにくく、省エネルギー性能が高いことを示します。
  • 上部構造とは壁や柱など家の構造物のこと。上部構造評点とは、震度6強の地震で建物が倒壊しないために必要な力を数値で表した必要耐力(Qr)に対する現状の耐力の割合を表します。
  • 既存木造住宅の上部構造評点1.0、1.25、1.5は、品確法においての耐震等級1、2、3レベルに相当します。