樹脂窓・断熱・耐震で性能一新!暮らしの未来に備える住まい

持ち家リノベーション・リフォーム

ゾーン断熱

2,000万円

2025年03月

投票数

15 16

投票受付終了

リノベーション後 After

樹脂窓・断熱・耐震で性能一新!暮らしの未来に備える住まい

大きなコーナー出窓は内窓で開口を小さくすることで断熱効率がよくなり、適度な光も差し込むLDKに。和室だった掃き出し窓の高さが気にならないように天井のカーテンBOXとし、スッキリリッチな空間となりました。

樹脂窓・断熱・耐震で性能一新!暮らしの未来に備える住まい

TV壁面は大判のエコカラットを採用、抜けない柱を活かし格子でスクリーンとしました。
通路側の壁にブックスタンドやニッチを採用しました。
リビングから見える建具は全てハイドア・スリム枠とし、スタイリッシュな空間となりました。

樹脂窓・断熱・耐震で性能一新!暮らしの未来に備える住まい

キッチンはペニンシュラ型でダイニングと横並び配置としました。キッチンからユーティリティ→脱衣→リビングと回遊性のあるレイアウトとしました

樹脂窓・断熱・耐震で性能一新!暮らしの未来に備える住まい

壁面には黒の幕板・カウンターで和のテイストを取り入れ大人シックな空間に。

樹脂窓・断熱・耐震で性能一新!暮らしの未来に備える住まい

ユーティリティから繋がる洗面、3帖以上の広々空間で、サンルームとしても活用できます。

樹脂窓・断熱・耐震で性能一新!暮らしの未来に備える住まい

トイレはグレイッシュに。シックにまとめ
落ち着いた雰囲気に。

リノベーション前 Before

  • 樹脂窓・断熱・耐震で性能一新!暮らしの未来に備える住まい

    玄関は寒く、限られた収納での片付けに悩んでいました。

  • 樹脂窓・断熱・耐震で性能一新!暮らしの未来に備える住まい

    洗面脱衣室は狭く、作業効率が悪く物の置き場所に困っていました。

  • 樹脂窓・断熱・耐震で性能一新!暮らしの未来に備える住まい

    玄関からリビングまでの距離が長く、寒い廊下でした。

  • 樹脂窓・断熱・耐震で性能一新!暮らしの未来に備える住まい

    窓が大きく日差しも強く、夏は暑く冬は寒い部屋でした。

リノベーション施工中 Process

  • 樹脂窓・断熱・耐震で性能一新!暮らしの未来に備える住まい

    天井に161㎜厚のロックウールを充填

  • 樹脂窓・断熱・耐震で性能一新!暮らしの未来に備える住まい

    壁に105㎜厚のロックウールを充填

  • 樹脂窓・断熱・耐震で性能一新!暮らしの未来に備える住まい

    LDK/天井、壁断熱材施工

  • 樹脂窓・断熱・耐震で性能一新!暮らしの未来に備える住まい

    パントリー/天井、壁断熱材施工

技術的なポイント Point

将来の暮らしを見据え、生活の中心となる寝室を1階へ移動し、ワンフロアで生活が完結できる間取りへ全面的に再構築しました。
水回りを集約するとともに、キッチン、ユーティリティ、リビングを回遊できる効率的な家事動線を実現。日々の負担を大きく軽減しています。
寒さ対策としては、LDKの区画断熱と床暖房を採用し、エアコンの効率を高めながら一年を通して快適な温熱環境を確保しました。
さらに、安心して暮らせるよう、耐震、制震施工を行い、性能向上リノベの本質である「快適さ」と「安全性」の向上を図っています。

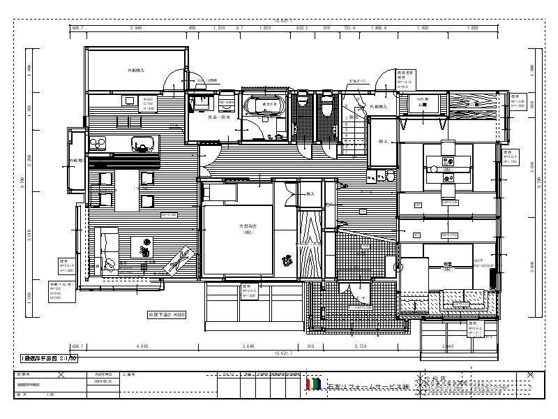
間取り Plan

リノベーション前

  • 樹脂窓・断熱・耐震で性能一新!暮らしの未来に備える住まい

    水回りの動線が悪く、洗濯や入浴のたびに一度寒い廊下へ出なければならない不便さがあり、長く広い廊下が暖房効率を下げていることが課題でした

リノベーション後

  • 樹脂窓・断熱・耐震で性能一新!暮らしの未来に備える住まい

    夫婦お二人のこれからの暮らしを見据え、間取りは生活の全てを1階で完結できるプランに刷新。寝室を1階に配置し、キッチン・ユーティリティ・リビングをスムーズに回遊できる動線をご提案しました

物件概要

所在地
石川県能美市
敷地面積
429.95㎡(129.80坪)
延床面積
175.84㎡(53.18坪)
構造
木造在来2階建て
既存建築年
1993年(築33年)
改修竣工年月
2025年03月
省エネ基準地域区分
5地域
改修部分断熱性能
UA値 改修前3.44w/㎡・K⇒改修後0.41w/㎡・K(改修前の8.4倍に向上)
設計

石友リフォームサービス㈱ 山口 哲也

企業紹介

企業名
石友リフォームサービス株式会社
Webサイト
https://www.ishitomo-reform.co.jp/

グレードとは

性能向上リノベでは、断熱と耐震のそれぞれの現行基準を3段階に分類し、基準を策定。性能向上リノベーションがされた証として、必要なエビデンス情報を登録し、安心・快適な家であるお墨付きの証として「性能向上登録証」を発行しています。これからの時代に選ばれる、安心・快適な家を可視化します。

断熱

ランク UA値 断熱等級
0.46 6
0.60 5
0.87 4
耐熱の説明

耐震

ランク 上部構造評点 耐震等級
1.5以上 3
1.25~1.5
未満
2
1.0~1.25
未満
1
耐震の説明
  • 建物は、自立循環型モデル住宅(在来工法)を対象に、地域区分は、6・7地域(都心部を中心)に策定しています。
  • UA値(外皮平均熱貫流率)とは住宅の内部から床、外壁、屋根(天井)や開口部などを通過して外部へ逃げる熱量を外皮全体で平均した値。値が小さいほど熱が逃げにくく、省エネルギー性能が高いことを示します。
  • 上部構造とは壁や柱など家の構造物のこと。上部構造評点とは、震度6強の地震で建物が倒壊しないために必要な力を数値で表した必要耐力(Qr)に対する現状の耐力の割合を表します。
  • 既存木造住宅の上部構造評点1.0、1.25、1.5は、品確法においての耐震等級1、2、3レベルに相当します。