耐震&制震リフォーム~末永く安心して過ごせる我が家

持ち家リノベーション・リフォーム

耐震+断熱

2,000〜2,100万円

2025年01月

現在の投票数

2 3

この作品に投票する 投票済み

リノベーション後 After

耐震&制震リフォーム~末永く安心して過ごせる我が家

LDKが見渡せるキッチン。家族とのコミュニケーションがとりやすくなっています。
ダイニングテーブルを使わない生活スタイルでしたので、お部屋を広々と使うことができ、ゆったりとした時間を過ごしていただける空間をご提案。テレビボード横の2つの収納にはリビングの小物を片づけられるので、いつでもスッキリとした空間を継続できます。

耐震&制震リフォーム~末永く安心して過ごせる我が家

ご両親の寝室はお好みのカラーをアクセントに用いて明るい印象に仕上げました。

耐震&制震リフォーム~末永く安心して過ごせる我が家

ご両親はリビングで過ごす時間が多いこともあり、行き来がしやすいようにリビングとの間に建具を設けています。階段の上り下りがつらくなってきたご両親の体のことを考えたご提案です。

耐震&制震リフォーム~末永く安心して過ごせる我が家

駐車場側に位置するトイレは窓の配置と大きさに配慮。
手洗いは埋め込み式にすることで、空間を広く使えます。アクセントカラーに明るいピンクを採用する事で、ナチュラルな雰囲気の中に明るさを感じるトイレになりました。

耐震&制震リフォーム~末永く安心して過ごせる我が家

窓を無くして断熱性能をアップ。
収納棚や鏡なども標準的についてくる備品は固定にせず、マグネット式のものを活用していただくことで、お手入れを簡単にしました。

耐震&制震リフォーム~末永く安心して過ごせる我が家

玄関は外部ポーチから高さを調節することで、家の中の段差を負担の少ない高さまで下げました。断熱性能の高い玄関ドアを採用する事で熱の逃げ道を減らしています。

リノベーション前 Before

  • 耐震&制震リフォーム~末永く安心して過ごせる我が家

    既存の台所
    居間と離れた台所は寒く、孤立感がある。

  • 耐震&制震リフォーム~末永く安心して過ごせる我が家

    既存の居間
    物が多く、くつろげない居間。
    真壁の和室は断熱がされてなくて夏は暑くて冬は寒い。

  • 耐震&制震リフォーム~末永く安心して過ごせる我が家

    既存のトイレ

  • 耐震&制震リフォーム~末永く安心して過ごせる我が家

    既存の玄関
    段差が高く足腰に負担
    物があふれて危険

リノベーション施工中 Process

  • 耐震&制震リフォーム~末永く安心して過ごせる我が家

    筋交や構造用合板で改修範囲を耐震補強。

  • 耐震&制震リフォーム~末永く安心して過ごせる我が家

    制震装置マモリーを取付、地震への備えもしっかりと。

  • 耐震&制震リフォーム~末永く安心して過ごせる我が家

    床下調査の結果、数カ所に基礎クラックを発見。より広がらないよう対策をご提案し、無事補強完了。

  • 耐震&制震リフォーム~末永く安心して過ごせる我が家

    寒さを軽減するため、改修範囲はしっかりと床下、壁、天井に断熱材を充填。(ロックウール105㎜)

  • 耐震&制震リフォーム~末永く安心して過ごせる我が家

    床面もスタイロフォームを充填
    (スタイロフォーム50㎜)

  • 耐震&制震リフォーム~末永く安心して過ごせる我が家

    2階も耐震補強(耐震金物と筋交い)

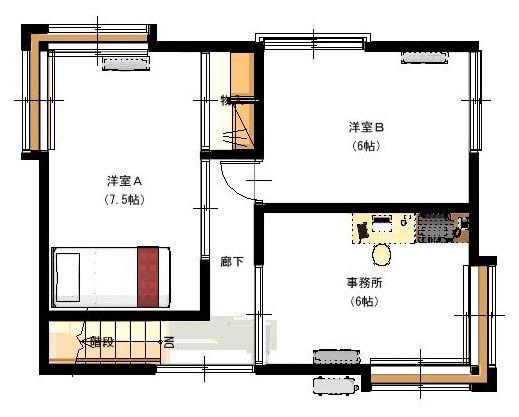
間取り Plan

リノベーション前

  • 耐震&制震リフォーム~末永く安心して過ごせる我が家

    各お部屋の大きい窓は断熱性能もなく、夏は暑くて冬は寒いお家でした。廊下とお部屋の寒暖差も大きく、身体に負担。

  • 耐震&制震リフォーム~末永く安心して過ごせる我が家

    全体的に老朽化が進んでいた。

リノベーション後

  • 耐震&制震リフォーム~末永く安心して過ごせる我が家

    不要な窓は減らし、断熱性能の高い窓へ変更。間取りは極力廊下を減らして身体への負担を軽減。台所からお部屋全体が見渡せる、コミュニケーションの取りやすい間取りとなっています。

  • 耐震&制震リフォーム~末永く安心して過ごせる我が家

    間取りは大きく変えず、模様替えを行いました。畳からフロアへ帰ることで、お掃除や家具も配置しやすくなりました。

物件概要

所在地
石川県金沢市
延床面積
99.37㎡(30.06坪)
構造
木造在来2階建て
既存建築年
1973年(築52年)
改修竣工年月
2025年01月
省エネ基準地域区分
5地域
断熱性能
UA値 改修後0.58w/㎡・K
耐震性能
上部構造評点 改修前0.25 ⇒ 改修後1.03

企業紹介

企業名
石友リフォームサービス株式会社
Webサイト
https://www.ishitomo-reform.co.jp/

グレードとは

性能向上リノベでは、断熱と耐震のそれぞれの現行基準を3段階に分類し、基準を策定。性能向上リノベーションがされた証として、必要なエビデンス情報を登録し、安心・快適な家であるお墨付きの証として「性能向上登録証」を発行しています。これからの時代に選ばれる、安心・快適な家を可視化します。

断熱

ランク UA値 断熱等級
0.46 6
0.60 5
0.87 4
耐熱の説明

耐震

ランク 上部構造評点 耐震等級
1.5以上 3
1.25~1.5
未満
2
1.0~1.25
未満
1
耐震の説明
  • 建物は、自立循環型モデル住宅(在来工法)を対象に、地域区分は、6・7地域(都心部を中心)に策定しています。
  • UA値(外皮平均熱貫流率)とは住宅の内部から床、外壁、屋根(天井)や開口部などを通過して外部へ逃げる熱量を外皮全体で平均した値。値が小さいほど熱が逃げにくく、省エネルギー性能が高いことを示します。
  • 上部構造とは壁や柱など家の構造物のこと。上部構造評点とは、震度6強の地震で建物が倒壊しないために必要な力を数値で表した必要耐力(Qr)に対する現状の耐力の割合を表します。
  • 既存木造住宅の上部構造評点1.0、1.25、1.5は、品確法においての耐震等級1、2、3レベルに相当します。