想いを継ぐ安心の住まい

持ち家リノベーション・リフォーム

ゾーン断熱+耐震

1,550万円

2025年10月

現在の投票数

6 7

この作品に投票する 投票済み

リノベーション後 After

想いを継ぐ安心の住まい

南東外観
雨水侵入の形跡がないため、屋根は瓦をそのまま利用した。

想いを継ぐ安心の住まい

東側外観
ツタの絡まった危険なCB壁は取り壊しスギ板による目隠しフェンスを新設。

想いを継ぐ安心の住まい

ダイニングキッチン
明るく気持ちがいい場所に計画。

想いを継ぐ安心の住まい

リビング脇に親御さんの寝室スペースを確保。将来の介護も見据えています。

想いを継ぐ安心の住まい

開口部の一部にはブレースを利用し、明るさと日射熱取得へ配慮いたしました。

想いを継ぐ安心の住まい

二人住まいにちょうどいいキッチンとの距離感。デッキでお茶をすることもできます。

リノベーション前 Before

  • 想いを継ぐ安心の住まい

    東側外観

  • 想いを継ぐ安心の住まい

    南側外観

  • 想いを継ぐ安心の住まい

    台所北面

  • 想いを継ぐ安心の住まい

    台所から南和室を見る

  • 想いを継ぐ安心の住まい

    台所からホールや水廻り側を見る

  • 想いを継ぐ安心の住まい

    玄関ホールから台所側み見る

リノベーション施工中 Process

  • 想いを継ぐ安心の住まい

    解体完了時
    建物半分を残し解体

  • 想いを継ぐ安心の住まい

    防蟻対策として防蟻シート 防湿コンクリートを施工
    部分的に基礎補強を行う

  • 想いを継ぐ安心の住まい

    増築部の基礎の沈下が確認できたのでこれ以上悪くならないよう既設基礎と一体化させる

  • 想いを継ぐ安心の住まい

    耐力面材完了
    耐力面材はホールダウンのでない引き抜き耐力以下として全体に計画

  • 想いを継ぐ安心の住まい

    断熱施工
    既設との間仕切り壁はあまり厚くできないため断熱材の一部をフェノール系断熱材とした

  • 想いを継ぐ安心の住まい

    断熱施工
    壁天井は高性能グラスウール16Kを施工。天井には防風層としてお値打ち防水紙を設置したうえで断熱材を施工

技術的なポイント Point

断熱性能
床、浴室土間床:スタイロエースⅡ 90㎜
壁:高性能グラスウール16K 105㎜
間仕切り壁:ネオマフォーム 60㎜
天井:高性能グラスウール16K 105㎜ 2重
窓:APW330(YKK AP)

耐震性能
基礎:一部基礎新設・一部基礎抱き合わせ新設・防湿コンクリート
壁:耐力面材(ダイライトMS 9㎜・ハイベストウッド 9㎜)・コボット設置・既設筋交いに金物設置・柱頭柱脚金物補強
構造材:一部柱ヒノキKD E90 105㎜ 追加・一部梁 米松KD 105×150 追加

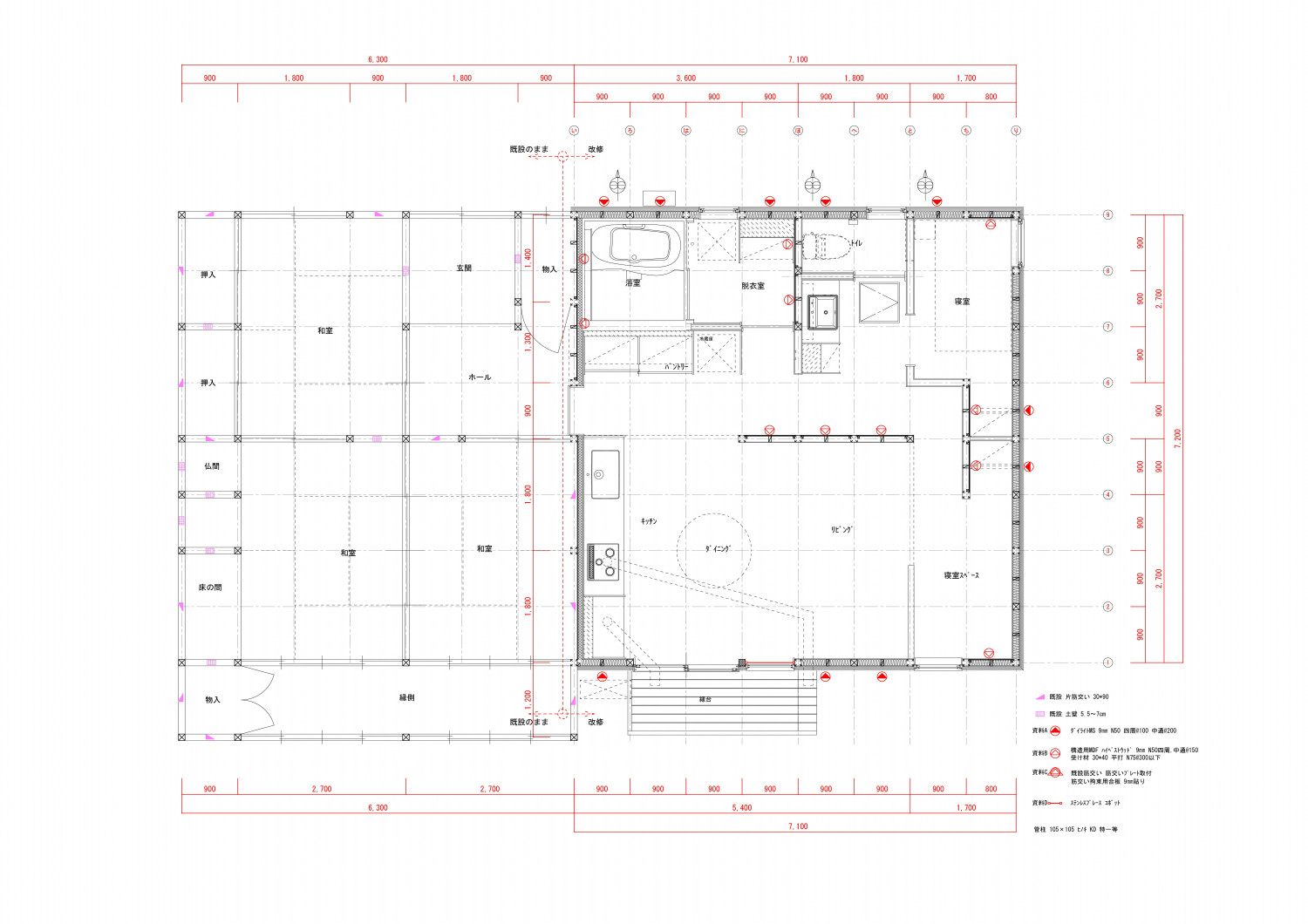
間取り Plan

リノベーション前

  • 想いを継ぐ安心の住まい

    大きな個室が枝葉のようにある中廊下型の間取りで各部屋のつながりが薄く、家族の居場所が取りづらかった

リノベーション後

  • 想いを継ぐ安心の住まい

    LDK、寝室、水廻りの生活空間をエリア断熱改修
    耐震補強については建物全体の偏心率に配慮し評点1.0を超える程度までとして計画

物件概要

所在地
愛知県豊橋市
延床面積
51.12㎡(15.46坪)
構造
木造平屋建て
既存建築年
1974年(築51年)
改修竣工年月
2025年10月
省エネ基準地域区分
7地域
改修部分断熱性能
UA値 改修前3.37w/㎡・K⇒改修後0.36w/㎡・K(改修前の9.36倍に向上)
耐震性能
上部構造評点 改修前0.48 ⇒ 改修後1.04
設計

鈴木茂明

施工

株式会社 ニコハウス設計室

企業紹介

企業名
株式会社 ニコハウス設計室
Webサイト
https://nicohouse-s.com/

グレードとは

性能向上リノベでは、断熱と耐震のそれぞれの現行基準を3段階に分類し、基準を策定。性能向上リノベーションがされた証として、必要なエビデンス情報を登録し、安心・快適な家であるお墨付きの証として「性能向上登録証」を発行しています。これからの時代に選ばれる、安心・快適な家を可視化します。

断熱

ランク UA値 断熱等級
0.46 6
0.60 5
0.87 4
耐熱の説明

耐震

ランク 上部構造評点 耐震等級
1.5以上 3
1.25~1.5
未満
2
1.0~1.25
未満
1
耐震の説明
  • 建物は、自立循環型モデル住宅(在来工法)を対象に、地域区分は、6・7地域(都心部を中心)に策定しています。
  • UA値(外皮平均熱貫流率)とは住宅の内部から床、外壁、屋根(天井)や開口部などを通過して外部へ逃げる熱量を外皮全体で平均した値。値が小さいほど熱が逃げにくく、省エネルギー性能が高いことを示します。
  • 上部構造とは壁や柱など家の構造物のこと。上部構造評点とは、震度6強の地震で建物が倒壊しないために必要な力を数値で表した必要耐力(Qr)に対する現状の耐力の割合を表します。
  • 既存木造住宅の上部構造評点1.0、1.25、1.5は、品確法においての耐震等級1、2、3レベルに相当します。