「モードを変えて生きながらえる」 住居 兼 オフィス

中古物件購入+リノベーション

断熱

2,500〜3,000万円

2025年05月

現在の投票数

168 169

この作品に投票する 投票済み

リノベーション後 After

「モードを変えて生きながらえる」 住居 兼 オフィス

アトリウム:スリットとその上の壁が「薄壁トロンブウォール・スリット」です。トロンブウォールは、熱容量のある壁で昼間の日射を受け止めて、夜間に部屋を暖める手法ですが、酷暑化によって夜も暑い日が多い日本の気候にはさらに適さなくなってきています

「モードを変えて生きながらえる」 住居 兼 オフィス

薄壁トロンブウォール・スリットの裏側:そこで、壁を蓄熱性のない薄壁で作り、夏場は日除けとして機能するようにしました。また、春秋には、右側下部のスリットを通して、左側上部の自然排煙口から室内の空気を重力換気します。冬はこの隙間の空間で温めた空気をスリットから送風します

「モードを変えて生きながらえる」 住居 兼 オフィス

リビングの夕景:天井の局面は全熱交換機のダクト経路をそのままデザインしたものです

「モードを変えて生きながらえる」 住居 兼 オフィス

Room-2:部屋はがらんどうです。後から間仕切りの増設ができる造りとなっています

「モードを変えて生きながらえる」 住居 兼 オフィス

Room-3:写真左側の扉の奥に独立した出入り口を持ち、ゲストルームや試泊施設として運用できるようになっています

「モードを変えて生きながらえる」 住居 兼 オフィス

自力で修復可能なマテリアルとして、子どもも参加しながら、和紙をちぎり張しました(デザイン・施工: Kumiko Uchida)

リノベーション前 Before

  • 「モードを変えて生きながらえる」 住居 兼 オフィス

    スケルトン状態での引き渡しからスタートしています

リノベーション施工中 Process

  • 「モードを変えて生きながらえる」 住居 兼 オフィス

    下地工事

  • 「モードを変えて生きながらえる」 住居 兼 オフィス

    断熱材充填

  • 「モードを変えて生きながらえる」 住居 兼 オフィス

    ボード張り

  • 「モードを変えて生きながらえる」 住居 兼 オフィス

    仕上げ(漆喰)

  • 「モードを変えて生きながらえる」 住居 兼 オフィス

    仕上げに使用した焼杉はワークショップを開いて製作

  • 「モードを変えて生きながらえる」 住居 兼 オフィス

    カウンタ―、家具等に使用した木材は丸太から製材、乾燥して製作しました

技術的なポイント Point

【断熱性能】
天井:高性能グラスウール24K 105mm
壁:既存吹付ウレタン25mm+高性能グラスウール24K 90mm
窓:PRO-SE BFG(LIXIL、交換箇所のみ)

【創エネ設備等】
・太陽光発電モジュール出力合計:2.15kW
・太陽熱給湯:集熱器6m2(24号ガス給湯器と併用可)
・蓄電池:13.5kWh(TESLA POWERWALL)(地上の駐車場に設置したV2H設備に接続)
・全熱交換機:150m3/h ×各階 (主にオフィス使用時を想定)

【その他のパッシブデザイン】
・アトリウム上部の吹き抜けの開口の前に新設した壁・スリット(写真をご参照ください)
・吹き抜け前面のグリーンカーテン
・浴室部のインナーサッシ
・一部屋上緑化による天井からの熱負荷低減

間取り Plan

リノベーション前

  • 「モードを変えて生きながらえる」 住居 兼 オフィス

    下階平面図。階段はほぼ同じ位置にあったものを改修しました。

  • 「モードを変えて生きながらえる」 住居 兼 オフィス

    上階平面図。寝室3の奥に避難口がありほぼ使われていませんでした。

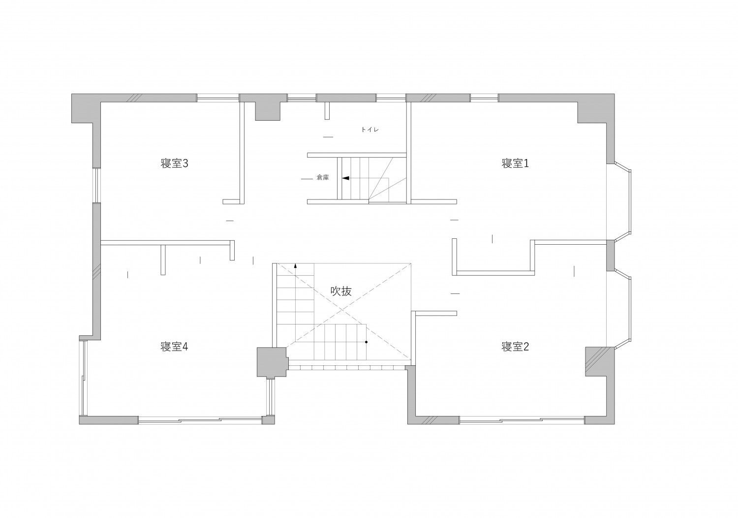
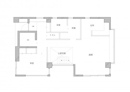
リノベーション後

  • 「モードを変えて生きながらえる」 住居 兼 オフィス

    下階平面図。対象はマンション内のメゾネットで、中心部にコアとなるアトリウム(吹抜)を有しています

  • 「モードを変えて生きながらえる」 住居 兼 オフィス

    上階平面図。上下階とも、コアとなるアトリウムの両側に室を設けました。かつての避難口をサブエントランスとして出入りできるように活用しています

  • 「モードを変えて生きながらえる」 住居 兼 オフィス

    立面図 兼 環境・防災提案に関するダイアグラムです

  • 「モードを変えて生きながらえる」 住居 兼 オフィス

    薄壁トロンブウォール・スリットの断面図兼説明です

  • 「モードを変えて生きながらえる」 住居 兼 オフィス

    オフィス使用時も想定した全熱交換機のダクト経路です。冬季には浴室のヒートショック対策が重要となります。通常は排気して外に出してしまう熱交換が終わった後の「ちょっと温くてちょっと綺麗な空気」を水回りで二次利用することで、水回りをエアコンを使わず少し温めます

  • 「モードを変えて生きながらえる」 住居 兼 オフィス

    立面図 兼 ダイヤグラムです。Atriumの周りに配した4つの室を組み替えることで、様々な使われ方を可能にしました。例えば、右側のように、居住空間とゲストルーム・宿泊施設をそれぞれ独立した水回り・エントランスを持った空間とすることが可能です。

物件概要

所在地
東京都墨田区
延床面積
146㎡(44.2坪)
構造
RC造4階建て
既存建築年
1992年(築33年)
改修竣工年月
2025年05月
省エネ基準地域区分
6地域
断熱性能
UA値 改修前0.96w/㎡・K⇒改修後0.56w/㎡・K(改修前の1.7倍に向上)

企業紹介

企業名
鈴木達朗+鈴木工務店
Webサイト
https://suzukikoumuten.com/ts/
コメント

鈴木達朗がデザインして鈴木工務店と作り上げる建築集団です。鈴木工務店は、創業80年の大工工事の会社です。鈴木達朗は、経営者・設計者で、環境負荷の少ない、災害時に安全な建物の設計を目指しています。木造の防災を専門に早稲田大学で研究員としても活動しています。

グレードとは

性能向上リノベでは、断熱と耐震のそれぞれの現行基準を3段階に分類し、基準を策定。性能向上リノベーションがされた証として、必要なエビデンス情報を登録し、安心・快適な家であるお墨付きの証として「性能向上登録証」を発行しています。これからの時代に選ばれる、安心・快適な家を可視化します。

断熱

ランク UA値 断熱等級
0.46 6
0.60 5
0.87 4
耐熱の説明

耐震

ランク 上部構造評点 耐震等級
1.5以上 3
1.25~1.5
未満
2
1.0~1.25
未満
1
耐震の説明
  • 建物は、自立循環型モデル住宅(在来工法)を対象に、地域区分は、6・7地域(都心部を中心)に策定しています。
  • UA値(外皮平均熱貫流率)とは住宅の内部から床、外壁、屋根(天井)や開口部などを通過して外部へ逃げる熱量を外皮全体で平均した値。値が小さいほど熱が逃げにくく、省エネルギー性能が高いことを示します。
  • 上部構造とは壁や柱など家の構造物のこと。上部構造評点とは、震度6強の地震で建物が倒壊しないために必要な力を数値で表した必要耐力(Qr)に対する現状の耐力の割合を表します。
  • 既存木造住宅の上部構造評点1.0、1.25、1.5は、品確法においての耐震等級1、2、3レベルに相当します。