マンション1階で断熱等級7を実現した子育て世代の住まい

中古物件購入+リノベーション

断熱

3,000〜3,500万円

2025年03月

現在の投票数

3 4

この作品に投票する 投票済み

リノベーション後 After

マンション1階で断熱等級7を実現した子育て世代の住まい

南側LDKは、採光と専用庭の広がる景色を最大限に取り入れた空間へ。視線や動線を遮るものをなくし、連続性と変化のある豊かな住まいに。

マンション1階で断熱等級7を実現した子育て世代の住まい

キッチンは大きく位置を移動。家族が行き交い会話が生まれる、フルフラットのアイランドキッチンに。構造壁を活かし冷蔵庫と家電タワーは見えない場所に収めてスッキリと。

マンション1階で断熱等級7を実現した子育て世代の住まい

回遊動線上にワークカウンターや洗面を設置。玄関脇の構造壁とパイプシャフトはツガ材で包むように設えてデザインに取り込んだ。羽目板の幅に合わせた隠し収納も造作。

マンション1階で断熱等級7を実現した子育て世代の住まい

天井カセットエアコンから洗面横のスペースにダクトを通して床下へ暖気を送る仕組み。夏はリビングに設置の壁掛けエアコンをメインにしつつ、サブとして天井のガラリから冷気を落とす。

マンション1階で断熱等級7を実現した子育て世代の住まい

北側は大きなひとつの空間に。6枚引き戸の開閉と可動収納家具によって、自由に間取り変更ができる。南側からの光も届き、明るさも確保した。

マンション1階で断熱等級7を実現した子育て世代の住まい

施主が季節ごとにまとめている温湿度環境レポート。夏期は外気絶対湿度19〜21g/m³に対し、室内12〜14g/m³・温度25〜26℃を維持。快適な室内環境を実感されている。

リノベーション前 Before

  • マンション1階で断熱等級7を実現した子育て世代の住まい

    マンションに多く見られる『田の字型プラン』。風の流れに対して直行した壁で仕切り、光も空気も滞る。

  • マンション1階で断熱等級7を実現した子育て世代の住まい

    南側はLDKと和室の間にある壁が光と空間を遮断。専用庭の広がりを感じられない。

  • マンション1階で断熱等級7を実現した子育て世代の住まい

    行き止まりで閉鎖的なキッチン。作業動線が重なり合い、使いにくい状態。

  • マンション1階で断熱等級7を実現した子育て世代の住まい

    洗面・お風呂・脱衣・洗濯がひとつの閉鎖的な部屋にまとまり、もちろん採光はない。

  • マンション1階で断熱等級7を実現した子育て世代の住まい

    玄関を入ると間仕切り壁に囲まれ、晴れた日中でも暗い。

  • マンション1階で断熱等級7を実現した子育て世代の住まい

    北側の居室は壁で3つの個室に区切られ閉鎖的。マンション特有の柱・梁型がさらに圧迫感を与えている。

リノベーション施工中 Process

  • マンション1階で断熱等級7を実現した子育て世代の住まい

    壁は、既存20mm断熱に硬質ウレタン40mmを増打ち、計60mmに。吹付前(左)と後(右)。

  • マンション1階で断熱等級7を実現した子育て世代の住まい

    床は、フェノールフォーム30mmを敷き詰める。

  • マンション1階で断熱等級7を実現した子育て世代の住まい

    WIC天井内に全室空調エアコンを格納。

  • マンション1階で断熱等級7を実現した子育て世代の住まい

    木毛セメント板で二重床を組み、全室空調エアコンから、天井裏に冷房用、床下に暖房用のダクトを回す。

  • マンション1階で断熱等級7を実現した子育て世代の住まい

    全ての既存窓に、断熱内窓と断熱ブラインドを設置。

  • マンション1階で断熱等級7を実現した子育て世代の住まい

    鉄扉の玄関ドアから伝わる冷気は、凸型を利用して建具で仕切り風除室的に閉じ込める。

技術的なポイント Point

壁:吹付硬質ウレタンフォーム60mm
天井:吹付硬質ウレタンフォーム50mm
床:ネオマフォーム30mm
内窓:Low-Eペアガラス(アルゴンガス入) プラマードU(YKK AP)

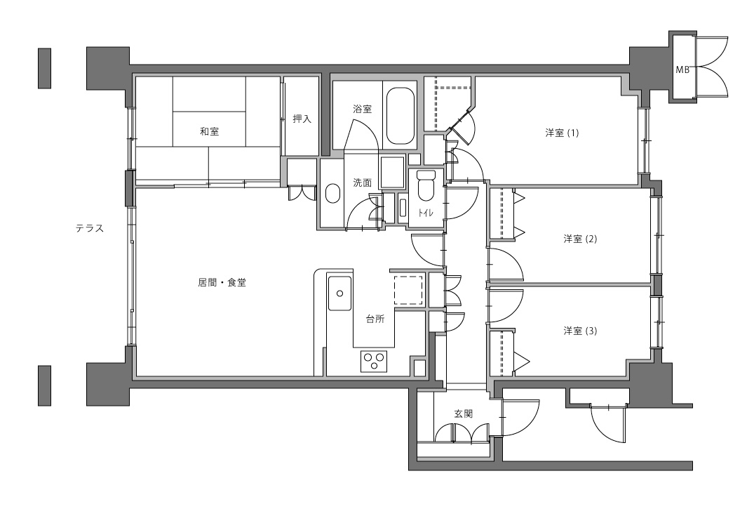
間取り Plan

リノベーション前

  • マンション1階で断熱等級7を実現した子育て世代の住まい

    壁で細かく区切られた既存プランは、部屋も廊下も閉鎖的で暗かった。
    冬には北側の廊下が冷気の通り道となり、南北で大きな温度差が生まれ、結露によるカビも発生していた。

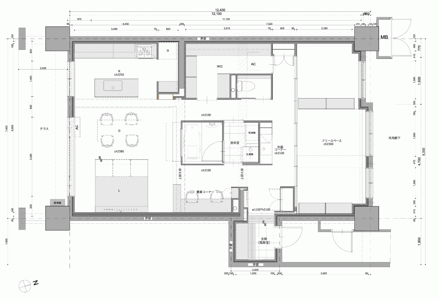
リノベーション後

  • マンション1階で断熱等級7を実現した子育て世代の住まい

    南面テラス側は光と景色を大きく取り込み、北側も一体の大空間へ。
    浴室を中央に配置することで大きく回遊でき、室内の温度と湿度を均一化した。
    さらに、可動家具や引き戸を用いることで、子どもの成長に合わせて間取りを柔軟に変えられる可変性を備えている。

物件概要

所在地
東京都府中市
延床面積
94.75㎡(28.66坪)
構造
SRC造
既存建築年
2003年(築22年)
改修竣工年月
2025年03月
省エネ基準地域区分
6地域
断熱性能
UA値 改修前0.92w/㎡・K⇒改修後0.21w/㎡・K(改修前の4.38倍に向上)

企業紹介

企業名
株式会社Toivo
Webサイト
https://www.toivo.co.jp/
コメント

私たちToivoはマンション住居を心地よい木の空間にリノベーションすることを専門に、設計と施工を自社で行う工務店です。

グレードとは

性能向上リノベでは、断熱と耐震のそれぞれの現行基準を3段階に分類し、基準を策定。性能向上リノベーションがされた証として、必要なエビデンス情報を登録し、安心・快適な家であるお墨付きの証として「性能向上登録証」を発行しています。これからの時代に選ばれる、安心・快適な家を可視化します。

断熱

ランク UA値 断熱等級
0.46 6
0.60 5
0.87 4
耐熱の説明

耐震

ランク 上部構造評点 耐震等級
1.5以上 3
1.25~1.5
未満
2
1.0~1.25
未満
1
耐震の説明
  • 建物は、自立循環型モデル住宅(在来工法)を対象に、地域区分は、6・7地域(都心部を中心)に策定しています。
  • UA値(外皮平均熱貫流率)とは住宅の内部から床、外壁、屋根(天井)や開口部などを通過して外部へ逃げる熱量を外皮全体で平均した値。値が小さいほど熱が逃げにくく、省エネルギー性能が高いことを示します。
  • 上部構造とは壁や柱など家の構造物のこと。上部構造評点とは、震度6強の地震で建物が倒壊しないために必要な力を数値で表した必要耐力(Qr)に対する現状の耐力の割合を表します。
  • 既存木造住宅の上部構造評点1.0、1.25、1.5は、品確法においての耐震等級1、2、3レベルに相当します。