2024年 エントリー作品

住みながら価値あるリノベーション

持ち家リノベーション・リフォーム

ゾーン断熱+耐震

1,700万円

2024年12月

投票数

13 14

投票受付終了

リノベーション後 After

住みながら価値あるリノベーション

ダイニングキッチンの食品庫の解体、サッシの交換

住みながら価値あるリノベーション

リビングの飾り棚の撤去、サッシの交換

住みながら価値あるリノベーション

和室8帖耐力壁の新設、サッシの交換

住みながら価値あるリノベーション

和室6帖耐力壁の新設、建具の交換

住みながら価値あるリノベーション

洋室6帖クローゼット内の耐震補強

住みながら価値あるリノベーション

和室の外壁モルタル仕上げ

リノベーション前 Before

  • 住みながら価値あるリノベーション

    ダイニングキッチン

  • 住みながら価値あるリノベーション

    リビング

  • 住みながら価値あるリノベーション

    和室8帖

  • 住みながら価値あるリノベーション

    和室6帖

  • 住みながら価値あるリノベーション

    洋室6帖

  • 住みながら価値あるリノベーション

    外観北側

リノベーション施工中 Process

  • 住みながら価値あるリノベーション

    LDK床暖熱材充填

  • 住みながら価値あるリノベーション

    LDK天井・壁断熱材充填

  • 住みながら価値あるリノベーション

    和室へLDKの家財を移動

  • 住みながら価値あるリノベーション

    和室の外壁耐震補強、サッシの交換

  • 住みながら価値あるリノベーション

    市建築指導課の中間検査

  • 住みながら価値あるリノベーション

    和室の内壁耐震補強

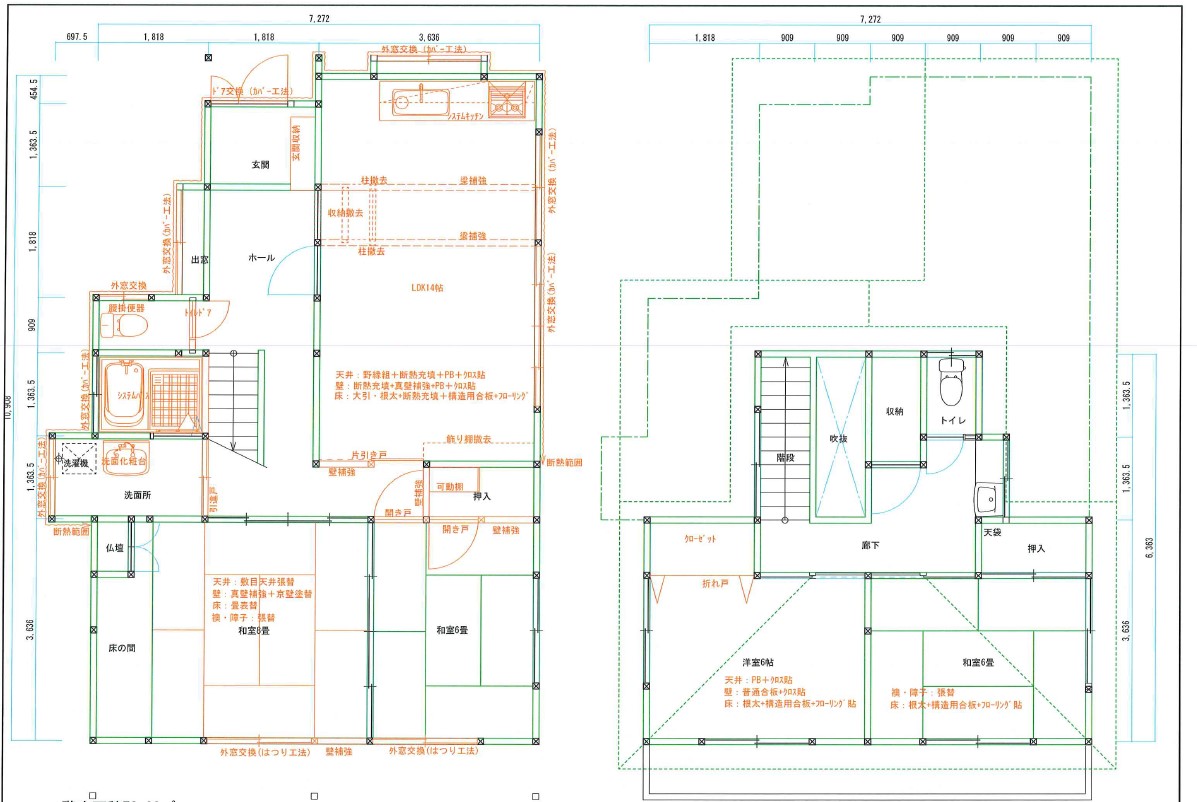
間取り Plan

リノベーション前

  • 住みながら価値あるリノベーション

    洗面所に0.95㎡の増築あり

リノベーション後

  • 住みながら価値あるリノベーション

    ダイニングの収納の解体、リビングの飾り棚の撤去
    和室8帖の耐震改修に伴うサッシの変更
    和室6帖押入の耐震補強に伴う建具の変更

物件概要

所在地
神奈川県
敷地面積
148.76㎡(45坪)
延床面積
107.32㎡(32.47坪)
構造
木造瓦葺2階建
既存建築年
1979年(築47年)
改修竣工年月
2024年12月
断熱性能
UA値 改修後1.42w/㎡・K
耐震性能
上部構造評点 改修前0.32 ⇒ 改修後1.11
設計

有限会社マルカメ

施工

有限会社マルカメ

企業紹介

企業名
有限会社マルカメ
Webサイト
http://www.yu-marukame.com/
コメント

弊社の社員には愛犬家が多く、設計士、現場監督、事務担当も長年ワンちゃんと暮らしていることから、飼い主目線でのご提案を得意としております。
愛犬家住宅コーディネーターとしての専門知識を生かし、人もペットも安心・安全に暮らせる家づくりが、これからの新しいスタンダードとして、取り組んで参ります。

グレードとは

性能向上リノベでは、断熱と耐震のそれぞれの現行基準を3段階に分類し、基準を策定。性能向上リノベーションがされた証として、必要なエビデンス情報を登録し、安心・快適な家であるお墨付きの証として「性能向上登録証」を発行しています。これからの時代に選ばれる、安心・快適な家を可視化します。

断熱

ランク UA値 断熱等級
0.46 6
0.60 5
0.87 4
耐熱の説明

耐震

ランク 上部構造評点 耐震等級
1.5以上 3
1.25~1.5
未満
2
1.0~1.25
未満
1
耐震の説明
  • 建物は、自立循環型モデル住宅(在来工法)を対象に、地域区分は、6・7地域(都心部を中心)に策定しています。
  • UA値(外皮平均熱貫流率)とは住宅の内部から床、外壁、屋根(天井)や開口部などを通過して外部へ逃げる熱量を外皮全体で平均した値。値が小さいほど熱が逃げにくく、省エネルギー性能が高いことを示します。
  • 上部構造とは壁や柱など家の構造物のこと。上部構造評点とは、震度6強の地震で建物が倒壊しないために必要な力を数値で表した必要耐力(Qr)に対する現状の耐力の割合を表します。
  • 既存木造住宅の上部構造評点1.0、1.25、1.5は、品確法においての耐震等級1、2、3レベルに相当します。