2024年 エントリー作品

築70年!住む⼈と同世代の家を快適に!

持ち家リノベーション・リフォーム

断熱

2,132万円

2023年11月

投票数

1 2

投票受付終了

リノベーション後 After

築70年!住む⼈と同世代の家を快適に!

LDK キッチンカウンター

築70年!住む⼈と同世代の家を快適に!

東側玄関

築70年!住む⼈と同世代の家を快適に!

南側

築70年!住む⼈と同世代の家を快適に!

もう一つの玄関

築70年!住む⼈と同世代の家を快適に!

浴室

築70年!住む⼈と同世代の家を快適に!

リビング南側

リノベーション前 Before

  • 築70年!住む⼈と同世代の家を快適に!

    東側

  • 築70年!住む⼈と同世代の家を快適に!

    北側(もう一つの玄関になる場所)

  • 築70年!住む⼈と同世代の家を快適に!

    南側

  • 築70年!住む⼈と同世代の家を快適に!

    LDK

  • 築70年!住む⼈と同世代の家を快適に!

    浴室

  • 築70年!住む⼈と同世代の家を快適に!

    和室

リノベーション施工中 Process

  • 築70年!住む⼈と同世代の家を快適に!

    床断熱気密施工状況

  • 築70年!住む⼈と同世代の家を快適に!

    断熱気密施工状況

  • 築70年!住む⼈と同世代の家を快適に!

    羊毛断熱施工状況

  • 築70年!住む⼈と同世代の家を快適に!

    浴室基礎断熱施工状況

  • 築70年!住む⼈と同世代の家を快適に!

    既存屋根梁補強状況

  • 築70年!住む⼈と同世代の家を快適に!

    断熱施工状況

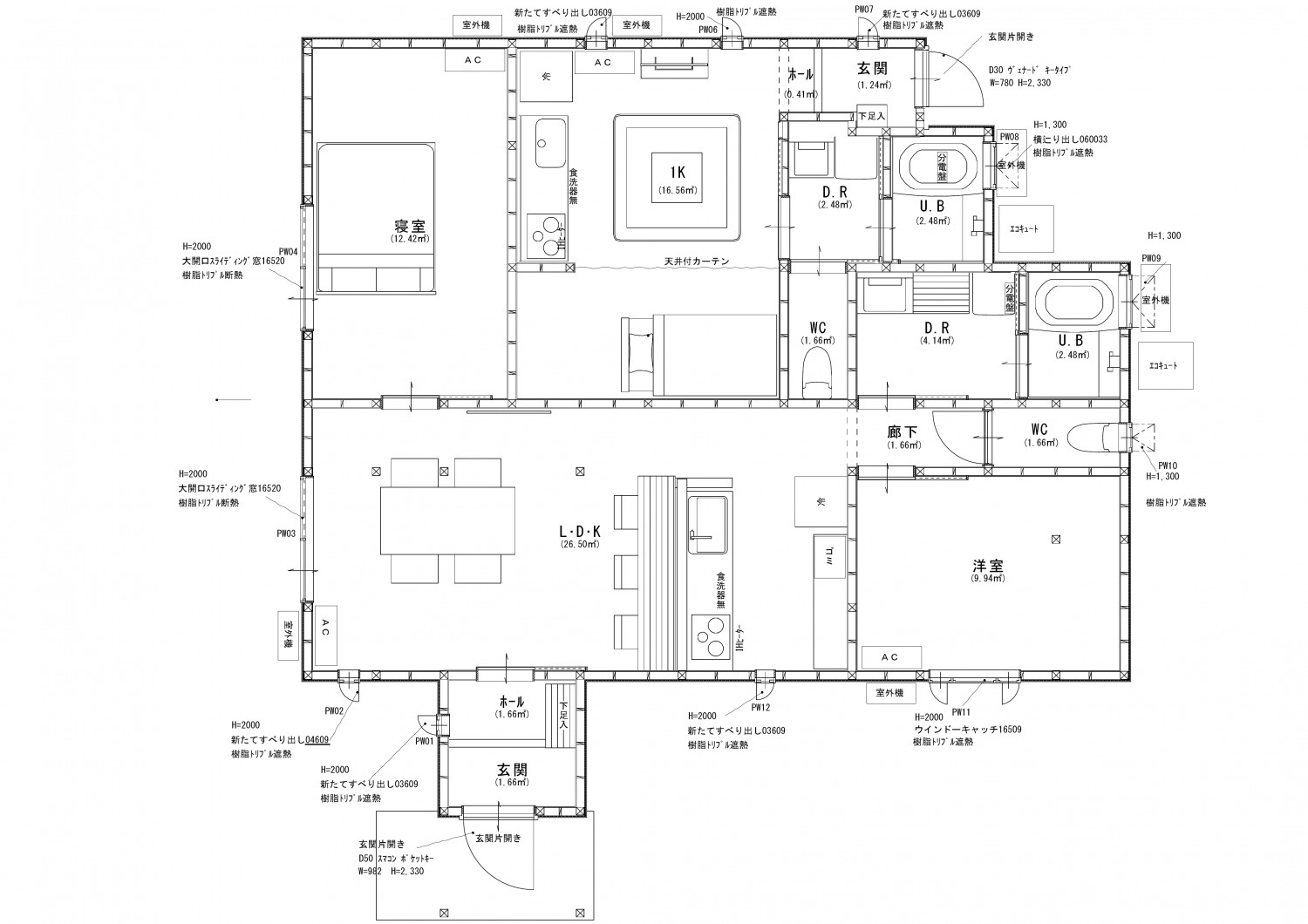
間取り Plan

リノベーション前

  • 築70年!住む⼈と同世代の家を快適に!

    LDKは一度改修されていましたが断熱は改修されていなかった。和室は2部屋あったが寒くてなかなか使用していなかった。浴室は無断熱で常に寒い環境だったそうです。玄関も崖側に配置されていたので少し怖かったみたいです。

リノベーション後

  • 築70年!住む⼈と同世代の家を快適に!

    2世帯にするため玄関を2か所にし、壁は防音処理をしプライバシーに配慮した。ほぼ無暖房の家だったので屋根は羊毛断熱を300㎜、壁は羊毛断熱を100㎜としっかり気密を取り最高の空間となるようにした。

物件概要

所在地
群馬県安中市
敷地面積
185㎡(56.06坪)
延床面積
86.95㎡(26.34坪)
構造
木造在来工法 地上一階建て
既存建築年
1954年(築72年)
改修竣工年月
2023年11月
断熱性能
UA値 改修前3.74w/㎡・K⇒改修後0.59w/㎡・K(改修前の6.3倍に向上)
設計

有限会社コバヤシ

施工

有限会社コバヤシ

企業紹介

企業名
サンケービルド株式会社
Webサイト
https://kobayashi-kc.net/
コメント

夏に涼しく、冬に暖かい家が欲しい。
家を建てようと考えた誰もが必ず考える事だと思います。
ここ日本でそれを実現するのは難しいものです。

高温多湿な夏はむせ返る様な暑さ、冬になれば厳しい寒さが私たちを襲います。
冷暖房により体調を崩してしまう方も多いのではないでしょうか?

私たちが安心して暮らしていく為に、健康に対するリスクを排除する必要があります。
建材や家具などにおける空気汚染や、
住居内の温度差によるヒートショック等の疾患、
結露によるカビやダニを原因とするアレルギー症状・・・
この様な住宅に潜む様々な問題を解決してくれる住宅こそ、
「住みやすい家」なのではないか。

そして私たちが考え、悩み、辿り着いたのが「健康住宅」という家でした。

グレードとは

性能向上リノベでは、断熱と耐震のそれぞれの現行基準を3段階に分類し、基準を策定。性能向上リノベーションがされた証として、必要なエビデンス情報を登録し、安心・快適な家であるお墨付きの証として「性能向上登録証」を発行しています。これからの時代に選ばれる、安心・快適な家を可視化します。

断熱

ランク UA値 断熱等級
0.46 6
0.60 5
0.87 4
耐熱の説明

耐震

ランク 上部構造評点 耐震等級
1.5以上 3
1.25~1.5
未満
2
1.0~1.25
未満
1
耐震の説明
  • 建物は、自立循環型モデル住宅(在来工法)を対象に、地域区分は、6・7地域(都心部を中心)に策定しています。
  • UA値(外皮平均熱貫流率)とは住宅の内部から床、外壁、屋根(天井)や開口部などを通過して外部へ逃げる熱量を外皮全体で平均した値。値が小さいほど熱が逃げにくく、省エネルギー性能が高いことを示します。
  • 上部構造とは壁や柱など家の構造物のこと。上部構造評点とは、震度6強の地震で建物が倒壊しないために必要な力を数値で表した必要耐力(Qr)に対する現状の耐力の割合を表します。
  • 既存木造住宅の上部構造評点1.0、1.25、1.5は、品確法においての耐震等級1、2、3レベルに相当します。