2024年 エントリー作品

特別賞

人も犬も快適に...長期優良住宅で長く暮らせるお家

中古物件購入+リノベーション

耐震+断熱

2,500万円

2024年12月

投票数

43 44

投票受付終了

リノベーション後 After

人も犬も快適に...長期優良住宅で長く暮らせるお家

ブラウンのガルバにリーフグリーンの玄関ドアが映えるおしゃれな外観に大変身!

人も犬も快適に...長期優良住宅で長く暮らせるお家

リビングの一角に高さ90センチの2帖ほどのお世話スペース。ゲージやトイレを設置することができ、楽にお世話が可能です。ペットの匂い対策として、天井埋め込み型空気清浄機、リビングの壁に珪藻土ペイントを採用しました。

人も犬も快適に...長期優良住宅で長く暮らせるお家

リビング南側に大きな掃き出し窓を2箇所設置し、明るく日差しが暖かい!ワンちゃんもお気に入りの場所となりました。

人も犬も快適に...長期優良住宅で長く暮らせるお家

キッチン奥には家事室→WTC→寝室→LDK。家事室→洗面室→玄関→LDKと、理想の回遊動線となっています。

人も犬も快適に...長期優良住宅で長く暮らせるお家

計5.4㎡(3.3畳)のエントランスとシューズクローク。ワンちゃんのお世話道具やお散歩から帰った後のお世話がしやすく広々。

人も犬も快適に...長期優良住宅で長く暮らせるお家

洗面壁仕上げはタイル。バスルームのドアは透明ガラスで、ホテルのような高級感あふれる空間に。

リノベーション前 Before

  • 人も犬も快適に...長期優良住宅で長く暮らせるお家

    閑静な住宅街にたたずむ平屋建てのお家。

  • 人も犬も快適に...長期優良住宅で長く暮らせるお家

    勝手口のドア等、経年劣化による傷みが出ている状態でした。

  • 人も犬も快適に...長期優良住宅で長く暮らせるお家

    ダイニングキッチン。収納もなく狭くて使い勝手の悪そうな印象。

リノベーション施工中 Process

  • 人も犬も快適に...長期優良住宅で長く暮らせるお家

    天井断熱

  • 人も犬も快適に...長期優良住宅で長く暮らせるお家

    壁断熱

  • 人も犬も快適に...長期優良住宅で長く暮らせるお家

    玄関施工中

  • 人も犬も快適に...長期優良住宅で長く暮らせるお家

    耐震金具取付

  • 人も犬も快適に...長期優良住宅で長く暮らせるお家

    耐震合板施工

間取り Plan

リノベーション前

  • 人も犬も快適に...長期優良住宅で長く暮らせるお家

    南側の横点線部分を増築しており、玄関は元々北側にありました。

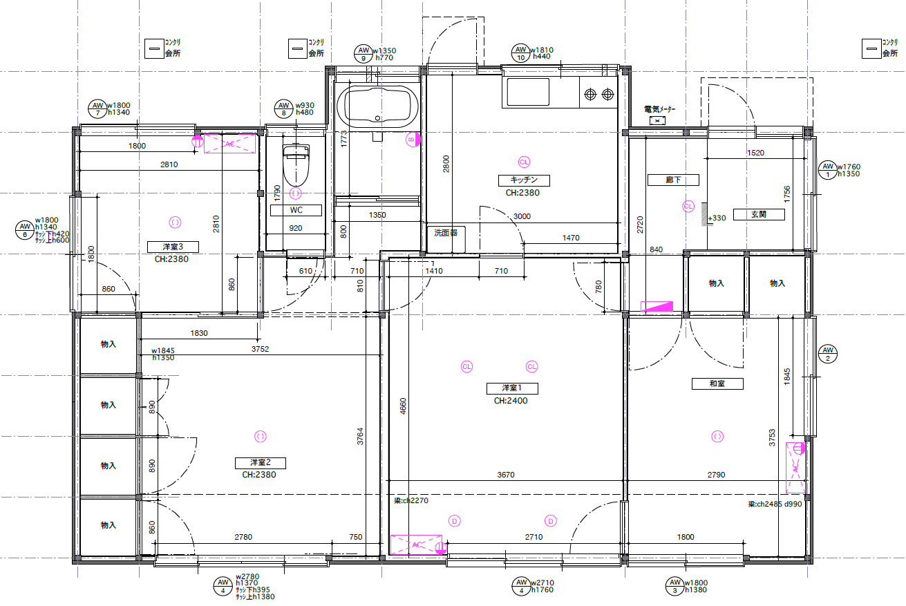
リノベーション後

  • 人も犬も快適に...長期優良住宅で長く暮らせるお家

    既存の増築部分を減築し、玄関は南側へ移動。水回りの位置もガラッと変わり回遊動線のできる間取りとなりました。

物件概要

所在地
香川県高松市
敷地面積
261.49㎡(79.1坪)
延床面積
76.61㎡(23.17坪)
構造
木造(在来)平屋階建
既存建築年
1968年(築58年)
改修竣工年月
2024年12月
断熱性能
UA値 改修前3.64w/㎡・K⇒改修後0.58w/㎡・K(改修前の6.2倍に向上)
耐震性能
上部構造評点 改修前0.54 ⇒ 改修後1.11

企業紹介

企業名
株式会社Reno Best

グレードとは

性能向上リノベでは、断熱と耐震のそれぞれの現行基準を3段階に分類し、基準を策定。性能向上リノベーションがされた証として、必要なエビデンス情報を登録し、安心・快適な家であるお墨付きの証として「性能向上登録証」を発行しています。これからの時代に選ばれる、安心・快適な家を可視化します。

断熱

ランク UA値 断熱等級
0.46 6
0.60 5
0.87 4
耐熱の説明

耐震

ランク 上部構造評点 耐震等級
1.5以上 3
1.25~1.5
未満
2
1.0~1.25
未満
1
耐震の説明
  • 建物は、自立循環型モデル住宅(在来工法)を対象に、地域区分は、6・7地域(都心部を中心)に策定しています。
  • UA値(外皮平均熱貫流率)とは住宅の内部から床、外壁、屋根(天井)や開口部などを通過して外部へ逃げる熱量を外皮全体で平均した値。値が小さいほど熱が逃げにくく、省エネルギー性能が高いことを示します。
  • 上部構造とは壁や柱など家の構造物のこと。上部構造評点とは、震度6強の地震で建物が倒壊しないために必要な力を数値で表した必要耐力(Qr)に対する現状の耐力の割合を表します。
  • 既存木造住宅の上部構造評点1.0、1.25、1.5は、品確法においての耐震等級1、2、3レベルに相当します。