2024年 エントリー作品

ゾーン断熱賞

松本の家

持ち家リノベーション・リフォーム

ゾーン断熱

2,600〜2,700万円

2024年01月

投票数

160 161

投票受付終了

リノベーション後 After

松本の家

外観

松本の家

LDK

松本の家

LDK

松本の家

主寝室よりLDKを見る

松本の家

主寝室

松本の家

玄関

リノベーション前 Before

  • 松本の家

    改修前外観

  • 松本の家

    主寝室改修前

  • 松本の家

    洋室改修前

  • 松本の家

    LDK改修前

  • 松本の家

    LDK改修前

  • 松本の家

    玄関部分改修前

リノベーション施工中 Process

  • 松本の家

    内部解体完了時

  • 松本の家

    土間スラブ配筋完了時

  • 松本の家

    耐力壁設置及び梁補強

  • 松本の家

    断熱気密工事完了時

  • 松本の家

    断熱気密工事完了時。主寝室

  • 松本の家

    断熱気密工事完了時。LDK

間取り Plan

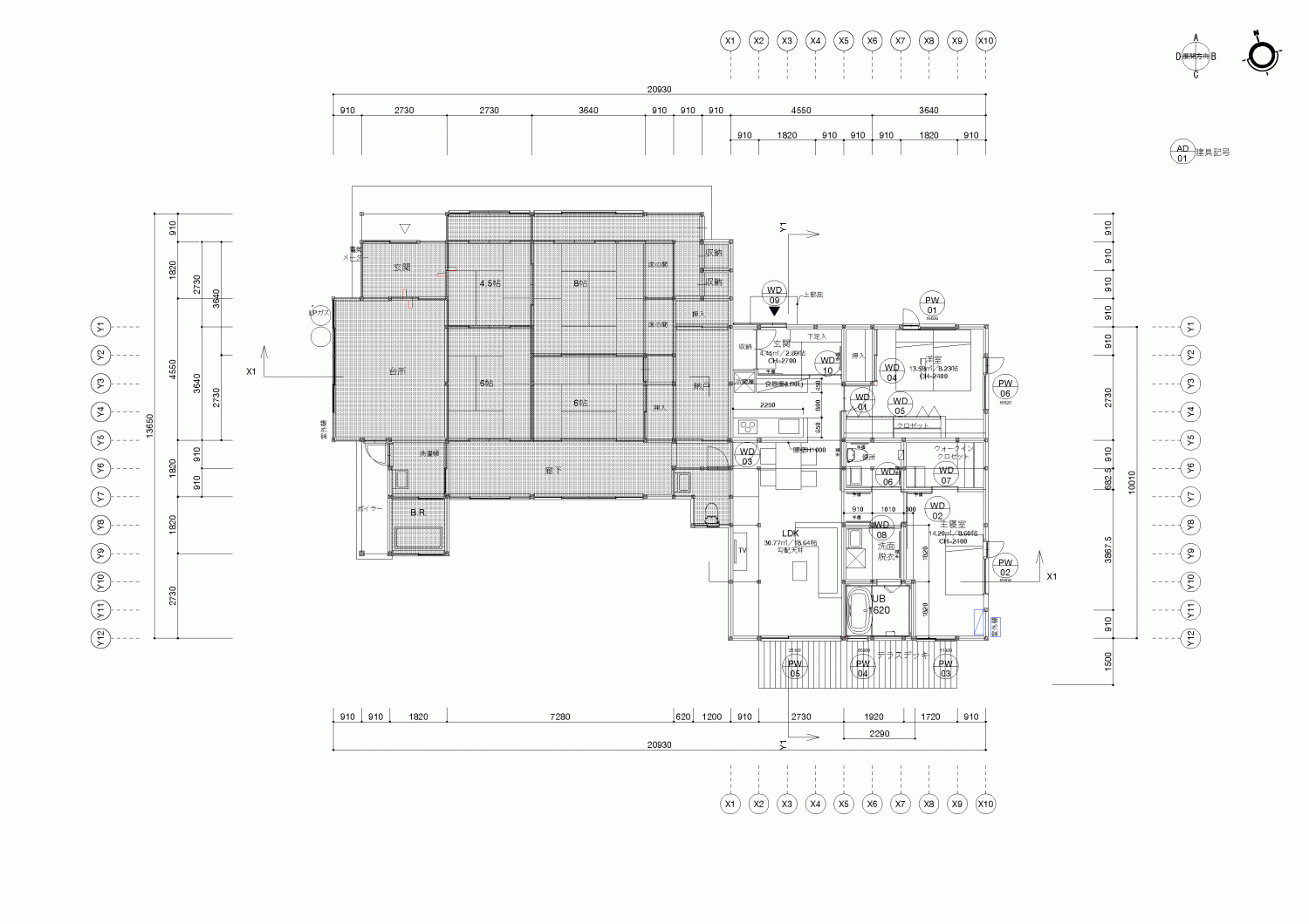
リノベーション前

  • 松本の家

    リノベーション前平面図

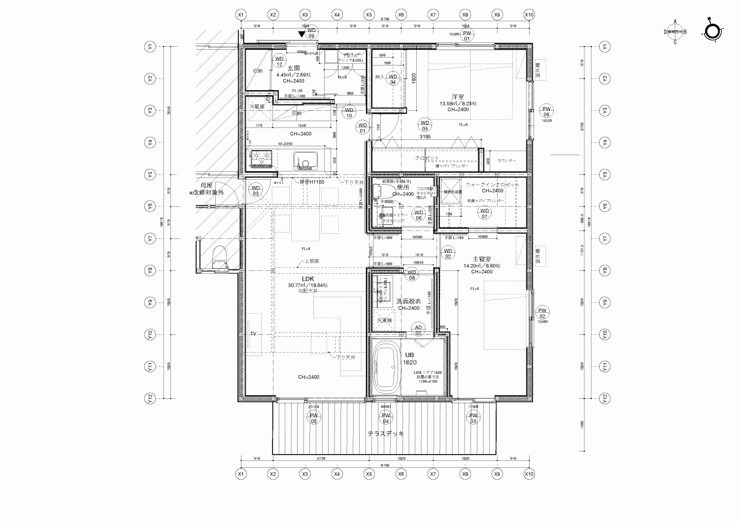
リノベーション後

  • 松本の家

    リノベーション後平面図

  • 松本の家

    平面詳細図

物件概要

所在地
長野県松本市
敷地面積
1009.05㎡(305.23坪)
延床面積
81.98㎡(24.79坪)
構造
木造在来平屋建
既存建築年
1978年(築48年)
改修竣工年月
2024年01月
断熱性能
UA値 改修前1.15w/㎡・K⇒改修後0.24w/㎡・K(改修前の4.7倍に向上)
設計

丸橋 浩

施工

株式会社コクブ

企業紹介

企業名
株式会社デザインオー建築事務所
Webサイト
https://www.design-oh.com
コメント

日本の美しい自然に感謝しつつ環境に配慮した、その場所の価値を最大化する最適解としての建築をつくっています。暖かい家、快適な室内環境をベースに、豊かな暮らしを支えるデザイン性の高い建築の設計しています。たとえ建物ひとつをデザインするとしても、まわりの環境にフィットするだけでなく、周囲の環境の価値が上がるような建築をめざし、都市計画をやり直さなくても、ひとつひとつの建築で街はよくすることができるという思いを持って、小さなプロジェクトにも取り組んでいます。

グレードとは

性能向上リノベでは、断熱と耐震のそれぞれの現行基準を3段階に分類し、基準を策定。性能向上リノベーションがされた証として、必要なエビデンス情報を登録し、安心・快適な家であるお墨付きの証として「性能向上登録証」を発行しています。これからの時代に選ばれる、安心・快適な家を可視化します。

断熱

ランク UA値 断熱等級
0.46 6
0.60 5
0.87 4
耐熱の説明

耐震

ランク 上部構造評点 耐震等級
1.5以上 3
1.25~1.5
未満
2
1.0~1.25
未満
1
耐震の説明
  • 建物は、自立循環型モデル住宅(在来工法)を対象に、地域区分は、6・7地域(都心部を中心)に策定しています。
  • UA値(外皮平均熱貫流率)とは住宅の内部から床、外壁、屋根(天井)や開口部などを通過して外部へ逃げる熱量を外皮全体で平均した値。値が小さいほど熱が逃げにくく、省エネルギー性能が高いことを示します。
  • 上部構造とは壁や柱など家の構造物のこと。上部構造評点とは、震度6強の地震で建物が倒壊しないために必要な力を数値で表した必要耐力(Qr)に対する現状の耐力の割合を表します。
  • 既存木造住宅の上部構造評点1.0、1.25、1.5は、品確法においての耐震等級1、2、3レベルに相当します。