2024年 エントリー作品

特別賞

新磯野の家

持ち家リノベーション・リフォーム

耐震+断熱

1,800〜2,000万円

2024年11月

投票数

32 33

投票受付終了

リノベーション後 After

新磯野の家

玄関ホール。来客時の視線に配慮して木製の引き込戸を設置。土間は洗い出し仕上げ。

新磯野の家

ダイニングは木調の天井とし高さを2250mmに抑えています。床は無垢フローリングのサクラ仕上げ。

新磯野の家

リビングは天井をR状にし、ダイニングとのメリハリを付け、開放感を感じられる仕上がりにしました。床壁ともにオガファーザー貼り。

新磯野の家

壁面の収納や机などは造作にて製作し統一感のある空間を目指しました。

新磯野の家

リビングの一角にパソコンスペース。畳コーナーには奥行きのあるローソファを設置し寛げる場所をつくりました。

新磯野の家

外壁、屋根はガルバリウム鋼板仕上げ。

リノベーション前 Before

  • 新磯野の家

    外観

  • 新磯野の家

    1階和室

  • 新磯野の家

    1階DK

リノベーション施工中 Process

  • 新磯野の家

    床断熱材施工、グラスウール24k80mm

  • 新磯野の家

    1階壁断熱材充填、アクリアウール16K105mm

  • 新磯野の家

    外壁外張り断熱施工、スタイロフォーム30mm

  • 新磯野の家

    一部梁と柱を新設。筋交いと柱頭柱脚は耐震金物で補強。

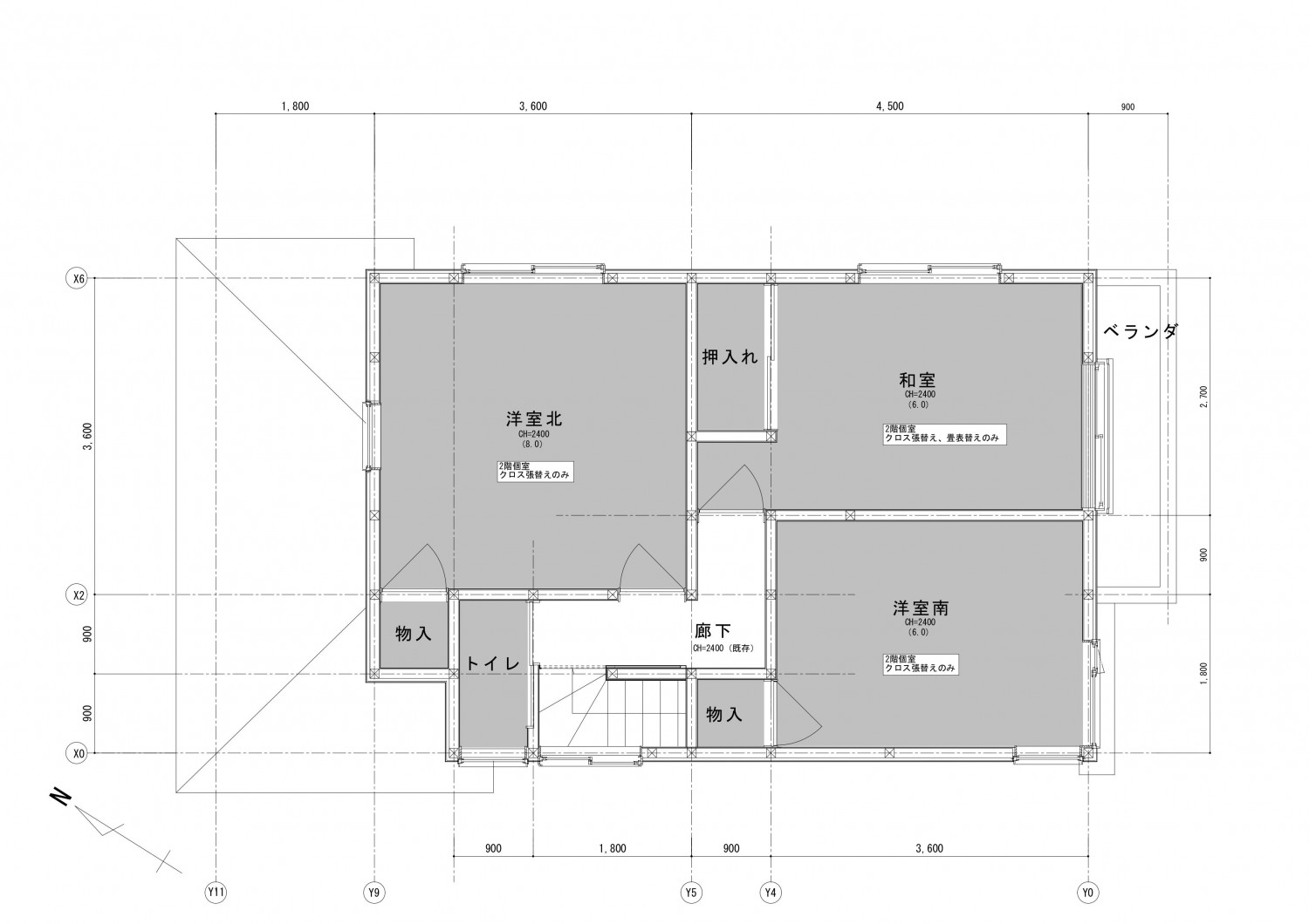
間取り Plan

リノベーション前

  • 新磯野の家

    2世帯住宅として使用していた為、1階が細かく区切られた間取りでした。

リノベーション後

  • 新磯野の家

    キッチンに立つとリビングを抜けて庭まで見渡せる間取りへ。天井の変化や壁の配置の仕方でやんわりと空間を分けてただ広いだけの空間にならないよう配慮しました。

  • 新磯野の家

    2階はサッシの交換のみとして、外側から断熱材を充填しました。

物件概要

所在地
神奈川県相模原市南区
敷地面積
123.90㎡(37.47坪)
延床面積
94.77㎡(28.66坪)
構造
木造在来2階建て
既存建築年
1993年(築33年)
改修竣工年月
2024年11月
断熱性能
UA値 改修前2.58w/㎡・K⇒改修後0.43w/㎡・K(改修前の6倍に向上)
耐震性能
上部構造評点 改修前0.35 ⇒ 改修後1.40
設計

井上廣一

企業紹介

企業名
株式会社スマイル

グレードとは

性能向上リノベでは、断熱と耐震のそれぞれの現行基準を3段階に分類し、基準を策定。性能向上リノベーションがされた証として、必要なエビデンス情報を登録し、安心・快適な家であるお墨付きの証として「性能向上登録証」を発行しています。これからの時代に選ばれる、安心・快適な家を可視化します。

断熱

ランク UA値 断熱等級
0.46 6
0.60 5
0.87 4
耐熱の説明

耐震

ランク 上部構造評点 耐震等級
1.5以上 3
1.25~1.5
未満
2
1.0~1.25
未満
1
耐震の説明
  • 建物は、自立循環型モデル住宅(在来工法)を対象に、地域区分は、6・7地域(都心部を中心)に策定しています。
  • UA値(外皮平均熱貫流率)とは住宅の内部から床、外壁、屋根(天井)や開口部などを通過して外部へ逃げる熱量を外皮全体で平均した値。値が小さいほど熱が逃げにくく、省エネルギー性能が高いことを示します。
  • 上部構造とは壁や柱など家の構造物のこと。上部構造評点とは、震度6強の地震で建物が倒壊しないために必要な力を数値で表した必要耐力(Qr)に対する現状の耐力の割合を表します。
  • 既存木造住宅の上部構造評点1.0、1.25、1.5は、品確法においての耐震等級1、2、3レベルに相当します。