2024年 エントリー作品

何としてもこの地に住みたい!

持ち家リノベーション・リフォーム

耐震+断熱

1,200〜1,300万円

2023年11月

投票数

14 15

投票受付終了

リノベーション後 After

何としてもこの地に住みたい!

改修後(西側)

何としてもこの地に住みたい!

改修後(北側)

何としてもこの地に住みたい!

接道する西側に玄関の位置を変えて暮らしやすく

何としてもこの地に住みたい!

仕上げのカーペット敷きは引き渡し後に施主DIY施工となります

何としてもこの地に住みたい!

システムキッチンに入れ替えて使いやすくなりました

何としてもこの地に住みたい!

高断熱ユニットバスで冬も安心して入浴できます

リノベーション前 Before

  • 何としてもこの地に住みたい!

    改修前(西側)

  • 何としてもこの地に住みたい!

    改修前(北側)

  • 何としてもこの地に住みたい!

    改修前の玄関は南側にありました

  • 何としてもこの地に住みたい!

    居間

  • 何としてもこの地に住みたい!

    台所

  • 何としてもこの地に住みたい!

    とても寒かった浴室

リノベーション施工中 Process

  • 何としてもこの地に住みたい!

    構造から見直し耐震補強

  • 何としてもこの地に住みたい!

    昭和33年の新築時の新聞が解体時に出てきました!

  • 何としてもこの地に住みたい!

    基礎の補強で型枠を設置(コンクリート打設前)

  • 何としてもこの地に住みたい!

    外張り断熱45mm+
    透湿防水シート+外壁下地

  • 何としてもこの地に住みたい!

    床断熱45mm+気密シート+合板下地

  • 何としてもこの地に住みたい!

    充填断熱(GW105mm)

間取り Plan

リノベーション前

  • 何としてもこの地に住みたい!

    既存1階平面図

  • 何としてもこの地に住みたい!

    既存2階平面図

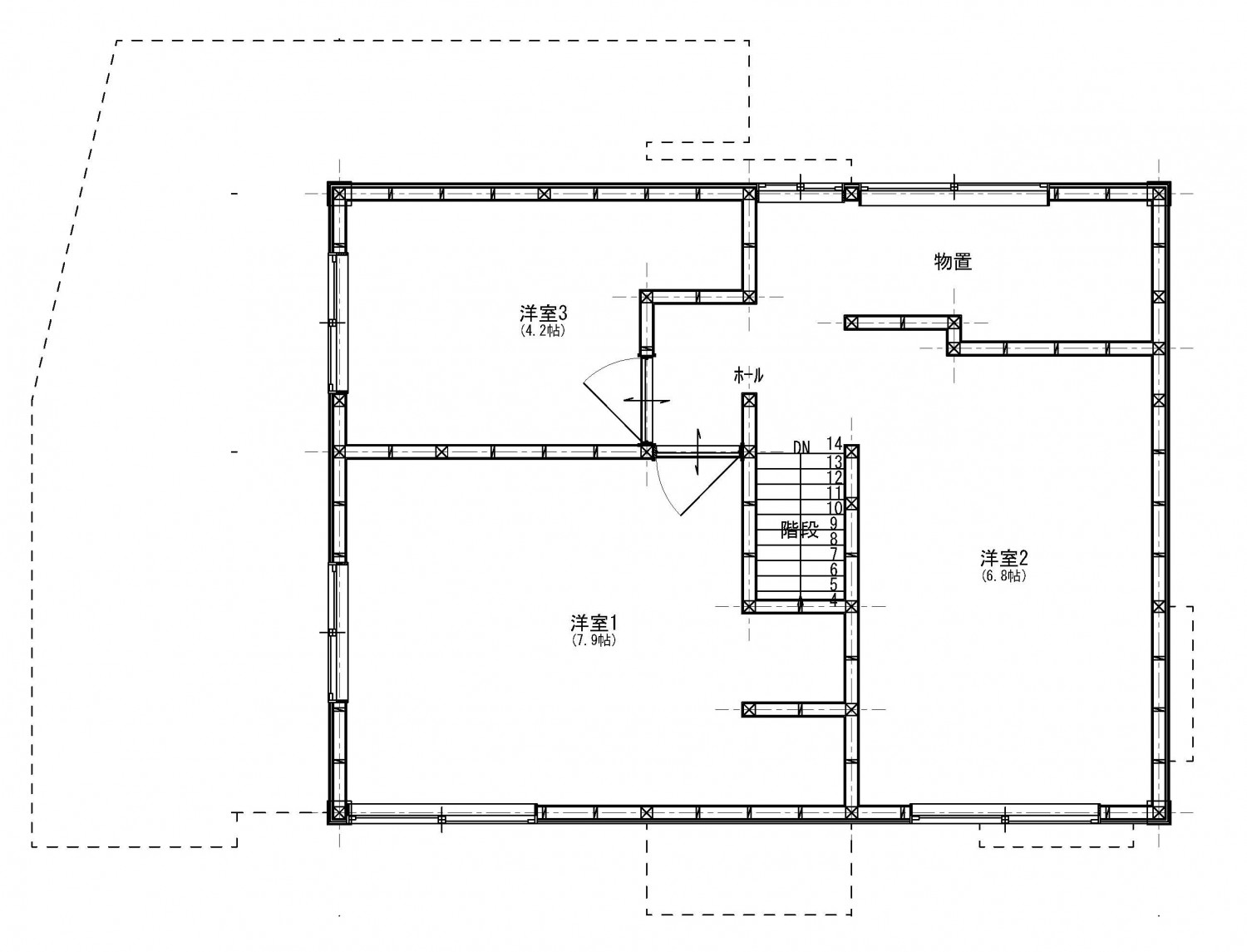
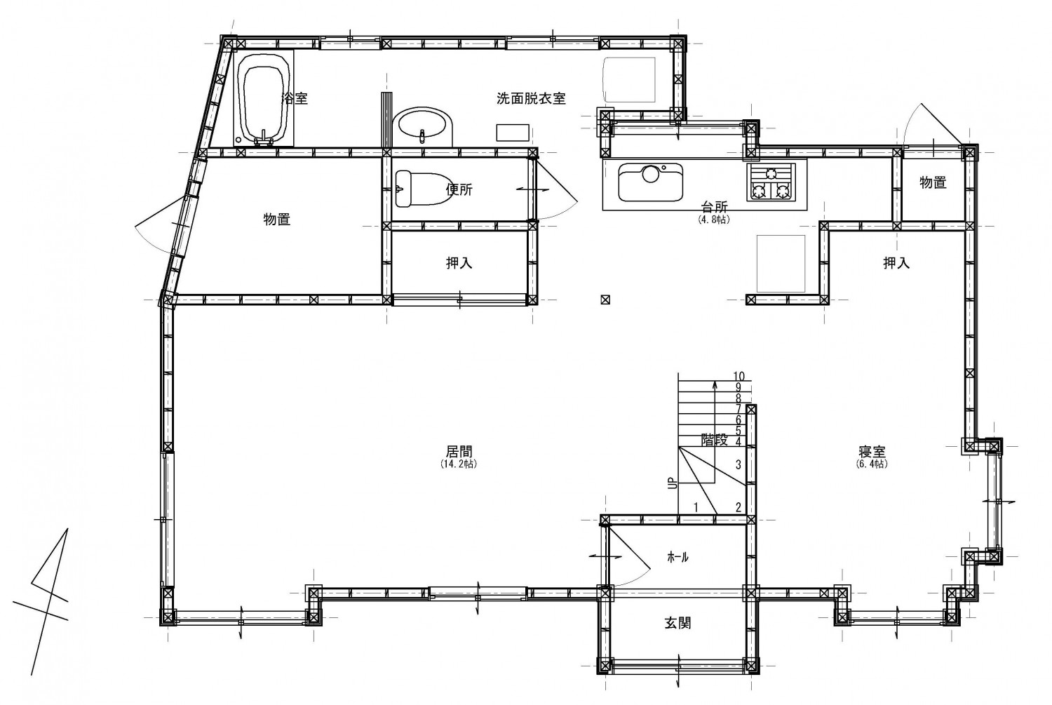
リノベーション後

  • 何としてもこの地に住みたい!

    改修後1階平面図

  • 何としてもこの地に住みたい!

    改修後2階平面図

物件概要

所在地
札幌市中央区
敷地面積
149.38㎡(45.18坪)
延床面積
102.14㎡(30.89坪)
構造
木造在来2階建て
既存建築年
1956年(築70年)
改修竣工年月
2023年11月
断熱性能
UA値 改修前0.85w/㎡・K⇒改修後0.4w/㎡・K(改修前の2.125倍に向上)
耐震性能
上部構造評点 改修後1.01

企業紹介

企業名
株式会社アルティザン建築工房
Webサイト
https://a-san.jp/
コメント

札幌でリノベーション専門店として創業以来、はじめて家を持つ、子育て世代のお客様を中心に無理のないお支払いで資産価値のある高性能な住まいづくりをしています。平成26年度からスタートした国の補助事業「長期優良住宅化リフォーム推進事業」にも積極的にエントリーをして認定された実績は、現在では130棟を超えています。

グレードとは

性能向上リノベでは、断熱と耐震のそれぞれの現行基準を3段階に分類し、基準を策定。性能向上リノベーションがされた証として、必要なエビデンス情報を登録し、安心・快適な家であるお墨付きの証として「性能向上登録証」を発行しています。これからの時代に選ばれる、安心・快適な家を可視化します。

断熱

ランク UA値 断熱等級
0.46 6
0.60 5
0.87 4
耐熱の説明

耐震

ランク 上部構造評点 耐震等級
1.5以上 3
1.25~1.5
未満
2
1.0~1.25
未満
1
耐震の説明
  • 建物は、自立循環型モデル住宅(在来工法)を対象に、地域区分は、6・7地域(都心部を中心)に策定しています。
  • UA値(外皮平均熱貫流率)とは住宅の内部から床、外壁、屋根(天井)や開口部などを通過して外部へ逃げる熱量を外皮全体で平均した値。値が小さいほど熱が逃げにくく、省エネルギー性能が高いことを示します。
  • 上部構造とは壁や柱など家の構造物のこと。上部構造評点とは、震度6強の地震で建物が倒壊しないために必要な力を数値で表した必要耐力(Qr)に対する現状の耐力の割合を表します。
  • 既存木造住宅の上部構造評点1.0、1.25、1.5は、品確法においての耐震等級1、2、3レベルに相当します。