2024年 エントリー作品

選考委員賞

無為庵(むいあん)~リノベで実現する自然と共に生きる暮らし~

中古物件購入+リノベーション

耐震+断熱

3,500万円

2024年11月

投票数

14 15

投票受付終了

リノベーション後 After

無為庵(むいあん)~リノベで実現する自然と共に生きる暮らし~

庭は既存の樹木に加え富士山の溶岩石を使用したつくりで既存の庭との調和を目指した。

無為庵(むいあん)~リノベで実現する自然と共に生きる暮らし~

リビングはピットリビングに造作ソファを設け広い空間でも落ち着けるよう工夫した。

無為庵(むいあん)~リノベで実現する自然と共に生きる暮らし~

ダイニングやキッチンからは敷地西側には雄大な山並みが広がる。内壁はあえて全面グレーとし洞穴のような落ち着ける空間を目指した。

無為庵(むいあん)~リノベで実現する自然と共に生きる暮らし~

玄関横には書斎を設けワークスペースや書斎として利用、既存の梅やカエデの木もの見える

無為庵(むいあん)~リノベで実現する自然と共に生きる暮らし~

リビングには小型のクッキング薪ストーブも設置、高断熱ながらも火のある暮らしや料理を楽しめる空間とした。

無為庵(むいあん)~リノベで実現する自然と共に生きる暮らし~

庭には雑木を植え庭で過ごす楽しみが味わえるデッキをしつらえた。キッチン前には畑や果樹を植え育てる予定。

リノベーション前 Before

  • 無為庵(むいあん)~リノベで実現する自然と共に生きる暮らし~

    庭が鬱蒼として全体像が見えない状態だった

  • 無為庵(むいあん)~リノベで実現する自然と共に生きる暮らし~

    かろうじて北面から平屋の様子がうかがえた

  • 無為庵(むいあん)~リノベで実現する自然と共に生きる暮らし~

    内部は前の住まい手さんがDIYでリフォームを行った様子が見られた

  • 無為庵(むいあん)~リノベで実現する自然と共に生きる暮らし~

    和室の続き間

  • 無為庵(むいあん)~リノベで実現する自然と共に生きる暮らし~

    北面の個室

  • 無為庵(むいあん)~リノベで実現する自然と共に生きる暮らし~

    東面の個室

リノベーション施工中 Process

  • 無為庵(むいあん)~リノベで実現する自然と共に生きる暮らし~

    耐力壁を整理し、必要最低限の補強となるよう抱かせ基礎を施工した

  • 無為庵(むいあん)~リノベで実現する自然と共に生きる暮らし~

    制作金物による抱かせ基礎との一体化

  • 無為庵(むいあん)~リノベで実現する自然と共に生きる暮らし~

    大引き 根太間の床断熱施工

  • 無為庵(むいあん)~リノベで実現する自然と共に生きる暮らし~

    外壁付加断熱施工

  • 無為庵(むいあん)~リノベで実現する自然と共に生きる暮らし~

    外壁面材施工

  • 無為庵(むいあん)~リノベで実現する自然と共に生きる暮らし~

    水平構面の補強

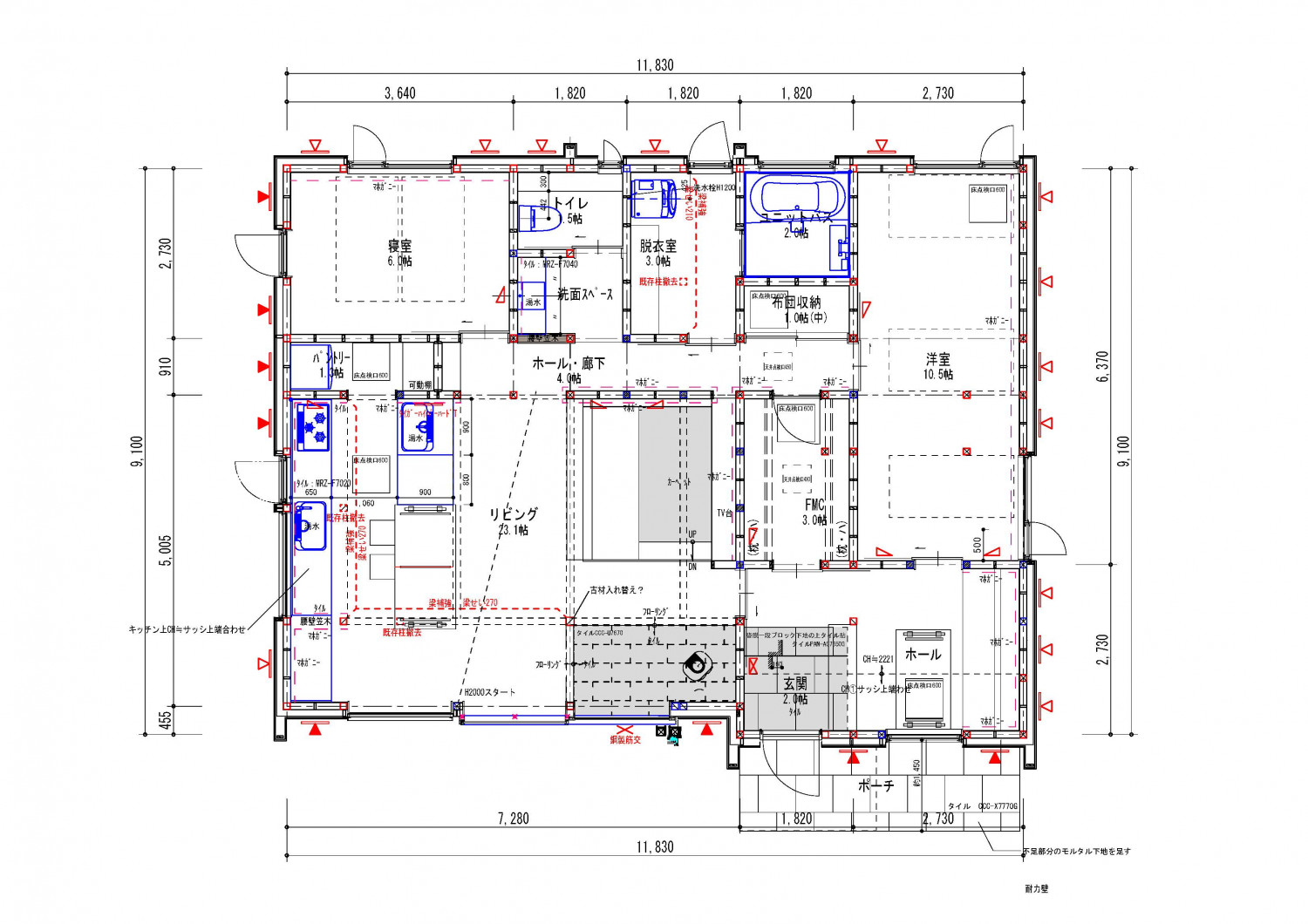
間取り Plan

リノベーション前

  • 無為庵(むいあん)~リノベで実現する自然と共に生きる暮らし~

    既存の間取りは二間続きの和室と居間、食堂のあるこの時代では一般的なプランであった。

リノベーション後

  • 無為庵(むいあん)~リノベで実現する自然と共に生きる暮らし~

    南に面した場所にLDKを配し、南、西の眺望と日射を最大限生かせる計画とした。また、リビング部分はダウンリビング 造作ソファを設えて大きな空間の中でも落ち着く空間となるようにした。また、南面の冊子には大開口の引き込みサッシを使用し、外とのつながりを感じられるように工夫した。合わせて南面の一部には薪ストーブスペースも設置し日のある暮らしも楽しめるようになっている。
    玄関横にはあえて客間や書斎、子供室の延長、ワークスペースとしても使用できるマルチな図書コーナーを設置し、限られた空間の中でもいろんな居場所を見つけられるようにしている。
    水廻りについては北面に集約し、洗面を廊下の一部としながら、中央にあるFMCにも収納をしやすく回遊できる導線計画とした。

物件概要

所在地
静岡県富士宮市
敷地面積
531.89㎡(160.90坪)
延床面積
104.34㎡(31.57坪)
構造
木造在来軸組工法
既存建築年
1974年(築52年)
改修竣工年月
2024年11月
断熱性能
UA値 改修前2.74w/㎡・K⇒改修後0.27w/㎡・K(改修前の10倍に向上)
耐震性能
上部構造評点 改修前0.53 ⇒ 改修後2.03

企業紹介

企業名
エコフィールド株式会社

グレードとは

性能向上リノベでは、断熱と耐震のそれぞれの現行基準を3段階に分類し、基準を策定。性能向上リノベーションがされた証として、必要なエビデンス情報を登録し、安心・快適な家であるお墨付きの証として「性能向上登録証」を発行しています。これからの時代に選ばれる、安心・快適な家を可視化します。

断熱

ランク UA値 断熱等級
0.46 6
0.60 5
0.87 4
耐熱の説明

耐震

ランク 上部構造評点 耐震等級
1.5以上 3
1.25~1.5
未満
2
1.0~1.25
未満
1
耐震の説明
  • 建物は、自立循環型モデル住宅(在来工法)を対象に、地域区分は、6・7地域(都心部を中心)に策定しています。
  • UA値(外皮平均熱貫流率)とは住宅の内部から床、外壁、屋根(天井)や開口部などを通過して外部へ逃げる熱量を外皮全体で平均した値。値が小さいほど熱が逃げにくく、省エネルギー性能が高いことを示します。
  • 上部構造とは壁や柱など家の構造物のこと。上部構造評点とは、震度6強の地震で建物が倒壊しないために必要な力を数値で表した必要耐力(Qr)に対する現状の耐力の割合を表します。
  • 既存木造住宅の上部構造評点1.0、1.25、1.5は、品確法においての耐震等級1、2、3レベルに相当します。