2024年 エントリー作品

特別賞

連環の家

持ち家リノベーション・リフォーム

耐震+断熱

3,000〜3,500万円

2024年07月

投票数

161 162

投票受付終了

リノベーション後 After

連環の家

玄関からダイニングリビング

連環の家

キッチンからダイニングリビング・庭園

連環の家

外観全景

連環の家

脱衣・ハーフユニットバス

連環の家

太鼓梁とR天井の寝室

連環の家

ミセスコーナー

リノベーション前 Before

  • 連環の家

    改修前 外観

  • 連環の家

    改修前 内観

  • 連環の家

    改修前 小屋裏

  • 連環の家

    改修前 床下

  • 連環の家

    改修前 丸太梁

リノベーション施工中 Process

  • 連環の家

    施工中 瓦撤去

  • 連環の家

    施工中 垂木の取替

  • 連環の家

    施工中 グラスウール充填

  • 連環の家

    施工中 外壁付加断熱

  • 連環の家

    施工中 天井吹き込み①

  • 連環の家

    施工中 天井吹き込み②

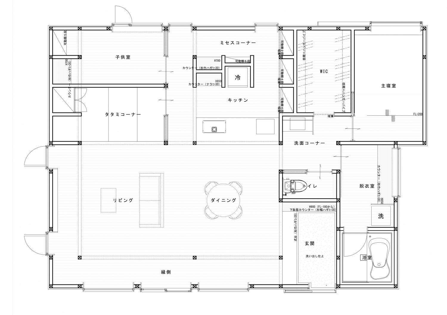
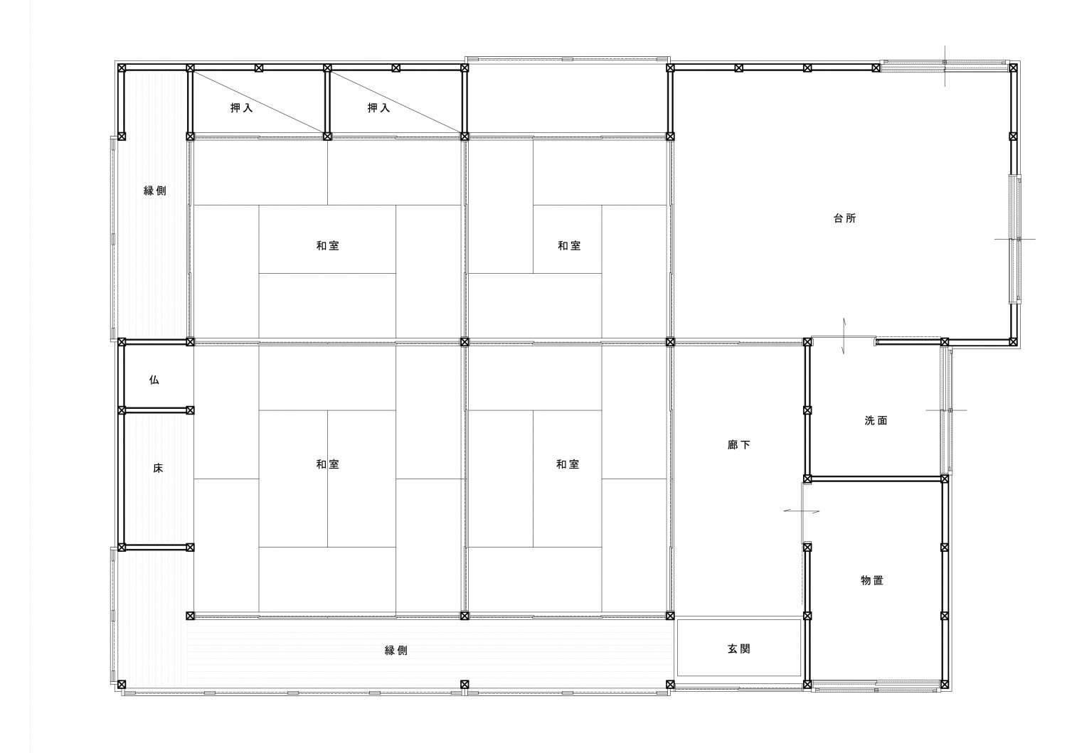
間取り Plan

リノベーション前

  • 連環の家

    開口ばかりの田の字プラン。浴室とトイレは離れに増築してありました。

リノベーション後

  • 連環の家

    基本構造はそのままに、スケルトンの中に自社大工たちによる造作家具を置いていくような間取りにしました。

  • 連環の家

    ご提案時にお見せした手描きパース。

物件概要

所在地
広島県安芸郡熊野町
敷地面積
959.72㎡(290.37坪)
延床面積
102.15㎡(30.91坪)
構造
木造在来工法平屋建て
既存建築年
1957年(築69年)
改修竣工年月
2024年07月
断熱性能
UA値 改修前3.39w/㎡・K⇒改修後0.31w/㎡・K(改修前の10.9倍に向上)
耐震性能
上部構造評点 改修前0.3 ⇒ 改修後1.03
設計

清川創史

施工

株式会社きよかわ

企業紹介

企業名
株式会社きよかわ
Webサイト
https://www.kiyokawanoie.com/
コメント

暮らしは人がつくるもの。
私たちはそう考えています。住む人の想いと、つくる人の想い。
住まい手の暮らし方、つくり手の技術。人と人とが、お互いに手を取り合い、手を込めたとき、
真の心地良さをつくり出すことが出来ます。私たちが手掛けるのは、住む人の想いを読み解き、
社員大工を筆頭に、職人たちとの手と心を込めた住まいです。この住まいを住まい手の暮らし方によって、
大切に育てていただけることが私たちの喜びです。

グレードとは

性能向上リノベでは、断熱と耐震のそれぞれの現行基準を3段階に分類し、基準を策定。性能向上リノベーションがされた証として、必要なエビデンス情報を登録し、安心・快適な家であるお墨付きの証として「性能向上登録証」を発行しています。これからの時代に選ばれる、安心・快適な家を可視化します。

断熱

ランク UA値 断熱等級
0.46 6
0.60 5
0.87 4
耐熱の説明

耐震

ランク 上部構造評点 耐震等級
1.5以上 3
1.25~1.5
未満
2
1.0~1.25
未満
1
耐震の説明
  • 建物は、自立循環型モデル住宅(在来工法)を対象に、地域区分は、6・7地域(都心部を中心)に策定しています。
  • UA値(外皮平均熱貫流率)とは住宅の内部から床、外壁、屋根(天井)や開口部などを通過して外部へ逃げる熱量を外皮全体で平均した値。値が小さいほど熱が逃げにくく、省エネルギー性能が高いことを示します。
  • 上部構造とは壁や柱など家の構造物のこと。上部構造評点とは、震度6強の地震で建物が倒壊しないために必要な力を数値で表した必要耐力(Qr)に対する現状の耐力の割合を表します。
  • 既存木造住宅の上部構造評点1.0、1.25、1.5は、品確法においての耐震等級1、2、3レベルに相当します。