2024年 エントリー作品

特別賞

思い出の詰まった場所で、新しい家族との物語を紡ぐ家

中古物件購入+リノベーション

耐震+断熱

1,500〜2,000万円

2024年05月

投票数

42 43

投票受付終了

リノベーション後 After

思い出の詰まった場所で、新しい家族との物語を紡ぐ家

玄関位置を変え、駐車スペース3台分確保

思い出の詰まった場所で、新しい家族との物語を紡ぐ家

リビング階段で家族間のコミュニケーションを促進

思い出の詰まった場所で、新しい家族との物語を紡ぐ家

奥様こだわりのキッチンは家事動線良く使いやすい

思い出の詰まった場所で、新しい家族との物語を紡ぐ家

ランドリースペース
ガス乾燥機設置予定

思い出の詰まった場所で、新しい家族との物語を紡ぐ家

リビングの収納として使う予定が、いつの間にかお子様の秘密基地に

リノベーション前 Before

  • 思い出の詰まった場所で、新しい家族との物語を紡ぐ家

    外観の状態は良いと感じる。駐車スペースが無い状態でした

  • 思い出の詰まった場所で、新しい家族との物語を紡ぐ家

    キッチンは寒く・暗く・孤立した空間でした。子育て中には不便

  • 思い出の詰まった場所で、新しい家族との物語を紡ぐ家

    冬場は冷えやすく、ヒートショックのリスクが高まる在来工法の浴室

  • 思い出の詰まった場所で、新しい家族との物語を紡ぐ家

    階段は勾配が急で、昇り降りが大変でした

  • 思い出の詰まった場所で、新しい家族との物語を紡ぐ家

    昭和時代を感じるアルミ製の玄関ドア

リノベーション施工中 Process

  • 思い出の詰まった場所で、新しい家族との物語を紡ぐ家

    フルスケルトン状態にするため、手作業での解体作業

  • 思い出の詰まった場所で、新しい家族との物語を紡ぐ家

    防湿シートを敷設、あと施工アンカーによる一体化して、コンクリート基礎を打設

  • 思い出の詰まった場所で、新しい家族との物語を紡ぐ家

    吹付断熱施工
    ダルトフォーム
    厚さ:80㎜

  • 思い出の詰まった場所で、新しい家族との物語を紡ぐ家

    天井断熱施工
    アクリアマット
    厚さ:155㎜

  • 思い出の詰まった場所で、新しい家族との物語を紡ぐ家

    床断熱施工
    スタイロエース-II
    厚さ:65㎜

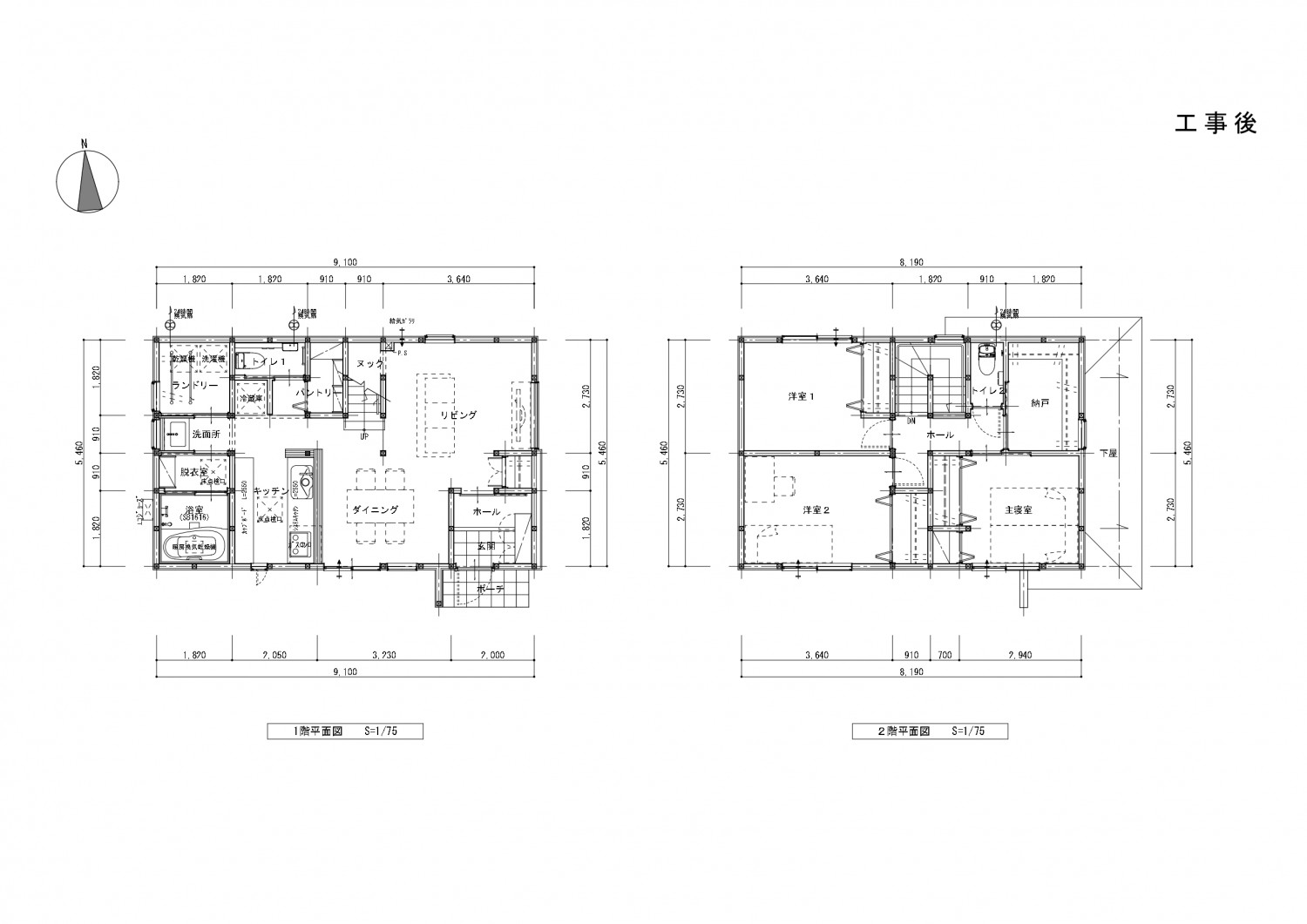
間取り Plan

リノベーション前

  • 思い出の詰まった場所で、新しい家族との物語を紡ぐ家

    【既存平面図】
    築38年の2階建て住宅。細かく分かれている昔ながらの間取り。

  • 思い出の詰まった場所で、新しい家族との物語を紡ぐ家

    【既存立面図】
    外壁はひび割れ等無く状態は良好。

リノベーション後

  • 思い出の詰まった場所で、新しい家族との物語を紡ぐ家

    【改修後平面図】
    玄関、階段、水廻りを大きく変更し、使い勝手と家事動線が向上する間取りに。

  • 思い出の詰まった場所で、新しい家族との物語を紡ぐ家

    【改修後立面図】
    瓦、外壁は状態が良かった為、既存の上から塗装。玄関廻りにアクセントでサイディング張りを採用した事で今時の印象に変えました。

物件概要

所在地
岡山県岡山市南区
敷地面積
132.24㎡(40坪)
延床面積
94.39㎡(28.55坪)
構造
木造在来2階建
既存建築年
1986年(築40年)
改修竣工年月
2024年05月
断熱性能
UA値 改修前1.55w/㎡・K⇒改修後0.55w/㎡・K(改修前の2.8倍に向上)
耐震性能
上部構造評点 改修前0.69 ⇒ 改修後1.15

企業紹介

企業名
株式会社ベースワーク
Webサイト
https://basework.jp
コメント

リフォーム・リノベーションを得意とする若い工務店です。
古くなった家に新たな命を吹き込み、自然と心が穏やかになる 空間づくりを目指します。住まいを多角的視点でとらえ、耐震・ 断熱などの性能はもちろん、間取りやデザイン・インテリア等、 女性建築士が生活を大切にしたご提案を致します。

グレードとは

性能向上リノベでは、断熱と耐震のそれぞれの現行基準を3段階に分類し、基準を策定。性能向上リノベーションがされた証として、必要なエビデンス情報を登録し、安心・快適な家であるお墨付きの証として「性能向上登録証」を発行しています。これからの時代に選ばれる、安心・快適な家を可視化します。

断熱

ランク UA値 断熱等級
0.46 6
0.60 5
0.87 4
耐熱の説明

耐震

ランク 上部構造評点 耐震等級
1.5以上 3
1.25~1.5
未満
2
1.0~1.25
未満
1
耐震の説明
  • 建物は、自立循環型モデル住宅(在来工法)を対象に、地域区分は、6・7地域(都心部を中心)に策定しています。
  • UA値(外皮平均熱貫流率)とは住宅の内部から床、外壁、屋根(天井)や開口部などを通過して外部へ逃げる熱量を外皮全体で平均した値。値が小さいほど熱が逃げにくく、省エネルギー性能が高いことを示します。
  • 上部構造とは壁や柱など家の構造物のこと。上部構造評点とは、震度6強の地震で建物が倒壊しないために必要な力を数値で表した必要耐力(Qr)に対する現状の耐力の割合を表します。
  • 既存木造住宅の上部構造評点1.0、1.25、1.5は、品確法においての耐震等級1、2、3レベルに相当します。