2024年 エントリー作品

特別賞

家族の記憶と未来を繋ぐ、家の再生物語

持ち家リノベーション・リフォーム

耐震+断熱

3,000万円

2024年11月

投票数

6 7

投票受付終了

リノベーション後 After

家族の記憶と未来を繋ぐ、家の再生物語

玄関

家族の記憶と未来を繋ぐ、家の再生物語

リビングドアから。左にキッチンがあります。

家族の記憶と未来を繋ぐ、家の再生物語

日当たりの良いリビングはとっても明るい印象になりました。

家族の記憶と未来を繋ぐ、家の再生物語

押入はCLに、床の間は部屋に取り入れてスッキリしました。

家族の記憶と未来を繋ぐ、家の再生物語

シミだらけの天井だったお部屋もとても明るくなりました。

家族の記憶と未来を繋ぐ、家の再生物語

黄色いクロスがかわいいトイレがお気に入りポイントです!

リノベーション前 Before

  • 家族の記憶と未来を繋ぐ、家の再生物語

    玄関、ホール

  • 家族の記憶と未来を繋ぐ、家の再生物語

    居間

  • 家族の記憶と未来を繋ぐ、家の再生物語

    台所を背に居間に向いているところです。

  • 家族の記憶と未来を繋ぐ、家の再生物語

    畳、土壁、押入れ、床の間と懐かしい感じがするお部屋です。

  • 家族の記憶と未来を繋ぐ、家の再生物語

    天井は雨染みがあり、簡単に崩れてしまうくらい脆くなっていました。

  • 家族の記憶と未来を繋ぐ、家の再生物語

    お風呂とトイレはリフォーム履歴がありました。

リノベーション施工中 Process

  • 家族の記憶と未来を繋ぐ、家の再生物語

    表面を壊すと中は全て土壁でした。再利用できる柱は全て残しています。

  • 家族の記憶と未来を繋ぐ、家の再生物語

    白蟻の被害を認識していましたが、解体すると想像以上で、、、何本も柱を入れ替えました。

  • 家族の記憶と未来を繋ぐ、家の再生物語

    基礎が無筋だったので、アラミド繊維を用いて補強、隙間は全てウレタンで埋めています。

  • 家族の記憶と未来を繋ぐ、家の再生物語

    壁はマグイゾベール、床はフェノバボードで断熱を。上から気密シートとテープでしっかり密閉しています。

  • 家族の記憶と未来を繋ぐ、家の再生物語

    壁は全て構造用合板。ビスピッチは150mmです。

  • 家族の記憶と未来を繋ぐ、家の再生物語

    リビングのこだわりポイントです!

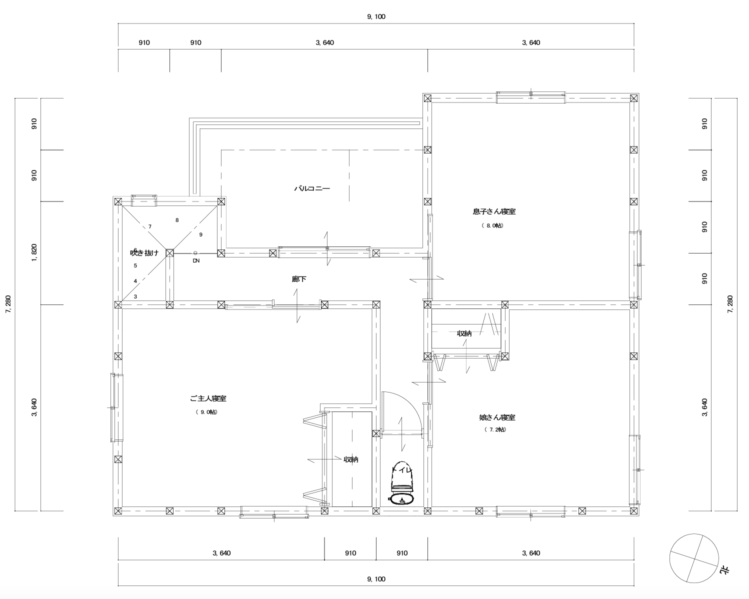
間取り Plan

リノベーション前

  • 家族の記憶と未来を繋ぐ、家の再生物語

    1階

  • 家族の記憶と未来を繋ぐ、家の再生物語

    2階

リノベーション後

  • 家族の記憶と未来を繋ぐ、家の再生物語

    1階

  • 家族の記憶と未来を繋ぐ、家の再生物語

    2階

物件概要

所在地
大阪府吹田市
敷地面積
188.47㎡(57.01坪)
延床面積
116.77㎡(35.32坪)
構造
木造軸組工法2階建
既存建築年
1969年(築57年)
改修竣工年月
2024年11月
断熱性能
UA値 改修後0.29w/㎡・K
耐震性能
上部構造評点 改修前0.16 ⇒ 改修後1.56

企業紹介

企業名
エスシステム株式会社
Webサイト
https://www.cloverhouse.net/
コメント

「家を探す。買う。リノベーションする。理想の暮らしを北摂で。」 北摂で暮らすご家族の理想の暮らしを実現する為に、快適でワクワクする住空間づくりを目指しています。 住まい探しから、性能向上・デザイン性の高いリノベーションをお届けします。

グレードとは

性能向上リノベでは、断熱と耐震のそれぞれの現行基準を3段階に分類し、基準を策定。性能向上リノベーションがされた証として、必要なエビデンス情報を登録し、安心・快適な家であるお墨付きの証として「性能向上登録証」を発行しています。これからの時代に選ばれる、安心・快適な家を可視化します。

断熱

ランク UA値 断熱等級
0.46 6
0.60 5
0.87 4
耐熱の説明

耐震

ランク 上部構造評点 耐震等級
1.5以上 3
1.25~1.5
未満
2
1.0~1.25
未満
1
耐震の説明
  • 建物は、自立循環型モデル住宅(在来工法)を対象に、地域区分は、6・7地域(都心部を中心)に策定しています。
  • UA値(外皮平均熱貫流率)とは住宅の内部から床、外壁、屋根(天井)や開口部などを通過して外部へ逃げる熱量を外皮全体で平均した値。値が小さいほど熱が逃げにくく、省エネルギー性能が高いことを示します。
  • 上部構造とは壁や柱など家の構造物のこと。上部構造評点とは、震度6強の地震で建物が倒壊しないために必要な力を数値で表した必要耐力(Qr)に対する現状の耐力の割合を表します。
  • 既存木造住宅の上部構造評点1.0、1.25、1.5は、品確法においての耐震等級1、2、3レベルに相当します。