2024年 エントリー作品

特別賞

長崎県 愛野町「愛の地域貢献 全館空調リノベモデル」

持ち家リノベーション・リフォーム

耐震+断熱

2,000〜3,000万円

2024年04月

投票数

319 320

投票受付終了

リノベーション後 After

長崎県 愛野町「愛の地域貢献 全館空調リノベモデル」

屋根を軽くし、雨漏れがしそうな屋根形状を変更。外観も塗り壁をメインとし、玄関にアクセントを用いるようにした。

長崎県 愛野町「愛の地域貢献 全館空調リノベモデル」

階段は昔の構造柱が化粧材になっているのヴィンテージ感のある雰囲気へ

長崎県 愛野町「愛の地域貢献 全館空調リノベモデル」

玄関もゆったりとスペースに減築。
とてもかっこよくなりました。

長崎県 愛野町「愛の地域貢献 全館空調リノベモデル」

柱はとらない! なるべく魅せる計画を立案。

長崎県 愛野町「愛の地域貢献 全館空調リノベモデル」

柱を残したことでアクセントのある雰囲気を演出できるようになり、既存の建物だったと感じることができる。

長崎県 愛野町「愛の地域貢献 全館空調リノベモデル」

様々な色や素材を使い、各部屋に物語があるようにした。家族の個性を尊重する空間提案。

リノベーション前 Before

  • 長崎県 愛野町「愛の地域貢献 全館空調リノベモデル」

    築50年の建物の外観

  • 長崎県 愛野町「愛の地域貢献 全館空調リノベモデル」

    内部は昔ながらの間取り

  • 長崎県 愛野町「愛の地域貢献 全館空調リノベモデル」

    玄関のアプローチがしづらい間取り

  • 長崎県 愛野町「愛の地域貢献 全館空調リノベモデル」

    雨漏れの跡

  • 長崎県 愛野町「愛の地域貢献 全館空調リノベモデル」

    二階の和室の二間続き

  • 長崎県 愛野町「愛の地域貢献 全館空調リノベモデル」

    白蟻被害を受けている状態。

リノベーション施工中 Process

  • 長崎県 愛野町「愛の地域貢献 全館空調リノベモデル」

    解体完了

  • 長崎県 愛野町「愛の地域貢献 全館空調リノベモデル」

    基礎がないところもあり。

  • 長崎県 愛野町「愛の地域貢献 全館空調リノベモデル」

    階段周りは柱を残すデザイン。弊社、家具職人(木工房つばさ)にてオリジナル手摺り施工。

  • 長崎県 愛野町「愛の地域貢献 全館空調リノベモデル」

    丸太梁はそのまま利用。

  • 長崎県 愛野町「愛の地域貢献 全館空調リノベモデル」

    内部は気密のためインバリアシートを全面に施工。

  • 長崎県 愛野町「愛の地域貢献 全館空調リノベモデル」

    構造も断熱も計画通りになっているか設計者の目線でチェック。

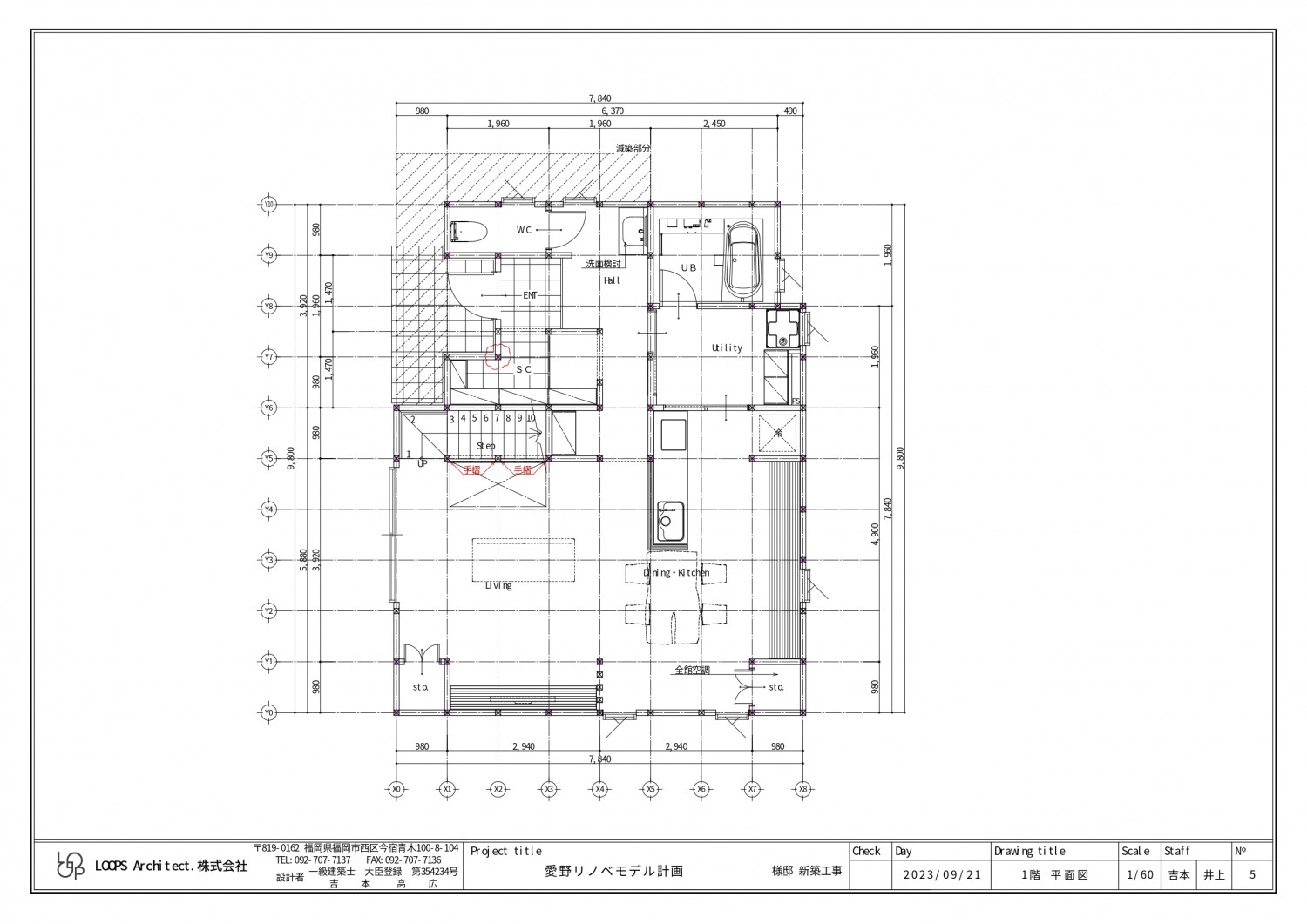
間取り Plan

リノベーション前

  • 長崎県 愛野町「愛の地域貢献 全館空調リノベモデル」

    1Fは居間と和室の二間続きがある間取り。

  • 長崎県 愛野町「愛の地域貢献 全館空調リノベモデル」

    二階は和室4部屋。

リノベーション後

  • 長崎県 愛野町「愛の地域貢献 全館空調リノベモデル」

    北側を減築し、駐車スペースを確保。
    玄関もあけるとすぐ道路だったので減築し、安全なスペースを確保。
    柱はほとんど残す状態とした。

  • 長崎県 愛野町「愛の地域貢献 全館空調リノベモデル」

    空調を全館空調にするため吹き抜けを階段横に計画し、階段のデザインもオリジナルで木と金物を使用し、既存柱を活かしたものとした。

  • 長崎県 愛野町「愛の地域貢献 全館空調リノベモデル」

    外観は越境部分の解消のため軒を短くし、屋根形状もシンプルにかけなおし、軽い屋根とした。

物件概要

所在地
長崎県雲仙市愛野町
敷地面積
250.34㎡(75.72坪)
延床面積
133.11㎡(40.26坪)
構造
木造在来2階建て
既存建築年
1975年(築51年)
改修竣工年月
2024年04月
断熱性能
UA値 改修前1.85w/㎡・K⇒改修後0.39w/㎡・K(改修前の4.8倍に向上)
耐震性能
上部構造評点 改修前0.22 ⇒ 改修後1.5

企業紹介

企業名
ループスアーキテクト一級建築士事務所
Webサイト
https://loops-a.com/
コメント

経営理念

「人と暮らしの輪をつなぎ、幸せの和を紡ぎます。
私たちは、ご縁のある皆様の夢の実現に貢献する企業です。」

VISION

日本の設計技術で、世界中に笑顏を
世界は「縁」でできている

先 義 後 利

正しい人の道を先にして、利益の追求は後にするという意味で、LOOPS Architect.,incの企業の在り方となっております。

グレードとは

性能向上リノベでは、断熱と耐震のそれぞれの現行基準を3段階に分類し、基準を策定。性能向上リノベーションがされた証として、必要なエビデンス情報を登録し、安心・快適な家であるお墨付きの証として「性能向上登録証」を発行しています。これからの時代に選ばれる、安心・快適な家を可視化します。

断熱

ランク UA値 断熱等級
0.46 6
0.60 5
0.87 4
耐熱の説明

耐震

ランク 上部構造評点 耐震等級
1.5以上 3
1.25~1.5
未満
2
1.0~1.25
未満
1
耐震の説明
  • 建物は、自立循環型モデル住宅(在来工法)を対象に、地域区分は、6・7地域(都心部を中心)に策定しています。
  • UA値(外皮平均熱貫流率)とは住宅の内部から床、外壁、屋根(天井)や開口部などを通過して外部へ逃げる熱量を外皮全体で平均した値。値が小さいほど熱が逃げにくく、省エネルギー性能が高いことを示します。
  • 上部構造とは壁や柱など家の構造物のこと。上部構造評点とは、震度6強の地震で建物が倒壊しないために必要な力を数値で表した必要耐力(Qr)に対する現状の耐力の割合を表します。
  • 既存木造住宅の上部構造評点1.0、1.25、1.5は、品確法においての耐震等級1、2、3レベルに相当します。