2024年 エントリー作品

広々とした開放感を楽しむ住まいへ一新

持ち家リノベーション・リフォーム

断熱

2,500万円

2024年05月

投票数

11 12

投票受付終了

リノベーション後 After

広々とした開放感を楽しむ住まいへ一新

筋交いをアクセントにしている。

広々とした開放感を楽しむ住まいへ一新

2部屋を1部屋に。

広々とした開放感を楽しむ住まいへ一新

動線の良い開放的なキッチン。

広々とした開放感を楽しむ住まいへ一新

1階は大理石調の床材。

リノベーション前 Before

  • 広々とした開放感を楽しむ住まいへ一新

    狭く仕切られた部屋。

  • 広々とした開放感を楽しむ住まいへ一新

    開放感が少ないキッチンスペース。

  • 広々とした開放感を楽しむ住まいへ一新

    圧迫感の有る収納。

リノベーション施工中 Process

  • 広々とした開放感を楽しむ住まいへ一新

    天井にはアクリアネクスト14K-155㍉

  • 広々とした開放感を楽しむ住まいへ一新

    壁にはアクリアネクスト14K-105㍉

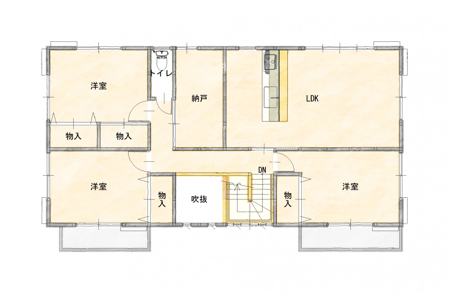
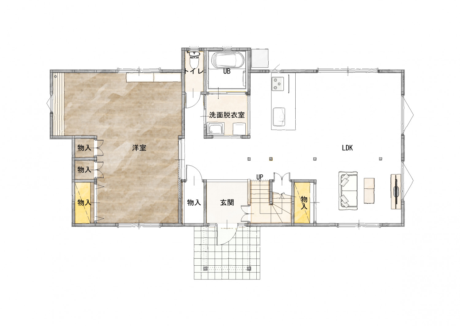
間取り Plan

リノベーション前

  • 広々とした開放感を楽しむ住まいへ一新

    和室の多い使い勝手の悪い間取り。

  • 広々とした開放感を楽しむ住まいへ一新

    小さく区切られた部屋数の多い間取り。

リノベーション後

  • 広々とした開放感を楽しむ住まいへ一新

    間仕切を思い切って取り払いオープンスペースにしました。将来足腰が弱くなっても1階で生活出来るようにキッチンは1階にも設置。

  • 広々とした開放感を楽しむ住まいへ一新

    2階も間仕切りを取り払いオープンスペースに変更。

物件概要

所在地
東かがわ市
敷地面積
430㎡(130.3坪)
延床面積
185㎡(56坪)
構造
木造軸組工法2階建て
既存建築年
1996年(築29年)
改修竣工年月
2024年05月
断熱性能
UA値 改修後0.69w/㎡・K

企業紹介

企業名
株式会社 リフォームセンター三野
Webサイト
http://www.mino-style.jp/

グレードとは

性能向上リノベでは、断熱と耐震のそれぞれの現行基準を3段階に分類し、基準を策定。性能向上リノベーションがされた証として、必要なエビデンス情報を登録し、安心・快適な家であるお墨付きの証として「性能向上登録証」を発行しています。これからの時代に選ばれる、安心・快適な家を可視化します。

断熱

ランク UA値 断熱等級
0.46 6
0.60 5
0.87 4
耐熱の説明

耐震

ランク 上部構造評点 耐震等級
1.5以上 3
1.25~1.5
未満
2
1.0~1.25
未満
1
耐震の説明
  • 建物は、自立循環型モデル住宅(在来工法)を対象に、地域区分は、6・7地域(都心部を中心)に策定しています。
  • UA値(外皮平均熱貫流率)とは住宅の内部から床、外壁、屋根(天井)や開口部などを通過して外部へ逃げる熱量を外皮全体で平均した値。値が小さいほど熱が逃げにくく、省エネルギー性能が高いことを示します。
  • 上部構造とは壁や柱など家の構造物のこと。上部構造評点とは、震度6強の地震で建物が倒壊しないために必要な力を数値で表した必要耐力(Qr)に対する現状の耐力の割合を表します。
  • 既存木造住宅の上部構造評点1.0、1.25、1.5は、品確法においての耐震等級1、2、3レベルに相当します。