2024年 エントリー作品

大変身した離れに移住!

持ち家リノベーション・リフォーム

断熱

883万円

2024年04月

投票数

2 3

投票受付終了

リノベーション後 After

大変身した離れに移住!

L字に造作した間接照明が部屋全体を暖かな印象に。

大変身した離れに移住!

広々としたくつろぎスペース。大きなソファでゆったりと。

大変身した離れに移住!

スポットライトで手元を明るく照らす。

大変身した離れに移住!

朝食は、夫婦並んでカウンターで♪

リノベーション前 Before

  • 大変身した離れに移住!

    抜けない柱が3本。

  • 大変身した離れに移住!

    昔ながらの壁付けキッチン。ガスコンロの正面に窓があり、お掃除のときは大変だった。

  • 大変身した離れに移住!

    1.5畳の洗面脱衣室。洗面台とタンスのみ置いて、洗濯機は外部に置くしかなかった。

  • 大変身した離れに移住!

    内装が劣化しているため、下地から作り直す必要があった。

リノベーション施工中 Process

  • 大変身した離れに移住!

    床下吹付断熱の施工の様子

  • 大変身した離れに移住!

    解体中の状況。根太や大引きの状態を確認して急きょ床を組みなおした。

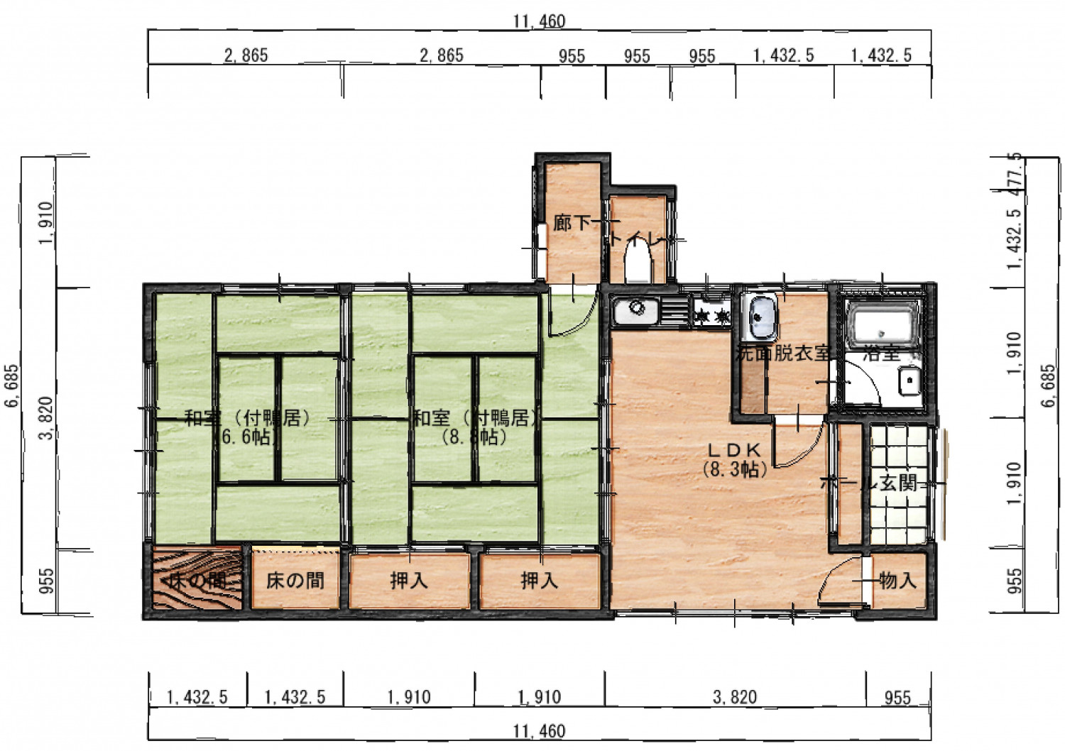
間取り Plan

リノベーション前

  • 大変身した離れに移住!

    夜中に起きて、暗い中トイレに行くことが危険なため、近い位置にしたかった。

リノベーション後

  • 大変身した離れに移住!

    家族間のつながりを感じるあたたかな空間を実現するため、アイランドキッチン ダイニングカウンターのレイアウトをご提案した。

物件概要

敷地面積
800㎡(242.42坪)
延床面積
58㎡(17.57坪)
構造
木造
既存建築年
1984年(築42年)
改修竣工年月
2024年04月
断熱性能
UA値 改修後0.82w/㎡・K
設計

田村 陽向

企業紹介

企業名
もりた住機設備株式会社
Webサイト
https://883333.jp/

グレードとは

性能向上リノベでは、断熱と耐震のそれぞれの現行基準を3段階に分類し、基準を策定。性能向上リノベーションがされた証として、必要なエビデンス情報を登録し、安心・快適な家であるお墨付きの証として「性能向上登録証」を発行しています。これからの時代に選ばれる、安心・快適な家を可視化します。

断熱

ランク UA値 断熱等級
0.46 6
0.60 5
0.87 4
耐熱の説明

耐震

ランク 上部構造評点 耐震等級
1.5以上 3
1.25~1.5
未満
2
1.0~1.25
未満
1
耐震の説明
  • 建物は、自立循環型モデル住宅(在来工法)を対象に、地域区分は、6・7地域(都心部を中心)に策定しています。
  • UA値(外皮平均熱貫流率)とは住宅の内部から床、外壁、屋根(天井)や開口部などを通過して外部へ逃げる熱量を外皮全体で平均した値。値が小さいほど熱が逃げにくく、省エネルギー性能が高いことを示します。
  • 上部構造とは壁や柱など家の構造物のこと。上部構造評点とは、震度6強の地震で建物が倒壊しないために必要な力を数値で表した必要耐力(Qr)に対する現状の耐力の割合を表します。
  • 既存木造住宅の上部構造評点1.0、1.25、1.5は、品確法においての耐震等級1、2、3レベルに相当します。