2024年 エントリー作品

SLASH

中古物件購入+リノベーション

断熱

1,500万円

2023年12月

投票数

4 5

投票受付終了

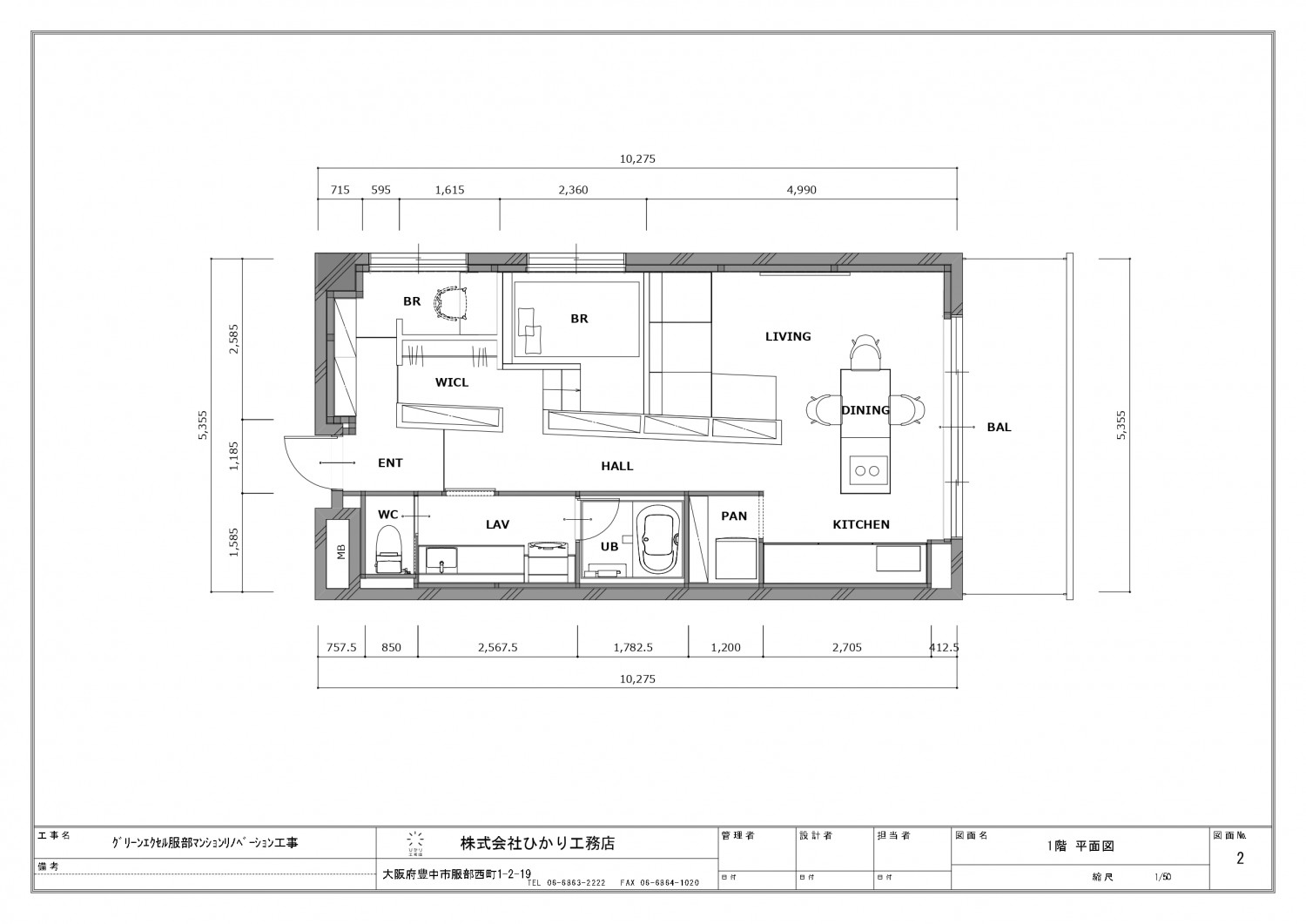
リノベーション後 After

SLASH

生活を見せない暮らしの中の切り替え
プライベート空間を確保した
洗練された住まい

SLASH

LDK

SLASH

造作キッチン

SLASH

キッチン

SLASH

造作洗面

SLASH

玄関から始まりLDKにかけて細くなっていく廊下がSLASHとなり、
暮らしの中に隠れたONとOFFのスイッチの切り替えを演出します。

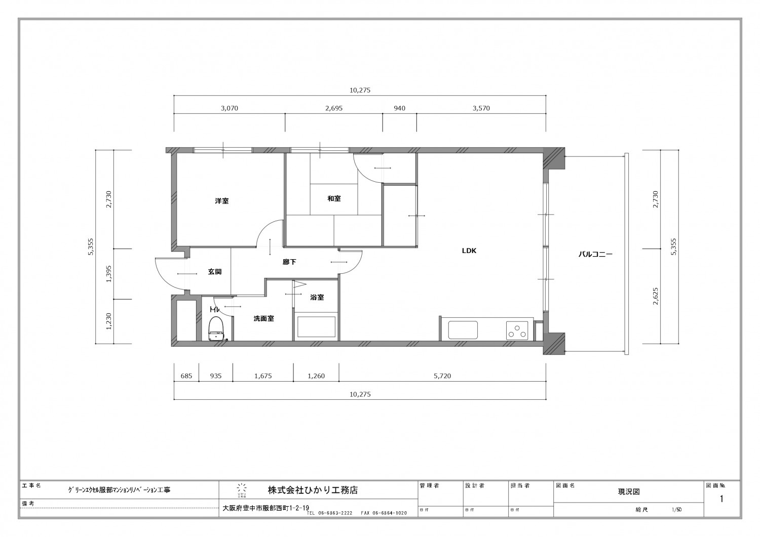
リノベーション前 Before

  • SLASH

    LDK

  • SLASH

    LDK

  • SLASH

    和室

  • SLASH

    洋室

  • SLASH

    洗面

リノベーション施工中 Process

  • SLASH

    外気に面する壁に断熱材を施工。

  • SLASH

    外気に面する壁に断熱材を施工。

間取り Plan

リノベーション前

  • SLASH

    2LDKのマンション。
    角部屋となっており、北面と東面に窓があるため、プランの変え方によれば、風通しの良い空間を作ることが出来ます。

リノベーション後

  • SLASH

    玄関から始まりLDKにかけて細くなっていく廊下がSLASHとなり、
    暮らしの中に隠れたONとOFFのスイッチの切り替えを演出します。
    仕事をこなす日々と、帰宅後に広がる穏やかな癒しを共に叶える、
    仕事と家での心地よい時間が調和した、究極の生活がここに。

物件概要

所在地
大阪府豊中市
敷地面積
55㎡(16.64坪)
延床面積
55㎡(16.64坪)
構造
RC造
既存建築年
1983年(築43年)
改修竣工年月
2023年12月
断熱性能
UA値 改修前2.28w/㎡・K⇒改修後1.65w/㎡・K(改修前の0.7倍に向上)

企業紹介

企業名
株式会社ひかり工務店
Webサイト
https://www.hikarikoumuten.com/
コメント

私たちは、「家族の明るい未来をつくる」を理念に、家づくりの先にある将来設計を見据え、 お客さまの豊 かな暮らしと幸せを追求。さらに業界の固定概念にとらわれず、 常に新しい技術や工法、建材、デザインなどを取り入れた独創的な家づくりを目指しています。 お家づくりは、一生に一度のことであり、大切なことです。

グレードとは

性能向上リノベでは、断熱と耐震のそれぞれの現行基準を3段階に分類し、基準を策定。性能向上リノベーションがされた証として、必要なエビデンス情報を登録し、安心・快適な家であるお墨付きの証として「性能向上登録証」を発行しています。これからの時代に選ばれる、安心・快適な家を可視化します。

断熱

ランク UA値 断熱等級
0.46 6
0.60 5
0.87 4
耐熱の説明

耐震

ランク 上部構造評点 耐震等級
1.5以上 3
1.25~1.5
未満
2
1.0~1.25
未満
1
耐震の説明
  • 建物は、自立循環型モデル住宅(在来工法)を対象に、地域区分は、6・7地域(都心部を中心)に策定しています。
  • UA値(外皮平均熱貫流率)とは住宅の内部から床、外壁、屋根(天井)や開口部などを通過して外部へ逃げる熱量を外皮全体で平均した値。値が小さいほど熱が逃げにくく、省エネルギー性能が高いことを示します。
  • 上部構造とは壁や柱など家の構造物のこと。上部構造評点とは、震度6強の地震で建物が倒壊しないために必要な力を数値で表した必要耐力(Qr)に対する現状の耐力の割合を表します。
  • 既存木造住宅の上部構造評点1.0、1.25、1.5は、品確法においての耐震等級1、2、3レベルに相当します。