2024年 エントリー作品

既存を上手も活かして満足リノベーション

リノベーション済み物件

耐震+断熱

1,980万円

2024年11月

投票数

2 3

投票受付終了

リノベーション後 After

既存を上手も活かして満足リノベーション

施工後外観写真
外壁はジョリパットフレッシュクールを採用、マットな仕上がりにしました。玄関部分は石積調の金属サイディング張のアクセントウォールに

既存を上手も活かして満足リノベーション

施工後リビング 既存の食堂と居間をつなげLDK化

既存を上手も活かして満足リノベーション

施工前キッチンの場所をパントリー&ランドリースペースにしました。既存のガス配管を利用し乾太くんを設置

既存を上手も活かして満足リノベーション

側板と蹴込板は塗装、踏み面にはフロアタイルを張り、アルミのノンスリップを取付。予算をかけずに階段をリニューアル

既存を上手も活かして満足リノベーション

2階和室は主寝室にしました。出窓下は断熱し直し可動棚にしました。他にクローゼット2ケ所に可動棚2連と収納スペースを多くしました

既存を上手も活かして満足リノベーション

弱い吹き抜け部分を床にして書斎を設けました

リノベーション前 Before

  • 既存を上手も活かして満足リノベーション

    施工前外観写真

  • 既存を上手も活かして満足リノベーション

    施工前食堂、リビング写真

  • 既存を上手も活かして満足リノベーション

    施工前キッチン

  • 既存を上手も活かして満足リノベーション

    既存階段
    シート張り階段で剥がれがみられる

  • 既存を上手も活かして満足リノベーション

    2階既存和室

  • 既存を上手も活かして満足リノベーション

    既存玄関上吹抜け
    ポーチ、玄関、階段と大きな吹抜けとなっており床構面の強度がない状態

リノベーション施工中 Process

  • 既存を上手も活かして満足リノベーション

    間仕切の脚部、上部のすべてに気流止めを施しました

  • 既存を上手も活かして満足リノベーション

    断熱材は袋入りを高性能16Kを採用

  • 既存を上手も活かして満足リノベーション

    LDKは左官下張りクロスを施工してからの接着剤が含まれていない天然しっくい塗を実施。割れにくい仕上げとしました。

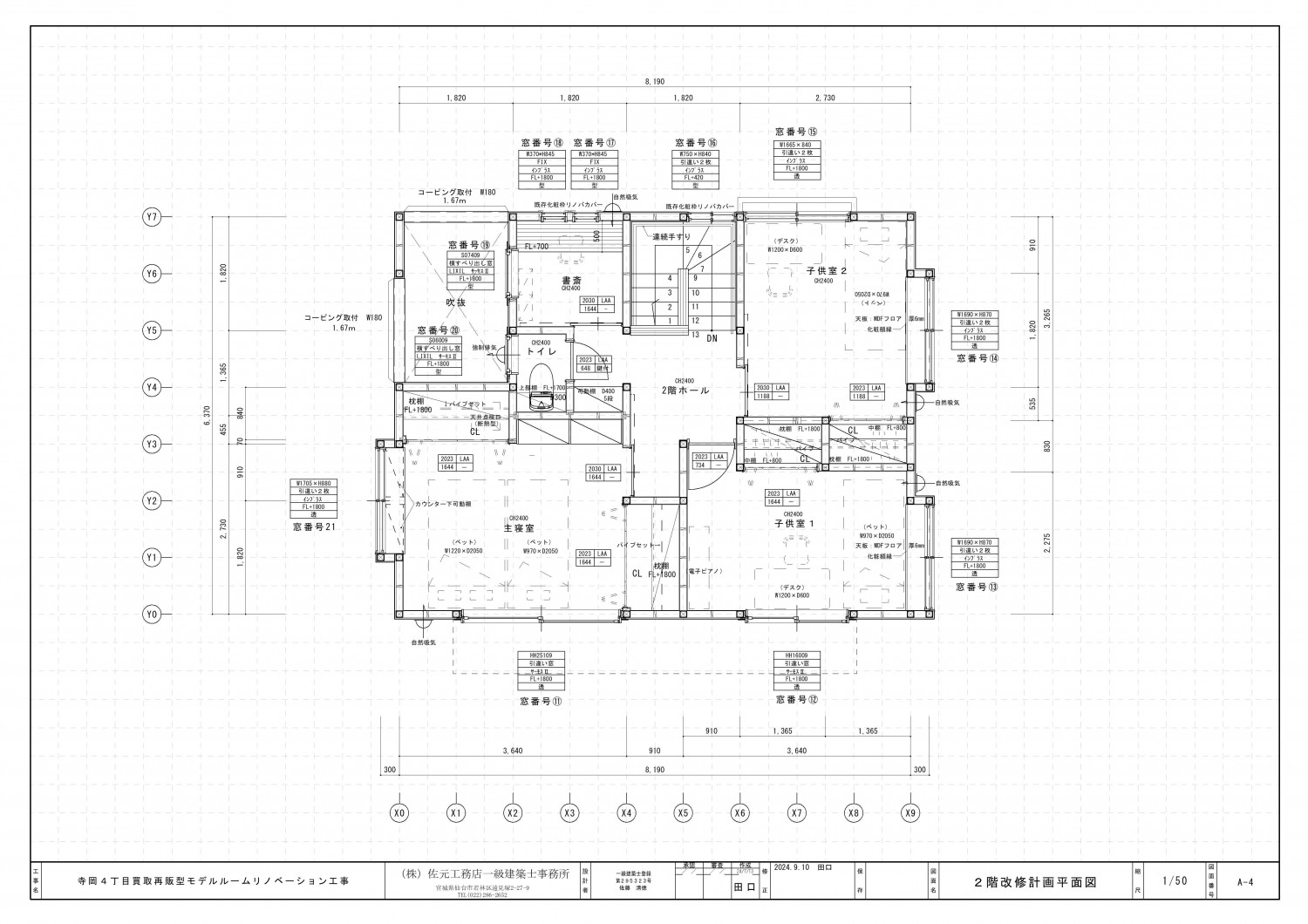
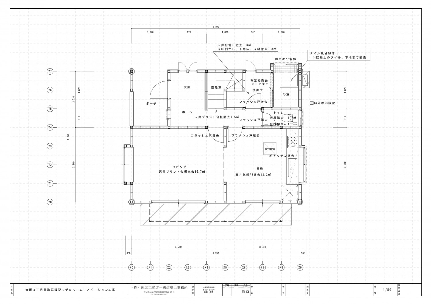
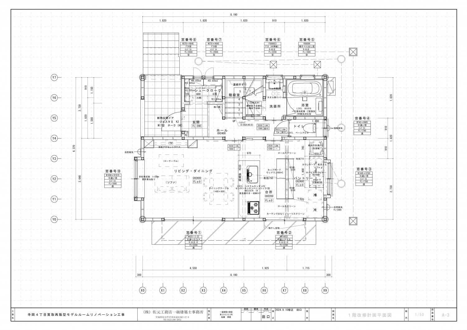
間取り Plan

リノベーション前

  • 既存を上手も活かして満足リノベーション

    既存1階平面図

  • 既存を上手も活かして満足リノベーション

    既存2階平面図

  • 既存を上手も活かして満足リノベーション

    既存立面図

リノベーション後

  • 既存を上手も活かして満足リノベーション

    計画1階平面図

  • 既存を上手も活かして満足リノベーション

    計画2階平面図

  • 既存を上手も活かして満足リノベーション

    計画立面図

  • 既存を上手も活かして満足リノベーション

    造作図(パントリー)
    購入予定者の冷蔵庫や洗濯機の大きさを聞き取り、図面に落とし込んでいます

物件概要

所在地
仙台
敷地面積
210.02㎡(63.6坪)
延床面積
91.08㎡(27.6坪)
構造
木造在来工法2階建
既存建築年
1986年(築40年)
改修竣工年月
2024年11月
断熱性能
UA値 改修前1.79w/㎡・K⇒改修後0.72w/㎡・K(改修前の2.48倍に向上)
耐震性能
上部構造評点 改修前1.08 ⇒ 改修後1.60

企業紹介

企業名
株式会社 佐元工務店
Webサイト
http://www.samoto.co.jp/
コメント

当社は「地域密着」の方針の元、住まいや暮らしで何かお困りごとがあれば「まず佐元に相談してみよう!」と言ってもらえるような、土地・建物・住まいや暮らしの総合相談所を目指しております。
一度のお付き合いから一生のお付き合いをモットーに専門スタッフが対応いたします。

グレードとは

性能向上リノベでは、断熱と耐震のそれぞれの現行基準を3段階に分類し、基準を策定。性能向上リノベーションがされた証として、必要なエビデンス情報を登録し、安心・快適な家であるお墨付きの証として「性能向上登録証」を発行しています。これからの時代に選ばれる、安心・快適な家を可視化します。

断熱

ランク UA値 断熱等級
0.46 6
0.60 5
0.87 4
耐熱の説明

耐震

ランク 上部構造評点 耐震等級
1.5以上 3
1.25~1.5
未満
2
1.0~1.25
未満
1
耐震の説明
  • 建物は、自立循環型モデル住宅(在来工法)を対象に、地域区分は、6・7地域(都心部を中心)に策定しています。
  • UA値(外皮平均熱貫流率)とは住宅の内部から床、外壁、屋根(天井)や開口部などを通過して外部へ逃げる熱量を外皮全体で平均した値。値が小さいほど熱が逃げにくく、省エネルギー性能が高いことを示します。
  • 上部構造とは壁や柱など家の構造物のこと。上部構造評点とは、震度6強の地震で建物が倒壊しないために必要な力を数値で表した必要耐力(Qr)に対する現状の耐力の割合を表します。
  • 既存木造住宅の上部構造評点1.0、1.25、1.5は、品確法においての耐震等級1、2、3レベルに相当します。