2024年 エントリー作品

特別賞

2階を減築し耐震&断熱リフォーム ~これからの暮らしを安心・安全・快適に~

持ち家リノベーション・リフォーム

耐震+断熱

1,150〜1,650万円

2023年10月

投票数

23 24

投票受付終了

リノベーション後 After

2階を減築し耐震&断熱リフォーム ~これからの暮らしを安心・安全・快適に~

既存の和室をDKに取込み、広々としたLDKになりました。

2階を減築し耐震&断熱リフォーム ~これからの暮らしを安心・安全・快適に~

LDKから直接、寝室、ウォークインクローゼット、洗面所、トイレ、脱衣室へ行き来できるため、家の中での寒暖差が少なく、身体への負担が少ない設計となっています。

2階を減築し耐震&断熱リフォーム ~これからの暮らしを安心・安全・快適に~

キッチン横の寝室。
以前は居間と兼用していましたが、これからは寝室として、しっかり休める空間となりました。ウォークインクローゼットへはこちらからも出入りが可能。

2階を減築し耐震&断熱リフォーム ~これからの暮らしを安心・安全・快適に~

収納両がしっかりとれたウォークインクローゼット。お洋服はもちろん、布団の置き場所や、日用品の置き場所も確保した、4.5帖の大容量のクローゼットです。

2階を減築し耐震&断熱リフォーム ~これからの暮らしを安心・安全・快適に~

玄関スペースは最小限に抑え、お部屋のスペースを広く設計しています。

リノベーション前 Before

  • 2階を減築し耐震&断熱リフォーム ~これからの暮らしを安心・安全・快適に~

    【Before ダイニングキッチン】
    主に隣接する寝室兼居間で生活をしているため、ダイニングキッチンが活用されていなかった。
    寝室と居間を分け、DKは和室を取り込むことで広々と使えるようにしました。

  • 2階を減築し耐震&断熱リフォーム ~これからの暮らしを安心・安全・快適に~

    光が入りずらく、天井が低い和室は薄暗い印象。明るく落ち着いた空間にしたい。

リノベーション施工中 Process

  • 2階を減築し耐震&断熱リフォーム ~これからの暮らしを安心・安全・快適に~

    床断熱施工
    スタイロフォーム50㎜

  • 2階を減築し耐震&断熱リフォーム ~これからの暮らしを安心・安全・快適に~

    壁・天井断熱施工
    ロックウール105㎜

  • 2階を減築し耐震&断熱リフォーム ~これからの暮らしを安心・安全・快適に~

    トイレサッシ
    エピソードⅡNEO

  • 2階を減築し耐震&断熱リフォーム ~これからの暮らしを安心・安全・快適に~

    耐力壁施工

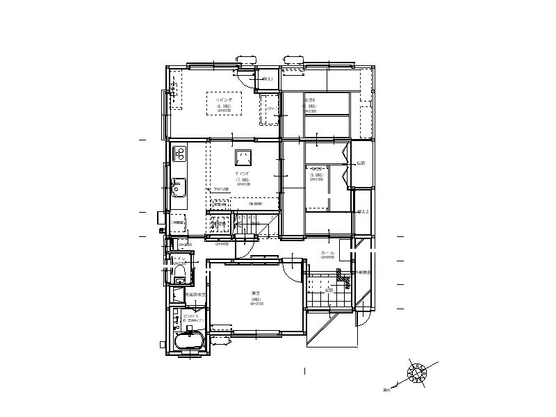
間取り Plan

リノベーション前

  • 2階を減築し耐震&断熱リフォーム ~これからの暮らしを安心・安全・快適に~

    過去に増築を繰り返し、天井の高さが各部屋バラバラ。平屋建てにして生活動線をスッキリさせたい。

  • 2階を減築し耐震&断熱リフォーム ~これからの暮らしを安心・安全・快適に~

    使われていなかった2階は取り壊し、平屋建てへ

リノベーション後

  • 2階を減築し耐震&断熱リフォーム ~これからの暮らしを安心・安全・快適に~

    バラバラだった天井高さを平屋建てにすることで以前より高く設定。収納スペースも確保して生活動線を端的に計画しました。

物件概要

所在地
石川県金沢市
敷地面積
87.54㎡(26.48坪)
延床面積
52.17㎡(15.78坪)
構造
木造在来1階建て
既存建築年
1942年(築83年)
改修竣工年月
2023年10月
断熱性能
UA値 改修後0.5w/㎡・K
耐震性能
上部構造評点 改修前0.24 ⇒ 改修後1.10

企業紹介

企業名
石友リフォームサービス株式会社
Webサイト
https://www.ishitomo-reform.co.jp/

グレードとは

性能向上リノベでは、断熱と耐震のそれぞれの現行基準を3段階に分類し、基準を策定。性能向上リノベーションがされた証として、必要なエビデンス情報を登録し、安心・快適な家であるお墨付きの証として「性能向上登録証」を発行しています。これからの時代に選ばれる、安心・快適な家を可視化します。

断熱

ランク UA値 断熱等級
0.46 6
0.60 5
0.87 4
耐熱の説明

耐震

ランク 上部構造評点 耐震等級
1.5以上 3
1.25~1.5
未満
2
1.0~1.25
未満
1
耐震の説明
  • 建物は、自立循環型モデル住宅(在来工法)を対象に、地域区分は、6・7地域(都心部を中心)に策定しています。
  • UA値(外皮平均熱貫流率)とは住宅の内部から床、外壁、屋根(天井)や開口部などを通過して外部へ逃げる熱量を外皮全体で平均した値。値が小さいほど熱が逃げにくく、省エネルギー性能が高いことを示します。
  • 上部構造とは壁や柱など家の構造物のこと。上部構造評点とは、震度6強の地震で建物が倒壊しないために必要な力を数値で表した必要耐力(Qr)に対する現状の耐力の割合を表します。
  • 既存木造住宅の上部構造評点1.0、1.25、1.5は、品確法においての耐震等級1、2、3レベルに相当します。