2024年 エントリー作品

家族の時間・自分時間を楽しめる空間へのリフォーム

持ち家リノベーション・リフォーム

ゾーン断熱

1,200〜1,700万円

2024年07月

投票数

17 18

投票受付終了

リノベーション後 After

家族の時間・自分時間を楽しめる空間へのリフォーム

エントランスクローゼットを新しく設けたゆとりある玄関とホール

家族の時間・自分時間を楽しめる空間へのリフォーム

増築で広くなったLDK。水廻りへの動線も使いやすくなり、ゾーン断熱施工で家族みんなが快適な空間に。

家族の時間・自分時間を楽しめる空間へのリフォーム

大きく設けた窓から降りそそぐ光が心地よいダイニングキッチン。高断熱樹脂窓の採用で実現した空間。

家族の時間・自分時間を楽しめる空間へのリフォーム

ちょっとした仕事も出来るワークスペースを設けた畳コーナー。大きな窓で日差しが心地よい日には日向ぼっこの場所にも!

家族の時間・自分時間を楽しめる空間へのリフォーム

適材適所の収納と水廻り動線の見直しで家事時間を短くを実現。家事空間も高性能樹脂窓を採用で温度差の無いように配慮。

家族の時間・自分時間を楽しめる空間へのリフォーム

くるくる回れる回遊動線の水廻り。
室内物干しも設けて、洗面とは空間を分けることで綺麗に保てます。

リノベーション前 Before

  • 家族の時間・自分時間を楽しめる空間へのリフォーム

    収納が少なく家族の靴やお子様の自転車まであふれた玄関。

  • 家族の時間・自分時間を楽しめる空間へのリフォーム

    まだ小さいお子様の物やお仕事関連の物まで混在するLDK。適材適所収納が少ないのが原因。

  • 家族の時間・自分時間を楽しめる空間へのリフォーム

    物置になってしまっている和室。

  • 家族の時間・自分時間を楽しめる空間へのリフォーム

    収納が無く生活用品があふれた洗濯機まわり。湿度の高い冬場は外では洗濯が干しづらく洗濯干しの空間にもなっている。

リノベーション施工中 Process

  • 家族の時間・自分時間を楽しめる空間へのリフォーム

    1階改修部断熱材施工
    天井ロックウール105㎜
    壁ロックウール105㎜

  • 家族の時間・自分時間を楽しめる空間へのリフォーム

    1階改修部サッシ施工
    APW330

  • 家族の時間・自分時間を楽しめる空間へのリフォーム

    増築部断熱材施工・サッシ施工
    天井ロックウール105㎜
    壁ロックウール105㎜
    サッシAPW330

  • 家族の時間・自分時間を楽しめる空間へのリフォーム

    床断熱材施工
    スタイロフォーム50㎜

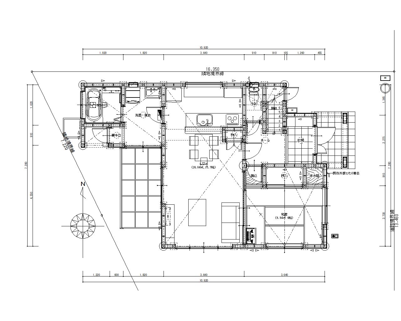
間取り Plan

リノベーション前

  • 家族の時間・自分時間を楽しめる空間へのリフォーム

    収納スペースが欲しい玄関周りや水廻りに収納が無く物があふれやすい間取り。

リノベーション後

  • 家族の時間・自分時間を楽しめる空間へのリフォーム

    和室部分を増築することで玄関物があふれていた玄関周りにゆとりある収納が生まれました。
    帰宅後の動線を考えたLDKへの出入り口の配置と、LDK増築により実現した回遊動線となる水廻りの配置で家事の時短を実現しました。

物件概要

所在地
福井県坂井市
敷地面積
214.64㎡(65坪)
延床面積
74.05㎡(22.39坪)
構造
木造在来2階建て
既存建築年
2012年(築14年)
改修竣工年月
2024年07月
断熱性能
UA値 改修後0.76w/㎡・K

企業紹介

企業名
石友リフォームサービス株式会社
Webサイト
https://www.ishitomo-reform.co.jp/

グレードとは

性能向上リノベでは、断熱と耐震のそれぞれの現行基準を3段階に分類し、基準を策定。性能向上リノベーションがされた証として、必要なエビデンス情報を登録し、安心・快適な家であるお墨付きの証として「性能向上登録証」を発行しています。これからの時代に選ばれる、安心・快適な家を可視化します。

断熱

ランク UA値 断熱等級
0.46 6
0.60 5
0.87 4
耐熱の説明

耐震

ランク 上部構造評点 耐震等級
1.5以上 3
1.25~1.5
未満
2
1.0~1.25
未満
1
耐震の説明
  • 建物は、自立循環型モデル住宅(在来工法)を対象に、地域区分は、6・7地域(都心部を中心)に策定しています。
  • UA値(外皮平均熱貫流率)とは住宅の内部から床、外壁、屋根(天井)や開口部などを通過して外部へ逃げる熱量を外皮全体で平均した値。値が小さいほど熱が逃げにくく、省エネルギー性能が高いことを示します。
  • 上部構造とは壁や柱など家の構造物のこと。上部構造評点とは、震度6強の地震で建物が倒壊しないために必要な力を数値で表した必要耐力(Qr)に対する現状の耐力の割合を表します。
  • 既存木造住宅の上部構造評点1.0、1.25、1.5は、品確法においての耐震等級1、2、3レベルに相当します。