2024年 エントリー作品

特別賞

家族の時間を愉しむRenovation

持ち家リノベーション・リフォーム

耐震+断熱

2,700万円

2022年12月

投票数

8 9

投票受付終了

リノベーション後 After

家族の時間を愉しむRenovation

外観 駐車場を道路と並行に設置し、使いやすく改修
後々植栽を増やす予定

家族の時間を愉しむRenovation

南側和室2間をリビングダイニングに改修

家族の時間を愉しむRenovation

既存押入部分は書斎コーナーに改修

家族の時間を愉しむRenovation

南側和室2間をリビングダイニングに改修
2枚引込障子越しに、暖かい南の光がとどきます

家族の時間を愉しむRenovation

キッチンは対面式にし、南の庭やTVを見れる位置としました
キッチン北側にはパントリーと勝手口を設置
将来孫が部活から帰ったら、勝手口から入り、そのまま浴室まで行く動線を確保

家族の時間を愉しむRenovation

小上がり和室
客室や、ちょっとした休憩、ゴロゴロ出来る空間
南の公園の緑を借景しています

リノベーション前 Before

  • 家族の時間を愉しむRenovation

    外観

  • 家族の時間を愉しむRenovation

    北側ダイニングキッチンと南西和室

  • 家族の時間を愉しむRenovation

    南東和室

  • 家族の時間を愉しむRenovation

    南西和室

  • 家族の時間を愉しむRenovation

    北側ダイニングキッチン

  • 家族の時間を愉しむRenovation

    玄関

リノベーション施工中 Process

  • 家族の時間を愉しむRenovation

    外観
    外壁通気工法に変更

  • 家族の時間を愉しむRenovation

    耐震補強
    金物取付

  • 家族の時間を愉しむRenovation

    耐震補強
    耐力壁設置

  • 家族の時間を愉しむRenovation

    壁断熱
    ロックウール 厚100㎜
    熱伝導率 0.038W/mK

  • 家族の時間を愉しむRenovation

    床断熱
    カネライトフォーム 厚60㎜
    熱伝導率 0.024W/mK

  • 家族の時間を愉しむRenovation

    天井断熱
    ロックウール 厚155㎜
    熱伝導率 0.038W/mK

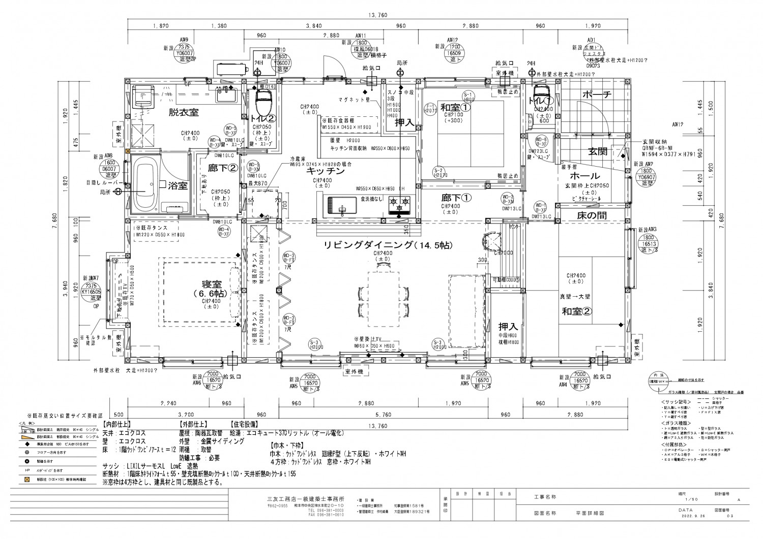
間取り Plan

リノベーション前

  • 家族の時間を愉しむRenovation

    既存図面

リノベーション後

  • 家族の時間を愉しむRenovation

    改修後プラン図
    青丸はお子様が帰省した時に利用
    全ての居室を南に向け、日射取得と公園の緑を借景する

  • 家族の時間を愉しむRenovation

    改修後平面図

物件概要

所在地
熊本県菊池郡大津町
敷地面積
255.78㎡(77.37坪)
延床面積
103.75㎡(31.38坪)
構造
木造 在来軸組工法 平屋建て
既存建築年
1982年(築43年)
改修竣工年月
2022年12月
断熱性能
UA値 改修前1.17w/㎡・K⇒改修後0.46w/㎡・K(改修前の2.5倍に向上)
耐震性能
上部構造評点 改修前0.84 ⇒ 改修後1.9
設計

株式会社三友工務店 1級建築士事務所

施工

株式会社三友工務店

企業紹介

企業名
株式会社三友工務店
Webサイト
https://www.sanyu-k.jp/

グレードとは

性能向上リノベでは、断熱と耐震のそれぞれの現行基準を3段階に分類し、基準を策定。性能向上リノベーションがされた証として、必要なエビデンス情報を登録し、安心・快適な家であるお墨付きの証として「性能向上登録証」を発行しています。これからの時代に選ばれる、安心・快適な家を可視化します。

断熱

ランク UA値 断熱等級
0.46 6
0.60 5
0.87 4
耐熱の説明

耐震

ランク 上部構造評点 耐震等級
1.5以上 3
1.25~1.5
未満
2
1.0~1.25
未満
1
耐震の説明
  • 建物は、自立循環型モデル住宅(在来工法)を対象に、地域区分は、6・7地域(都心部を中心)に策定しています。
  • UA値(外皮平均熱貫流率)とは住宅の内部から床、外壁、屋根(天井)や開口部などを通過して外部へ逃げる熱量を外皮全体で平均した値。値が小さいほど熱が逃げにくく、省エネルギー性能が高いことを示します。
  • 上部構造とは壁や柱など家の構造物のこと。上部構造評点とは、震度6強の地震で建物が倒壊しないために必要な力を数値で表した必要耐力(Qr)に対する現状の耐力の割合を表します。
  • 既存木造住宅の上部構造評点1.0、1.25、1.5は、品確法においての耐震等級1、2、3レベルに相当します。