2024年 エントリー作品

特別賞

奏でる家

持ち家リノベーション・リフォーム

耐震+断熱

3,400万円

2024年01月

投票数

2 3

投票受付終了

リノベーション後 After

奏でる家

外壁にはガルバニウムと屋久島地杉を施工。
フルリノベ前より玄関の位置を後退させて階段の距離を長くとり上がりやすくした。

奏でる家

玄関の上がり框の高さを低くし、出入りしやすい玄関になった。
収納を設置して使いやすくした。

奏でる家

緩やかな階段になり昇り降りがしやすくなった。
1階のホールにはベンチを設置。
家じゅうの室温が一定な高断熱住宅なので、ホールも寛げる空間となる。

奏でる家

寝室は、間接照明にすることで寝るときに光源が目に入って眩しくないようにしている。
画像右奥のドアは、楽器をされる家族のための防音室となっている。

奏でる家

フルリノベ前は1階にあったリビングとダイニングキッチンを2階に配置することにより、明るく開放的なリビングとダイニングキッチンになった。
既存の丸太梁を現しにしている。

奏でる家

リビングの西側の木製サッシからは、大阪平野の借景を望めるように設計。
インナーバルコニーはウチとソトをつなげる中間領域として、自然を享受できる空間となった。

リノベーション前 Before

  • 奏でる家

    玄関の階段が急で昇り降りしにくい。
    前面道路は坂道になっている。

  • 奏でる家

    1階北側のLDK。
    床は無断熱、冬場の底冷えが著しかった。

  • 奏でる家

    1階南側の寝室。
    改修前は和室だったが、フルリノベ後は無垢フローリングの寝室を配置。

  • 奏でる家

    1間登り切りの急勾配な階段でした。

  • 奏でる家

    2階北側の和室。
    フルリノベ後は、ゲストルームを配置。

  • 奏でる家

    2階南側の子ども部屋。
    フルリノベ後はインナーバルコニー、トイレ、リビングを配置。

リノベーション施工中 Process

  • 奏でる家

    基礎がひび割れている。

  • 奏でる家

    土台が腐っている。

  • 奏でる家

    掛け替える前の屋根の状態。

  • 奏でる家

    フルリノベ途中の基礎。
    既存の基礎の補強として基礎の内側に鉄筋コンクリートを増し打ちして補強した。
    基礎の立ち上がりも一部新設。
    底盤部分も防湿コンクリートを打設。
    基礎断熱を施工。

  • 奏でる家

    羽子板ボルトなど耐震金物を施工。
    床の不陸を直すために、床受け材を設けて床の水平を出した。

  • 奏でる家

    屋根を寄棟から切妻に掛け替え、勾配天井にし広い空間になるようにした。
    屋根には、充填断熱として高性能グラスウール16Kを240mm施工。

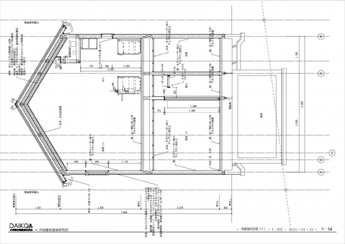
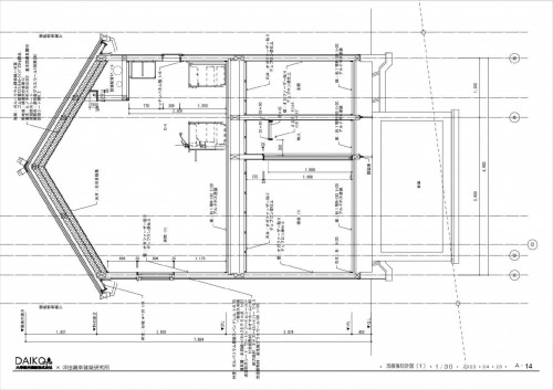
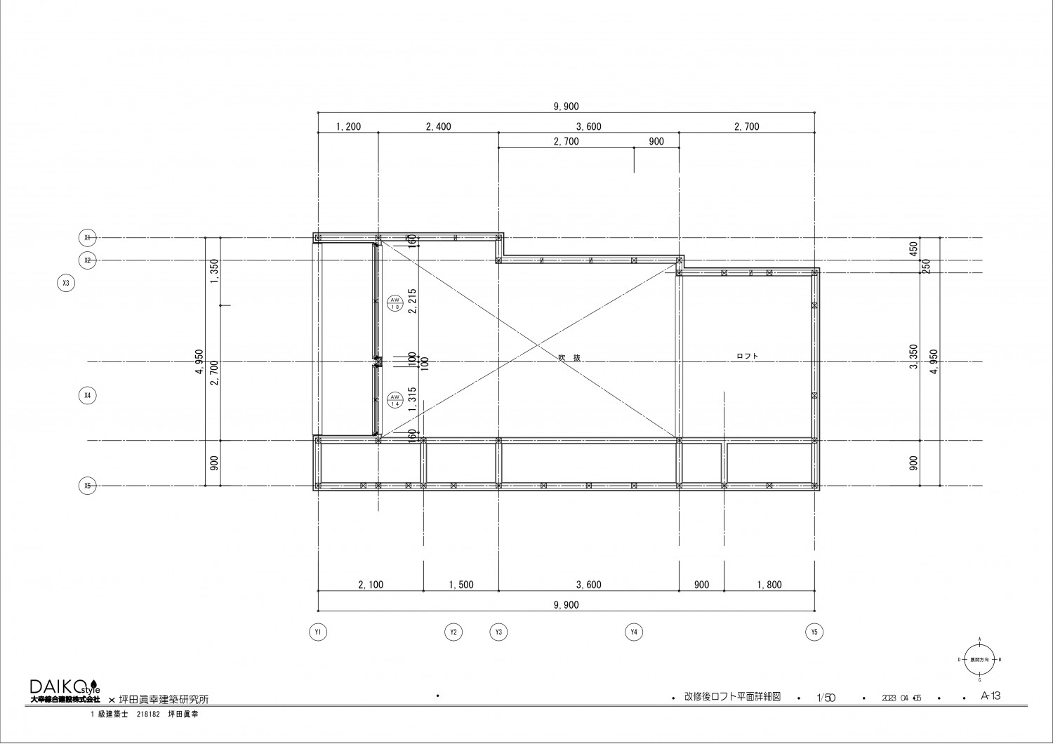
間取り Plan

リノベーション前

  • 奏でる家

    1階にリビングで光が入らず暗い空間だった。
    階段も急な勾配だった。

  • 奏でる家

    アプローチの階段の勾配が急だった。

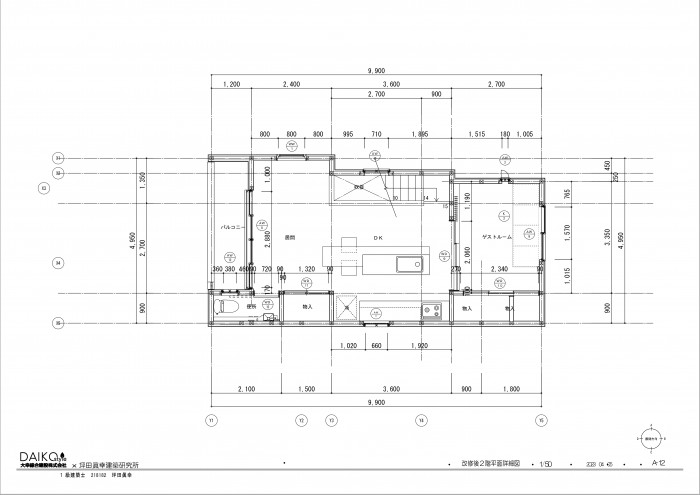
リノベーション後

  • 奏でる家

    アプローチに階段を緩やかにするために玄関位置を既存よりも後退させた。

  • 奏でる家

    明るい開放的なリビングという要望に対して2階リビングとした。
    インナーバルコニーを設けて中間領域とした。

  • 奏でる家

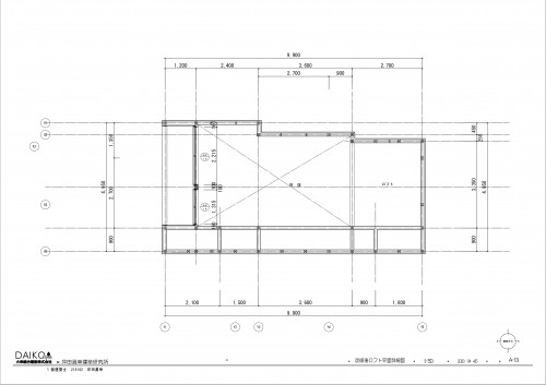
    ロフトは空調の機械室兼、収納スペースとして利用。

  • 奏でる家

    ガルバリウム鋼板の外壁にアクセントで屋久島地杉を貼った。 

  • 奏でる家

    窓の位置を整えた。

  • 奏でる家

    勾配天井にして、開放的な明るいLDKとなった。
    既存の丸太張りを現しにしてリノベ前の名残りとした。

物件概要

所在地
大阪府東大阪市
敷地面積
76.28㎡(23.07坪)
延床面積
81.04㎡(24.51坪)
構造
木造軸組2階建
既存建築年
1985年(築41年)
改修竣工年月
2024年01月
断熱性能
UA値 改修後0.33w/㎡・K
耐震性能
上部構造評点 改修前0.68 ⇒ 改修後1.50

企業紹介

企業名
大幸綜合建設株式会社(DAIKOstyle)
Webサイト
https://daikostyle.com/
コメント

私たちDAIKOstyleの家づくりのコンセプトに、住み続けられる家・住み継がれていく家という考えがあります。住み続けられるというのは、建物の性能や耐久の話だけではなく、維持管理費=コストを含めて住み続けられるという現実性がある住宅をつくる・リノベーションするという想いが込められています。そういった家が、家族で受け継がれるもしくは、売買を通して次の住まい手に繋がっていくことで価値を残していくという考えをこれからの日本に広めていきたいと考えています。

グレードとは

性能向上リノベでは、断熱と耐震のそれぞれの現行基準を3段階に分類し、基準を策定。性能向上リノベーションがされた証として、必要なエビデンス情報を登録し、安心・快適な家であるお墨付きの証として「性能向上登録証」を発行しています。これからの時代に選ばれる、安心・快適な家を可視化します。

断熱

ランク UA値 断熱等級
0.46 6
0.60 5
0.87 4
耐熱の説明

耐震

ランク 上部構造評点 耐震等級
1.5以上 3
1.25~1.5
未満
2
1.0~1.25
未満
1
耐震の説明
  • 建物は、自立循環型モデル住宅(在来工法)を対象に、地域区分は、6・7地域(都心部を中心)に策定しています。
  • UA値(外皮平均熱貫流率)とは住宅の内部から床、外壁、屋根(天井)や開口部などを通過して外部へ逃げる熱量を外皮全体で平均した値。値が小さいほど熱が逃げにくく、省エネルギー性能が高いことを示します。
  • 上部構造とは壁や柱など家の構造物のこと。上部構造評点とは、震度6強の地震で建物が倒壊しないために必要な力を数値で表した必要耐力(Qr)に対する現状の耐力の割合を表します。
  • 既存木造住宅の上部構造評点1.0、1.25、1.5は、品確法においての耐震等級1、2、3レベルに相当します。