2024年 エントリー作品

理想の「プラス+1」を叶えるリノベーション

中古物件購入+リノベーション

ゾーン断熱+耐震

1,800〜2,000万円

2024年01月

投票数

3 4

投票受付終了

リノベーション後 After

理想の「プラス+1」を叶えるリノベーション

勝手口や不要な窓を減らし、断熱効果と収納力をアップさせました。

理想の「プラス+1」を叶えるリノベーション

玄関の壁をずらし、拡張することで収納スペースを確保。

理想の「プラス+1」を叶えるリノベーション

ひとつの部屋を3つの空間へとリノベーションし、繋がる間取りで家事動線も◎

理想の「プラス+1」を叶えるリノベーション

洗面脱衣所の窓を小さくし、浴室には内窓を設置。

理想の「プラス+1」を叶えるリノベーション

冬場の寒さ対策に内窓を設置。

理想の「プラス+1」を叶えるリノベーション

ダーク系の外観でシックでカッコイイ印象へ。

リノベーション前 Before

  • 理想の「プラス+1」を叶えるリノベーション

    出窓が多く、人気のある対面式のシステムキチンがあるLDK

  • 理想の「プラス+1」を叶えるリノベーション

    吹き抜けで圧迫感はないが、収納が少ない玄関。

  • 理想の「プラス+1」を叶えるリノベーション

    床の間や押し入れのある6畳の和室と広縁で十分な広さがあるが、完全に個室となっているため現代の生活スタイルでは孤独感を感じやすい間取り。

  • 理想の「プラス+1」を叶えるリノベーション

    洗濯機置き場は奥行きがあるため、使いずらさを感じる。

  • 理想の「プラス+1」を叶えるリノベーション

    十分使用できる浴槽。換気のための窓が冬場は寒さを感じてしまう浴室。

  • 理想の「プラス+1」を叶えるリノベーション

    駐車場を拡張できる広さのある庭。

リノベーション施工中 Process

  • 理想の「プラス+1」を叶えるリノベーション

    サッシ取替工事

  • 理想の「プラス+1」を叶えるリノベーション

    天井断熱工事

  • 理想の「プラス+1」を叶えるリノベーション

    耐震金具取付

  • 理想の「プラス+1」を叶えるリノベーション

    構造用合板取付

  • 理想の「プラス+1」を叶えるリノベーション

    屋根工事

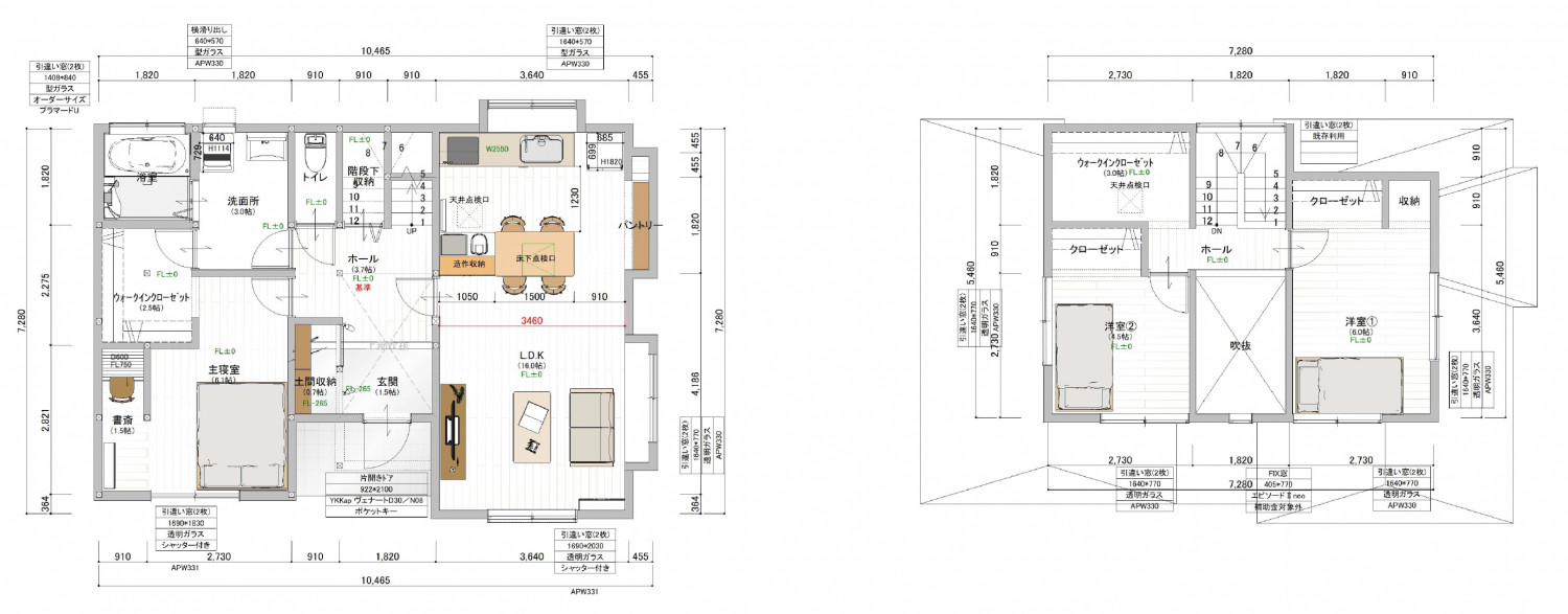
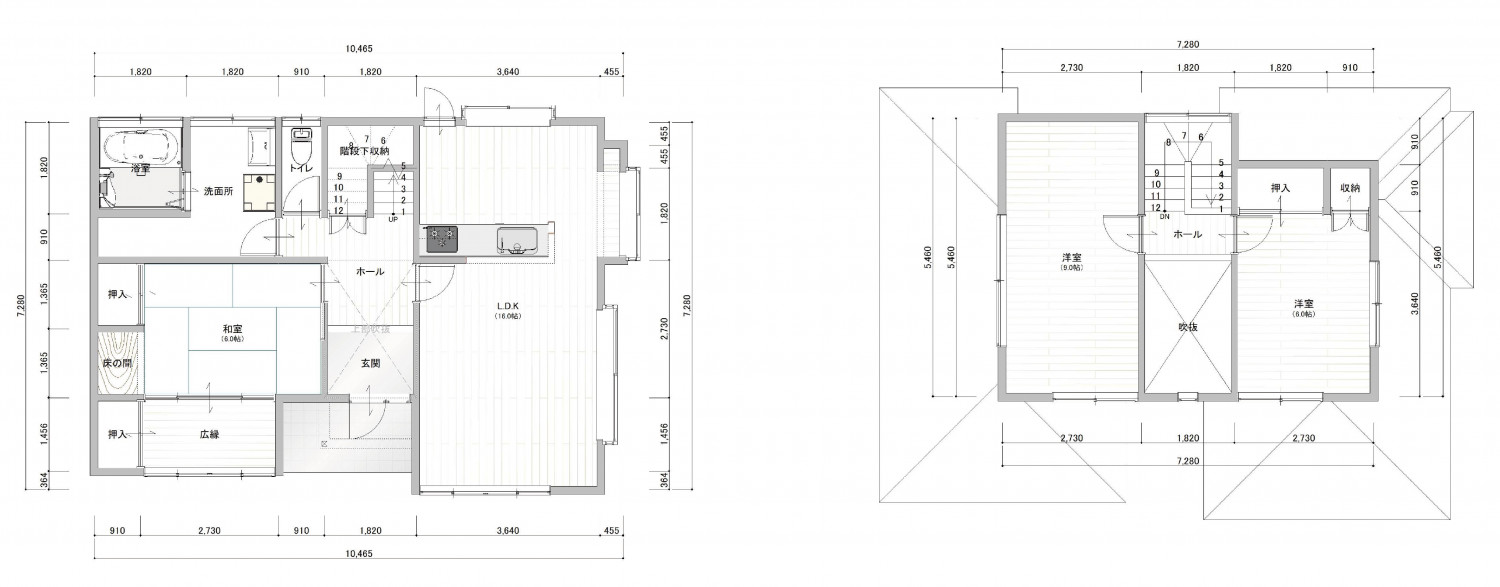
間取り Plan

リノベーション前

  • 理想の「プラス+1」を叶えるリノベーション

    洋室2部屋床の間のある和室+広縁の3SLDK

リノベーション後

  • 理想の「プラス+1」を叶えるリノベーション

    間取りを大きく変更することなく、キッチンの向きや家事動線を考えた繋がりを持たせた間取り(3SLDK)へ変更。

物件概要

所在地
熊本県熊本市北区梶尾町
敷地面積
197㎡(99坪)
延床面積
99.56㎡(30.11坪)
構造
木造在来軸組構法2階建
既存建築年
1980年(築46年)
改修竣工年月
2024年01月
断熱性能
UA値 改修前2.05w/㎡・K⇒改修後0.84w/㎡・K
耐震性能
上部構造評点 改修前0.55 ⇒ 改修後1.06

企業紹介

企業名
銀杏開発株式会社
Webサイト
https://use-reno.jp/
コメント

“ 家づくりに、もっと自由を 家づくりで、もっとしあわせに” 家族の暮らし方・家族構成・好みに応じたオーダーメイドの家づくり。不動産と建築のプロが「中古住宅を買ってリノベーション」をワンストップでお手伝い致します。

グレードとは

性能向上リノベでは、断熱と耐震のそれぞれの現行基準を3段階に分類し、基準を策定。性能向上リノベーションがされた証として、必要なエビデンス情報を登録し、安心・快適な家であるお墨付きの証として「性能向上登録証」を発行しています。これからの時代に選ばれる、安心・快適な家を可視化します。

断熱

ランク UA値 断熱等級
0.46 6
0.60 5
0.87 4
耐熱の説明

耐震

ランク 上部構造評点 耐震等級
1.5以上 3
1.25~1.5
未満
2
1.0~1.25
未満
1
耐震の説明
  • 建物は、自立循環型モデル住宅(在来工法)を対象に、地域区分は、6・7地域(都心部を中心)に策定しています。
  • UA値(外皮平均熱貫流率)とは住宅の内部から床、外壁、屋根(天井)や開口部などを通過して外部へ逃げる熱量を外皮全体で平均した値。値が小さいほど熱が逃げにくく、省エネルギー性能が高いことを示します。
  • 上部構造とは壁や柱など家の構造物のこと。上部構造評点とは、震度6強の地震で建物が倒壊しないために必要な力を数値で表した必要耐力(Qr)に対する現状の耐力の割合を表します。
  • 既存木造住宅の上部構造評点1.0、1.25、1.5は、品確法においての耐震等級1、2、3レベルに相当します。