2024年 エントリー作品

光土間の隠れ家

中古物件購入+リノベーション

耐震+断熱

1,000〜1,500万円

2024年07月

投票数

408 409

投票受付終了

リノベーション後 After

光土間の隠れ家

寝室

光土間の隠れ家

光土間とリビング

光土間の隠れ家

光土間と階段

光土間の隠れ家

吹抜け

光土間の隠れ家

2階踊り場

光土間の隠れ家

外観

リノベーション前 Before

  • 光土間の隠れ家

    内観(1階)

  • 光土間の隠れ家

    内観(1階)

  • 光土間の隠れ家

    内観(1階)

  • 光土間の隠れ家

    内観(2階)

  • 光土間の隠れ家

    内観(2階)

  • 光土間の隠れ家

    外観

リノベーション施工中 Process

  • 光土間の隠れ家

    内部改修(1階)

  • 光土間の隠れ家

    内部改修(1階)

  • 光土間の隠れ家

    内部改修(2階)

  • 光土間の隠れ家

    内部改修(1階・2階)

  • 光土間の隠れ家

    屋根改修

  • 光土間の隠れ家

    外壁・開口部改修

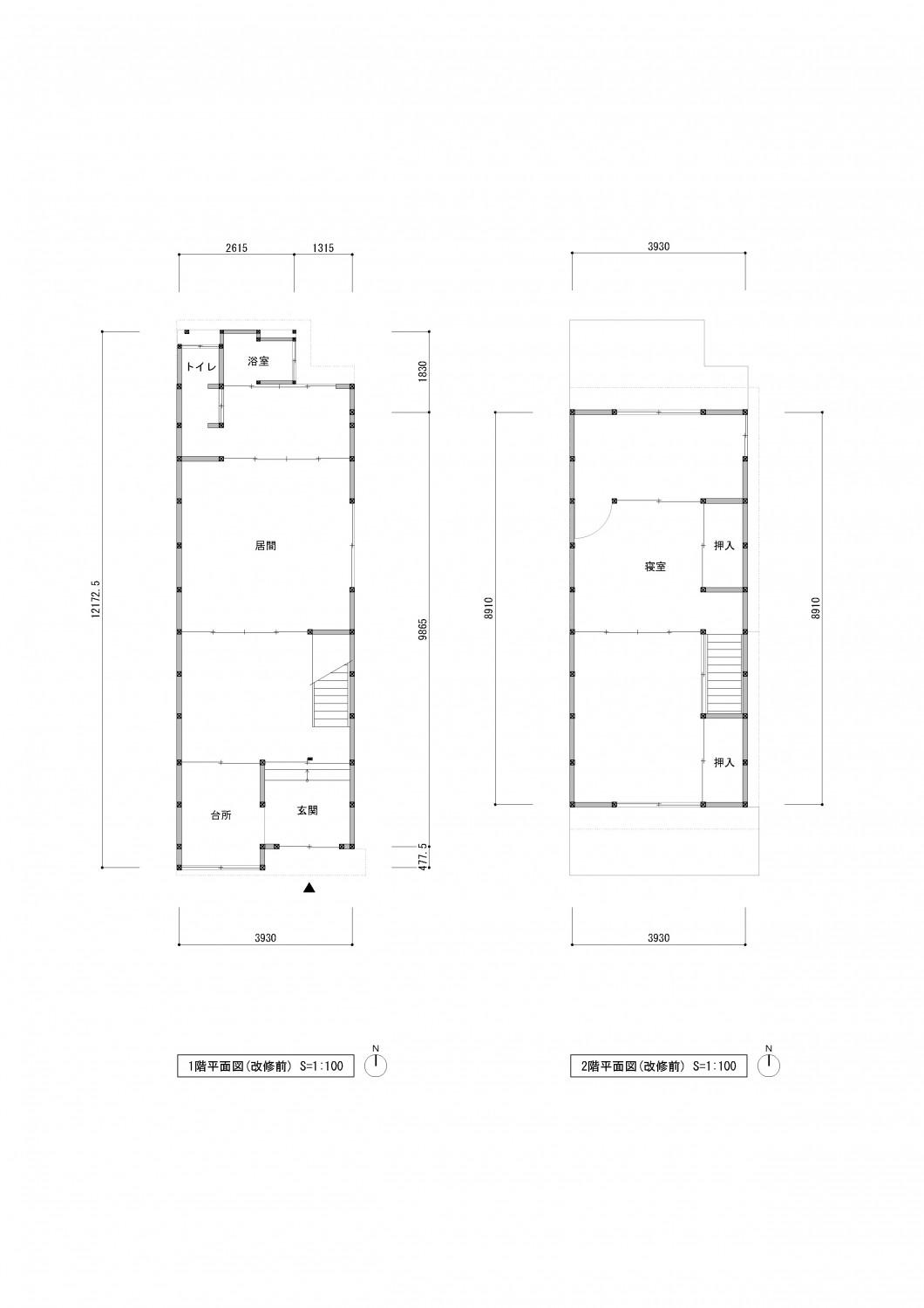
間取り Plan

リノベーション前

  • 光土間の隠れ家

    リノベーション前の間取り/プラン図

  • 光土間の隠れ家

    周辺環境・航空写真

リノベーション後

  • 光土間の隠れ家

    リノベーション後の間取り/プラン図

  • 光土間の隠れ家

    平面図・ダイアグラム

  • 光土間の隠れ家

    断面図・詳細図

物件概要

所在地
大阪府大阪市東成区
敷地面積
82.01㎡(24.85坪)
延床面積
79.46㎡(24.08坪)
構造
木造在来2階建て
既存建築年
1938年(築88年)
改修竣工年月
2024年07月
断熱性能
UA値 改修前2.87w/㎡・K⇒改修後0.75w/㎡・K(改修前の3.8倍に向上)
耐震性能
上部構造評点 改修前0.02 ⇒ 改修後0.71
事業主
北村 泰之

企業紹介

企業名
KNOOOT株式会社
Webサイト
https://knooot.com

グレードとは

性能向上リノベでは、断熱と耐震のそれぞれの現行基準を3段階に分類し、基準を策定。性能向上リノベーションがされた証として、必要なエビデンス情報を登録し、安心・快適な家であるお墨付きの証として「性能向上登録証」を発行しています。これからの時代に選ばれる、安心・快適な家を可視化します。

断熱

ランク UA値 断熱等級
0.46 6
0.60 5
0.87 4
耐熱の説明

耐震

ランク 上部構造評点 耐震等級
1.5以上 3
1.25~1.5
未満
2
1.0~1.25
未満
1
耐震の説明
  • 建物は、自立循環型モデル住宅(在来工法)を対象に、地域区分は、6・7地域(都心部を中心)に策定しています。
  • UA値(外皮平均熱貫流率)とは住宅の内部から床、外壁、屋根(天井)や開口部などを通過して外部へ逃げる熱量を外皮全体で平均した値。値が小さいほど熱が逃げにくく、省エネルギー性能が高いことを示します。
  • 上部構造とは壁や柱など家の構造物のこと。上部構造評点とは、震度6強の地震で建物が倒壊しないために必要な力を数値で表した必要耐力(Qr)に対する現状の耐力の割合を表します。
  • 既存木造住宅の上部構造評点1.0、1.25、1.5は、品確法においての耐震等級1、2、3レベルに相当します。