2023年 エントリー作品

特別賞

星和台の家

中古物件購入+リノベーション

耐震+断熱

2,500〜3,500万円

2023年04月

投票数

25 26

投票受付終了

リノベーション後 After

星和台の家

耐震補強 フレームⅡ 

星和台の家

耐震補強 フレームⅡ施工後

星和台の家

キッチンはTOTOのI型クラッソをコの字型の造作家具で囲い、オリジナルアイランドキッチンを製作しました!色もサイズもイメージ通りの仕上がりです。

星和台の家

リビングの一画、ヌックのコーナーにて。仲良し姉妹がちょこんと腰掛け一休み中。

星和台の家

帰宅してからの動線がスムーズな、手洗い・ファミリークローゼット・ランドリールームへの動線。そのままLDKに通り抜けできます

星和台の家

ダイニングからリビングを見た風景。左ては子供たちのスタディスペース。その奥がヌック。キッチンに立ちながら子供たちとかかわれる距離間です

リノベーション前 Before

  • 星和台の家

    耐震補強 フレームⅡ

  • 星和台の家

    耐震補強 フレームⅡ

  • 星和台の家

    旧居間 改修後キッチン

  • 星和台の家

    旧仏間 改修後ヌック

  • 星和台の家

    北側、壁付のキッチン

リノベーション施工中 Process

  • 星和台の家

    耐震補強 フレームⅡ

  • 星和台の家

    耐震補強 フレームⅡ

  • 星和台の家

    基礎補強 フレームⅡ用

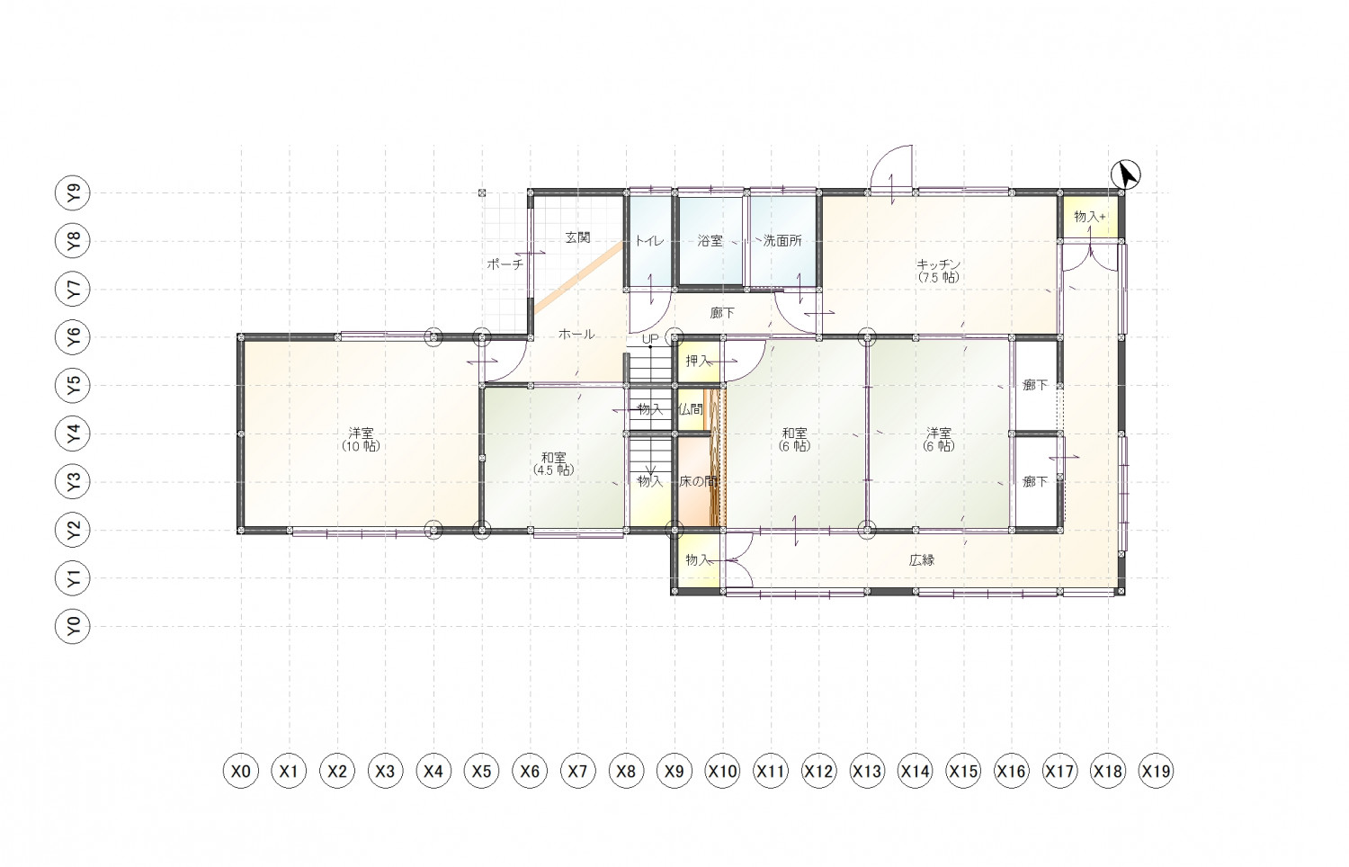
間取り Plan

リノベーション前

  • 星和台の家

    2階

  • 星和台の家

    大きな開口部が多く耐震・断熱性ともに低かった

  • 星和台の家

    当時らしい、和室2間続きを広縁が囲い、キッチンは北側。断熱もされておらず、広いがゆえに寒さ暑さが厳しい状況。

リノベーション後

  • 星和台の家

    広さを利用して、回遊できる生活動線。安心して子育てができる目の届く間取り。心地よいコーナー(ヌック・スタディコーナー・ご主人のPCコーナー・畳)等をすべて盛り込みました。

  • 星和台の家

    窓もすべて入れ替え 断熱性と化粧性が大幅にアップしました。

  • 星和台の家

    2階

物件概要

所在地
大分県大分市星和台
敷地面積
366.79㎡(111.15坪)
延床面積
145.75㎡(44.08坪)
構造
木造軸組工法
既存建築年
45年(築1980年)
改修竣工年月
2023年04月
断熱性能
UA値 改修前3.26w/㎡・K⇒改修後0.57w/㎡・K(改修前の6倍に向上)
耐震性能
上部構造評点 改修前0.43 ⇒ 改修後1.32
施工

株式会社 カワノ

企業紹介

企業名
株式会社 カワノ
Webサイト
http://www.i-kawano.co.jp

グレードとは

性能向上リノベでは、断熱と耐震のそれぞれの現行基準を3段階に分類し、基準を策定。性能向上リノベーションがされた証として、必要なエビデンス情報を登録し、安心・快適な家であるお墨付きの証として「性能向上登録証」を発行しています。これからの時代に選ばれる、安心・快適な家を可視化します。

断熱

ランク UA値 断熱等級
0.46 6
0.60 5
0.87 4
耐熱の説明

耐震

ランク 上部構造評点 耐震等級
1.5以上 3
1.25~1.5
未満
2
1.0~1.25
未満
1
耐震の説明
  • 建物は、自立循環型モデル住宅(在来工法)を対象に、地域区分は、6・7地域(都心部を中心)に策定しています。
  • UA値(外皮平均熱貫流率)とは住宅の内部から床、外壁、屋根(天井)や開口部などを通過して外部へ逃げる熱量を外皮全体で平均した値。値が小さいほど熱が逃げにくく、省エネルギー性能が高いことを示します。
  • 上部構造とは壁や柱など家の構造物のこと。上部構造評点とは、震度6強の地震で建物が倒壊しないために必要な力を数値で表した必要耐力(Qr)に対する現状の耐力の割合を表します。
  • 既存木造住宅の上部構造評点1.0、1.25、1.5は、品確法においての耐震等級1、2、3レベルに相当します。