2023年 エントリー作品

特別賞

中古住宅は子育て世代の宝物!《THE SHOUWA リノベーション 》

中古物件購入+リノベーション

断熱

1,000〜1,500万円

2023年10月

投票数

16 17

投票受付終了

リノベーション後 After

中古住宅は子育て世代の宝物!《THE SHOUWA リノベーション 》

LDK

中古住宅は子育て世代の宝物!《THE SHOUWA リノベーション 》

階段

リノベーション前 Before

  • 中古住宅は子育て世代の宝物!《THE SHOUWA リノベーション 》

    LDK

  • 中古住宅は子育て世代の宝物!《THE SHOUWA リノベーション 》

    階段

リノベーション施工中 Process

  • 中古住宅は子育て世代の宝物!《THE SHOUWA リノベーション 》

    施工中1

  • 中古住宅は子育て世代の宝物!《THE SHOUWA リノベーション 》

    施工中2

間取り Plan

リノベーション前

  • 中古住宅は子育て世代の宝物!《THE SHOUWA リノベーション 》

    改修前:1階

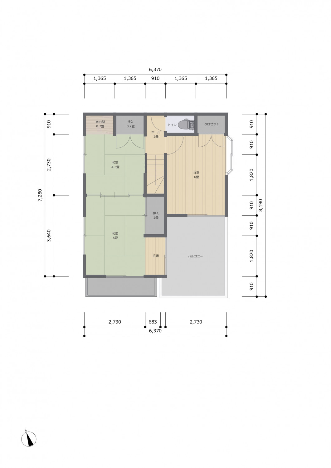
  • 中古住宅は子育て世代の宝物!《THE SHOUWA リノベーション 》

    改修前:2階

リノベーション後

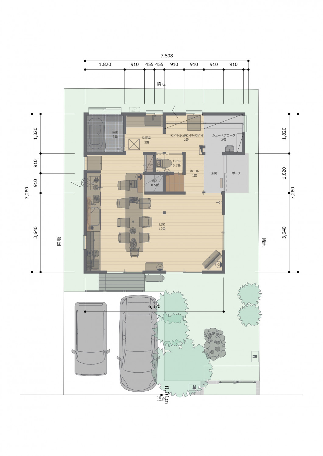
  • 中古住宅は子育て世代の宝物!《THE SHOUWA リノベーション 》

    改修後:1階

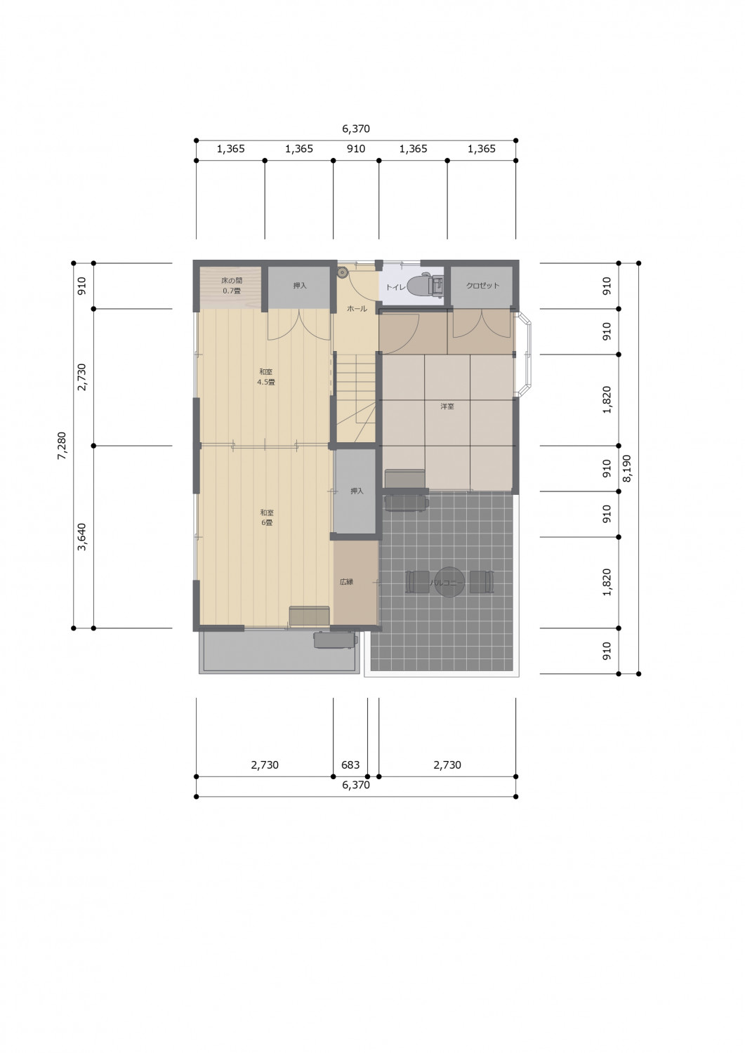
  • 中古住宅は子育て世代の宝物!《THE SHOUWA リノベーション 》

    改修後:2階

物件概要

所在地
東京都立川市
敷地面積
125㎡(37.2坪)
延床面積
86.75㎡(26.3坪)
構造
木造
既存建築年
39年(築1987年)
改修竣工年月
2023年10月
断熱性能
UA値 改修後0.81w/㎡・K

企業紹介

企業名
内田建設株式会社
Webサイト
https://www.k-uchiken.com/
コメント

ウチダの家《新築注文住宅》
家づくりウチダの家はご家族構成や住まわれる方のライフスタイルに合わせた「自由設計住宅」で、長年の実績に基づいて選定した材料と工法による「注文住宅」です。

グレードとは

性能向上リノベでは、断熱と耐震のそれぞれの現行基準を3段階に分類し、基準を策定。性能向上リノベーションがされた証として、必要なエビデンス情報を登録し、安心・快適な家であるお墨付きの証として「性能向上登録証」を発行しています。これからの時代に選ばれる、安心・快適な家を可視化します。

断熱

ランク UA値 断熱等級
0.46 6
0.60 5
0.87 4
耐熱の説明

耐震

ランク 上部構造評点 耐震等級
1.5以上 3
1.25~1.5
未満
2
1.0~1.25
未満
1
耐震の説明
  • 建物は、自立循環型モデル住宅(在来工法)を対象に、地域区分は、6・7地域(都心部を中心)に策定しています。
  • UA値(外皮平均熱貫流率)とは住宅の内部から床、外壁、屋根(天井)や開口部などを通過して外部へ逃げる熱量を外皮全体で平均した値。値が小さいほど熱が逃げにくく、省エネルギー性能が高いことを示します。
  • 上部構造とは壁や柱など家の構造物のこと。上部構造評点とは、震度6強の地震で建物が倒壊しないために必要な力を数値で表した必要耐力(Qr)に対する現状の耐力の割合を表します。
  • 既存木造住宅の上部構造評点1.0、1.25、1.5は、品確法においての耐震等級1、2、3レベルに相当します。