2023年 エントリー作品

特別賞

性能向上リノベ:仙台市S様邸

中古物件購入+リノベーション

耐震+断熱

2,000〜2,500万円

2023年11月

投票数

41 42

投票受付終了

リノベーション後 After

性能向上リノベ:仙台市S様邸

リビング

性能向上リノベ:仙台市S様邸

リビング

性能向上リノベ:仙台市S様邸

キッチン

性能向上リノベ:仙台市S様邸

寝室

性能向上リノベ:仙台市S様邸

ウォークインクローゼット

性能向上リノベ:仙台市S様邸

洗面室

リノベーション前 Before

  • 性能向上リノベ:仙台市S様邸

    外観

  • 性能向上リノベ:仙台市S様邸

    リビング

  • 性能向上リノベ:仙台市S様邸

    ダイニング

  • 性能向上リノベ:仙台市S様邸

    和室

  • 性能向上リノベ:仙台市S様邸

    廊下

  • 性能向上リノベ:仙台市S様邸

    キッチン

リノベーション施工中 Process

  • 性能向上リノベ:仙台市S様邸

    木工事

  • 性能向上リノベ:仙台市S様邸

    木工事

  • 性能向上リノベ:仙台市S様邸

    木工事

  • 性能向上リノベ:仙台市S様邸

    APW330に入れ替えしました

間取り Plan

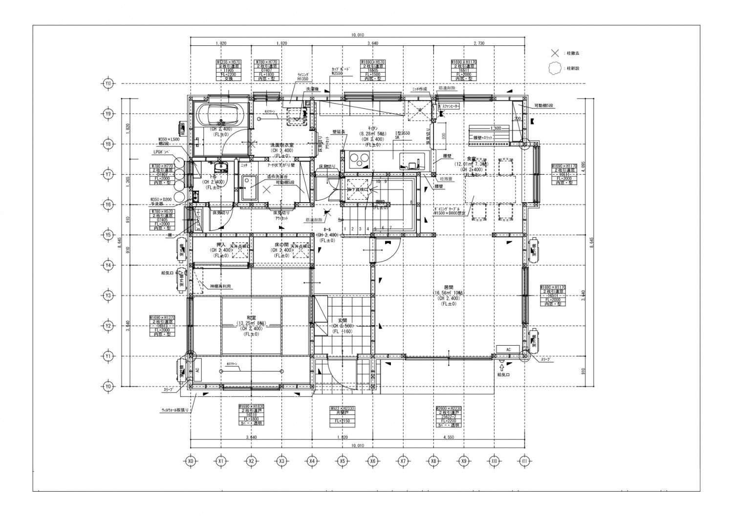
リノベーション前

  • 性能向上リノベ:仙台市S様邸

    1階

  • 性能向上リノベ:仙台市S様邸

    2階

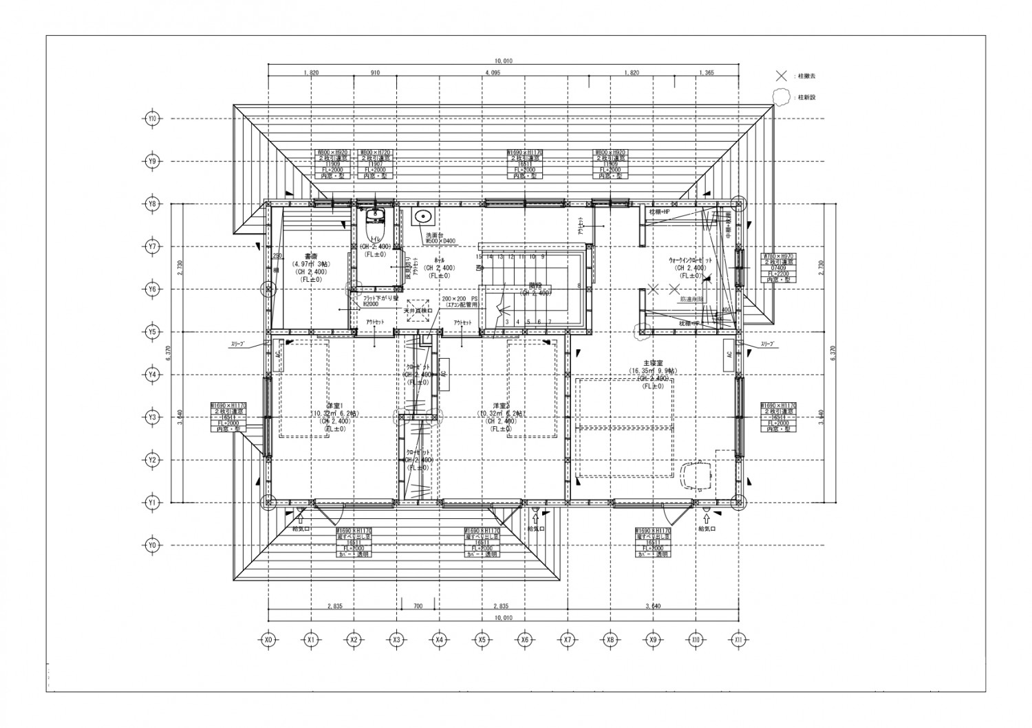
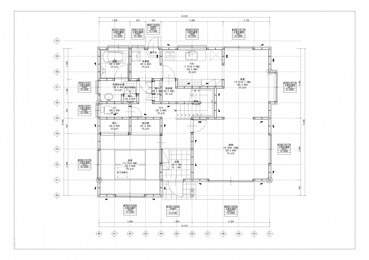
リノベーション後

  • 性能向上リノベ:仙台市S様邸

    1階

  • 性能向上リノベ:仙台市S様邸

    2階

物件概要

所在地
宮城県仙台市
敷地面積
252.48㎡(76.5坪)
延床面積
144.49㎡(43.7坪)
構造
木造在来2階建
既存建築年
1993年(築32年)
改修竣工年月
2023年11月
断熱性能
UA値 改修前1.19w/㎡・K⇒改修後0.69w/㎡・K(改修前の1.7倍に向上)
耐震性能
上部構造評点 改修前1.0 ⇒ 改修後1.26

企業紹介

企業名
株式会社 佐元工務店
Webサイト
http://www.samoto.co.jp/
コメント

当社は「地域密着」の方針の元、住まいや暮らしで何かお困りごとがあれば「まず佐元に相談してみよう!」と言ってもらえるような、土地・建物・住まいや暮らしの総合相談所を目指しております。
一度のお付き合いから一生のお付き合いをモットーに専門スタッフが対応いたします。

グレードとは

性能向上リノベでは、断熱と耐震のそれぞれの現行基準を3段階に分類し、基準を策定。性能向上リノベーションがされた証として、必要なエビデンス情報を登録し、安心・快適な家であるお墨付きの証として「性能向上登録証」を発行しています。これからの時代に選ばれる、安心・快適な家を可視化します。

断熱

ランク UA値 断熱等級
0.46 6
0.60 5
0.87 4
耐熱の説明

耐震

ランク 上部構造評点 耐震等級
1.5以上 3
1.25~1.5
未満
2
1.0~1.25
未満
1
耐震の説明
  • 建物は、自立循環型モデル住宅(在来工法)を対象に、地域区分は、6・7地域(都心部を中心)に策定しています。
  • UA値(外皮平均熱貫流率)とは住宅の内部から床、外壁、屋根(天井)や開口部などを通過して外部へ逃げる熱量を外皮全体で平均した値。値が小さいほど熱が逃げにくく、省エネルギー性能が高いことを示します。
  • 上部構造とは壁や柱など家の構造物のこと。上部構造評点とは、震度6強の地震で建物が倒壊しないために必要な力を数値で表した必要耐力(Qr)に対する現状の耐力の割合を表します。
  • 既存木造住宅の上部構造評点1.0、1.25、1.5は、品確法においての耐震等級1、2、3レベルに相当します。